Maison à construire à Trouville-sur-Mer (14360)
Images
Description
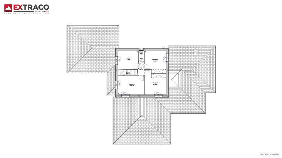
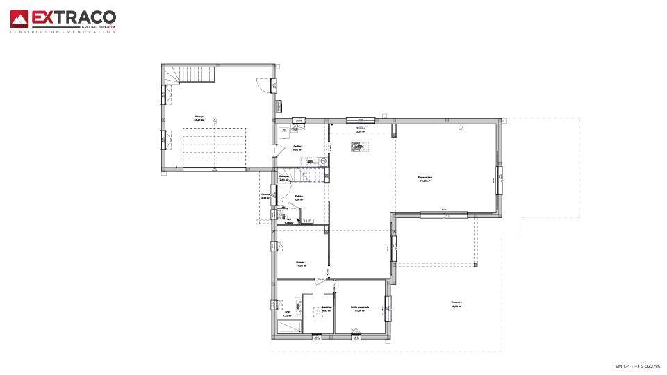
VENTE : maison de 8 pièces (174 m²) à Trouville-sur-Mer
IDÉALEMENT SITUÉE - MAISON 8 PIÈCES NEUVE
En vente idéalement située dans Trouville-sur-Mer (14360), nous vous présentons cette maison de 8 pièces de 174 m². Son intérieur inclut quatre chambres, une cuisine et deux salles de bains.
Le terrain de la propriété est de 514 m².
Il s'agit d'une maison de 2 niveaux. Elle est neuve.
La maison est située dans un quartier convoité. Il y a l'École Élémentaire Privée Jeanne d'Arc, le Lycée Général Privé Marie-Joseph et le Collège Privé Marie-Joseph à moins de 10 minutes à pied. Côté transports en commun, on trouve les gares Trouville-Deauville, Blonville-sur-Mer-Benerville et Villers-sur-Mer à moins de 10 minutes en voiture. Les autoroutes A29 et A132 sont accessibles à moins de 10 km. Il y a une bibliothèque à proximité.
Son prix de vente est de 599 900 €.
N'hésitez pas à prendre contact avec Angélique CUVILLIERS (tél : (Numéro supprimé)) pour tout renseignement sur la maison.
EXTRACO Construction Rénovation Pont-l'Évêque est là pour vous accompagner dans tous vos projets immobiliers.
Logement susceptibles de vous intéresser
Nous vous proposons de découvrir aussi cette sélection de logements situés à moins de 10km de Trouville-sur-Mer et qui seraient susceptibles de vous intéresser.
Trouville-sur-Mer
TERRAINVENTE : terrain de 514 m² à Trouville-sur-MerIDÉALEMENT SITUÉ À Trouville-sur-Mer (14360), grand terrain. Dans un quartier prisé, ce terrain idéalement situé est proche des commerces et des écoles. Il y a l’École Élémentaire Privée Jeanne d’Arc, le Lycée Général Privé Marie-Joseph et le Collège Privé Marie-Joseph à moins de 10 minutes à pied. Côté transports, on trouve les gares Trouville-Deauville, Blonville-sur-Mer-Benerville et Villers-sur-Mer à moins de 10 minutes en voiture. Les autoroutes A29 et A132 sont accessibles à moins de 10 km. Il y a une bibliothèque à proximité.Son prix de vente est de 247 000 €. Contactez notre agence (Angélique CUVILLIERS : (Numéro supprimé)) pour tout renseignement sur ce terrain. EXTRACO Construction Rénovation Pont-l’Évêque est là pour vous accompagner dans tous vos projets immobiliers.
Trouville-sur-Mer
TERRAIN ET MAISONOSSATURE BOIS VENTE d’une maison de 4 pièces (120 m²) à Trouville-sur-MerIDÉALEMENT SITUÉE – MAISON 4 PIÈCES NEUVEEn vente : idéalement située dans Trouville-sur-Mer (14360), nous vous proposons cette maison de 4 pièces de plain-pied de 120 m². Conçue de plain-pied, elle inclut trois chambres, une cuisine et deux salles de bains.Le terrain de la propriété s’étend sur 514 m².La maison est neuve.La maison se trouve dans un secteur convoité. Il y a l’École Élémentaire Privée Jeanne d’Arc, le Lycée Général Privé Marie-Joseph et le Collège Privé Marie-Joseph à moins de 10 minutes à pied. Niveau transports, on trouve les gares Trouville-Deauville, Blonville-sur-Mer-Benerville et Villers-sur-Mer à moins de 10 minutes en voiture. Les autoroutes A29 et A132 sont accessibles à moins de 10 km. Il y a une bibliothèque à quelques minutes du bien.Elle est à vendre pour la somme de 482 400 €.N’hésitez pas à prendre contact avec Angélique CUVILLIERS (tél : (Numéro supprimé)) pour toute information sur la maison, sur les démarches à suivre ou sur les modalités de vente. EXTRACO Construction Rénovation Pont-l’Évêque vous accompagne à toutes les étapes de l’achat et dans tous vos projets immobiliers.
Trouville-sur-Mer
TERRAIN ET MAISONVENTE : maison T5 (100 m²) à Trouville-sur-MerIDÉALEMENT SITUÉE – MAISON 5 PIÈCES NEUVEVotre agence EXTRACO Construction Rénovation Pont-l’Évêque est heureuse de vous proposer, idéalement située dans Trouville-sur-Mer (14360), cette maison de 5 pièces de 100 m². Elle dispose de quatre chambres, d’une cuisine et d’une salle de bains.Le terrain du bien s’étend sur 514 m².Il s’agit d’une maison de 2 niveaux. Elle est neuve.Le bien est situé dans un secteur recherché. L’École Élémentaire Privée Jeanne d’Arc, le Lycée Général Privé Marie-Joseph et le Collège Privé Marie-Joseph se trouvent à moins de 10 minutes à pied. Côté transports en commun, il y a trois gares (Trouville-Deauville, Blonville-sur-Mer-Benerville et Villers-sur-Mer) à moins de 10 minutes en voiture. Les autoroutes A29 et A132 sont accessibles à moins de 10 km. On trouve une bibliothèque à quelques minutes.Il est proposé à l’achat pour 414 700 €.N’hésitez pas à prendre contact avec notre constructeur (CUVILLIERS Angélique : (Numéro supprimé)) pour tout renseignement sur la maison, sur les démarches à suivre ou sur les modalités de vente. EXTRACO Construction Rénovation Pont-l’Évêque est là pour vous accompagner à toutes les étapes de votre projet.
Trouville-sur-Mer
TERRAIN ET MAISONMaison de 4 pièces (98 m²) à vendre à Trouville-sur-MerIDÉALEMENT SITUÉE – MAISON 4 PIÈCES NEUVEEn vente : idéalement située dans Trouville-sur-Mer (14360), EXTRACO Construction Rénovation Pont-l’Évêque vous propose cette maison de 4 pièces de plain-pied de 98 m² et de 514 m² de terrain. Son intérieur est composé de trois chambres, d’une cuisine et d’une salle de bains.La maison est neuve.Cette maison est située dans un secteur convoité. Il y a l’École Élémentaire Privée Jeanne d’Arc, le Lycée Général Privé Marie-Joseph et le Collège Privé Marie-Joseph à moins de 10 minutes à pied. Niveau transports en commun, on trouve trois gares (Trouville-Deauville, Blonville-sur-Mer-Benerville et Villers-sur-Mer) à moins de 10 minutes en voiture. Les autoroutes A29 et A132 sont accessibles à moins de 10 km. Il y a une bibliothèque à quelques minutes de la maison.Elle est à vendre pour la somme de 416 800 €.Contactez notre agence (Angélique CUVILLIERS : (Numéro supprimé)) pour obtenir de plus amples informations sur la maison ou sur les modalités de vente. EXTRACO Construction Rénovation Pont-l’Évêque est là pour vous accompagner dans toutes vos démarches.
Trouville-sur-Mer
TERRAIN ET MAISONVENTE : maison de 8 pièces (174 m²) à Trouville-sur-MerIDÉALEMENT SITUÉE – MAISON 8 PIÈCES NEUVEEn vente idéalement située dans Trouville-sur-Mer (14360), nous vous présentons cette maison de 8 pièces de 174 m². Son intérieur inclut quatre chambres, une cuisine et deux salles de bains.Le terrain de la propriété est de 514 m².Il s’agit d’une maison de 2 niveaux. Elle est neuve.La maison est située dans un quartier convoité. Il y a l’École Élémentaire Privée Jeanne d’Arc, le Lycée Général Privé Marie-Joseph et le Collège Privé Marie-Joseph à moins de 10 minutes à pied. Côté transports en commun, on trouve les gares Trouville-Deauville, Blonville-sur-Mer-Benerville et Villers-sur-Mer à moins de 10 minutes en voiture. Les autoroutes A29 et A132 sont accessibles à moins de 10 km. Il y a une bibliothèque à proximité.Son prix de vente est de 599 900 €.N’hésitez pas à prendre contact avec Angélique CUVILLIERS (tél : (Numéro supprimé)) pour tout renseignement sur la maison. EXTRACO Construction Rénovation Pont-l’Évêque est là pour vous accompagner dans tous vos projets immobiliers.
Villers-sur-Mer
TERRAINVillers-sur-Mer : terrain de 470 m² à vendreQUARTIER RECHERCHÉ – VUE PANORAMIQUEEn vente au bord de la Manche et à deux pas du Havre à Villers-sur-Mer (14640), terrain de 470 m² et 342 m² de terrain en plus (non constructible) Réalisez-y la maison de vos rêves. Il profite d’une vue panoramique. Dans un quartier attractif, ce terrain construit dans un quartier recherché est proche des écoles et des commerces. L’École Primaire Victor Duprez est implantée à moins de 10 minutes à pied. Niveau transports en commun, il y a six gares à moins de 10 minutes en voiture. Les autoroutes A13, A132 et A29 sont accessibles à moins de 18 km. On trouve un bassin de natation, un tennis, des commerces, quatre boulangeries, deux supermarchés, un bureau de poste et trois boucheries-charcuteries à proximité.Son prix de vente est de 159 000 €. Contactez Marion PAIN (tél : (Numéro supprimé)) pour toute information sur le terrain. Extraco construction Rénovation Pont-l’Évêque est là pour vous accompagner dans toutes vos démarches.
Villers-sur-Mer
TERRAINVENTE d’un terrain de 780 m² à Villers-sur-MerQUARTIER RECHERCHÉ – VUE DÉGAGÉEÀ vendre au bord de la Manche et à 23 km du Havre à Villers-sur-Mer (14640), grand terrain. Il est prêt à accueillir votre résidence principale ou secondaire pour toute la famille. Il profite d’une vue dégagée. Dans un secteur convoité, ce terrain construit dans un quartier prisé est proche des commerces et des écoles. L’École Primaire Victor Duprez est implantée à moins de 10 minutes à pied. Niveau transports, il y a six gares à moins de 10 minutes en voiture. Les autoroutes A13, A132 et A29 sont accessibles à moins de 18 km. On trouve un bassin de natation, un tennis, des commerces, quatre boulangeries, deux supermarchés, une épicerie et trois boucheries-charcuteries à proximité.Il est à vendre pour la somme de 227 000 €. Contactez notre agence (PAIN Marion : (Numéro supprimé)) pour toute question sur le terrain, sur les modalités de vente ou sur les démarches à suivre.
Saint-Martin-aux-Chartrains
TERRAINTerrain de 669 m² à vendre à Saint-Martin-aux-ChartrainsQUARTIER RECHERCHÉ – PROCHE DU HAVREÀ Saint-Martin-aux-Chartrains (14130) à 10 km de la Manche et à quelques kilomètres du Havre, découvrez ce terrain de 669 m². Il donne sur un espace vert. Dans un quartier prisé, ce terrain dans un secteur attractif est proche des écoles et des commerces. Des écoles de tous types sont implantées à moins de 10 minutes en voiture. Niveau transports, il y a les gares Pont-l’Évêque, Trouville-Deauville et Blonville-sur-Mer-Benerville dans les alentours. Les autoroutes A132, A13 et A29 sont accessibles à moins de 9 km. On trouve des tennis, des bibliothèques, un bowling, trois bassins de natation, un port de plaisance, des commerces, des boulangeries, des supermarchés, des boucheries-charcuteries et des poissonneries à proximité du bien. 3 marchés animent le quartier.Ce terrain est à vendre pour la somme de 101 000 €. Contactez notre agence (Marion PAIN : (Numéro supprimé)) pour tout renseignement sur le terrain ou sur les modalités de vente. Donnez vie à vos projets immobiliers avec Extraco construction rénovation Pont-l’Évêque.
Saint-Martin-aux-Chartrains
TERRAINVENTE : terrain de 1 240 m² à Saint-Martin-aux-ChartrainsIDÉALEMENT SITUÉ – VUE DÉGAGÉEÀ 10 km de la Manche et à deux pas du Havre à Saint-Martin-aux-Chartrains (14130), grand terrain. Réalisez-y votre projet de construction. Il profite d’une vue dégagée. Dans un secteur attractif, ce terrain idéalement situé est proche des écoles et des commerces. Des écoles du primaire et du secondaire se trouvent à moins de 10 minutes en voiture. Niveau transports en commun, il y a trois gares (Pont-l’Évêque, Trouville-Deauville et Blonville-sur-Mer-Benerville) dans les alentours. Les autoroutes A132, A13 et A29 sont accessibles à moins de 9 km. On trouve des tennis, des bibliothèques, un bowling, trois bassins de natation, un port de plaisance, des commerces, des boulangeries, des supermarchés, des boucheries-charcuteries et des bureaux de poste à quelques minutes. 3 marchés animent les environs.Ce terrain est à vendre pour la somme de 137 000 €. Contactez Marion PAIN ((Numéro supprimé)) pour toute question sur le terrain ou sur les modalités de vente. Concrétisez vos projets immobiliers avec Extraco construction rénovation Pont-l’Évêque.
L’actualité immobilière à Trouville-sur-Mer
27/11/2023
02/11/2023
30/10/2023
20/10/2023
16/10/2023
16/10/2023