Images
Description
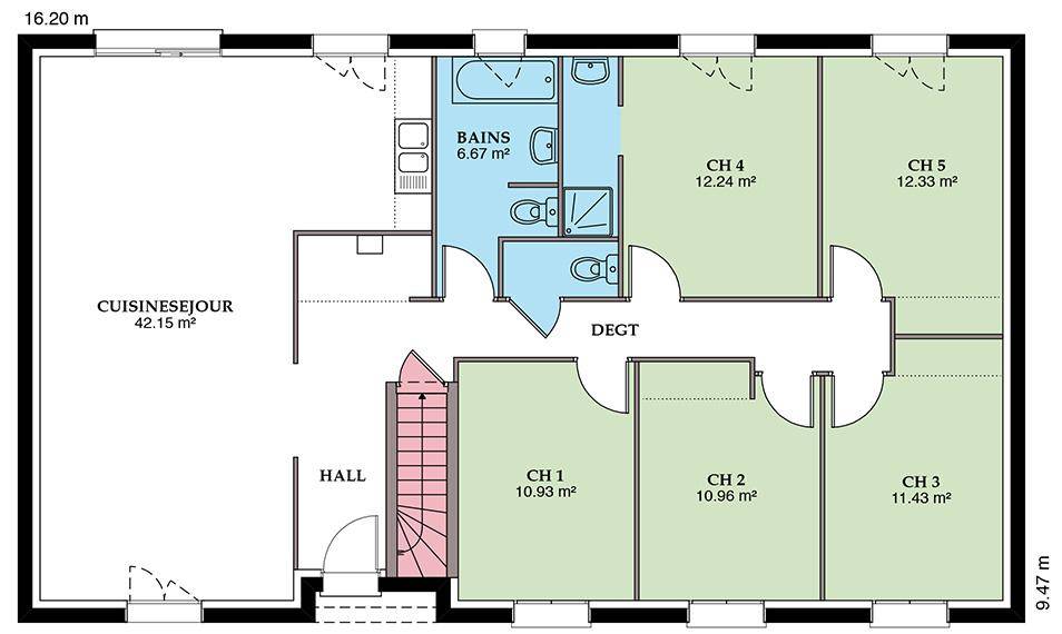
Nous vous proposons cette maison neuve, baptisée ""Aubetière"", un modèle de construction qui allie élégance et performance énergétique. Avec une surface habitable de 79 m², cette maison est conçue pour offrir confort et bien-être à ses occupants. Elle se compose de 4 pièces lumineuses, dont 3 chambres accueillantes, idéales pour une famille cherchant à s'établir dans un cadre de vie agréable et serein.
L'Aubetière se distingue par son architecture moderne, disponible en version 2 pans ou 4 pans, offrant ainsi une flexibilité selon vos préférences esthétiques et vos besoins. Chaque détail a été pensé pour maximiser l'espace de vie et garantir une luminosité optimale dans toutes les pièces.
Cette maison est avant tout un modèle d'efficacité énergétique, conforme à la norme RE2020. Elle est conçue pour être basse consommation, vous permettant ainsi de réaliser d'importantes économies d'énergie tout en réduisant votre empreinte carbone. L'isolation thermique renforcée, le système de chauffage performant et la ventilation optimisée sont autant d'éléments qui contribuent à atteindre un niveau de confort exceptionnel, été comme hiver, tout en préservant l'environnement.
L'Aubetière représente l'opportunité de vivre dans une maison neuve, moderne et écologique, répondant aux exigences les plus strictes en matière de construction durable. C'est l'assurance d'un investissement pérenne, dans un lieu où il fait bon vivre.
N'attendez plus pour découvrir ce modèle de maison qui saura répondre à vos attentes en termes de qualité de vie, d'économie d'énergie et de respect de l'environnement. L'Aubetière est la promesse d'un foyer chaleureux, où chaque jour est une invitation au bien-être.
Logement susceptibles de vous intéresser
Nous vous proposons de découvrir aussi cette sélection de logements situés à moins de 10km de Vouzeron et qui seraient susceptibles de vous intéresser.
Vouzeron
TERRAIN ET MAISONNous vous proposons cette maison neuve, baptisée « »Aubetière » », un modèle de construction qui allie élégance et performance énergétique. Avec une surface habitable de 79 m², cette maison est conçue pour offrir confort et bien-être à ses occupants. Elle se compose de 4 pièces lumineuses, dont 3 chambres accueillantes, idéales pour une famille cherchant à s’établir dans un cadre de vie agréable et serein. L’Aubetière se distingue par son architecture moderne, disponible en version 2 pans ou 4 pans, offrant ainsi une flexibilité selon vos préférences esthétiques et vos besoins. Chaque détail a été pensé pour maximiser l’espace de vie et garantir une luminosité optimale dans toutes les pièces. Cette maison est avant tout un modèle d’efficacité énergétique, conforme à la norme RE2020. Elle est conçue pour être basse consommation, vous permettant ainsi de réaliser d’importantes économies d’énergie tout en réduisant votre empreinte carbone. L’isolation thermique renforcée, le système de chauffage performant et la ventilation optimisée sont autant d’éléments qui contribuent à atteindre un niveau de confort exceptionnel, été comme hiver, tout en préservant l’environnement. L’Aubetière représente l’opportunité de vivre dans une maison neuve, moderne et écologique, répondant aux exigences les plus strictes en matière de construction durable. C’est l’assurance d’un investissement pérenne, dans un lieu où il fait bon vivre. N’attendez plus pour découvrir ce modèle de maison qui saura répondre à vos attentes en termes de qualité de vie, d’économie d’énergie et de respect de l’environnement. L’Aubetière est la promesse d’un foyer chaleureux, où chaque jour est une invitation au bien-être.
Vouzeron
TERRAINDécouvrez cette opportunité exceptionnelle d’acquérir un terrain de 1 400 m² situé dans la charmante commune de Vouzeron, au cœur du département du Cher, en Centre-Val de Loire. Ce terrain, bien qu’actuellement non viabilisé, offre un cadre champêtre idéal pour votre projet de construction de maison. Avec ses dimensions généreuses et son emplacement privilégié, il promet une qualité de vie inestimable, tout en permettant une personnalisation totale de votre futur habitat. Vouzeron est un village qui se distingue par son atmosphère paisible et son cadre naturel enchanteur. À proximité, vous trouverez diverses attractions locales et commodités, telles que des commerces, des écoles et des espaces verts, facilitant ainsi votre quotidien. Grâce à l’accès aux infrastructures routières du Cher, vous bénéficiez également d’une connexion pratique aux villes voisines, vous permettant de profiter de tout le dynamisme de la région. Cette localité allie harmonieusement tranquillité et accessibilité, faisant de ce terrain une opportunité à ne pas manquer pour tous les amateurs de vie tranquille. Ne laissez pas passer cette chance unique d’investir dans un bien au potentiel remarquable. Contactez-nous dès aujourd’hui pour envisager votre futur chez-vous à Vouzeron. À noter qu’en tant que constructeur, nous ne sommes pas mandatés pour réaliser la vente de ce terrain.
Vignoux-sur-Barangeon
TERRAIN ET MAISONVENTE d’une maison T6 (137 m²) à Vignoux-sur-BarangeonProche de Bourges – Maison neuve 6 pièces à vendre à Vignoux-sur-Barangeon (18500) avec 2 niveaux, une surface de 137 m² sur un terrain de 1 300 m². Son intérieur compte quatre chambres, une cuisine et deux salles de bains.À dix minutes : gares, école primaire École Élémentaire Jean Christophe Rufin, tennis, commerces, boulangerie et boucherie-charcuterie. Autoroutes A71 et A20 à 10 km.Cette maison de 6 pièces est à vendre pour la somme de 285 300 €.Prenez contact avec David POUPET (tél : (Numéro supprimé)) pour toute question sur la maison ou sur les démarches à suivre. Concrétisez vos projets immobiliers avec Maisons Bruno Petit MJB Bourges.
Neuvy-sur-Barangeon
TERRAIN ET MAISONVENTE : maison de 4 pièces (130 m²) à Neuvy-sur-BarangeonIdéalement située – À découvrir à Neuvy-sur-Barangeon (18330) : maison neuve 4 pièces en vente. 2 niveaux, surface de 130 m² sur 1 450 m² de terrain. Elle offre trois chambres, une cuisine et deux salles de bains.À proximité : écoles, tennis, boulangerie, commerce, épicerie, boucherie-charcuterie et bureau de poste. Autoroutes A71 et A20 accessibles à 17 km. Bourges à 30 km.Le prix de vente de cette maison de 4 pièces est de 266 300 €.N’hésitez pas à prendre contact avec Jonathan LEBLANC ((Numéro supprimé)) pour toute information sur la maison ou sur les modalités de vente. Concrétisez vos projets immobiliers avec Maisons Bruno Petit MJB Bourges.
Neuvy-sur-Barangeon
TERRAIN ET MAISONMaison de 4 pièces (110 m²) à vendre à Neuvy-sur-BarangeonIdéalement située – À Neuvy-sur-Barangeon (18330), maison neuve à vendre de 4 pièces, 110 m² de surface et 1 450 m² de terrain. Son intérieur inclut trois chambres, une cuisine et deux salles de bains.Proche écoles, tennis, boulangerie, commerce, épicerie, bureau de poste et boucherie-charcuterie. Autoroutes A71 et A20 à 17 km. Bourges à 30 km.Cette maison de 4 pièces est proposée à l’achat pour 228 000 €.N’hésitez pas à prendre contact avec notre agence (LEBLANC Jonathan : (Numéro supprimé)) pour toute question sur la maison. Maisons Bruno Petit MJB Bourges vous accompagne à toutes les étapes de votre projet et dans tous vos projets immobiliers.
Neuvy-sur-Barangeon
TERRAIN ET MAISONVENTE : maison de 5 pièces (130 m²) à Neuvy-sur-BarangeonIdéalement située – À découvrir à Neuvy-sur-Barangeon (18330) : maison neuve 5 pièces à vendre, 130 m² sur 1 450 m² de terrain. Elle se divise en quatre chambres, une cuisine et deux salles de bains.À proximité : écoles, tennis, boulangerie, commerce, bureau de poste, épicerie et boucherie-charcuterie. Autoroutes A71 et A20 à 17 km. Bourges à 30 km.Cette maison de 5 pièces est à vendre pour la somme de 256 050 €.Contactez notre agence (LEBLANC Jonathan : (Numéro supprimé)) pour toute information sur la maison ou sur les modalités de vente.
Neuvy-sur-Barangeon
TERRAINVENTE : terrain de 1 450 m² à Neuvy-sur-BarangeonIdéalement situé – À vendre à Neuvy-sur-Barangeon (18330) : terrain de 1 450 m².À proximité : écoles, tennis, boulangerie, commerce, boucherie-charcuterie, épicerie et bureau de poste. Autoroutes A71 et A20 à 17 km. Bourges à 30 km.Son prix de vente est de 28 000 €. Prenez contact avec notre agence (LEBLANC Jonathan : (Numéro supprimé)) pour toute question sur le terrain et sur les démarches à suivre.
Neuvy-sur-Barangeon
TERRAIN ET MAISONMaison de 8 pièces (200 m²) à vendre à Neuvy-sur-BarangeonIdéalement située – À découvrir à Neuvy-sur-Barangeon (18330) : maison neuve 8 pièces à vendre. Surface de 200 m² sur 1 450 m² de terrain. Conçue de plain-pied, elle est composée de six chambres, d’une cuisine et de trois salles de bains.À proximité : écoles, tennis, boulangerie, commerce, boucherie-charcuterie, bureau de poste et épicerie. Autoroutes A71 et A20 à 17 km. Bourges à 30 km.Le prix de vente de cette maison de 8 pièces est de 404 000 €.N’hésitez pas à prendre contact avec Jonathan LEBLANC ((Numéro supprimé)) pour obtenir de plus amples informations sur la maison, sur les modalités de vente ou sur les démarches à suivre.
Neuvy-sur-Barangeon
TERRAIN ET MAISONNeuvy-sur-Barangeon : maison F5 (104 m²) à vendreIdéalement située – À Neuvy-sur-Barangeon (18330), maison neuve à vendre de 5 pièces, 104 m² de surface sur 1 450 m² de terrain. Conçue de plain-pied, elle dispose de quatre chambres, d’une cuisine et de deux salles de bains.À proximité : écoles, tennis, boulangerie, commerce, boucherie-charcuterie, épicerie et bureau de poste. Autoroutes A71 et A20 à 17 km. Bourges à 30 km.Cette maison de 5 pièces est à vendre pour la somme de 248 500 €.Prenez contact avec notre agence (Jonathan LEBLANC : (Numéro supprimé)) pour plus de renseignements sur la maison. Concrétisez vos projets immobiliers avec Maisons Bruno Petit MJB Bourges.
L’actualité immobilière à Vouzeron
27/11/2023
02/11/2023
30/10/2023
20/10/2023
16/10/2023
16/10/2023