Maison neuve (90 M²) - 4 chambres à LANVOLLON
Images
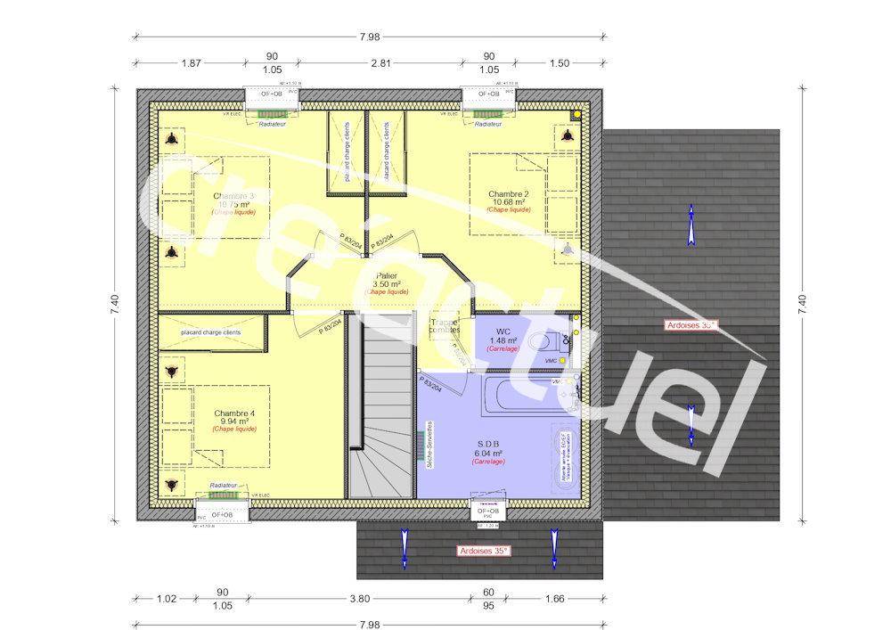
Description
Devenez propriétaire de cette maison confortable de 90 m2 composée d'une belle pièce de vie lumineuse de 35 m2 et de 4 chambres . Sur un terrain de 468 m2 situé sur la Commune de LANVOLLON, proche du centre et des commerces, ce projet de maison contemporaine saura vous séduire. Rencontrons-nous !
Permis de construire prêt à déposer. Prix clé en main tous frais inclus (Frais de notaire, bornage, viabilisation et raccordements, assurance dommage ouvrage) à partir de 259 100 € TTC FRAIS D'AGENCE INCLUS. Disponibilité sous réserve de notre partenaire foncier. Prix susceptible d'évoluer (source tarif 2025) hors adaptation au sol.
Pour votre projet, faites confiance à Cre'Actuel, créateur et constructeur de maisons individuelles.
"Visuels non contractuels. Maison conforme à la règlementation RE 2020 sous réserve de l'implantation et de l'exposition du projet de construction sur le terrain."
Logement susceptibles de vous intéresser
Nous vous proposons de découvrir aussi cette sélection de logements situés à moins de 10km de Lanvollon et qui seraient susceptibles de vous intéresser.
Lanvollon
TERRAINVENTE : terrain de 371 m² à LanvollonPROCHE DE SAINT-BRIEUCÀ Lanvollon (22290) à 13 km de la Manche et à quelques kilomètres de Saint-Brieuc, venez découvrir ce terrain de 371 m². Il y a le Collège Privé Notre-Dame, l’École Primaire Privée Sacré Coeur et l’École Primaire Publique de Lanvollon à moins de 10 minutes à pied et une structure d’accueil pour les tout-petits. La nationale N12 est accessible à 11 km. On trouve deux tennis, des commerces, trois boulangeries, un supermarché, une épicerie et deux boucheries-charcuteries dans les environs. Ne manquez pas le marché Centre-Ville tous les vendredis matin.Il est à vendre pour la somme de 47 000 €. Contactez notre agence (ROGER Samuel : (Numéro supprimé)) pour tout renseignement sur ce terrain, sur les démarches à suivre ou sur les modalités de vente.
Lanvollon
TERRAIN ET MAISONLanvollon : maison T4 (86 m²) à vendrePROCHE DE SAINT-BRIEUC – MAISON 4 PIÈCES NEUVEEn vente : à 13 km de la Manche et à quelques kilomètres de Saint-Brieuc, Maisons de l’Avenir Saint-Brieuc vous présente cette maison de 4 pièces de 86 m² à Lanvollon (22290).Il s’agit d’une maison de 2 niveaux. Son intérieur se divise en trois chambres, une cuisine et une salle de bains. La maison est neuve.Le terrain de la propriété est de 371 m².Le Collège Privé Notre-Dame, l’École Primaire Privée Sacré Coeur et l’École Primaire Publique de Lanvollon sont implantés à moins de 10 minutes à pied, tout comme une crèche. La nationale N12 est accessible à 11 km. On trouve deux tennis, des commerces, trois boulangeries, un supermarché, une épicerie et une supérette à quelques minutes. Enfin, le marché Centre-Ville a lieu tous les vendredis matin.Elle est à vendre pour la somme de 215 000 €.N’hésitez pas à prendre contact avec notre agence (Samuel ROGER : (Numéro supprimé)) pour toute question sur la maison et sur les démarches à suivre.
Lanvollon
TERRAIN ET MAISONLanvollon : maison de 5 pièces (80 m²) en venteMAISON 5 PIÈCES NEUVE – PROCHE DE SAINT-BRIEUCEn vente : à 13 km de la Manche et à deux pas de Saint-Brieuc, votre agence Maisons de l’Avenir Saint-Brieuc est ravie de vous proposer à Lanvollon (22290), cette maison de 5 pièces de 80 m² et de 371 m² de terrain.Cette maison compte 2 niveaux. Elle se divise en quatre chambres, une cuisine et une salle de bains. La maison est neuve.Le Collège Privé Notre-Dame, l’École Primaire Privée Sacré Coeur et l’École Primaire Publique de Lanvollon sont implantés à moins de 10 minutes à pied, tout comme une structure d’accueil pour la petite enfance. Il y a un accès à la nationale N12 à 11 km. Il y a deux tennis, des commerces, trois boulangeries, un supermarché, une supérette et une poissonnerie à quelques minutes. Ne manquez pas le marché Centre-Ville chaque vendredi matin.Son prix de vente est de 200 000 €.N’hésitez pas à prendre contact avec notre agence (ROGER Samuel : (Numéro supprimé)) pour tout renseignement sur cette maison. Faites de vos projets immobiliers une réalité avec Maisons de l’Avenir Saint-Brieuc.
Lanvollon
TERRAIN ET MAISONVENTE d’une maison de 4 pièces (70 m²) à LanvollonMAISON 4 PIÈCES NEUVE – PROCHE DE SAINT-BRIEUCÀ 13 km de la Manche et à 22 km de Saint-Brieuc, nous vous proposons en vente à Lanvollon (22290), cette maison de 4 pièces de plain-pied de 70 m².Son intérieur propose trois chambres, une cuisine et une salle de bains. La maison est neuve.Le terrain du bien est de 371 m².Le Collège Privé Notre-Dame, l’École Primaire Privée Sacré Coeur et l’École Primaire Publique de Lanvollon sont implantés à moins de 10 minutes à pied, tout comme une crèche. On trouve un accès à la nationale N12 à 11 km. Il y a deux tennis, des commerces, trois boulangeries, un supermarché, une épicerie et une poissonnerie à proximité de la maison. Enfin, le marché Centre-Ville a lieu chaque vendredi matin.Elle est à vendre pour la somme de 185 000 €.Contactez notre agence (Samuel ROGER : (Numéro supprimé)) pour toute information sur cette maison. Faites de vos projets immobiliers une réalité avec Maisons de l’Avenir Saint-Brieuc.
Lanvollon
TERRAINVENTE : terrain de 508 m² à LanvollonPROCHE DE SAINT-BRIEUCÀ 13 km de la Manche et à 22 km de Saint-Brieuc à Lanvollon (22290), grand terrain. Réalisez-y votre projet immobilier. Le Collège Privé Notre-Dame, l’École Primaire Privée Sacré Coeur et l’École Primaire Publique de Lanvollon sont implantés à moins de 10 minutes à pied, tout comme une structure d’accueil pour les enfants en bas âge. La nationale N12 est accessible à 11 km. Il y a deux tennis, des commerces, trois boulangeries, un supermarché, une supérette et une poissonnerie à quelques minutes. Enfin, le marché Centre-Ville a lieu chaque vendredi matin.Il est proposé à l’achat pour 59 000 €. Prenez contact avec Samuel ROGER ((Numéro supprimé)) pour plus de renseignements sur ce terrain.
Lanvollon
TERRAIN ET MAISONLanvollon : maison de 5 pièces (89 m²) en ventePROCHE DE SAINT-BRIEUC – MAISON 5 PIÈCES NEUVEEn vente à 13 km de la Manche et à 22 km de Saint-Brieuc, Maisons de l’Avenir Saint-Brieuc vous propose cette maison de 5 pièces de 89 m² et de 508 m² de terrain à Lanvollon (22290).Cette maison comporte 2 niveaux. Elle offre quatre chambres, une cuisine et deux salles de bains. Cette maison est neuve.Il y a le Collège Privé Notre-Dame, l’École Primaire Privée Sacré Coeur et l’École Primaire Publique de Lanvollon à moins de 10 minutes à pied et une structure d’accueil pour la petite enfance. On trouve un accès à la nationale N12 à 11 km. On trouve deux tennis, des commerces, trois boulangeries, un supermarché, une poissonnerie et une épicerie à proximité du logement. Ne manquez pas le marché Centre-Ville tous les vendredis matin.Il est proposé à l’achat pour 254 000 €.Contactez notre agence (ROGER Samuel : (Numéro supprimé)) pour tout renseignement sur la maison.
Lanvollon
TERRAIN ET MAISONVENTE : maison de 4 pièces (80 m²) à LanvollonPROCHE DE SAINT-BRIEUC – MAISON 4 PIÈCES NEUVEEn vente à 13 km de la Manche et à deux pas de Saint-Brieuc, à Lanvollon (22290), Maisons de l’Avenir Saint-Brieuc vous présente cette maison de 4 pièces de plain-pied de 80 m² et de 508 m² de terrain.Conçue de plain-pied, elle est composée de trois chambres, d’une cuisine et d’une salle de bains. Cette maison est neuve.Le Collège Privé Notre-Dame, l’École Primaire Privée Sacré Coeur et l’École Primaire Publique de Lanvollon sont implantés à moins de 10 minutes à pied, tout comme une structure d’accueil pour les tout-petits. Il y a un accès à la nationale N12 à 11 km. On trouve deux tennis, des commerces, trois boulangeries, un supermarché, un bureau de poste et une supérette à proximité. Ne manquez pas le marché Centre-Ville tous les vendredis matin.Elle est à vendre pour la somme de 220 000 €.Prenez contact avec notre agence (ROGER Samuel : (Numéro supprimé)) pour toute information sur la maison, sur les modalités de vente ou sur les démarches à suivre.
Lanvollon
TERRAIN ET MAISONVENTE d’une maison de 4 pièces (88 m²) à LanvollonMAISON 4 PIÈCES NEUVE – PROCHE DE SAINT-BRIEUCÀ 13 km de la Manche et à 22 km de Saint-Brieuc, Maisons de l’Avenir Saint-Brieuc vous propose en vente à Lanvollon (22290), cette maison de 4 pièces de 88 m². Elle se divise en quatre chambres, une cuisine et une salle de bains.Le terrain de cette maison est de 508 m².Il s’agit d’une maison de 2 niveaux. Elle est neuve.Le Collège Privé Notre-Dame, l’École Primaire Privée Sacré Coeur et l’École Primaire Publique de Lanvollon sont implantés à moins de 10 minutes à pied, tout comme une crèche. Il y a un accès à la nationale N12 à 11 km. Il y a deux tennis, des commerces, trois boulangeries, un supermarché, une supérette et un bureau de poste à proximité. Ne manquez pas le marché Centre-Ville chaque vendredi matin.Elle est à vendre pour la somme de 250 000 €.N’hésitez pas à prendre contact avec Samuel ROGER ((Numéro supprimé)) pour toute question sur la maison. Maisons de l’Avenir Saint-Brieuc est là pour vous accompagner dans toutes vos démarches.
Plouha
TERRAINTerrain de 450 m² en vente à PlouhaPROCHE DE SAINT-BRIEUCEn vente à 6 km de la Manche et à deux pas de Saint-Brieuc à Plouha (22580), terrain de 450 m². Réalisez-y la maison de vos rêves. Il y a l’École Primaire Publique Mona et Jacques Ozouf, le Collège Jean Louis Hamon et l’École Primaire Privée Saint Yves à moins de 10 minutes à pied. On trouve un accès à la nationale N12 à 16 km. On trouve un tennis, une bibliothèque, trois boulangeries, des commerces, un bureau de poste, une épicerie et deux boucheries-charcuteries à proximité du terrain. Enfin, le marché Place de l’église anime les environs tous les mercredis matin.Il est proposé à l’achat pour 68 000 €. Contactez Samuel ROGER (tél : (Numéro supprimé)) pour toute question sur ce terrain.
L’actualité immobilière à Lanvollon
27/11/2023
02/11/2023
30/10/2023
20/10/2023
16/10/2023
16/10/2023