Maison à construire à Ploubazlanec (22620)
Images
Description
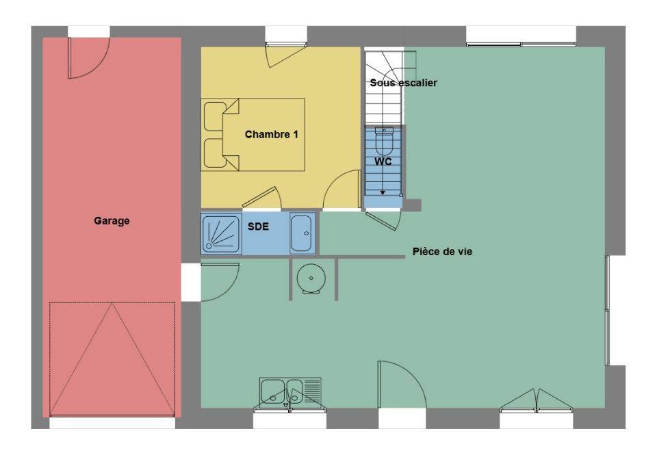
Maison de 6 pièces (119 m²) en vente à Ploubazlanec
MAISON 6 PIÈCES NEUVE
En vente à 4 km de la Manche, nous sommes heureux de vous présenter cette maison de 6 pièces de 119 m² à Ploubazlanec (22620). Son intérieur se divise en cinq chambres, une cuisine et deux salles de bains.
Le terrain du bien est de 353 m².
Cette maison comporte 2 niveaux. Elle est neuve.
L'École Primaire Publique de Ploubazlanec et l'École Primaire Privée Saint Denis sont implantées à moins de 10 minutes à pied. Côté transports en commun, il y a les gares Paimpol, Lancerf et Traou Nez à moins de 10 minutes en voiture. On trouve un tennis, trois boulangeries, deux commerces, un supermarché et une boucherie-charcuterie à proximité du logement.
Elle est à vendre pour la somme de 320 000 €.
N'hésitez pas à prendre contact avec Samuel ROGER (tél : (Numéro supprimé)) pour obtenir de plus amples informations sur cette maison.
Logement susceptibles de vous intéresser
Nous vous proposons de découvrir aussi cette sélection de logements situés à moins de 10km de Ploubazlanec et qui seraient susceptibles de vous intéresser.
Ploubazlanec
TERRAINVENTE d’un terrain de 448 m² à PloubazlanecÀ Ploubazlanec (22620) en vente à 4 km de la Manche, imaginez la maison de vos rêves sur ce terrain de 448 m². Ce terrain est proche des écoles et des commerces. Il y a l’École Primaire Publique de Ploubazlanec et l’École Primaire Privée Saint Denis à moins de 10 minutes à pied. Côté transports, on trouve trois gares (Paimpol, Lancerf et Traou Nez) à moins de 10 minutes en voiture. Il y a un tennis, trois boulangeries, deux commerces, un supermarché et une boucherie-charcuterie à proximité de la propriété.Il est à vendre pour la somme de 87 900 €. Prenez contact avec Samuel ROGER (tél : (Numéro supprimé)) pour toute information sur ce terrain, sur les démarches à suivre ou sur les modalités de vente. Donnez vie à vos projets immobiliers avec Maisons de l’Avenir Saint-Brieuc.
Ploubazlanec
TERRAIN ET MAISONMaison de 4 pièces (92 m²) en vente à PloubazlanecMAISON 4 PIÈCES NEUVEÀ vendre : à 4 km de la Manche, nous vous proposons à Ploubazlanec (22620), cette maison de 4 pièces de 92 m². Elle est composée de trois chambres, d’une cuisine et d’une salle de bains.Le terrain de cette maison s’étend sur 448 m².C’est une maison de 2 niveaux. Elle est neuve.L’École Primaire Publique de Ploubazlanec et l’École Primaire Privée Saint Denis sont implantées à moins de 10 minutes à pied. Côté transports, il y a les gares Paimpol, Lancerf et Traou Nez à moins de 10 minutes en voiture. On trouve un tennis, trois boulangeries, deux commerces, un supermarché et une boucherie-charcuterie à quelques minutes.Son prix de vente est de 287 900 €.Contactez Samuel ROGER (tél : (Numéro supprimé)) pour obtenir de plus amples informations sur cette maison, sur les modalités de vente et sur les démarches à suivre. Maisons de l’Avenir Saint-Brieuc est là pour vous accompagner dans tous vos projets immobiliers.
Ploubazlanec
TERRAIN ET MAISONVENTE : maison F4 (80 m²) à PloubazlanecMAISON 4 PIÈCES NEUVEÀ vendre : à 4 km de la Manche, Maisons de l’Avenir Saint-Brieuc vous présente cette maison de 4 pièces de plain-pied de 80 m² et de 448 m² de terrain à Ploubazlanec (22620). Elle propose trois chambres, une cuisine et une salle de bains.La maison est neuve.On trouve l’École Primaire Publique de Ploubazlanec et l’École Primaire Privée Saint Denis à moins de 10 minutes à pied. Côté transports en commun, il y a trois gares (Paimpol, Lancerf et Traou Nez) à moins de 10 minutes en voiture. On trouve un tennis, trois boulangeries, deux commerces, un supermarché et une boucherie-charcuterie dans les environs.Il est à vendre pour la somme de 267 900 €.Contactez notre agence (ROGER Samuel : (Numéro supprimé)) pour plus d’informations sur la maison, sur les démarches à suivre ou sur les modalités de vente. Maisons de l’Avenir Saint-Brieuc vous accompagne à toutes les étapes de votre projet et dans tous vos projets immobiliers.
Ploubazlanec
TERRAIN ET MAISONVENTE d’une maison de 4 pièces (70 m²) à PloubazlanecMAISON 4 PIÈCES NEUVEEn vente : à 4 km de la Manche, Maisons de l’Avenir Saint-Brieuc vous propose à Ploubazlanec (22620), cette maison de 4 pièces de plain-pied de 70 m².Conçue de plain-pied, elle offre trois chambres, une cuisine et une salle de bains. Cette maison est neuve.Le terrain de la propriété s’étend sur 448 m².L’École Primaire Publique de Ploubazlanec et l’École Primaire Privée Saint Denis se trouvent à moins de 10 minutes à pied. Niveau transports, il y a les gares Paimpol, Lancerf et Traou Nez à moins de 10 minutes en voiture. On trouve un tennis, trois boulangeries, deux commerces, un supermarché et une boucherie-charcuterie dans les environs.Son prix de vente est de 240 000 €.Contactez notre agence (ROGER Samuel : (Numéro supprimé)) pour toute information sur la maison ou sur les modalités de vente. Maisons de l’Avenir Saint-Brieuc vous accompagne dans toutes vos démarches et dans tous vos projets immobiliers.
Ploubazlanec
TERRAINPloubazlanec : terrain de 335 m² à vendreÀ 4 km de la Manche à Ploubazlanec (22620), terrain de 335 m². Réalisez-y votre projet immobilier. Il y a l’École Primaire Publique de Ploubazlanec et l’École Primaire Privée Saint Denis à moins de 10 minutes à pied. Niveau transports, on trouve les gares Paimpol, Lancerf et Traou Nez à moins de 10 minutes en voiture. Il y a un tennis, trois boulangeries, deux commerces, un supermarché et une boucherie-charcuterie à proximité du terrain.Il est proposé à l’achat pour 47 900 €. N’hésitez pas à prendre contact avec Samuel ROGER ((Numéro supprimé)) pour obtenir de plus amples informations sur ce terrain ou sur les modalités de vente.
Ploubazlanec
TERRAIN ET MAISONVENTE d’une maison F4 (73 m²) à PloubazlanecMAISON 4 PIÈCES NEUVEEn vente à 4 km de la Manche, laissez vous charmer par cette maison de 4 pièces de 73 m² et de 335 m² de terrain à Ploubazlanec (22620).Il s’agit d’une maison de 2 niveaux. Son intérieur dispose de trois chambres, d’une cuisine et d’une salle de bains. Cette maison est neuve.Il y a l’École Primaire Publique de Ploubazlanec et l’École Primaire Privée Saint Denis à moins de 10 minutes à pied. Niveau transports, on trouve trois gares (Paimpol, Lancerf et Traou Nez) à moins de 10 minutes en voiture. Il y a un tennis, trois boulangeries, deux commerces, un supermarché et une boucherie-charcuterie à proximité.Son prix de vente est de 193 900 €.N’hésitez pas à prendre contact avec Samuel ROGER ((Numéro supprimé)) pour obtenir de plus amples informations sur la maison.
Ploubazlanec
TERRAIN ET MAISONVENTE : maison de 4 pièces (75 m²) à PloubazlanecMAISON 4 PIÈCES NEUVEÀ vendre à 4 km de la Manche, votre agence Maisons de l’Avenir Saint-Brieuc est ravie de vous proposer cette maison de 4 pièces de 75 m² à Ploubazlanec (22620). Elle se divise en trois chambres, une cuisine et une salle de bains.Le terrain de cette maison est de 335 m².Il s’agit d’une maison de 2 niveaux. Elle est neuve.Il y a l’École Primaire Publique de Ploubazlanec et l’École Primaire Privée Saint Denis à moins de 10 minutes à pied. Côté transports en commun, on trouve trois gares (Paimpol, Lancerf et Traou Nez) à moins de 10 minutes en voiture. Il y a un tennis, trois boulangeries, deux commerces, un supermarché et une boucherie-charcuterie dans les environs.Son prix de vente est de 217 900 €.Contactez Samuel ROGER ((Numéro supprimé)) pour obtenir de plus amples renseignements sur la maison ou sur les modalités de vente. Donnez vie à vos projets immobiliers avec Maisons de l’Avenir Saint-Brieuc.
Ploubazlanec
TERRAIN ET MAISONVENTE d’une maison T5 (91 m²) à PloubazlanecMAISON 5 PIÈCES NEUVEÀ 4 km de la Manche, en vente à Ploubazlanec (22620), venez découvrir cette maison de 5 pièces de 91 m². Son intérieur inclut quatre chambres, une cuisine et deux salles de bains.Le terrain de cette maison est de 335 m².Il s’agit d’une maison de 2 niveaux. Elle est neuve.L’École Primaire Publique de Ploubazlanec et l’École Primaire Privée Saint Denis sont implantées à moins de 10 minutes à pied. Niveau transports en commun, il y a les gares Paimpol, Lancerf et Traou Nez à moins de 10 minutes en voiture. On trouve un tennis, trois boulangeries, deux commerces, un supermarché et une boucherie-charcuterie à quelques minutes du bien.Son prix de vente est de 230 000 €.Prenez contact avec Samuel ROGER (tél : (Numéro supprimé)) pour tout renseignement sur la maison, sur les modalités de vente ou sur les démarches à suivre.
Ploubazlanec
TERRAINVENTE : terrain de 353 m² à PloubazlanecÀ Ploubazlanec (22620) à 4 km de la Manche, imaginez la maison de vos rêves sur ce terrain de 353 m². L’École Primaire Publique de Ploubazlanec et l’École Primaire Privée Saint Denis sont implantées à moins de 10 minutes à pied. Niveau transports en commun, on trouve les gares Paimpol, Lancerf et Traou Nez à moins de 10 minutes en voiture. Il y a un tennis, trois boulangeries, deux commerces, un supermarché et une boucherie-charcuterie à quelques minutes à peine.Il est à vendre pour la somme de 64 900 €. Prenez contact avec notre agence (ROGER Samuel : (Numéro supprimé)) pour toute question sur le terrain, sur les modalités de vente ou sur les démarches à suivre. Maisons de l’Avenir Saint-Brieuc est là pour vous accompagner dans tous vos projets immobiliers.
L’actualité immobilière à Ploubazlanec
27/11/2023
02/11/2023
30/10/2023
20/10/2023
16/10/2023
16/10/2023