Maison à construire à Saint-Carné (22100)
Images
Description
VENTE d'une maison de 5 pièces (102 m²) à Saint-Carné
IDÉALEMENT SITUÉE - PROCHE DE DINAN
MAISON 5 PIÈCES NEUVE
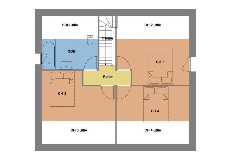
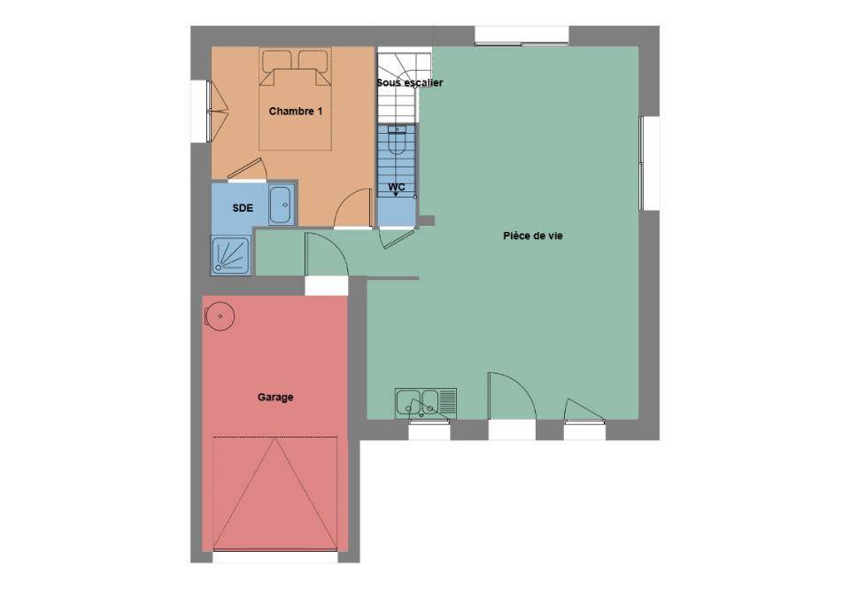
En vente à 15 km de la Manche et à 25 km de Saint-Malo, notre agence Maisons de l'Avenir Saint-Carné est heureuse de vous présenter, idéalement située dans Saint-Carné (22100), cette maison de 5 pièces de 102 m² et de 698 m² de terrain.
Cette maison compte 2 niveaux. Son intérieur se divise en quatre chambres, une cuisine et deux salles de bains. Cette maison est neuve.
La maison est située dans un secteur recherché. On trouve l'École Primaire Publique Norbert Guitton à moins de 10 minutes à pied. Côté transports, il y a la gare Dinan à moins de 10 minutes en voiture. On trouve un accès à la nationale N176 à 5 km. On trouve une bibliothèque à proximité.
Son prix de vente est de 278 500 €.
N'hésitez pas à prendre contact avec Laetitia AMIRI (tél : (Numéro supprimé)) pour obtenir de plus amples informations sur le bien ou sur les modalités de vente. Faites de vos projets immobiliers une réalité avec Maisons de l'Avenir Saint-Carné.
Logement susceptibles de vous intéresser
Nous vous proposons de découvrir aussi cette sélection de logements situés à moins de 10km de Saint-Carné et qui seraient susceptibles de vous intéresser.
Dinan
TERRAINVENTE : terrain de 312 m² à DinanCENTRE-VILLE – PROCHE GAREÀ Dinan (22100) à vendre à 10 km de la Manche et à 21 km de Saint-Malo, donnez vie à votre résidence principale ou secondaire sur ce terrain de 312 m². Il est situé en centre-ville. Il y a des écoles de tous niveaux à moins de 10 minutes à pied. Niveau transports, on trouve la gare Dinan à quelques pas du terrain. La nationale N176 est accessible à 2 km. Il y a une bibliothèque, un tennis, des commerces, des boulangeries, un supermarché, des boucheries-charcuteries et des épiceries à quelques minutes. Ne manquez pas le marché Place Duguesclin tous les jeudis matin.Il est proposé à l’achat pour 163 600 €. Contactez Cyril RENVAZE ((Numéro supprimé)) pour tout renseignement sur ce terrain, sur les démarches à suivre et sur les modalités de vente. Maisons de l’Avenir Cesson-Sévigné vous accompagne à toutes les étapes de l’achat et dans tous vos projets immobiliers.
Dinan
TERRAIN ET MAISONVENTE : maison F4 (95 m²) à DinanCENTRE-VILLE – MAISON 4 PIÈCES NEUVEÀ 10 km de la Manche et à 21 km de Saint-Malo, ayez le coup de coeur pour cette maison de 4 pièces de 95 m² et de 312 m² de terrain à vendre en centre-ville de Dinan (22100).Il s’agit d’une maison de 2 niveaux. Son intérieur comporte trois chambres, une cuisine et deux salles de bains. Elle est proposée à l’achat pour 378 100 €.Contactez notre agence (Cyril RENVAZE : (Numéro supprimé)) pour tout renseignement sur la maison ou sur les démarches à suivre. Faites de vos projets immobiliers une réalité avec Maisons de l’Avenir Cesson-Sévigné.
Dinan
TERRAIN ET MAISONMaison F4 (75 m²) en vente à DinanCENTRE-VILLE – MAISON 4 PIÈCES NEUVEEn vente à 10 km de la Manche et à quelques kilomètres de Saint-Malo, notre agence Maisons de l’Avenir Cesson-Sévigné est ravie de vous présenter cette maison de 4 pièces de plain-pied de 75 m² dans le centre de Dinan (22100). Elle comporte trois chambres, une cuisine et une salle de bains.Le terrain de la propriété est de 312 m².Elle est à vendre pour la somme de 328 600 €.Contactez notre constructeur (RENVAZE Cyril : (Numéro supprimé)) pour toute information sur la maison et sur les modalités de vente. Concrétisez vos projets immobiliers avec Maisons de l’Avenir Cesson-Sévigné.
Dinan
TERRAIN ET MAISONDinan : maison T4 (95 m²) en venteCENTRE-VILLE – MAISON 4 PIÈCES NEUVEÀ vendre : localisée à 10 km de la Manche et à quelques kilomètres de Saint-Malo, Maisons de l’Avenir Cesson-Sévigné vous présente cette maison de 4 pièces de 95 m² dans le centre de Dinan (22100). Son intérieur se divise en trois chambres, une cuisine et deux salles de bains.Le terrain du bien est de 312 m².C’est une maison de 2 niveaux. Elle est proposée à l’achat pour 387 600 €.Contactez Cyril RENVAZE (tél : (Numéro supprimé)) pour obtenir de plus amples informations sur la maison ou sur les modalités de vente. Maisons de l’Avenir Cesson-Sévigné vous accompagne dans toutes vos démarches et à toutes les étapes de votre projet.
Dinan
TERRAIN ET MAISONMaison de 5 pièces (105 m²) à vendre à DinanCENTRE-VILLE – MAISON 5 PIÈCES NEUVEEn vente à 10 km de la Manche et à 21 km de Saint-Malo, ayez le coup de coeur pour cette maison de 5 pièces de 105 m² dans le centre de Dinan (22100). Son intérieur dispose de quatre chambres, d’une cuisine et de deux salles de bains.Le terrain de cette maison s’étend sur 312 m².Cette maison compte 2 niveaux. Elle est à vendre pour la somme de 409 600 €.N’hésitez pas à prendre contact avec Cyril RENVAZE (tél : (Numéro supprimé)) pour toute information sur la maison ou sur les modalités de vente.
Bobital
TERRAINBobital : terrain de 238 m² en ventePROCHE DE SAINT-MALOÀ Bobital (22100) à 18 km de la Manche et à deux pas de Saint-Malo, projetez la maison de vos rêves sur ce terrain de 238 m². Son prix de vente est de 37 700 €. Contactez Cyril RENVAZE ((Numéro supprimé)) pour tout renseignement sur le terrain, sur les modalités de vente ou sur les démarches à suivre. Donnez vie à vos projets immobiliers avec Maisons de l’Avenir Cesson-Sévigné.
Bobital
TERRAIN ET MAISONBobital : maison de 4 pièces (80 m²) à vendrePROCHE DE SAINT-MALO – MAISON 4 PIÈCES NEUVEÀ 18 km de la Manche et à 27 km de Saint-Malo, nous vous proposons cette maison de 4 pièces de plain-pied de 80 m² à Bobital (22100).Elle se divise en trois chambres, une cuisine et une salle de bains. Cette maison est neuve.Le terrain du bien s’étend sur 238 m².Elle est à vendre pour la somme de 213 700 €.Contactez Cyril RENVAZE (tél : (Numéro supprimé)) pour toute information sur cette maison, sur les démarches à suivre ou sur les modalités de vente. Maisons de l’Avenir Cesson-Sévigné est là pour vous accompagner dans tous vos projets immobiliers.
Bobital
TERRAIN ET MAISONMaison de 4 pièces (95 m²) à vendre à BobitalPROCHE DE SAINT-MALO – MAISON 4 PIÈCES NEUVEÀ 18 km de la Manche et à deux pas de Saint-Malo, votre agence Maisons de l’Avenir Cesson-Sévigné est heureuse de vous proposer cette maison de 4 pièces de plain-pied de 95 m² en vente à Bobital (22100).Elle inclut trois chambres, une cuisine et une salle de bains. La maison est neuve.Le terrain du bien est de 238 m².Elle est proposée à l’achat pour 261 700 €.Prenez contact avec Cyril RENVAZE (tél : (Numéro supprimé)) pour tout renseignement sur la maison et sur les démarches à suivre.
Bobital
TERRAIN ET MAISONBobital : maison T5 (100 m²) à vendrePROCHE DE SAINT-MALO – MAISON 5 PIÈCES NEUVEÀ 18 km de la Manche et à 27 km de Saint-Malo, Maisons de l’Avenir Cesson-Sévigné vous présente en vente à Bobital (22100), cette maison de 5 pièces de 100 m² et de 238 m² de terrain.Cette maison comporte 2 niveaux. Son intérieur propose quatre chambres, une cuisine et deux salles de bains. Elle est à vendre pour la somme de 272 700 €.Contactez notre agence (Cyril RENVAZE : (Numéro supprimé)) pour plus d’informations sur la maison, sur les démarches à suivre ou sur les modalités de vente. Faites de vos projets immobiliers une réalité avec Maisons de l’Avenir Cesson-Sévigné.
L’actualité immobilière à Saint-Carné
27/11/2023
02/11/2023
30/10/2023
20/10/2023
16/10/2023
16/10/2023