Images
Description
Sur ce terrain, nous vous proposons cette maison neuve : le modèle Cazaux, une maison traditionnelle de plain-pied conçue par Maisons Omega, détenteur du label Maisons de Qualité.
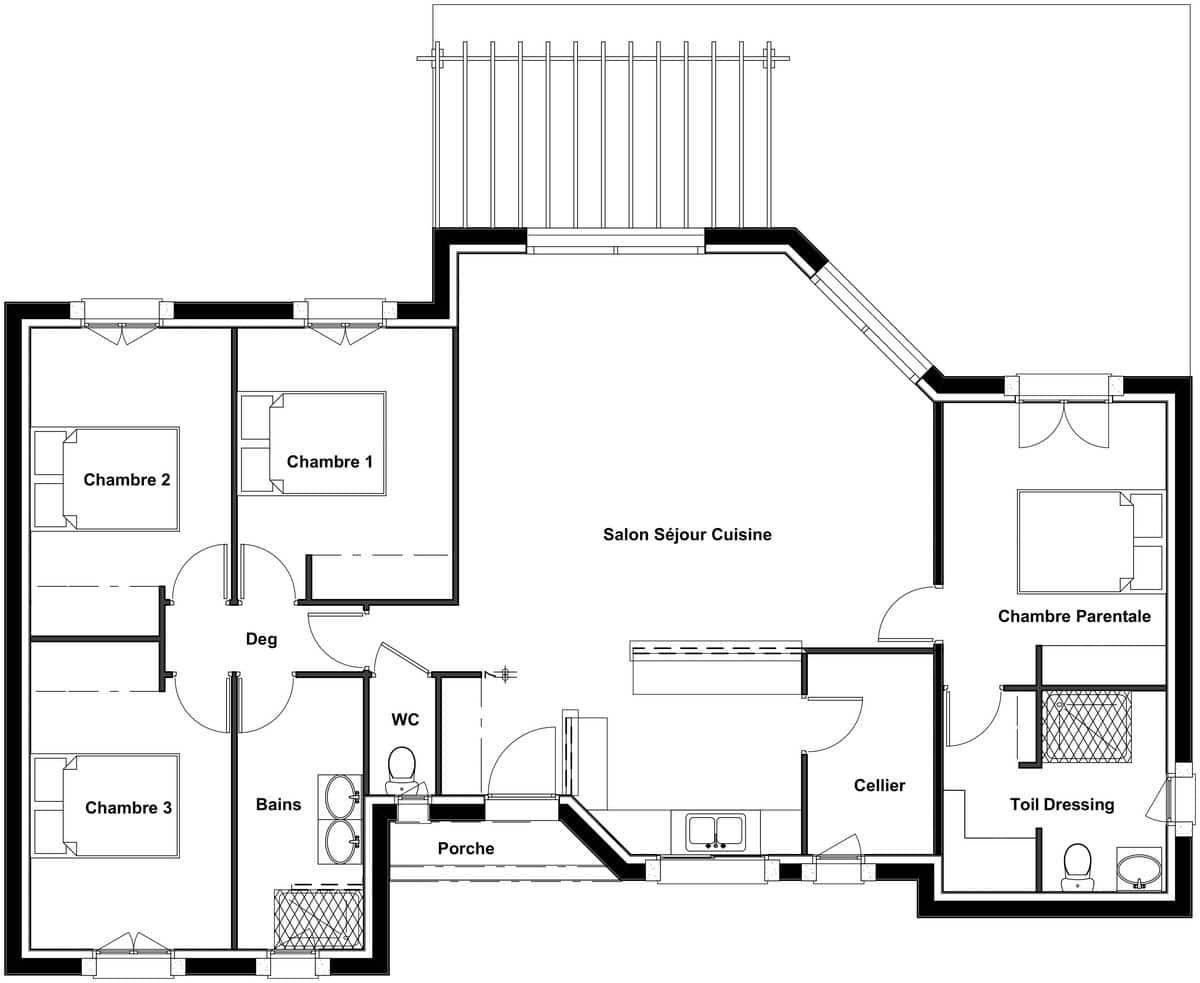
Un charme énorme pour ce plain-pied de 4 chambres avec suite parentale, comportant un bel espace de vie et un coin nuit enfants. Sa surface de 111 m² est largement suffisante pour accueillir toute votre famille dans de grands volumes intelligemment pensés. Les parents disposeront d’un espace isolé des chambres enfants, avec dressing et salle d’eau. Le salon-séjour central et traversant, avec cuisine américaine, est aussi spacieux que lumineux. Ce modèle dispose également d’un cellier.
Espace et originalité pour cette belle demeure sur un seul niveau. C’est un modèle doté d’une entrée protégée par un porche ainsi qu’une pergola, idéale pour profiter des beaux jours. Il est disponible avec un toit à 2 ou 4 pans et des volets roulants ou battants. En option, il est possible d’ajouter un carport, une des options les plus demandées par nos clients.
Cette maison neuve est basse consommation et conforme à la RE2020, garantissant ainsi des performances énergétiques optimales et un confort de vie inégalé.
Ne manquez pas cette opportunité unique de devenir propriétaire d'une maison moderne, économe en énergie et parfaitement adaptée à vos besoins. Contactez-nous dès aujourd'hui pour plus d'informations !
Logement susceptibles de vous intéresser
Nous vous proposons de découvrir aussi cette sélection de logements situés à moins de 10km de Coursac et qui seraient susceptibles de vous intéresser.
Saint-Astier
TERRAIN ET MAISONMaison de 3 pièces (100 m²) en vente à Saint-Germain-du-SalembreEMPLACEMENT PRIVILÉGIÉ – MAISON 3 PIÈCES NEUVEEn vente à quelques kilomètres de Périgueux, notre agence Maisons de la Côte Atlantique Notre Dame de Sanilhac est heureuse de vous proposer cette maison de 3 pièces de plain-pied de 100 m² bénéficiant d’un emplacement d’exception dans Saint-Germain-du-Salembre (24190).Son intérieur propose trois chambres, une cuisine et deux salles de bains. Cette maison est neuve.Le terrain de la propriété s’étend sur 800 m².Ce bien se situe dans un secteur attractif. On y trouve une école primaire. Niveau transports en commun, il y a quatre gares à moins de 10 minutes en voiture. Il y a un accès à l’autoroute A89 à 8 km. On trouve une boulangerie et un bureau de poste à quelques minutes du bien.Il est à vendre pour la somme de 174 000 €.Contactez Arnaud LAFAYSSE ((Numéro supprimé)) pour obtenir de plus amples informations sur la maison et sur les démarches à suivre. Maisons de la Côte Atlantique Notre Dame de Sanilhac vous accompagne dans tous vos projets immobiliers et dans toutes vos démarches.
Saint-Astier
TERRAIN ET MAISONSaint-Germain-du-Salembre : maison F6 (100 m²) à vendreEMPLACEMENT PRIVILÉGIÉ – MAISON 6 PIÈCES NEUVEÀ vendre : située à deux pas de Périgueux, bénéficiant d’un emplacement privilégié dans Saint-Germain-du-Salembre (24190), Maisons de la Côte Atlantique Notre Dame de Sanilhac vous propose cette maison de 6 pièces de plain-pied de 100 m². Conçue de plain-pied, elle inclut trois chambres, une cuisine et deux salles de bains.Le terrain de la propriété s’étend sur 800 m².Cette maison est neuve.La maison est située dans un secteur attractif. On y trouve une école primaire. Niveau transports en commun, on trouve quatre gares à moins de 10 minutes en voiture. L’autoroute A89 est accessible à 8 km. Il y a une boulangerie et un bureau de poste à quelques minutes du logement.Son prix de vente est de 196 700 €.Prenez contact avec notre agence (Arnaud LAFAYSSE : (Numéro supprimé)) pour tout renseignement sur la maison, sur les modalités de vente et sur les démarches à suivre. Maisons de la Côte Atlantique Notre Dame de Sanilhac est là pour vous accompagner dans tous vos projets immobiliers.
Marsac-sur-l'Isle
TERRAINMarsac-sur-l’Isle : terrain de 836 m² à vendreIDÉALEMENT SITUÉ – PROCHE DE PÉRIGUEUXÀ Marsac-sur-l’Isle (24430) à vendre à quelques kilomètres de Périgueux, donnez vie à votre résidence principale ou secondaire sur ce terrain de 836 m². Ce terrain, exposé sud, donne sur un jardin. Dans un quartier recherché, le terrain idéalement situé est proche des écoles et des commerces. Il y a une école maternelle dans le quartier. Niveau transports, on trouve la gare La Cave à moins de 10 minutes à pied. Il y a un accès à l’autoroute A89 à 7 km. Il y a deux commerces à quelques minutes du bien.Ce terrain est à vendre pour la somme de 44 500 €. N’hésitez pas à prendre contact avec notre agence (VERGNAUD Bruno : (Numéro supprimé)) pour plus de renseignements sur le terrain.
Marsac-sur-l'Isle
TERRAIN ET MAISONMaison T4 (80 m²) en vente à Marsac-sur-l’IsleIDÉALEMENT SITUÉE – MAISON 4 PIÈCES NEUVEÀ vendre : à 5 km de Périgueux, Maisons de la Côte Atlantique Notre Dame de Sanilhac vous propose, idéalement située dans Marsac-sur-l’Isle (24430), cette maison de 4 pièces de plain-pied de 80 m² et de 836 m² de terrain. Elle est composée de trois chambres, d’une cuisine et d’une salle de bains.Cette maison est neuve.Cette maison se trouve dans un secteur convoité. Une école maternelle y est implantée. Côté transports en commun, il y a la gare La Cave à moins de 10 minutes à pied. Il y a un accès à l’autoroute A89 à 7 km. On trouve deux commerces à proximité.Elle est proposée à l’achat pour 178 758 €.Prenez contact avec Bruno VERGNAUD ((Numéro supprimé)) pour toute question sur la maison, sur les modalités de vente ou sur les démarches à suivre.
Marsac-sur-l'Isle
TERRAIN ET MAISONVENTE : maison de 4 pièces (100 m²) à Marsac-sur-l’IsleIDÉALEMENT SITUÉE – MAISON 4 PIÈCES NEUVEEn vente à quelques kilomètres de Périgueux, idéalement située dans Marsac-sur-l’Isle (24430), laissez vous charmer par cette maison de 4 pièces de plain-pied de 100 m².Elle est composée de trois chambres, d’une cuisine et de deux salles de bains. Cette maison est neuve.Le terrain du bien est de 836 m².La maison est située dans un quartier attractif. Une école maternelle y est implantée. Niveau transports, on trouve la gare La Cave à moins de 10 minutes à pied. Il y a un accès à l’autoroute A89 à 7 km. Il y a deux commerces à quelques minutes à peine.Elle est à vendre pour la somme de 199 656 €.N’hésitez pas à prendre contact avec notre agence (Bruno VERGNAUD : (Numéro supprimé)) pour tout renseignement sur la maison, sur les modalités de vente ou sur les démarches à suivre. Maisons de la Côte Atlantique Notre Dame de Sanilhac vous accompagne à toutes les étapes de l’achat et dans tous vos projets immobiliers.
Marsac-sur-l'Isle
TERRAIN ET MAISONMaison F3 (100 m²) à vendre à Marsac-sur-l’IsleIDÉALEMENT SITUÉE – MAISON 3 PIÈCES NEUVEEn vente : située à 5 km de Périgueux, idéalement située dans Marsac-sur-l’Isle (24430), Maisons de la Côte Atlantique Notre Dame de Sanilhac vous propose cette maison de 3 pièces de plain-pied de 100 m² et de 836 m² de terrain. Son intérieur comporte quatre chambres, une cuisine et deux salles de bains.La maison est neuve.La propriété se situe dans un secteur prisé. Une école maternelle y est implantée. Niveau transports en commun, il y a la gare La Cave à moins de 10 minutes à pied. L’autoroute A89 est accessible à 7 km. On trouve deux commerces à quelques minutes.Elle est proposée à l’achat pour 215 830 €.N’hésitez pas à prendre contact avec Bruno VERGNAUD (tél : (Numéro supprimé)) pour obtenir de plus amples renseignements sur la maison ou sur les modalités de vente.
Saint-Astier
TERRAINSitué dans la charmante commune de Saint-Astier (24110), à seulement 5mn du centre ville, ce terrain sélectionné parmi notre large gamme d’une bonne centaine de terrains disponibles à la vente actuellement, qui s’étend sur une surface de 3350m² est une opportunité idéale pour concrétiser un projet de construction dans un environnement paisible. Saint-Astier, réputée pour sa tranquillité et son cadre verdoyant, offre un cadre de vie agréable à ses résidents. Sa proximité avec les commodités telles que les écoles, les supermarchés et les transports en fait un lieu pratique au quotidien. De plus, la ville bénéficie d’un riche patrimoine culturel et historique, ajoutant une touche d’authenticité à ce cadre de vie paisible.Ce terrain, d’une surface totalement constructible, offre un potentiel illimité pour la réalisation d’un projet sur mesure. Sa position géographique stratégique, combinée à son environnement calme, en font un investissement sûr pour ceux en quête d’un lieu propice à la construction d’un foyer ou d’un projet immobilier prometteur.Les informations sur les risques auxquels ce bien est exposé sont disponibles sur le site Géorisques : www.georisques.gouv.frPrix de vente : 58 000 €Honoraires charge vendeurContactez votre consultant megAgence : Pascal SAUVALLE, Tél. : (Numéro supprimé), E-mail : (Email supprimé) – EI – Agent commercial immatriculé au RSAC de PERIGUEUX sous le numéro 390 877 660
Saint-Astier
TERRAINSitué dans la charmante ville de Saint-Astier (24110), ce terrain de 5135m² sélectionné parmi notre large gamme d’une bonne centaine de terrains disponibles à la vente actuellement en Dordogne, offre un cadre idéal pour construire la propriété de vos rêves. Connue pour son ambiance paisible et son environnement préservé, la ville dispose de toutes les commodités nécessaires à une vie confortable, telles que des écoles, des commerces, et des espaces verts propices à la détente. De plus, sa proximité avec divers points d’intérêts locaux en fait un emplacement recherché pour les familles ou les investisseurs en quête d’un cadre de vie agréable. Centre ville et gare à 5mn, A89 à 10mn.Ce terrain entièrement constructible, offre une opportunité unique de concrétiser votre projet de construction. Sa vaste étendue permet une liberté de conception, que ce soit pour la construction d’une maison spacieuse, des installations extérieures soignées, ou tout autre projet sur mesure. Imaginer et bâtir votre résidence idéale sur ce terrain représente une chance exceptionnelle d’allier confort et qualité de vie dans un environnement des plus attrayants.Les informations sur les risques auxquels ce bien est exposé sont disponibles sur le site Géorisques : www.georisques.gouv.frPrix de vente : 88 000 €Honoraires charge vendeurContactez votre consultant megAgence : Pascal SAUVALLE, Tél. : (Numéro supprimé), E-mail : (Email supprimé) – EI – Agent commercial immatriculé au RSAC de PERIGUEUX sous le numéro 390 877 660
Saint-Astier
TERRAINSitué dans la charmante ville de Saint-Astier (24110) en Dordogne-Périgord, ce terrain de 3200m² sélectionné parmi notre large gamme d’une bonne centaine de terrains disponibles à la vente actuellement offre un cadre paisible et attrayant pour la construction d’une nouvelle demeure. Saint-Astier, réputée pour son ambiance conviviale et son environnement préservé, propose une qualité de vie agréable à ses habitants. De plus, sa proximité avec des commodités telles que les écoles, les commerces et les services essentiels facilite le quotidien de ses résidents.Ce terrain entièrement constructible, offre une belle opportunité de réaliser un projet immobilier sur mesure. Sa surface généreuse permet d’envisager diverses configurations pour une future habitation, tout en laissant place à un jardin spacieux et aménageable. Idéalement situé, ce terrain constitue un investissement prometteur pour ceux en quête d’un cadre de vie serein, associant confort et tranquillité.Les informations sur les risques auxquels ce bien est exposé sont disponibles sur le site Géorisques : www.georisques.gouv.frPrix de vente : 57 500 €Honoraires charge vendeurContactez votre consultant megAgence : Pascal SAUVALLE, Tél. : (Numéro supprimé), E-mail : (Email supprimé) – EI – Agent commercial immatriculé au RSAC de PERIGUEUX sous le numéro 390 877 660
L’actualité immobilière à Coursac
27/11/2023
02/11/2023
30/10/2023
20/10/2023
16/10/2023
16/10/2023