Images
Description
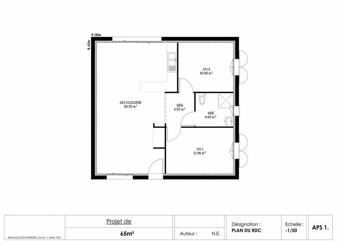
Sur ce terrain, nous vous proposons cette maison neuve : la Proissans. Conçue par Maisons Omega, détenteur du label Maisons de Qualité, cette demeure de 60 m² est idéale pour ceux qui recherchent un excellent rapport qualité/prix.
Une petite maison de charme bien conçue
Si vous cherchez une maison de dimensions raisonnables pour bien commencer dans la vie, ne cherchez plus ! Le modèle Proissans va répondre à vos attentes. Elle a tout ce qu’il faut et en plus, elle est jolie !
Réalisez votre projet de construction en optant pour la Proissans
Cette demeure de plain-pied offre une surface habitable de 60 m². Elle comprend deux jolies chambres et une salle de bains avec w.c. séparés. Son agréable pièce de vie est dotée d’une cuisine US à laquelle est accolé un cellier. C’est un intérieur douillet que vous offre ce chaleureux logis à l’agencement traditionnel.
La Proissans se distingue par sa façade en décroché, permettant une avancée de toit au-dessus de l’entrée, et une pergola sur terrasse donnant sur le séjour. Vous avez le choix entre une toiture à 2 pans ou à 4 pans, selon vos préférences.
Cette maison neuve est basse consommation et conforme à la RE2020, garantissant une efficacité énergétique optimale. Les options les plus demandées par nos clients incluent l'enduit bi-ton, les menuiseries en aluminium, un carport et un poêle à pellets, pour un confort et une esthétique supplémentaires.
Si vous souhaitez construire cette maison confortable pour commencer une nouvelle vie, n’hésitez pas à nous contacter pour en savoir plus !
Logement susceptibles de vous intéresser
Nous vous proposons de découvrir aussi cette sélection de logements situés à moins de 10km de Montignac-Lascaux et qui seraient susceptibles de vous intéresser.
Coly-Saint-Amand
TERRAINÀ découvrir sur la charmante commune de Saint-Amand-de-Coly, ce beau terrain de 1 187 m², bordé par un bois et offrant un cadre naturel et paisible.Environnement calme : aucune nuisance, seulement une petite route de campagne à proximité.Belle exposition : idéal pour profiter du soleil toute la journée.Sans contrainte architecturale : vous êtes libre de concevoir votre projet selon vos envies.Un emplacement idéal pour une résidence principale ou secondaire, au coeur du Périgord Noir, dans l’un des plus beaux villages de France.Prenez contact avec notre agence (LEYMARIE Blandine : (Numéro supprimé)) pour toute information sur le terrain. Alpha Constructions Boulazac Isle Manoire vous accompagne dans tous vos projets.
Coly-Saint-Amand
TERRAIN ET MAISONVenez découvrir ce projet de construction sur un terrain de 1 187 m², parfaitement situé dans un environnement calme, bordé par un bois et sans nuisance.Nous vous proposons d’y bâtir une maison neuve de 100 m², idéale pour accueillir votre famille, comprenant :3 chambres1 salle d’eauGrande pièce de vie lumineuse avec cuisine ouverteGarage attenantLe terrain bénéficie d’une belle exposition, d’un accès par une petite route de campagne et aucune contrainte architecturale : un cadre idéal pour réaliser votre projet de vie, en toute liberté.Contactez notre agence (LEYMARIE Blandine : (Numéro supprimé)) pour toute question sur la maison ou sur les modalités de vente. Donnez vie à vos projets avec Alpha Constructions Boulazac Isle Manoire.
La Bachellerie
TERRAINDécouvrez ce magnifique terrain de 2 236 m², idéalement situé à La Bachellerie, dans le département de la Dordogne. Ce terrain viabilisé et plat est parfait pour la réalisation de votre projet de construction de maison. Avec ses caractéristiques uniques et ses nombreux atouts, il offre un cadre de vie agréable et serein dans une commune dynamique et en pleine expansion. La Bachellerie se distingue par son environnement calme et enchanteur, tout en étant proche de toutes les commodités nécessaires à une vie quotidienne agréable. Vous trouverez à proximité des commerces, des écoles et des services, ainsi que des arrêts de bus facilitant les déplacements. Cette localité bénéficie d’une vue dégagée, sans vis-à-vis et jouit d’une excellente qualité de vie, idéale pour les familles à la recherche de tranquillité tout en restant connectées aux grands axes de transport. Un véritable petit bijou à découvrir pour ceux qui souhaitent s’établir au cœur de la Nouvelle-Aquitaine ! Ne laissez pas passer cette opportunité rare d’acquérir un terrain au potentiel exceptionnel. À noter qu’en tant que constructeur, nous ne sommes pas mandatés pour réaliser la vente de ce terrain.
La Bachellerie
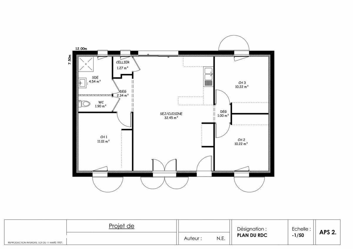
TERRAIN ET MAISONSur ce terrain, nous vous proposons cette maison neuve : la Beauronne. Conçue par Maisons Omega, détenteur du label Maisons de Qualité, cette demeure de 104 m² est idéale pour les amoureux du beau et du fonctionnel.Vous rêvez d’une maison neuve s’intégrant parfaitement dans son environnement ? Le modèle Beauronne est fait pour vous ! Ses formes traditionnelles, inspirées du style local, vous raviront.Cette agréable Beauronne de plain-pied se compose de 3 chambres, d’une cuisine ouverte sur salon-séjour et d’un cellier. Sa configuration en L est harmonieuse et permet une organisation sereine de votre intérieur. De plus, une terrasse couverte vous offrira un espace extérieur convivial et protégé.Son aspect extérieur a tout pour vous plaire et faire votre fierté. Son beau toit pentu à deux pans et sa galerie en imposent. Cette maison est très esthétique avec ses volets en bois naturel ou avec des volets roulants qui lui confèrent un design plus contemporain. Son Car Port, pratique et économique, devrait finir de vous convaincre.Ce joli modèle vous a peut-être déjà fait craquer ? Ce serait compréhensible ! Si vous souhaitez en savoir plus, il vous suffit de joindre un conseiller de notre équipe qui vous fera part de tous les détails.En plus de son charme indéniable, cette maison neuve est basse consommation et conforme à la RE2020. Vous pourrez également opter pour des options très demandées telles que l’aérothermie ou la géothermie, des menuiseries en aluminium, et une modénature d’enduit pour parfaire l’esthétique de votre future demeure.N’attendez plus pour découvrir la Beauronne et faire de ce rêve une réalité. Contactez-nous dès aujourd’hui pour plus d’informations !
La Bachellerie
TERRAINDécouvrez ce beau terrain viabilisé de 1898 m², idéalement situé à La Bachellerie, un cadre paisible et propice à la construction de votre future maison. Ce terrain plat bénéficie d’une exposition ensoleillée, offrant une vue dégagée sans vis-à-vis, un atout indéniable pour profiter de moments en plein air dans un environnement calme. La Bachellerie, commune au cœur de la Dordogne en Nouvelle-Aquitaine, est un lieu de vie agréable, parfait pour accueillir votre projet de construction. La Bachellerie est entourée d’une multitude d’attractions locales et de commodités qui font toute la richesse de son environnement. À proximité, vous trouverez des commerces, des écoles et d’autres services essentiels qui garantissent une qualité de vie optimale. Profitez également des paysages captivants de la Dordogne, qui invitent à la découverte et aux loisirs en plein air. Ce terrain représente véritablement une opportunité unique d’investir dans un lieu de vie harmonieux et bien desservi. Ne laissez pas passer cette chance de réaliser votre rêve immobilier dans un cadre exceptionnel. À noter qu’en tant que constructeur, nous ne sommes pas mandatés pour réaliser la vente de ce terrain.
La Bachellerie
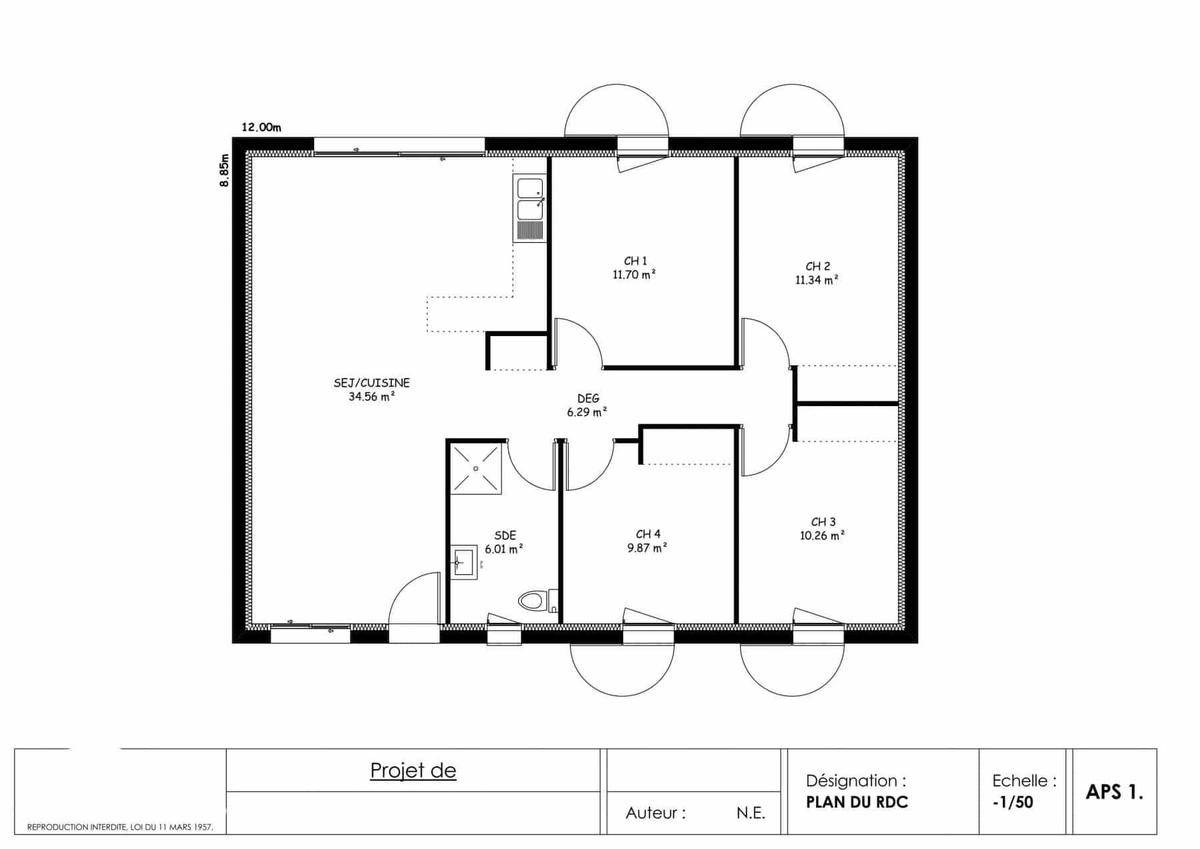
TERRAIN ET MAISONSur ce terrain, nous vous proposons cette maison neuve : le modèle Challenger, conçu par Maisons Omega, détenteur du label Maisons de Qualité. Cette maison de 90 m² est idéale pour les primo-accédants ou les couples à la recherche du meilleur rapport qualité/prix du marché. Avec ses formes simples et son intérieur confortable, elle séduit immédiatement.La maison Challenger offre une surface généreuse de 90 m², comprenant 4 chambres et 4 pièces. Vous y trouverez un vaste séjour avec une cuisine ouverte, parfait pour des moments conviviaux en famille ou entre amis. Les grandes portes-fenêtres assurent une luminosité optimale tout au long de la journée. Un très pratique garage intégré est également inclus.Construite selon les normes de la RE2020, cette maison est basse consommation, ce qui vous garantit des économies d’énergie significatives et un confort de vie optimal. Son aspect extérieur moderne, avec des façades en enduit coloré et des menuiseries assorties, ne manquera pas de vous charmer.Les options les plus demandées par nos clients, telles que l’enduit coloré et les volets roulants, sont disponibles pour personnaliser votre maison selon vos goûts et vos besoins.Vous êtes conquis par cette maison neuve à petit prix et basse consommation ? Contactez-nous dès maintenant pour en savoir plus et discuter de votre projet avec nos experts.
La Bachellerie
TERRAINÀ la recherche d’un terrain idéal pour réaliser votre projet de construction de maison ? Ne cherchez plus ! Ce terrain viabilisé de 2040 m², situé à La Bachellerie, vous offre l’opportunité de bâtir la maison de vos rêves dans un cadre paisible et verdoyant. Avec sa belle superficie, il se prête parfaitement à tous vos désirs architecturaux. De plus, la configuration de cet emplacement vous garantit une vue dégagée et un ensoleillement optimal, sans vis-à-vis, ce qui en fait un véritable havre de tranquillité. La Bachellerie, nichée dans le département de la Dordogne en Nouvelle-Aquitaine, est une ville où il fait bon vivre. Vous y trouverez un cadre de vie agréable, à proximité des commodités essentielles telles que les commerces, les écoles et divers services. Cette localité est également prisée pour sa qualité de vie, grâce à ses espaces verts et son environnement calme. Les amateurs de loisirs seront ravis de découvrir les attractions locales qui mettent en valeur le patrimoine et la culture de la région. Ce terrain représente donc une belle opportunité non seulement pour construire, mais également pour profiter d’un cadre de vie enrichissant. Ne manquez pas cette chance exceptionnelle d’acquérir un terrain avec un potentiel prometteur. À noter qu’en tant que constructeur, nous ne sommes pas mandatés pour réaliser la vente de ce terrain.
La Bachellerie
TERRAIN ET MAISONSur ce terrain, nous vous proposons cette maison neuve : le modèle Cazaux, une maison traditionnelle de plain-pied conçue par Maisons Omega, détenteur du label Maisons de Qualité.Un charme énorme pour ce plain-pied de 4 chambres avec suite parentale, comportant un bel espace de vie et un coin nuit enfants. Sa surface de 111 m² est largement suffisante pour accueillir toute votre famille dans de grands volumes intelligemment pensés. Les parents disposeront d’un espace isolé des chambres enfants, avec dressing et salle d’eau. Le salon-séjour central et traversant, avec cuisine américaine, est aussi spacieux que lumineux. Ce modèle dispose également d’un cellier.Espace et originalité pour cette belle demeure sur un seul niveau. C’est un modèle doté d’une entrée protégée par un porche ainsi qu’une pergola, idéale pour profiter des beaux jours. Il est disponible avec un toit à 2 ou 4 pans et des volets roulants ou battants. En option, il est possible d’ajouter un carport, une des options les plus demandées par nos clients.Cette maison neuve est basse consommation et conforme à la RE2020, garantissant ainsi des performances énergétiques optimales et un confort de vie inégalé. Ne manquez pas cette opportunité unique de devenir propriétaire d’une maison moderne, économe en énergie et parfaitement adaptée à vos besoins. Contactez-nous dès aujourd’hui pour plus d’informations !
Montignac-Lascaux
TERRAINTerrain plat à bâtir de 1138 m2 fraichement disponible à la vente sur la commune de Montignac. Bel emplacement paisible et à la fois proche du centre de Montignac, et de son musée Lascaux. (Site reconnu mondialement) Viabilisé avec eau et électricité, en attente de raccordement fibre et Assainissement individuel. Contactez-nous pour visiter ce bien et pour concevoir votre projet de construction. Nous vous proposons une occasion rare d’acquérir un terrain viabilisé de 1138 m², situé dans un lotissement prisé de Montignac. Ce bien immobilier de qualité est parfait pour la réalisation de votre projet de construction de maison sur mesure. Avec un prix de vente attractif de 31,000 €, ce terrain allie à la fois espace et accessibilité, offrant une toile de fond idéale pour votre futur habitat. Montignac, située dans le département de la Dordogne en Nouvelle-Aquitaine, se distingue par son riche patrimoine culturel et ses paysages pittoresques. La ville est réputée pour ses attractions touristiques, notamment les célèbres grottes de Lascaux, qui attirent des visiteurs du monde entier. Les commodités locales, telles que des commerces, des écoles et des espaces verts, sont facilement accessibles, garantissant une qualité de vie optimale pour ses habitants. Choisir ce terrain, c’est s’assurer d’un cadre de vie agréable où nature et culture se rencontrent. Ne laissez pas passer cette opportunité unique d’investir dans un bien immobilier au potentiel exceptionnel. Ce terrain est prêt à accueillir votre futur chez-vous, alors n’hésitez pas à envisager cette belle possibilité. À noter qu’en tant que constructeur, nous ne sommes pas mandatés pour réaliser la vente de ce terrain.
L’actualité immobilière à Montignac-Lascaux
27/11/2023
02/11/2023
30/10/2023
20/10/2023
16/10/2023
16/10/2023