Maison à construire à Nadaillac (24590)
Images
Description
Superbe projet de construction !
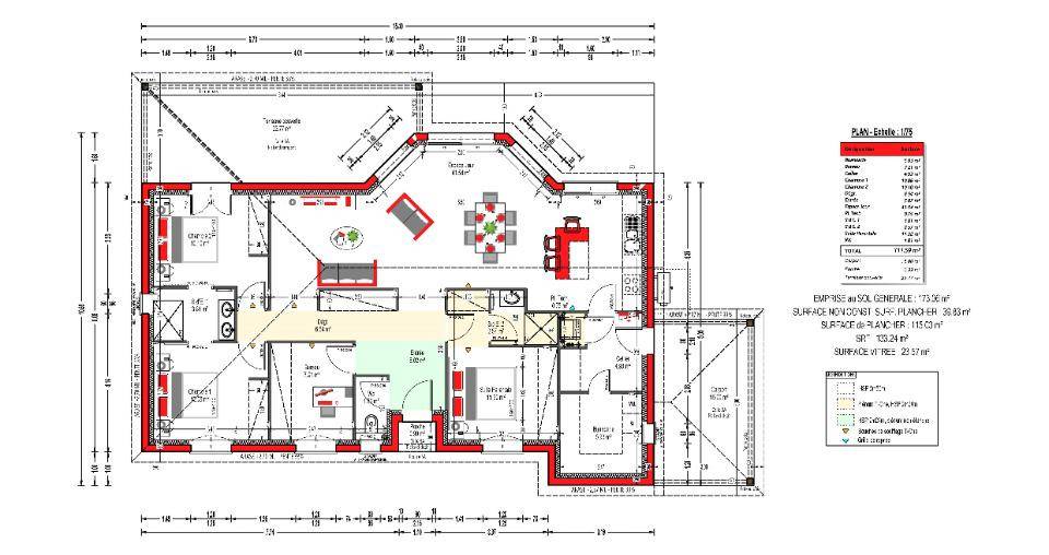
À 25 minutes de Brive, nous vous présentons cette maison de 4 pièces de plain-pied de 111 m² bénéficiant d'un emplacement d'exception dans Nadaillac.
Composée de 2 chambres avec salle d'eau équipées d'une double vasque et d'une douche italienne et d'1 suite parentale séparée avec douche italienne et simple vasque.
La partie séjour est très lumineuse et spacieuse avec sa cuisine ouverte. Pour le côté pratique on retrouve un petit cellier.
Le terrain quant à lui est plat d'une superficie de 2 000 m² et clôturé. Situé en impasse il vous offrira tranquillité et plénitude.
Dans le village on y trouve une école élémentaire ainsi qu'un petit dépôt de pain.
Elle est proposée à l'achat pour 292 000 €.
Contactez Marie MUNOZ ((Numéro supprimé)) pour obtenir de plus amples informations sur la maison.
Logement susceptibles de vous intéresser
Nous vous proposons de découvrir aussi cette sélection de logements situés à moins de 10km de Nadaillac et qui seraient susceptibles de vous intéresser.
Nespouls
TERRAIN ET MAISONMaison moderne 100 m² à Nespouls – Confort, nature et vue exceptionnelleImaginez votre nouvelle vie au coeur de la campagne du Causse, dans une maison moderne de 100 m², conçue pour le confort de toute la famille.- 4 chambres, dont une suite parentale pour votre intimité- Garage intégré pour un quotidien pratique et sécurisé- Plans personnalisables pour créer la maison de vos rêvesProfitez d’un grand terrain de 2 200 m², avec une vue imprenable parmi les chênes centenaires, à 10 minutes du lac du Causse et 15 minutes de la zone ouest de Brive.Confort, design et qualité premium : matériaux haut de gamme, construction durable et finitions soignées pour un cadre de vie exceptionnel.Ne laissez pas passer cette opportunité ! Vivez dans un environnement naturel unique, tout en bénéficiant du confort moderne et de l’espace pour votre famille.Contactez-nous dès maintenant pour concrétiser votre projet à Nespouls ! Contactez Thibault JUILLARD CONDAT (tél : (Numéro supprimé)).
Nespouls
TERRAIN ET MAISONMaison contemporaine à Nespouls – 86 m² sur 2 200 m² avec vue campagneOffrez-vous une vie au coeur de la nature avec cette maison moderne de 86 m², pensée pour le confort familial et la personnalisation.3 chambres pour accueillir toute la familleGarage intégré pour plus de praticitéPlans personnalisables, pour que votre maison corresponde parfaitement à vos besoinsProfitez d’un grand terrain de 2 200 m², offrant une vue imprenable sur la campagne du Causse, parmi les chênes, un cadre idéal pour se ressourcer.Situation privilégiée : à 10 minutes du lac du Causse et à 15 minutes de la zone ouest de Brive, alliant tranquillité et accessibilité.Construction haut de gamme, avec une attention particulière portée aux matériaux, durabilité et confort, pour une maison de qualité prête à accueillir vos projets de vie.Une opportunité rare pour vivre dans un cadre naturel exceptionnel, tout en profitant du confort moderne et de la proximité des commodités. Contactez Thibault JUILLARD CONDAT (tél : (Numéro supprimé)).
Chasteaux
TERRAINDécouvrez ce terrain de 3000 m² situé à Chasteaux, un véritable bijou niché au cœur de la Corrèze en Nouvelle-Aquitaine. Ce bien rare, idéal pour un projet de construction de maison, bénéficie d’une atmosphère unique grâce à son cadre champêtre, arboré et sans vis-à-vis. Vous serez séduit par le calme qui règne dans ce quartier recherché, propice à l’épanouissement familial. Chasteaux, un charmant village de la Corrèze, est idéalement situé à proximité de plusieurs attractions locales. Profitez de la nature environnante avec des balades en pleine nature, tout en bénéficiant des commodités essentielles à quelques minutes. Les marchés locaux, boutiques artisanales et services de proximité enrichissent votre quotidien. L’environnement paisible et ses atouts font de cette ville un lieu de vie privilégié, parfait pour accueillir votre futur chez-vous. Ne laissez pas passer cette opportunité d’acquérir un terrain prometteur, dans un cadre idyllique pour la construction de vos rêves. À noter qu’en tant que constructeur, nous ne sommes pas mandatés pour réaliser la vente de ce terrain.
Chasteaux
TERRAIN ET MAISONSur ce terrain, nous vous proposons cette maison neuve, le modèle Ménilière, une maison plain-pied moderne qui intègre de base un garage et une longue galerie sur la face avant. Avec une surface de 100 m², cette maison dispose de 4 chambres et de 4 pièces, offrant ainsi un espace de vie confortable et fonctionnel pour toute la famille.Véritable « »tout-en-un » » de la maison individuelle, ce modèle est idéal pour votre projet de construction sur-mesure. La Ménilière est disponible avec un toit à 2 pans ou 4 pans, selon vos préférences esthétiques. Le garage intégré et la galerie avant ajoutent une touche pratique et élégante à cette maison.Les options les plus demandées par nos clients, telles que les menuiseries en aluminium et le sous-sol, sont également disponibles pour personnaliser davantage votre future maison. De plus, cette maison neuve est basse consommation et conforme à la réglementation environnementale RE2020, garantissant ainsi des performances énergétiques optimales et un impact environnemental réduit.Le constructeur Babeau-Seguin, reconnu pour offrir le meilleur rapport qualité/prix du marché, vous accompagne dans la réalisation de votre projet immobilier. Avec un prix serré et une personnalisation facile, il n’est pas étonnant que la Ménilière soit dans le top 5 des ventes de Babeau-Seguin.Ne manquez pas cette opportunité unique de devenir propriétaire d’une maison moderne, économe en énergie et parfaitement adaptée à vos besoins. Contactez-nous dès maintenant pour plus d’informations et pour planifier une visite de ce modèle exceptionnel.
La Cassagne
TERRAIN24120 LA CASSAGNE. Terrain constructible de 8085 m².Prix de vente : 117 000 euros (honoraires charge vendeur)Située dans le triangle Sarlat, Montignac-Lascaux et Terrasson la Villedieu, Périgord Noir, ce magnifique terrain constructible d’environ 8085 m² , non viabilisé est positionné sur les hauteurs de la commune, offrant une belle vue panoramique sur le village et la campagne environnante.Au calme, sans vis à vis et sans nuisances, ce terrain est agrémenté de ruines d’une ancienne maison d’habitation de caractère et d’une grange, permettant la récupération de belles pierres de construction (linteau, ancienne cheminée,..)Présence à proximité d’une source pouvant alimenter en eau la propriété.Ce terrain arboré, en grande partie constructible offre un beau potentiel de construction.Pour visiter et vous accompagner dans votre projet, contactez Marie Noëlle DEBET, au (Numéro supprimé) ou, par courriel à (Email supprimé).Selon l’article L.561.5 du Code Monétaire et Financier, pour l’organisation de la visite, la présentation d’une pièce d’identité vous sera demandée.Cette présente annonce a été rédigée sous la responsabilité éditoriale de Marie-Noëlle DEBET agissant sous le statut d’agent commercial immatriculé au RSAC PERIGUEUX 398015420 auprès de SAS PROPRIETES PRIVEES, au capital de 44 920 euros, ZAC LE CHÊNE FERRÉ – 44 ALLÉE DES CINQ CONTINENTS 44120 VERTOU; SIRET 487 624 777 00040, RCS Nantes. Carte Professionnelle Transactions sur immeubles et fonds de commerce (T) et Gestion immobilière (G) n°CPI 4401 2016 000 010 388 délivrée par la CCI Nantes – Saint Nazaire. Compte séquestre n(Numéro supprimé)67 BPA SAINT-SEBASTIEN-SUR-LOIRE (44230). Garantie GALIAN-SMABTP – 89 rue de la Boétie, 75008 Paris – n°28137 J pour 2 000 000 euros pour T et 120 000 euros pour G. Assurance responsabilité civile professionnelle par GALIAN-SMABTP n° de police 28137.JMandat réf : 429495MND – Le professionnel garantit et sécurise votre projet immobilierLes informations sur les risques auxquels ce bien est exposé sont disponibles sur le site Géorisques (Lien supprimé). Marie-Noëlle DEBET (EI) Agent Commercial – Numéro RSAC : PERIGUEUX 398015420 – .
Chasteaux
TERRAINDécouvrez ce terrain exceptionnel d’une superficie de 2000 m², situé dans la charmante commune de Chasteaux, en Corrèze. Ce terrain, non viabilisé, offre une vue dégagée et sans vis-à-vis, idéal pour la réalisation de votre projet de construction de maison. Son cadre champêtre et sa tranquillité en font un lieu de vie privilégié, propice à l’épanouissement et à la qualité de vie tant recherchée. N’attendez plus pour donner vie à vos rêves de construction sur ce terrain plein de potentiel ! Chasteaux, nichée en plein cœur de la Nouvelle-Aquitaine, est une commune paisible qui saura séduire les amateurs de nature et de calme. Avec ses paysages verdoyants, cette localité offre un cadre de vie idéal pour les familles et les amoureux de grands espaces. À proximité, vous trouverez toutes les commodités nécessaires au quotidien, ainsi que des attractions locales qui font le bonheur des résidents. Que vous soyez passionné de randonnée ou de découvertes culturelles, Chasteaux est le point de départ idéal pour explorer les beautés de la Corrèze. Ne laissez pas passer cette opportunité unique d’acquérir un terrain au potentiel incroyable dans un environnement de qualité. Contactez-nous pour plus d’informations et envisagez dès à présent votre futur chez-vous dans ce cadre dépaysant ! À noter qu’en tant que constructeur, nous ne sommes pas mandatés pour réaliser la vente de ce terrain.
Chasteaux
TERRAIN ET MAISONSur ce terrain, nous vous proposons cette maison neuve, la Sommière, conçue par Babeau-Seguin, constructeur offrant le meilleur rapport qualité/prix du marché. Avec une surface de 107 m², cette maison moderne en L se distingue par son design élégant et ses nombreuses options de personnalisation.La Sommière dispose de 4 chambres spacieuses et de 4 pièces, offrant un espace de vie confortable et fonctionnel pour toute la famille. Vous avez la possibilité de choisir entre un toit à 2 pans ou à 4 pans, selon vos préférences esthétiques et architecturales. De plus, cette maison peut être équipée d’un garage ou d’un sous-sol, selon vos besoins spécifiques.Cette maison neuve est basse consommation et conforme à la RE2020, garantissant une performance énergétique optimale et des économies sur vos factures d’énergie. La Sommière est disponible en plus de 10 versions, allant d’une surface de 78 m² à 148 m², ce qui en fait la maison plain-pied la plus déclinée de toute notre gamme.Avec ou sans garage intégré, avec ou sans galerie, la Sommière s’adapte parfaitement aux besoins et aux attentes de chacun. Nous lui décernons sans hésitation le prix de la maison sur mesure !Ne manquez pas cette opportunité unique de faire construire une maison qui répondra à toutes vos attentes et vous offrira un cadre de vie exceptionnel. Contactez-nous dès maintenant pour plus d’informations et pour découvrir toutes les options disponibles pour personnaliser votre future maison Sommière.
Chasteaux
TERRAINÀ vendre, magnifique terrain de 1699 m² situé dans la charmante commune de Chasteaux, en Corrèze, dans la région Nouvelle-Aquitaine. Ce terrain non-viabilisé offre une superficie généreuse, parfaite pour réaliser votre projet de construction de maison. Grâce à sa vue dégagée et son absence de vis-à-vis, ce bien rare se trouve dans un quartier privilégié, à saisir par ceux qui rêvent de construire leur havre de paix. Chasteaux se distingue par son cadre paisible et son atmosphère conviviale, en offrant à ses résidents des services de qualité et un accès facile aux commodités locales. La commune est entourée de paysages naturels enchanteurs et à proximité d’attractions régionales, créant ainsi un cadre idéal pour les familles et les amoureux de la nature. Ne passez pas à côté de cette opportunité d’investissement dans un environnement prometteur. Ce terrain présente un potentiel exceptionnel pour votre projet immobilier. N’hésitez pas à nous contacter pour plus d’informations sur cette offre unique. À noter qu’en tant que constructeur, nous ne sommes pas mandatés pour réaliser la vente de ce terrain.
Chasteaux
TERRAIN ET MAISONSur ce terrain, nous vous proposons cette maison neuve Perrière de 97 m². Ce modèle design de plain-pied possède deux hauteurs de toits qui cassent la monotonie de la façade, offrant ainsi une esthétique moderne et attrayante. Avec ses 3 chambres et ses 4 pièces, cette maison familiale par excellence saura vous séduire.La Perrière est une maison traditionnelle possédant une avancée de toit qui vient protéger les portes-fenêtres de la façade avant et la porte d’entrée. Ce modèle peut être agrémenté d’un garage ou d’un sous-sol disponible en option, selon vos besoins et préférences.Construite par Babeau-Seguin, constructeur offrant le meilleur rapport qualité/prix du marché, cette maison neuve est basse consommation et conforme à la RE2020, garantissant ainsi des performances énergétiques optimales et un confort de vie inégalé.Disposant d’un très bon rapport qualité/prix et de tout le savoir-faire Babeau-Seguin, la Perrière est un modèle de maison à prix réduit sans pour autant être une maison low-cost. Cerise sur le gâteau ? Le plan est personnalisable en fonction de votre mode de vie !Ne manquez pas cette opportunité unique de construire la maison de vos rêves sur ce terrain. Contactez-nous dès maintenant pour plus d’informations et pour découvrir toutes les options disponibles pour personnaliser votre future maison Perrière.
L’actualité immobilière à Nadaillac
27/11/2023
02/11/2023
30/10/2023
20/10/2023
16/10/2023
16/10/2023