Maison à construire à Cléder (29233)
Images
Description
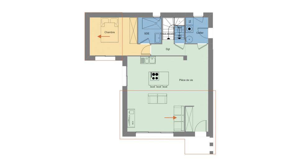
VENTE : maison F4 (94 m²) à Cléder
PROCHE CENTRE-VILLE - MAISON 4 PIÈCES NEUVE
En vente à quelques kilomètres de la mer, nous vous proposons, proche du centre-ville de Cléder (29233), cette maison de 4 pièces de 94 m². Son intérieur comporte trois chambres, une cuisine et deux salles de bains.
Le terrain de cette maison s'étend sur 600 m².
Il s'agit d'une maison de 2 niveaux. Elle est neuve.
Il y a l'École Primaire Publique Per Jakez Helias, l'École Primaire Privée Saint Joseph et le Collège Privé Notre-Dame d'Espérance à moins de 10 minutes à pied et une structure d'accueil pour la petite enfance. Niveau transports en commun, on trouve la gare Saint-Pol-de-Léon à moins de 10 minutes en voiture. La nationale N12 est accessible à 17 km. Il y a deux boulangeries, trois commerces, un supermarché, deux boucheries-charcuteries et une épicerie à proximité.
Son prix de vente est de 341 887 €.
Contactez Sami ALKIS pour toute information sur le bien ou sur les démarches à suivre.
Logement susceptibles de vous intéresser
Nous vous proposons de découvrir aussi cette sélection de logements situés à moins de 10km de Cléder et qui seraient susceptibles de vous intéresser.
Plouzévédé
TERRAINTerrain de 817 m² en vente à PlouzévédéÀ vendre, magnifique terrain de 817m² idéalement situé à Plouzévédé, une charmante ville qui allie parfaitement le calme de la campagne et la proximité des commodités urbaines.Ce terrain, offrant une surface généreuse, présente une opportunité unique de construire la maison de vos rêves. L’emplacement est un véritable atout. En effet, le terrain se trouve dans la paisible et dynamique commune de Plouzévédé offrant un cadre de vie agréable. Vous serez à proximité de toutes les commodités nécessaires au quotidien : écoles, commerces, services de santé.Vous pourrez profiter de nombreuses activités de plein air et de belles balades dans la nature environnante.Enfin, la parcelle bénéficie d’une belle exposition, garantissant une luminosité optimale tout au long de la journée.Ce terrain est une véritable opportunité à saisir pour ceux qui souhaitent concrétiser un projet de construction dans un cadre de vie privilégié. Il est à vendre pour la somme de 39 500 €. N’hésitez pas à prendre contact avec notre agence (CAGNARD Aurélie : (Numéro supprimé)) pour plus de renseignements sur le terrain, sur les démarches à suivre ou sur les modalités de vente. Maisons de l’Avenir Guipavas est là pour vous accompagner dans tous vos projets immobiliers.
Plouzévédé
TERRAIN ET MAISONVENTE d’une maison de 5 pièces (85 m²) à PlouzévédéCette belle maison traditionnelle aux lignes contemporaines offre 85m² habitable .elle dispose d’une belle pièce de vie offrant un maximum de lumière, de 4 chambres, une salle d’eau, d’un wc, un cellier et d’un garage.L’orientation de cette maison vous permettra de bénéficier d’un maximum de lumière et de chaleur naturelle pour davantage d’économies et de douceur de vivre.Son prix de vente est de 241 500 €.N’hésitez pas à prendre contact avec notre agence (CAGNARD Aurélie : (Numéro supprimé)) pour tout renseignement sur cette maison et sur les démarches à suivre. Maisons de l’Avenir Guipavas est là pour vous accompagner dans tous vos projets immobiliers.
Plouzévédé
TERRAIN ET MAISONVENTE : maison de 5 pièces (140 m²) à PlouzévédéLe terrain de la propriété est de 817 m².Cette belle maison traditionnelle aux lignes contemporaines offre 140 m² habitable . Au rez-de-chaussée, elle dispose d’une belle pièce de vie offrant un maximum de lumière, d’une grande suite parentale avec sa salle d’eau, d’un wc et d’un très grand cellier. A l’étage on retrouve 3 chambres, une salle de bains, et un WC. L’orientation de cette maison vous permettra de bénéficier d’un maximum de lumière et de chaleur naturelle pour davantage d’économies et de douceur de vivre.Elle est à vendre pour la somme de 385 500 €.Prenez contact avec Aurélie CAGNARD ((Numéro supprimé)) pour obtenir de plus amples renseignements sur cette maison. Faites de vos projets immobiliers une réalité avec Maisons de l’Avenir Guipavas.
Plouzévédé
TERRAIN ET MAISONMaison F5 (99 m²) en vente à PlouzévédéCette belle maison traditionnelle aux lignes contemporaines offre 99m² habitable .Au rez-de-chaussée, elle dispose d’une belle pièce de vie offrant un maximum de lumière, d’une grande suite parentale avec sa salle d’eau, d’un wc et d’un garage.A l’étage on retrouve 2 chambres, une salle de bains, et un WC. L’orientation de cette maison vous permettra de bénéficier d’un maximum de lumière et de chaleur naturelle pour davantage d’économies et de douceur de vivre.Elle est à vendre pour la somme de 272 300 €.Prenez contact avec Aurélie CAGNARD ((Numéro supprimé)) pour tout renseignement sur cette maison ou sur les modalités de vente. Maisons de l’Avenir Guipavas est là pour vous accompagner à toutes les étapes de l’achat.
Plouzévédé
TERRAIN ET MAISONVENTE d’une maison de 5 pièces (113 m²) à PlouzévédéNouveau Maison Murs Ossature Bois Nous sommes ravis de vous présenter à Plougar (29440)Ce très beau plain-pied aux lignes contemporaine, de 113 m² agencé astucieusement pour un maximum de luminosité, pièce de vie ouverte et volumineuse, 4 chambres dont 1 suite parentale, son grand cellier et son garage. Aux normes RE2020, peu énergivore, elle vous ravira par son confort de vie.Son prix de vente est de 314 400 €.Contactez notre agence (CAGNARD Aurélie : (Numéro supprimé)) pour obtenir de plus amples informations sur cette maison.
Plouzévédé
TERRAIN ET MAISONMaison F6 (154 m²) en vente à PlouzévédéCette belle maison traditionnelle aux lignes contemporaines offre 154m² habitable . Au rez-de-chaussée, elle dispose d’une belle pièce de vie offrant un maximum de lumière, d’une grande suite parentale avec sa salle d’eau, d’un wc, d’un très grand cellier et son garage.A l’étage on retrouve 4 chambres et une salle de bain. L’orientation de cette maison vous permettra de bénéficier d’un maximum de lumière et de chaleur naturelle pour davantage d’économies et de douceur de vivre.Aux normes RE2020, peu énergivore, elle vous ravira par son confort de vie.Le terrain de la propriété est de 817 m².Son prix de vente est de 424 100 €.Contactez notre agence (Aurélie CAGNARD : (Numéro supprimé)) pour tout renseignement sur cette maison, sur les modalités de vente ou sur les démarches à suivre. Concrétisez vos projets immobiliers avec Maisons de l’Avenir Guipavas.
Plouzévédé
TERRAIN ET MAISONPlouzévédé : maison de 4 pièces (67 m²) en venteCette belle maison traditionnelle aux lignes traditionnelles offre 67m² habitable . Elle est évolutive.Au rez-de-chaussée, elle dispose d’une belle pièce de vie offrant un maximum de lumière, d’un wc, d’un cellier.A l’étage on retrouve 3 chambres, une salle de bains, et un WC. L’orientation de cette maison vous permettra de bénéficier d’un maximum de lumière et de chaleur naturelle pour davantage d’économies et de douceur de vivre.Elle est à vendre pour la somme de 171 500 €.Prenez contact avec Aurélie CAGNARD (tél : (Numéro supprimé)) pour obtenir de plus amples informations sur ce bien. Concrétisez vos projets immobiliers avec Maisons de l’Avenir Guipavas.
Plouzévédé
TERRAINÀ vendre, magnifique terrain de 751m² idéalement situé à Plouzévédé, une charmante ville qui allie parfaitement le calme de la campagne et la proximité des commodités urbaines.Ce terrain, offrant une surface généreuse, présente une opportunité unique de construire la maison de vos rêves. L’emplacement est un véritable atout. En effet, le terrain se trouve dans la paisible et dynamique commune de Plouzévédé offrant un cadre de vie agréable. Vous serez à proximité de toutes les commodités nécessaires au quotidien : écoles, commerces, services de santé.Vous pourrez profiter de nombreuses activités de plein air et de belles balades dans la nature environnante.Enfin, la parcelle bénéficie d’une belle exposition, garantissant une luminosité optimale tout au long de la journée.Ce terrain est une véritable opportunité à saisir pour ceux qui souhaitent concrétiser un projet de construction dans un cadre de vie privilégié. Il est proposé à l’achat pour 37 500 €. Contactez Aurélie CAGNARD ((Numéro supprimé)) pour obtenir de plus amples renseignements sur ce terrain ou sur les démarches à suivre.
Plouzévédé
TERRAIN ET MAISONVENTE d’une maison T4 (115 m²) à PlouzévédéCette belle maison traditionnelle aux lignes contemporaines offre 115m² habitable .Au rez-de-chaussée, elle dispose d’une belle pièce de vie offrant un maximum de lumière, une suite parentale, d’un wc, d’un cellier ainsi que son garage. A l’étage on retrouve 3 chambres, une salle de bains, et un WC. L’orientation de cette maison vous permettra de bénéficier d’un maximum de lumière et de chaleur naturelle pour davantage d’économies et de douceur de vivre.Elle est proposée à l’achat pour 317 200 €.Contactez notre agence (Aurélie CAGNARD : (Numéro supprimé)) pour obtenir de plus amples informations sur cette propriété, sur les modalités de vente ou sur les démarches à suivre. Donnez vie à vos projets immobiliers avec Maisons de l’Avenir Guipavas.
L’actualité immobilière à Cléder
27/11/2023
02/11/2023
30/10/2023
20/10/2023
16/10/2023
16/10/2023