Maison à construire à Clohars-Carnoët (29360)
Images
Description
VENTE : maison de 4 pièces (100 m²) à Clohars-Carnoët
QUARTIER RECHERCHÉ - MAISON 4 PIÈCES NEUVE
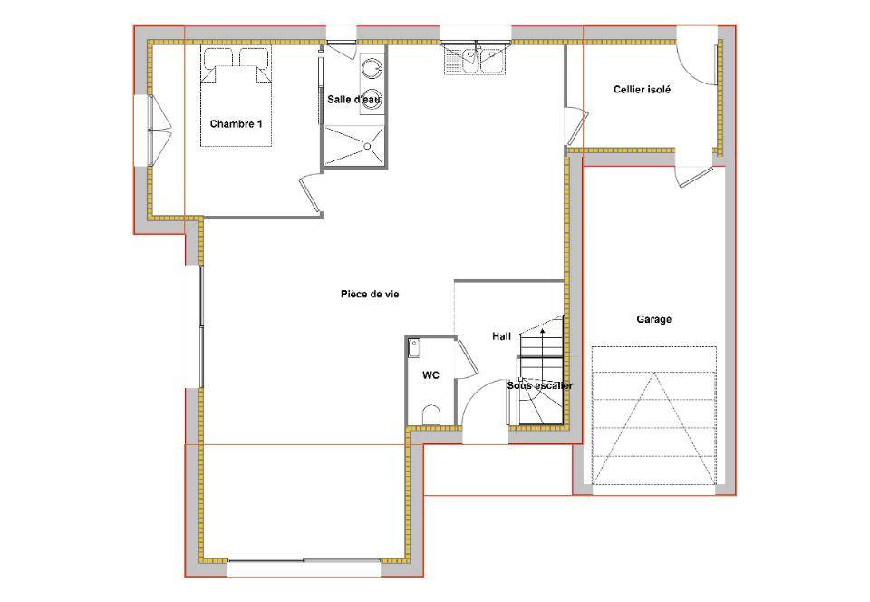
À vendre à 6 km de l'océan Atlantique et à quelques kilomètres de Lorient, nous sommes heureux de vous proposer cette maison de 4 pièces de 100 m² et de 329 m² de terrain dans un secteur prisé de Clohars-Carnoët (29360). Son intérieur dispose de quatre chambres, d'une cuisine et de deux salles de bains.
Il s'agit d'une maison de 2 niveaux. Elle est neuve.
Cette maison est située dans un quartier convoité. On trouve l'École Primaire Privée Notre-Dame de la Garde, l'École Maternelle Publique Pierre Tal Coat et l'École Élémentaire Publique Benoîte Groult à moins de 10 minutes à pied. Côté transports, il y a la gare Quimperlé à moins de 10 minutes en voiture. On trouve un accès à la nationale N165 à 8 km. On trouve deux boulangeries, quatre commerces, un supermarché, deux boucheries-charcuteries et une poissonnerie à quelques minutes à peine.
Elle est à vendre pour la somme de 334 000 €.
Contactez notre agence (COLLOCH Christophe : (Numéro supprimé)) pour toute information sur la maison. Donnez vie à vos projets immobiliers avec Maisons de l'Avenir Lorient.
Logement susceptibles de vous intéresser
Nous vous proposons de découvrir aussi cette sélection de logements situés à moins de 10km de Clohars-Carnoët et qui seraient susceptibles de vous intéresser.
Clohars-Carnoët
TERRAIN ET MAISONDEVENEZ PROPRIÉTAIRE À CLOHARS-CARNOËT – MAISON NEUVE RE2020 SUR-MESUREVivez au cœur du sud Finistère, à Clohars-Carnoët, charmante commune littorale entre terre et mer, connue pour son cadre de vie exceptionnel et ses magnifiques plages de Doëlan et du Pouldu.Profitez d’un environnement paisible et recherché, à proximité des commerces, écoles et services, tout en restant à seulement quelques minutes de Quimperlé et de la voie express N165. Votre future maison comprendo 3 chambres spacieuses et lumineuseso Un grand salon-séjour traversant, ouvert sur le jardino Une cuisine moderne et fonctionnelleo Salle de bain et WC séparéso Le tout sur un terrain de 330 m², bien exposé et facile à entretenir Les atouts du projeto Maison neuve RE2020, à faible consommation d’énergieo Plan personnalisable selon vos envies et votre mode de vieo Emplacement privilégié proche des plages du Pouldu et du port de Doëlano Prestations de qualité et finitions soignéeso Commune dynamique, entre Quimperlé et Guidel, idéale pour une vie au bord de la mer Prix indiqué hors frais Photos non contractuelles à titre d’illustration Accession à la propriété possible avec ou sans apportNe manquez pas cette belle opportunité de devenir propriétaire d’une maison neuve, moderne et économique à Clohars-Carnoët ! Contactez-nous dès maintenant pour découvrir les plans et étudier votre projet personnalisé.
Moëlan-sur-Mer
TERRAINDEVENEZ PROPRIÉTAIRE D’UN TERRAIN À MOËLAN-SUR-MER !Vivez dans un cadre de vie privilégié à Moëlan-sur-Mer, charmante commune du Sud-Finistère, idéalement située entre Concarneau et Lorient, à proximité du littoral.Profitez du calme de la campagne et de la proximité de la mer, tout en restant proche des commerces, écoles et services – un environnement idéal pour votre futur projet ! Votre terrain comprend 😮 Une surface de 440 m², bien orientéeo Possibilité de construire la maison de vos rêves selon vos envies Les atouts du projet 😮 Terrain viabilisé ou proche des réseaux (à préciser selon le lot)o Cadre de vie paisible et proche du littoralo Liberté de construction, avec plan personnalisable selon vos besoins Prix indiqué hors frais Photos non contractuelles à titre d’illustration Accession possible avec ou sans apportNe manquez pas cette opportunité unique de devenir propriétaire d’un terrain à Moëlan-sur-Mer et de réaliser votre projet sur-mesure ! Contactez-nous dès maintenant pour plus d’informations et étudier votre projet
Moëlan-sur-Mer
TERRAINMoëlan-sur-Mer : terrain de 429 m² en venteEMPLACEMENT PRIVILÉGIÉ – PROCHE DE LORIENTTerrain de 429 m² sur la côte atlantique et à quelques kilomètres de Lorient. Ce terrain se situe bénéficiant d’un emplacement d’exception dans Moëlan-sur-Mer (29350). Dans un secteur prisé, ce terrain est proche des écoles et des commerces. Il y a l’École Primaire Privée Immaculée-Conception, l’École Élémentaire Publique de Moëlan-Sur-Sur et le Collège Parc-Ar-Ar-Ar Cotty à moins de 10 minutes à pied et deux crèches. Niveau transports en commun, on trouve la gare Quimperlé à moins de 10 minutes en voiture. La nationale N165 est accessible à 7 km. Il y a un tennis, des commerces, trois boulangeries, un supermarché et un bureau de poste à quelques minutes à peine. Enfin, le marché Place de l’Eglise anime le quartier chaque mardi matin.Son prix de vente est de 80 000 €. Contactez Christophe COLLOCH (tél : (Numéro supprimé)) pour plus d’informations sur le terrain. Maisons de l’Avenir Lorient vous accompagne dans toutes vos démarches et dans tous vos projets immobiliers.
Moëlan-sur-Mer
TERRAIN ET MAISONMaison de 4 pièces (70 m²) en vente à Moëlan-sur-MerEMPLACEMENT PRIVILÉGIÉ – MAISON 4 PIÈCES NEUVEEn vente : située sur la côte atlantique et à quelques kilomètres de Lorient, Maisons de l’Avenir Lorient vous propose cette maison de 4 pièces de plain-pied de 70 m² bénéficiant d’un emplacement d’exception dans Moëlan-sur-Mer (29350). Conçue de plain-pied, elle comporte trois chambres, une cuisine et une salle de bains.Le terrain de la propriété est de 429 m².Cette maison est neuve.La maison se situe dans un quartier convoité. L’École Primaire Privée Immaculée-Conception, l’École Élémentaire Publique de Moëlan-Sur-Sur et le Collège Parc-Ar-Ar-Ar Cotty se trouvent à moins de 10 minutes à pied, tout comme deux structures d’accueil pour les tout-petits. Côté transports en commun, il y a la gare Quimperlé à moins de 10 minutes en voiture. La nationale N165 est accessible à 7 km. On trouve un tennis, des commerces, trois boulangeries, un supermarché et un bureau de poste dans les environs. Le marché Place de l’Eglise a lieu chaque mardi matin.Son prix de vente est de 248 000 €.N’hésitez pas à prendre contact avec Christophe COLLOCH (tél : (Numéro supprimé)) pour toute question sur la maison ou sur les démarches à suivre.
Moëlan-sur-Mer
TERRAIN ET MAISONMoëlan-sur-Mer : maison de 4 pièces (94 m²) en venteEMPLACEMENT PRIVILÉGIÉ – MAISON 4 PIÈCES NEUVEÀ vendre sur la côte atlantique et à deux pas de Lorient, nous vous proposons cette maison de 4 pièces de 94 m² bénéficiant d’un emplacement privilégié dans Moëlan-sur-Mer (29350). Son intérieur compte trois chambres, une cuisine et deux salles de bains.Le terrain de la maison est de 429 m².Cette maison possède 2 niveaux. Elle est neuve.La maison se trouve dans un secteur recherché. L’École Primaire Privée Immaculée-Conception, l’École Élémentaire Publique de Moëlan-Sur-Sur et le Collège Parc-Ar-Ar-Ar Cotty sont implantés à moins de 10 minutes à pied, tout comme deux structures d’accueil pour les enfants en bas âge. Niveau transports en commun, il y a la gare Quimperlé à moins de 10 minutes en voiture. Il y a un accès à la nationale N165 à 7 km. On trouve un tennis, des commerces, trois boulangeries, un supermarché et un bureau de poste à quelques minutes. Le marché Place de l’Eglise a lieu chaque mardi matin.Elle est à vendre pour la somme de 324 000 €.N’hésitez pas à prendre contact avec Christophe COLLOCH (tél : (Numéro supprimé)) pour obtenir de plus amples renseignements sur la maison et sur les démarches à suivre. Maisons de l’Avenir Lorient vous accompagne dans tous vos projets immobiliers et à toutes les étapes de votre projet.
Moëlan-sur-Mer
TERRAIN ET MAISONVENTE : maison T5 (89 m²) à Moëlan-sur-MerEMPLACEMENT PRIVILÉGIÉ – MAISON 5 PIÈCES NEUVEEn vente sur le littoral atlantique et à deux pas de Lorient, Maisons de l’Avenir Lorient vous présente, bénéficiant d’un emplacement d’exception dans Moëlan-sur-Mer (29350), cette maison de 5 pièces de 89 m² et de 429 m² de terrain. Elle inclut quatre chambres, une cuisine et deux salles de bains.C’est une maison de 2 niveaux. Elle est neuve.La maison se trouve dans un quartier convoité. Il y a l’École Primaire Privée Immaculée-Conception, l’École Élémentaire Publique de Moëlan-Sur-Sur et le Collège Parc-Ar-Ar-Ar Cotty à moins de 10 minutes à pied et deux crèches. Côté transports, on trouve la gare Quimperlé à moins de 10 minutes en voiture. La nationale N165 est accessible à 7 km. Il y a un tennis, des commerces, trois boulangeries, un supermarché et un bureau de poste à proximité. Ne manquez pas le marché Place de l’Eglise chaque mardi matin.Son prix de vente est de 309 000 €.Prenez contact avec notre agence (COLLOCH Christophe : (Numéro supprimé)) pour plus d’informations sur la maison, sur les modalités de vente ou sur les démarches à suivre. Maisons de l’Avenir Lorient vous accompagne dans tous vos projets immobiliers et dans toutes vos démarches.
Moëlan-sur-Mer
TERRAIN ET MAISONMaison F4 (95 m²) en vente à Moëlan-sur-MerEMPLACEMENT PRIVILÉGIÉ – MAISON 4 PIÈCES NEUVEÀ 4 km de l’océan Atlantique et à deux pas de Lorient, votre agence Maisons de l’Avenir Lorient est heureuse de vous présenter cette maison de 4 pièces de 95 m² et de 429 m² de terrain bénéficiant d’un emplacement d’exception dans Moëlan-sur-Mer (29350). Son intérieur inclut trois chambres, une cuisine et deux salles de bains.C’est une maison de 2 niveaux. Elle est neuve.Cette maison se situe dans un quartier attractif. L’École Primaire Privée Immaculée-Conception, l’École Élémentaire Publique de Moëlan-Sur-Sur et le Collège Parc-Ar-Ar-Ar Cotty se trouvent à moins de 10 minutes à pied, tout comme deux crèches. Niveau transports en commun, il y a la gare Quimperlé à moins de 10 minutes en voiture. La nationale N165 est accessible à 7 km. On trouve un tennis, des commerces, trois boulangeries, un supermarché et un bureau de poste dans les environs. Enfin, le marché Place de l’Eglise a lieu chaque mardi matin.Elle est à vendre pour la somme de 329 000 €.Prenez contact avec Christophe COLLOCH ((Numéro supprimé)) pour plus de renseignements sur la maison. Maisons de l’Avenir Lorient vous accompagne dans tous vos projets immobiliers et à toutes les étapes de votre projet.
Moëlan-sur-Mer
TERRAIN ET MAISONMaison T4 (90 m²) en vente à Moëlan-sur-MerEMPLACEMENT PRIVILÉGIÉ – MAISON 4 PIÈCES NEUVEEn vente : située à 4 km de la côte atlantique et à 21 km de Lorient, venez découvrir cette maison de 4 pièces de 90 m² bénéficiant d’un emplacement privilégié dans Moëlan-sur-Mer (29350).C’est une maison de 2 niveaux. Elle est composée de trois chambres, d’une cuisine et de deux salles de bains. La maison est neuve.Le terrain du bien s’étend sur 429 m².Cette maison est située dans un quartier attractif. On trouve l’École Primaire Privée Immaculée-Conception, l’École Élémentaire Publique de Moëlan-Sur-Sur et le Collège Parc-Ar-Ar-Ar Cotty à moins de 10 minutes à pied et deux structures d’accueil pour la petite enfance. Côté transports en commun, il y a la gare Quimperlé à moins de 10 minutes en voiture. On trouve un accès à la nationale N165 à 7 km. On trouve un tennis, des commerces, trois boulangeries, un supermarché et un bureau de poste à quelques minutes à peine. Ne manquez pas le marché Place de l’Eglise tous les mardis matin.Elle est proposée à l’achat pour 299 000 €.Contactez Christophe COLLOCH ((Numéro supprimé)) pour toute information sur la propriété, sur les démarches à suivre ou sur les modalités de vente. Maisons de l’Avenir Lorient vous accompagne dans tous vos projets immobiliers et dans toutes vos démarches.
Moëlan-sur-Mer
TERRAIN ET MAISONVENTE : maison de 5 pièces (120 m²) à Moëlan-sur-MerEMPLACEMENT PRIVILÉGIÉ – MAISON 5 PIÈCES NEUVEEn vente sur le littoral atlantique et à deux pas de Lorient, nous sommes heureux de vous présenter cette maison de 5 pièces de 120 m² et de 429 m² de terrain bénéficiant d’un emplacement privilégié dans Moëlan-sur-Mer (29350). Son intérieur offre quatre chambres, une cuisine et deux salles de bains.Il s’agit d’une maison de 2 niveaux. Elle est neuve.La maison se situe dans un secteur attractif. Il y a l’École Primaire Privée Immaculée-Conception, l’École Élémentaire Publique de Moëlan-Sur-Sur et le Collège Parc-Ar-Ar-Ar Cotty à moins de 10 minutes à pied et deux crèches. Niveau transports en commun, on trouve la gare Quimperlé à moins de 10 minutes en voiture. On trouve un accès à la nationale N165 à 7 km. Il y a un tennis, des commerces, trois boulangeries, un supermarché et un bureau de poste dans les environs. Le marché Place de l’Eglise a lieu tous les mardis matin.Elle est proposée à l’achat pour 358 000 €.Contactez notre agence (Christophe COLLOCH : (Numéro supprimé)) pour toute question sur la maison. Maisons de l’Avenir Lorient est là pour vous accompagner à toutes les étapes de l’achat.
L’actualité immobilière à Clohars-Carnoët
27/11/2023
02/11/2023
30/10/2023
20/10/2023
16/10/2023
16/10/2023