Maison à construire à Crozon (29160)
Images
Description
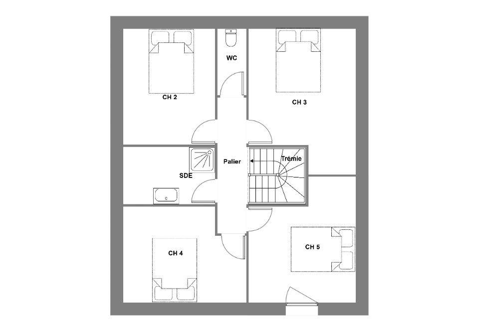
VENTE : maison T6 (155 m²) à Crozon
MAISON 6 PIÈCES NEUVE - PROCHE DE BREST
À vendre : à quelques kilomètres de la mer et à deux pas de Brest, à Crozon (29160), Maisons de l'Avenir Guipavas vous présente cette maison de 6 pièces de 155 m². Son intérieur dispose de cinq chambres, d'une cuisine et de deux salles de bains.
Le terrain du bien est de 690 m².
Il s'agit d'une maison de 2 niveaux.
Elle est à vendre pour la somme de 530 000 €.
Contactez Jean ROPERS ((Numéro supprimé)) pour plus d'informations sur ce bien ou sur les modalités de vente. Maisons de l'Avenir Guipavas vous accompagne à toutes les étapes de l'achat et dans toutes vos démarches.
Logement susceptibles de vous intéresser
Nous vous proposons de découvrir aussi cette sélection de logements situés à moins de 10km de Crozon et qui seraient susceptibles de vous intéresser.
Crozon
TERRAINVENTE d’un terrain de 1 412 m² à CrozonPROCHE CENTRE-VILLE – PROCHE DE BRESTGrand terrain sur le littoral et à deux pas de Brest. De 1 412 m², ce terrain se situe proche du centre-ville de Crozon (29160). Il bénéficie d’une exposition sud-ouest. Il y a cinq établissements scolaires à moins de 10 minutes à pied. Les nationales N165 et N265 sont accessibles à moins de 20 km. On trouve une bibliothèque, trois supermarchés, des commerces, quatre boulangeries, une boucherie-charcuterie et un bureau de poste à proximité du bien.Il est à vendre pour la somme de 190 400 €. N’hésitez pas à prendre contact avec notre agence (Sami ALKIS) pour toute question sur le terrain, sur les démarches à suivre ou sur les modalités de vente.
Crozon
TERRAIN ET MAISONMaison F4 (176 m²) à vendre à CrozonPROCHE CENTRE-VILLE – MAISON 4 PIÈCES NEUVEEn vente : sur le littoral et à quelques kilomètres de Brest, nous sommes heureux de vous proposer cette maison de 4 pièces de 176 m² proche du centre-ville de Crozon (29160). Elle comporte quatre chambres, une cuisine et deux salles de bains.Le terrain du bien est de 1 412 m².Cette maison compte 2 niveaux. Elle est neuve.Cinq établissements scolaires sont implantés à moins de 10 minutes à pied. Les nationales N165 et N265 sont accessibles à moins de 20 km. On trouve une bibliothèque, trois supermarchés, des commerces, quatre boulangeries, deux poissonneries et un bureau de poste à quelques minutes de la maison.Elle est à vendre pour la somme de 626 921 €.Contactez notre agence (ALKIS Sami) pour plus de renseignements sur la maison et sur les modalités de vente. Donnez vie à vos projets immobiliers avec Maisons de l’Avenir Guipavas.
Crozon
TERRAIN ET MAISONVENTE d’une maison de 5 pièces (142 m²) à CrozonPROCHE CENTRE-VILLE – MAISON 5 PIÈCES NEUVESur le littoral et à quelques kilomètres de Brest, ayez le coup de coeur pour cette maison de 5 pièces de 142 m² proche du centre-ville de Crozon (29160).Il s’agit d’une maison de 2 niveaux. Son intérieur se divise en quatre chambres, une cuisine et deux salles de bains. La maison est neuve.Le terrain du bien s’étend sur 1 412 m².Cinq établissements scolaires sont implantés à moins de 10 minutes à pied. Les nationales N165 et N265 sont accessibles à moins de 20 km. On trouve une bibliothèque, trois supermarchés, des commerces, quatre boulangeries, une boucherie-charcuterie et deux poissonneries à quelques minutes.Elle est proposée à l’achat pour 572 839 €.Prenez contact avec notre agence (Sami ALKIS) pour obtenir de plus amples renseignements sur la maison, sur les modalités de vente ou sur les démarches à suivre.
Crozon
TERRAIN ET MAISONVENTE d’une maison de 5 pièces (114 m²) à CrozonPROCHE CENTRE-VILLE – MAISON 5 PIÈCES NEUVEÀ quelques kilomètres de la mer et à 19 km de Brest, nous sommes heureux de vous présenter cette maison de 5 pièces de 114 m² en vente proche du centre-ville de Crozon (29160).Il s’agit d’une maison de 2 niveaux. Elle dispose de quatre chambres, d’une cuisine et d’une salle de bains. Cette maison est neuve.Le terrain du bien est de 1 412 m².Il y a cinq établissements scolaires à moins de 10 minutes à pied. Les nationales N165 et N265 sont accessibles à moins de 20 km. On trouve une bibliothèque, trois supermarchés, des commerces, quatre boulangeries, un bureau de poste et deux poissonneries dans les environs.Son prix de vente est de 493 422 €.Contactez notre agence (Sami ALKIS) pour toute question sur la maison, sur les démarches à suivre ou sur les modalités de vente. Maisons de l’Avenir Guipavas est là pour vous accompagner à toutes les étapes de l’achat.
Crozon
TERRAINTerrain de 690 m² en vente à CrozonPROCHE DE BRESTEn vente à quelques kilomètres de la mer et à quelques kilomètres de Brest à Crozon (29160), grand terrain. Réalisez-y votre résidence principale ou secondaire. Il est proposé à l’achat pour 154 000 €. Contactez Jean ROPERS ((Numéro supprimé)) pour obtenir de plus amples renseignements sur ce terrain. Maisons de l’Avenir Guipavas est là pour vous accompagner dans tous vos projets immobiliers.
Crozon
TERRAIN ET MAISONCrozon : maison de 5 pièces (130 m²) à vendreMAISON 5 PIÈCES NEUVE – PROCHE DE BRESTÀ vendre sur le littoral et à quelques kilomètres de Brest, à Crozon (29160), découvrez cette maison de 5 pièces de 130 m². Son intérieur compte quatre chambres, une cuisine et trois salles de bains.Le terrain du bien s’étend sur 690 m².Cette maison comporte 2 niveaux. Elle est à vendre pour la somme de 475 000 €.N’hésitez pas à prendre contact avec Jean ROPERS (tél : (Numéro supprimé)) pour obtenir de plus amples renseignements sur cette maison et sur les démarches à suivre. Maisons de l’Avenir Guipavas est là pour vous accompagner à toutes les étapes de l’achat.
Crozon
TERRAIN ET MAISONVENTE d’une maison F4 (115 m²) à CrozonPROCHE DE BREST – MAISON 4 PIÈCES NEUVESur le littoral et à quelques kilomètres de Brest, en vente à Crozon (29160), laissez vous charmer par cette maison de 4 pièces de 115 m².Cette maison comporte 2 niveaux. Elle est composée de trois chambres, d’une cuisine et de deux salles de bains. Le terrain de la propriété s’étend sur 690 m².Elle est à vendre pour la somme de 442 000 €.N’hésitez pas à prendre contact avec Jean ROPERS (tél : (Numéro supprimé)) pour plus de renseignements sur cette maison, sur les démarches à suivre et sur les modalités de vente. Donnez vie à vos projets immobiliers avec Maisons de l’Avenir Guipavas.
Crozon
TERRAIN ET MAISONVENTE : maison T6 (155 m²) à CrozonMAISON 6 PIÈCES NEUVE – PROCHE DE BRESTÀ vendre : à quelques kilomètres de la mer et à deux pas de Brest, à Crozon (29160), Maisons de l’Avenir Guipavas vous présente cette maison de 6 pièces de 155 m². Son intérieur dispose de cinq chambres, d’une cuisine et de deux salles de bains.Le terrain du bien est de 690 m².Il s’agit d’une maison de 2 niveaux. Elle est à vendre pour la somme de 530 000 €.Contactez Jean ROPERS ((Numéro supprimé)) pour plus d’informations sur ce bien ou sur les modalités de vente. Maisons de l’Avenir Guipavas vous accompagne à toutes les étapes de l’achat et dans toutes vos démarches.
Crozon
TERRAIN ET MAISONCrozon : maison T5 (139 m²) à vendrePROCHE DE BREST – MAISON 5 PIÈCES NEUVEÀ vendre sur le littoral et à 19 km de Brest, votre agence Maisons de l’Avenir Guipavas est heureuse de vous proposer cette maison de 5 pièces de plain-pied de 139 m² et de 690 m² de terrain à Crozon (29160). Son intérieur dispose de quatre chambres, d’une cuisine et de deux salles de bains.Elle est proposée à l’achat pour 464 000 €.Prenez contact avec Jean ROPERS (tél : (Numéro supprimé)) pour plus d’informations sur la maison, sur les modalités de vente ou sur les démarches à suivre. Maisons de l’Avenir Guipavas est là pour vous accompagner dans tous vos projets immobiliers.
L’actualité immobilière à Crozon
27/11/2023
02/11/2023
30/10/2023
20/10/2023
16/10/2023
16/10/2023