Maison à construire à Henvic (29670)
Images
Description
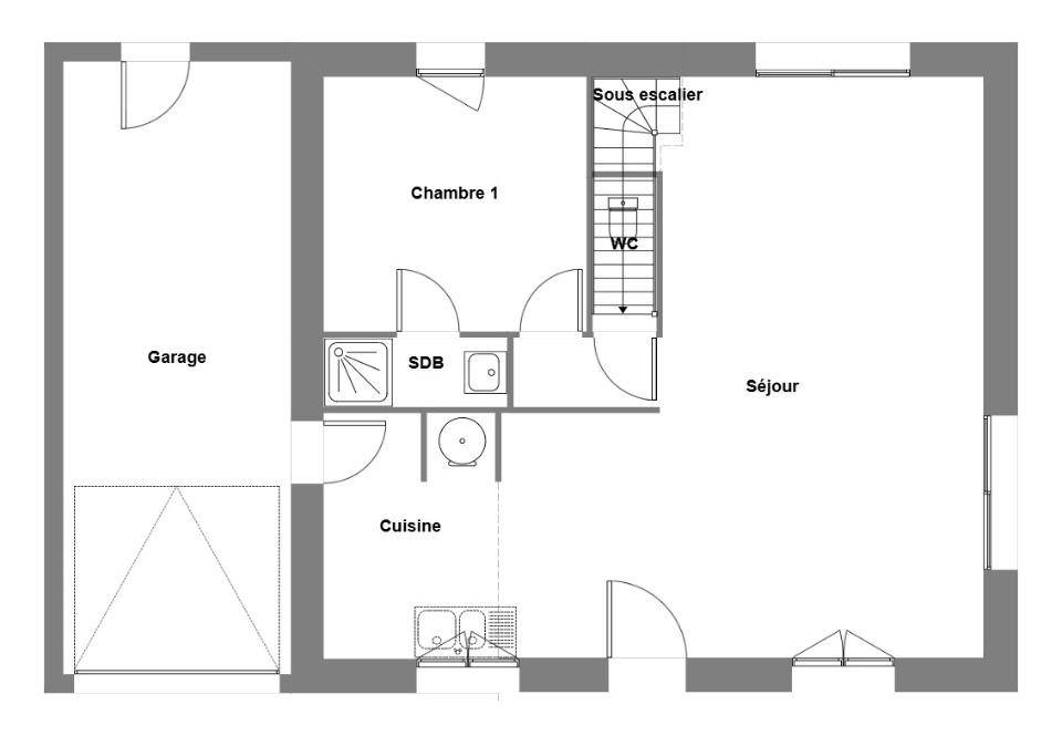
VENTE d'une maison T6 (118 m²) à Henvic
Cette belle maison traditionnelle aux lignes contemporaines offre 118m² habitable .
Au rez-de-chaussée, elle dispose d'une belle pièce de vie offrant un maximum de lumière, d'une suite parentale avec sa salle d'eau, d'un wc et d'un garage.
A l'étage on retrouve 4 chambres, une salle de bains, et un WC.
L'orientation de cette maison vous permettra de bénéficier d'un maximum de lumière et de chaleur naturelle pour davantage d'économies et de douceur de vivre.
Son prix de vente est de 363 000 €.
Contactez notre constructeur (CAGNARD Aurélie : (Numéro supprimé)) pour toute information sur la maison, sur les modalités de vente ou sur les démarches à suivre. Maisons de l'Avenir Guipavas est là pour vous accompagner à toutes les étapes de l'achat.
Logement susceptibles de vous intéresser
Nous vous proposons de découvrir aussi cette sélection de logements situés à moins de 10km de Henvic et qui seraient susceptibles de vous intéresser.
Plouvorn
TERRAIN ET MAISONDEVENEZ PROPRIÉTAIRE À PLOUVORN – MAISON NEUVE RE2020 SUR-MESURE !Vivez dans un cadre de vie privilégié à Plouvorn, charmante commune dynamique du Nord-Finistère, idéalement située entre Landivisiau et Saint-Pol-de-Léon.Profitez du calme de la campagne, tout en restant proche des commerces, écoles et services – un environnement idéal pour votre famille ! Votre future maison comprend 😮 3 chambres spacieuses et lumineuseso Un grand salon-séjour traversant, ouvert sur le jardino Une cuisine moderne et fonctionnelleo Salle de bain et WC séparéso Le tout sur un terrain de 468 m², bien orienté Les atouts du projet 😮 Maison neuve RE2020, à faible consommation d’énergieo Plan personnalisable selon vos envies et vos besoinso Cadre de vie paisible, à proximité de Morlaix, Landivisiau et du littoral nordo Prestations de qualité, finitions soignées Prix indiqué hors frais Photos non contractuelles à titre d’illustration Accession à la propriété possible avec ou sans apportNe manquez pas cette belle opportunité de devenir propriétaire d’une maison neuve moderne et économique à Plouvorn ! Contactez-nous dès maintenant pour découvrir les plans et étudier votre projet personnalisé.
Plouénan
TERRAIN ET MAISONMaison T5 (113 m²) en vente à PlouénanNouveau Maison Murs Ossature Bois Ce très beau plain-pied aux lignes contemporaine, de 113 m² agencé astucieusement pour un maximum de luminosité, pièce de vie ouverte et volumineuse, 4 chambres dont 1 suite parentale, son grand cellier et son garage. Aux normes RE2020, peu énergivore, elle vous ravira par son confort de vie Elle est à vendre pour la somme de 316 500 €.Contactez Aurélie CAGNARD (tél : (Numéro supprimé)) pour toute question sur cette maison ou sur les démarches à suivre.
Morlaix
TERRAINMorlaix : terrain de 864 m² à vendreGrand terrain, offrant une surface généreuse, présente une opportunité unique de construire la maison de vos rêves. Il est parfaitement située proche de la nationale 12, et vous permet d’envisager tous types de projets.Vous serez à proximité de toutes les commodités nécessaires au quotidienSon prix de vente est de 66 000 €. N’hésitez pas à prendre contact avec Aurélie CAGNARD (tél : (Numéro supprimé)) pour plus d’informations sur ce terrain et sur les démarches à suivre. Maisons de l’Avenir Guipavas vous accompagne à toutes les étapes de votre projet et dans tous vos projets immobiliers.
Morlaix
TERRAIN ET MAISONMorlaix : maison de 4 pièces (80 m²) en venteTrès beau plain-pied aux lignes traditionnelles, agencé astucieusement pour un maximum de luminosité, pièce de vie ouverte et volumineuse, grand cellier, 3 chambres.Aux normes RE2020, peu énergivore, elle vous ravira par son confort de vie.864 m² de terrain à Morlaix (29600).Son prix de vente est de 242 700 €.Contactez notre agence (Aurélie CAGNARD : (Numéro supprimé)) pour toute question sur la maison, sur les modalités de vente ou sur les démarches à suivre. Concrétisez vos projets immobiliers avec Maisons de l’Avenir Guipavas.
Morlaix
TERRAIN ET MAISONMaison de 5 pièces (127 m²) en vente à MorlaixLe terrain du bien s’étend sur 864 m².Très beau plain-pied aux lignes traditionnelles, agencé astucieusement pour un maximum de luminosité, pièce de vie ouverte et volumineuse, grand cellier, 3 chambres dont une suite parentale, un bureau, un cellier.Aux normes RE2020, peu énergivore, elle vous ravira par son confort de vie Elle est proposée à l’achat pour 385 000 €.Contactez notre agence (CAGNARD Aurélie : (Numéro supprimé)) pour tout renseignement sur la maison et sur les démarches à suivre. Donnez vie à vos projets immobiliers avec Maisons de l’Avenir Guipavas.
Morlaix
TERRAIN ET MAISONVENTE : maison F3 (55 m²) à MorlaixÀ vendre : située à 7 km des plages, nous vous présentons cette maison de 3 pièces de plain-pied de 55 m² et de 864 m² de terrain.Conçue de plain-pied, elle compte deux chambres, une cuisine et une salle de bains, cette maison vous permettra de bénéficier d’un maximum de lumière et de chaleur naturelle pour davantage d’économies et de douceur de vivre.Elle est à vendre pour la somme de 193 000 €.Contactez Aurélie CAGNARD (tél : (Numéro supprimé)) pour obtenir de plus amples informations sur cette propriété, sur les démarches à suivre ou sur les modalités de vente.
Morlaix
TERRAIN ET MAISONVENTE d’une maison de 4 pièces (94 m²) à MorlaixNouveau Murs Ossature BoisCette belle maison traditionnelle aux lignes contemporaines offre 94m² habitable . Elle dispose d’une suite parentale avec sa salle d’eau, d’une belle pièce de vie offrant un maximum de lumière, 2 chambres, une salle de bains, un WC et son garage. L’orientation de cette maison vous permettra de bénéficier d’un maximum de lumière et de chaleur naturelle pour davantage d’économies et de douceur de vivre.Aux normes RE2020, peu énergivore, elle vous ravira par son confort de vie.Elle est proposée à l’achat pour 278 400 €.Prenez contact avec notre agence (Aurélie CAGNARD : (Numéro supprimé)) pour tout renseignement sur la maison. Maisons de l’Avenir Guipavas est là pour vous accompagner dans tous vos projets immobiliers.
Plouénan
TERRAINDans la charmante commune de Plouénan, un terrain exceptionnel de 513m² est sur le marché. Ce terrain, idéalement situé, offre une opportunité rare d’investissement et de construction dans une zone recherchée.Ce terrain se distingue par son emplacement de choix. L’atout majeur de ce terrain est sans aucun doute sa superficie généreuse de 513m². Cet espace offre une grande liberté pour la construction de votre future maison. Si vous envisagiez une maison familiale ce terrain est idéal pour réaliser vos projets.De plus, ce terrain bénéficie d’une excellente exposition. Il promet une luminosité optimale tout au long de la journée, un atout de taille pour profiter au maximum de votre future habitation.N’attendez plus pour découvrir ce terrain de 513m² à Plouénan, une opportunité à ne pas manquer pour concrétiser vos projets immobiliers.Son prix de vente est de 52 900 €. N’hésitez pas à prendre contact avec Aurélie CAGNARD (tél : (Numéro supprimé)) pour obtenir de plus amples informations sur ce terrain.
Plouénan
TERRAIN ET MAISONMaison de 4 pièces (67 m²) en vente à PlouénanCette belle maison traditionnelle aux lignes traditionnelles offre 67m² habitable . Elle est évolutive.Au rez-de-chaussée, elle dispose d’une belle pièce de vie offrant un maximum de lumière, d’un wc, d’un cellier.A l’étage on retrouve 3 chambres, une salle de bains, et un WC. L’orientation de cette maison vous permettra de bénéficier d’un maximum de lumière et de chaleur naturelle pour davantage d’économies et de douceur de vivre.Son prix de vente est de 186 900 €.Prenez contact avec Aurélie CAGNARD (tél : (Numéro supprimé)) pour toute question sur cette maison, sur les démarches à suivre ou sur les modalités de vente. Maisons de l’Avenir Guipavas est là pour vous accompagner à toutes les étapes de l’achat.
L’actualité immobilière à Henvic
27/11/2023
02/11/2023
30/10/2023
20/10/2023
16/10/2023
16/10/2023