Maison à construire à Hôpital-Camfrout (29460)
Images
Description
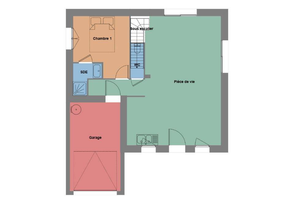
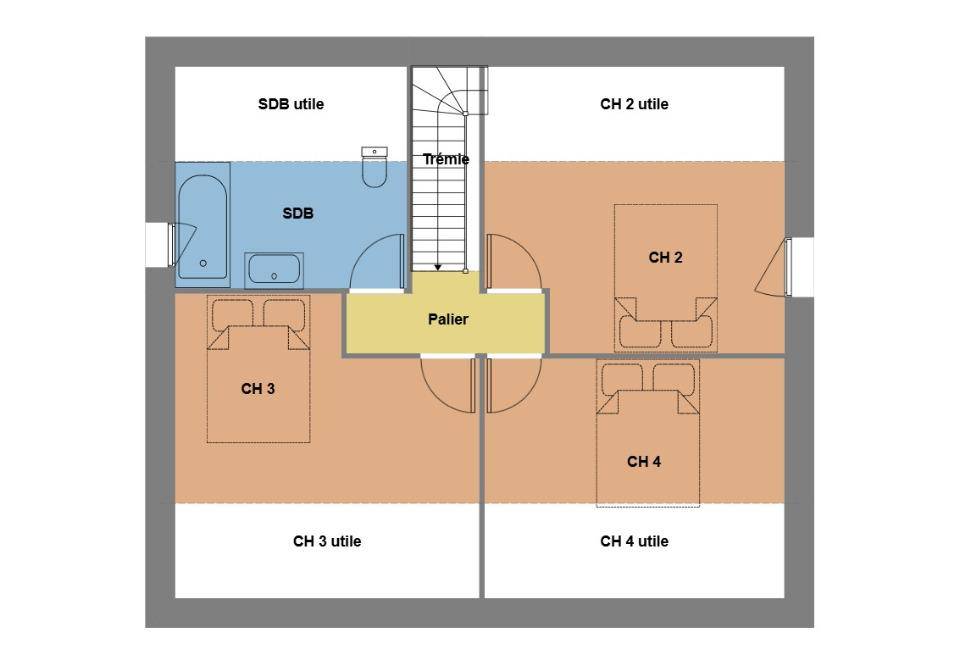
VENTE d'une maison de 5 pièces (102 m²) à Hôpital-Camfrout
PROCHE CENTRE-VILLE - MAISON 5 PIÈCES NEUVE
À quelques kilomètres de la mer et à deux pas de Brest, en vente proche du centre-ville d'Hôpital-Camfrout (29460), Maisons de l'Avenir Guipavas vous propose cette maison de 5 pièces de 102 m².
Il s'agit d'une maison de 2 niveaux. Elle offre quatre chambres, une cuisine et deux salles de bains. Cette maison est neuve.
Le terrain de la propriété est de 370 m².
Il y a l'École Élémentaire Publique Renée le Née à moins de 10 minutes à pied. Côté transports, on trouve la gare Dirinon à moins de 10 minutes en voiture. La nationale N165 est accessible à 4 km. Il y a une boulangerie et une épicerie dans les environs.
Son prix de vente est de 247 851 €.
Contactez notre agence (Sami ALKIS) pour toute question sur la maison. Maisons de l'Avenir Guipavas est là pour vous accompagner dans tous vos projets immobiliers.
Logement susceptibles de vous intéresser
Nous vous proposons de découvrir aussi cette sélection de logements situés à moins de 10km de Hôpital-Camfrout et qui seraient susceptibles de vous intéresser.
Hôpital-Camfrout
TERRAIN ET MAISONDEVENEZ PROPRIÉTAIRE À HÔPITAL-CAMFROUT – MAISON NEUVE RE2020 SUR-MESURE !Vivez dans un cadre de vie privilégié à Hôpital-Camfrout, charmante commune dynamique du Nord-Finistère, idéalement située entre Quimper et Brest.Profitez du calme de la campagne, tout en restant proche des commerces, écoles et services – un environnement idéal pour votre famille ! Votre future maison comprend 😮 2 chambres spacieuses et lumineuseso Un grand salon séjour traversant, ouvert sur le jardino Une cuisine moderne et fonctionnelleo Salle de bain et WC séparéso Le tout sur un terrain de 570 m², bien orienté Les atouts du projet 😮 Maison neuve RE2020, à faible consommation d’énergieo Plan personnalisable selon vos envies et vos besoinso Cadre de vie paisible, à proximité de Quimper, Brest et du littoral nordo Prestations de qualité, finitions soignées Prix indiqué hors frais Photos non contractuelles à titre d’illustration Accession à la propriété possible avec ou sans apportNe manquez pas cette belle opportunité de devenir propriétaire d’une maison neuve moderne et économique à Hôpital-Camfrout ! Contactez-nous dès maintenant pour découvrir les plans et étudier votre projet personnalisé.
Hôpital-Camfrout
TERRAINVENTE : terrain de 570 m² à Hôpital-CamfroutIDÉALEMENT SITUÉ – PROCHE DE BRESTÀ vendre sur le littoral et à quelques kilomètres de Brest à Hôpital-Camfrout (29460), grand terrain. Réalisez-y la maison de vos rêves. Il bénéficie d’une exposition sud. Dans un quartier prisé, ce terrain idéalement situé est proche des écoles et des commerces. Il y a l’École Élémentaire Publique Renée le Née à moins de 10 minutes à pied. Niveau transports en commun, on trouve la gare Dirinon à moins de 10 minutes en voiture. On trouve un accès à la nationale N165 à 4 km. Il y a une boulangerie et une épicerie à quelques minutes.Son prix de vente est de 70 000 €. N’hésitez pas à prendre contact avec Erwan TILLY pour toute information sur le terrain, sur les modalités de vente ou sur les démarches à suivre. Faites de vos projets immobiliers une réalité avec Maisons de l’Avenir Guipavas.
Hôpital-Camfrout
TERRAIN ET MAISONMaison T5 (115 m²) en vente à Hôpital-CamfroutIDÉALEMENT SITUÉE – MAISON 5 PIÈCES NEUVEEn vente : à quelques kilomètres de la mer et à quelques kilomètres de Brest, idéalement située dans Hôpital-Camfrout (29460), ayez le coup de coeur pour cette maison de 5 pièces de plain-pied de 115 m².Conçue de plain-pied, elle dispose de quatre chambres, d’une cuisine et de deux salles de bains. La maison est neuve.Le terrain du bien s’étend sur 570 m².La maison se trouve dans un quartier prisé. Il y a l’École Élémentaire Publique Renée le Née à moins de 10 minutes à pied. Côté transports, on trouve la gare Dirinon à moins de 10 minutes en voiture. Il y a un accès à la nationale N165 à 4 km. Il y a une boulangerie et une épicerie dans les environs.Elle est à vendre pour la somme de 358 000 €.N’hésitez pas à prendre contact avec Erwan TILLY pour toute question sur la maison. Maisons de l’Avenir Guipavas vous accompagne dans tous vos projets immobiliers et dans toutes vos démarches.
Hôpital-Camfrout
TERRAIN ET MAISONVENTE d’une maison de 5 pièces (140 m²) à Hôpital-CamfroutIDÉALEMENT SITUÉE – MAISON 5 PIÈCES NEUVEÀ vendre : située sur le littoral et à 22 km de Brest, nous vous proposons, idéalement située dans Hôpital-Camfrout (29460), cette maison de 5 pièces de 140 m².Cette maison comporte 2 niveaux. Son intérieur inclut quatre chambres, une cuisine et deux salles de bains. La maison est neuve.Le terrain de la propriété s’étend sur 570 m².Ce bien se situe dans un secteur prisé. L’École Élémentaire Publique Renée le Née est implantée à moins de 10 minutes à pied. Niveau transports en commun, on trouve la gare Dirinon à moins de 10 minutes en voiture. Il y a un accès à la nationale N165 à 4 km. Il y a une boulangerie et une épicerie à proximité.Il est proposé à l’achat pour 432 800 €.Contactez Erwan TILLY pour obtenir de plus amples informations sur la maison ou sur les modalités de vente.
Hôpital-Camfrout
TERRAIN ET MAISONVENTE d’une maison T5 (105 m²) à Hôpital-CamfroutIDÉALEMENT SITUÉE – MAISON 5 PIÈCES NEUVEÀ vendre à quelques kilomètres de la mer et à quelques kilomètres de Brest, nous vous présentons cette maison de 5 pièces de 105 m² idéalement située dans Hôpital-Camfrout (29460). Son intérieur est composé de quatre chambres, d’une cuisine et de deux salles de bains.Le terrain du bien s’étend sur 570 m².Il s’agit d’une maison de 2 niveaux. Elle est neuve.Cette maison est située dans un quartier attractif. L’École Élémentaire Publique Renée le Née se trouve à moins de 10 minutes à pied. Côté transports, il y a la gare Dirinon à moins de 10 minutes en voiture. La nationale N165 est accessible à 4 km. On trouve une boulangerie et une épicerie à proximité.Elle est proposée à l’achat pour 312 000 €.Prenez contact avec Erwan TILLY pour toute question sur la maison. Maisons de l’Avenir Guipavas est là pour vous accompagner dans tous vos projets immobiliers.
Hôpital-Camfrout
TERRAIN ET MAISONMaison T4 (75 m²) à vendre à Hôpital-CamfroutIDÉALEMENT SITUÉE – MAISON 4 PIÈCES NEUVEEn vente : située sur le littoral et à deux pas de Brest, Maisons de l’Avenir Guipavas vous propose cette maison de 4 pièces de plain-pied de 75 m², idéalement située dans Hôpital-Camfrout (29460).Elle dispose de trois chambres, d’une cuisine et d’une salle de bains. Cette maison est neuve.Le terrain de la propriété est de 570 m².Cette maison se trouve dans un secteur prisé. L’École Élémentaire Publique Renée le Née est implantée à moins de 10 minutes à pied. Côté transports, on trouve la gare Dirinon à moins de 10 minutes en voiture. On trouve un accès à la nationale N165 à 4 km. Il y a une boulangerie et une épicerie dans les environs.Elle est proposée à l’achat pour 250 000 €.Contactez Erwan TILLY pour toute question sur la maison. Faites de vos projets immobiliers une réalité avec Maisons de l’Avenir Guipavas.
Hôpital-Camfrout
TERRAINHôpital-Camfrout : terrain de 370 m² à vendrePROCHE CENTRE-VILLE – PROCHE DE BRESTTerrain de 370 m² à vendre à quelques kilomètres de la mer et à deux pas de Brest. Ce terrain se situe proche du centre-ville d’Hôpital-Camfrout (29460). Il est orienté au sud-ouest. Il y a l’École Élémentaire Publique Renée le Née à moins de 10 minutes à pied. Niveau transports, on trouve la gare Dirinon à moins de 10 minutes en voiture. On trouve un accès à la nationale N165 à 4 km. Il y a une boulangerie et une épicerie dans les environs.Il est à vendre pour la somme de 49 000 €. Contactez Sami ALKIS pour toute information sur le terrain. Faites de vos projets immobiliers une réalité avec Maisons de l’Avenir Guipavas.
Hôpital-Camfrout
TERRAIN ET MAISONHôpital-Camfrout : maison F3 (55 m²) en ventePROCHE CENTRE-VILLE – MAISON 3 PIÈCES NEUVEEn vente : sur le littoral et à 22 km de Brest, proche du centre-ville d’Hôpital-Camfrout (29460), ayez le coup de coeur pour cette maison de 3 pièces de plain-pied de 55 m² et de 370 m² de terrain.Conçue de plain-pied, elle offre deux chambres, une cuisine et une salle de bains. La maison est neuve.On trouve l’École Élémentaire Publique Renée le Née à moins de 10 minutes à pied. Niveau transports en commun, il y a la gare Dirinon à moins de 10 minutes en voiture. On trouve un accès à la nationale N165 à 4 km. On trouve une boulangerie et une épicerie dans les environs.Elle est proposée à l’achat pour 185 932 €.N’hésitez pas à prendre contact avec Sami ALKIS pour toute question sur la maison, sur les démarches à suivre ou sur les modalités de vente.
Hôpital-Camfrout
TERRAIN ET MAISONVENTE d’une maison de 5 pièces (102 m²) à Hôpital-CamfroutPROCHE CENTRE-VILLE – MAISON 5 PIÈCES NEUVEÀ quelques kilomètres de la mer et à deux pas de Brest, en vente proche du centre-ville d’Hôpital-Camfrout (29460), Maisons de l’Avenir Guipavas vous propose cette maison de 5 pièces de 102 m².Il s’agit d’une maison de 2 niveaux. Elle offre quatre chambres, une cuisine et deux salles de bains. Cette maison est neuve.Le terrain de la propriété est de 370 m².Il y a l’École Élémentaire Publique Renée le Née à moins de 10 minutes à pied. Côté transports, on trouve la gare Dirinon à moins de 10 minutes en voiture. La nationale N165 est accessible à 4 km. Il y a une boulangerie et une épicerie dans les environs.Son prix de vente est de 247 851 €.Contactez notre agence (Sami ALKIS) pour toute question sur la maison. Maisons de l’Avenir Guipavas est là pour vous accompagner dans tous vos projets immobiliers.
L’actualité immobilière à Hôpital-Camfrout
27/11/2023
02/11/2023
30/10/2023
20/10/2023
16/10/2023
16/10/2023