Maison à construire à Landéda (29870)
Images
Description
📍 Rare à la vente - Terrain à Landéda - 69 000 €
À vendre : magnifique terrain de 605 m², issu d'un petit lotissement, situé dans un quartier prisé et calme de Landéda.
Une opportunité rare sur le marché pour concrétiser votre projet de construction dans un environnement serein et recherché.
💰 Prix : 69 000 €
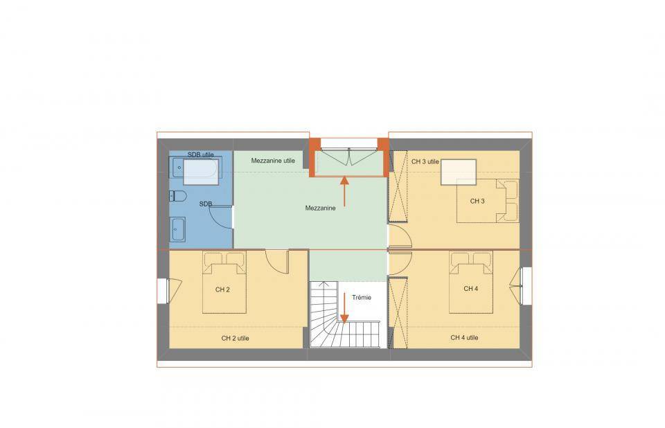
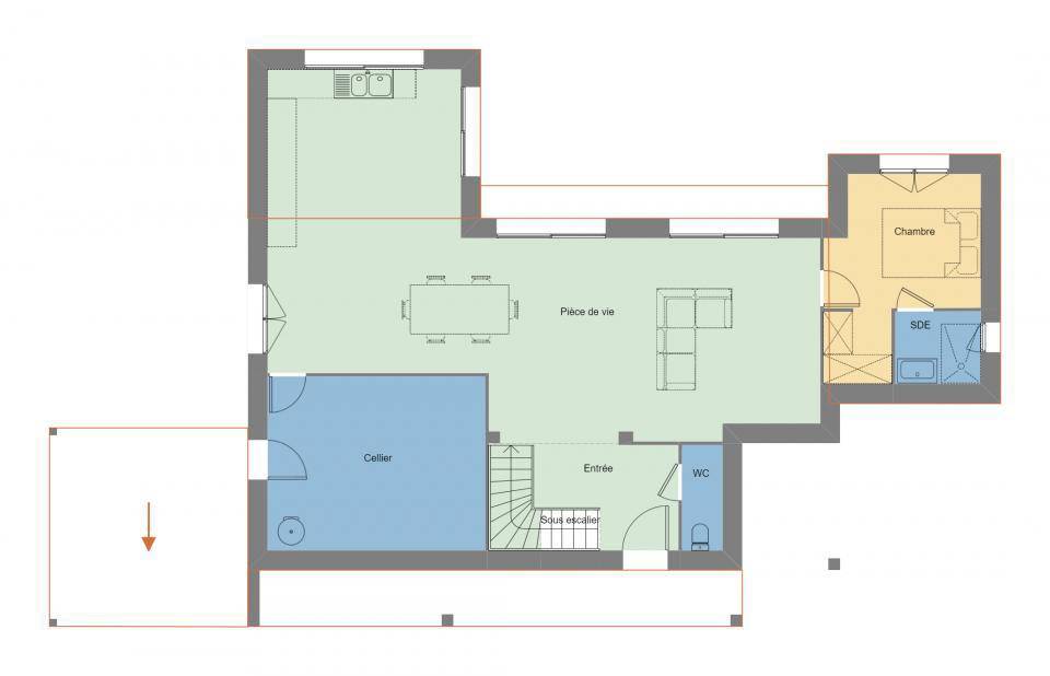
🏡 Projet clé en main : Nous vous proposons les plans d'une maison de 150 m², pensée dans le cadre de notre concept Bâti Activ Passif, alliant performance énergétique et confort.
Cette maison comprend :
✔️ 5 chambres
✔️ Un vaste espace de vie lumineux de plus de 55m2
✔️ 2 salles de bains
✔️ Un double garage
💰 Opération terrain + maison : 450 000 €
Pour plus d'informations et pour imaginer ensemble votre future maison, contactez Erwan TILLY - Maisons de l'Avenir.
Logement susceptibles de vous intéresser
Nous vous proposons de découvrir aussi cette sélection de logements situés à moins de 10km de Landéda et qui seraient susceptibles de vous intéresser.
Plouguerneau
TERRAIN ET MAISONDEVENEZ PROPRIÉTAIRE À PLOUGUERNEAU – MAISON NEUVE RE2020 SUR-MESUREVivez au cœur de Plouguerneau, charmante commune littorale du Nord-Finistère, réputée pour sa qualité de vie, ses plages et son ambiance familiale.Profitez d’un cadre de vie entre mer et campagne, à proximité immédiate des commerces, écoles et services, tout en restant à seulement quelques minutes de Lesneven et Lannilis. Votre future maison comprendo 4 chambres spacieuses et lumineuseso Un grand salon-séjour traversant, ouvert sur le jardino Une cuisine moderne et fonctionnelleo Salle de bain et WC séparéso Le tout sur un terrain de 557 m², idéalement orienté et prêt à accueillir votre projet de vie Les atouts du projeto Maison neuve RE2020, économe en énergieo Plan personnalisable selon vos envies et votre mode de vieo Environnement paisible à proximité du littoral et des plageso Prestations de qualité et finitions soignéeso Commune dynamique et bien desservie, à 30 min de Brest Prix indiqué hors frais Photos non contractuelles à titre d’illustration Accession à la propriété possible avec ou sans apportNe manquez pas cette belle opportunité de devenir propriétaire d’une maison neuve, moderne et économique à Plouguerneau ! Contactez-nous dès maintenant pour découvrir les plans et étudier votre projet personnalisé
Plouguerneau
TERRAIN ET MAISONDEVENEZ PROPRIÉTAIRE À PLOUGUERNEAU – MAISON NEUVE RE2020 SUR-MESUREVivez au cœur de Plouguerneau, charmante commune littorale du Nord-Finistère, réputée pour sa qualité de vie, ses plages et son ambiance familiale.Profitez d’un cadre de vie entre mer et campagne, à proximité immédiate des commerces, écoles et services, tout en restant à seulement quelques minutes de Lesneven et Lannilis. Votre future maison comprendo 2 chambres spacieuses et lumineuseso Un grand salon-séjour traversant, ouvert sur le jardino Une cuisine moderne et fonctionnelleo Salle de bain et WC séparéso Le tout sur un terrain de 468 m², idéalement orienté et prêt à accueillir votre projet de vie Les atouts du projeto Maison neuve RE2020, économe en énergieo Plan personnalisable selon vos envies et votre mode de vieo Environnement paisible à proximité du littoral et des plageso Prestations de qualité et finitions soignéeso Commune dynamique et bien desservie, à 30 min de Brest Prix indiqué hors frais Photos non contractuelles à titre d’illustration Accession à la propriété possible avec ou sans apportNe manquez pas cette belle opportunité de devenir propriétaire d’une maison neuve, moderne et économique à Plouguerneau ! Contactez-nous dès maintenant pour découvrir les plans et étudier votre projet personnalisé
Plouguerneau
TERRAINVENTE : terrain de 450 m² à PlouguerneauCENTRE-VILLE – NOUVEAUTE! rare , plat et bien exposéTerrain de 450 m² en vente à quelques kilomètres de la mer et à quelques kilomètres de Brest. Ce terrain se situe à Plouguerneau (29880), en centre-ville. L’École Primaire Privée Saint Joseph et l’École Primaire Publique le Petit Prince sont implantées à moins de 10 minutes à pied. Il y a un accès à la nationale N12 à 20 km. On trouve un tennis, deux boulangeries, des commerces, deux supermarchés, un bureau de poste et une supérette à quelques minutes à peine. Son prix de vente est de 45 000 €. Contactez notre agence (ROPERS Jean : (Numéro supprimé)) pour toute question sur ce terrain et sur les démarches à suivre. Donnez vie à vos projets immobiliers avec Maisons de l’Avenir Guipavas.
Plouguerneau
TERRAIN ET MAISONPlouguerneau : maison T4 (90 m²) en venteCENTRE-VILLE – MAISON 4 PIÈCES NEUVEEn vente : à quelques kilomètres de la mer et à deux pas de Brest, Maisons de l’Avenir Guipavas vous propose, en plein coeur de Plouguerneau (29880), cette maison de 4 pièces de 90 m² et de 450 m² de terrain. Elle comporte trois chambres, une cuisine et deux salles de bains.Il s’agit d’une maison de 2 niveaux. L’École Primaire Privée Saint Joseph et l’École Primaire Publique le Petit Prince sont implantées à moins de 10 minutes à pied. La nationale N12 est accessible à 20 km. Il y a un tennis, deux boulangeries, des commerces, deux supermarchés, une supérette et une épicerie dans les environs.Elle est à vendre pour la somme de 262 000 €.Contactez notre agence (Jean ROPERS : (Numéro supprimé)) pour obtenir de plus amples renseignements sur la maison ou sur les démarches à suivre. Maisons de l’Avenir Guipavas vous accompagne dans tous vos projets immobiliers et à toutes les étapes de votre projet.
Plouguerneau
TERRAIN ET MAISONVENTE : maison T5 (85 m²) à PlouguerneauCENTRE-VILLE – MAISON 5 PIÈCES NEUVESur le littoral et à 22 km de Brest, nous vous présentons cette maison de 5 pièces de 85 m² et de 450 m² de terrain à Plouguerneau (29880), en centre-ville. Elle compte trois chambres, une cuisine et deux salles de bains.Il s’agit d’une maison de 2 niveaux.Son prix de vente est de 262 000 €.Contactez Jean ROPERS ((Numéro supprimé)) pour tout renseignement sur la maison, sur les modalités de vente ou sur les démarches à suivre. Maisons de l’Avenir Guipavas vous accompagne dans tous vos projets immobiliers et à toutes les étapes de l’achat.
Plouguerneau
TERRAIN ET MAISONPlouguerneau : maison F3 (80 m²) en venteCENTRE-VILLE – MAISON 3 PIÈCES NEUVEEn vente sur le littoral et à 22 km de Brest, notre agence Maisons de l’Avenir Guipavas est ravie de vous présenter cette maison de 3 pièces de plain-pied de 80 m², dans le centre de Plouguerneau (29880). Elle dispose de trois chambres, d’une cuisine et d’une salle de bains.Le terrain de cette maison est de 450 m².Son prix de vente est de 251 000 €.N’hésitez pas à prendre contact avec notre constructeur (Jean ROPERS : (Numéro supprimé)) pour toute information sur la maison, sur les démarches à suivre ou sur les modalités de vente.
Plouguerneau
TERRAIN ET MAISONPlouguerneau : maison de 4 pièces (70 m²) à vendreCENTRE-VILLE – MAISON 4 PIÈCES NEUVESur le littoral et à 22 km de Brest, notre agence Maisons de l’Avenir Guipavas est ravie de vous présenter cette maison de 4 pièces de 70 m² et de 450 m² de terrain à vendre dans le centre de Plouguerneau (29880).Cette maison possède 2 niveaux. Elle se divise en trois chambres, une cuisine et une salle de bains. Son prix de vente est de 229 000 €.Prenez contact avec notre constructeur (ROPERS Jean : (Numéro supprimé)) pour tout renseignement sur la maison ou sur les modalités de vente. Maisons de l’Avenir Guipavas est là pour vous accompagner à toutes les étapes de l’achat.
Plouguerneau
TERRAIN ET MAISONVENTE d’une maison F4 (90 m²) à PlouguerneauCENTRE-VILLE – MAISON 4 PIÈCES OSSATURE BOIEn vente à quelques kilomètres de la mer et à 22 km de Brest, nous sommes heureux de vous proposer cette maison de 4 pièces de plain-pied de 90 m² et de 450 m² de terrain, dans le centre de Plouguerneau (29880). Son intérieur est composé de trois chambres, d’une cuisine et de deux salles de bains.Elle est à vendre pour la somme de 286 650 €.N’hésitez pas à prendre contact avec notre agence (ROPERS Jean : (Numéro supprimé)) pour toute information sur la propriété. Maisons de l’Avenir Guipavas est là pour vous accompagner dans tous vos projets immobiliers.
Lannilis
TERRAIN ET MAISONVENTE d’une maison de 5 pièces (102 m²) à LannilisPROCHE CENTRE-VILLE – MAISON 5 PIÈCES NEUVEÀ vendre : localisée à quelques kilomètres de la mer et à quelques kilomètres de Brest, Maisons de l’Avenir Guipavas vous propose, proche du centre-ville de Lannilis (29870), cette maison de 5 pièces de 102 m² et de 403 m² de terrain.Il s’agit d’une maison de 2 niveaux. Son intérieur compte quatre chambres, une cuisine et deux salles de bains. Cette maison est neuve.Quatre établissements scolaires sont implantés à moins de 10 minutes à pied, tout comme une crèche. Les nationales N12 et N265 sont accessibles à moins de 19 km. Il y a une bibliothèque, un tennis, des commerces, quatre boulangeries, deux supermarchés, deux boucheries-charcuteries et un bureau de poste dans les environs. Enfin, le marché Place Leclerc anime le quartier tous les mercredis.Elle est proposée à l’achat pour 256 891 €.N’hésitez pas à prendre contact avec notre agence (ALKIS Sami) pour plus de renseignements sur la maison, sur les modalités de vente ou sur les démarches à suivre. Maisons de l’Avenir Guipavas vous accompagne à toutes les étapes de votre projet et dans tous vos projets immobiliers.
L’actualité immobilière à Landéda
27/11/2023
02/11/2023
30/10/2023
20/10/2023
16/10/2023
16/10/2023