Maison à construire à Ploéven (29550)
Images
Description
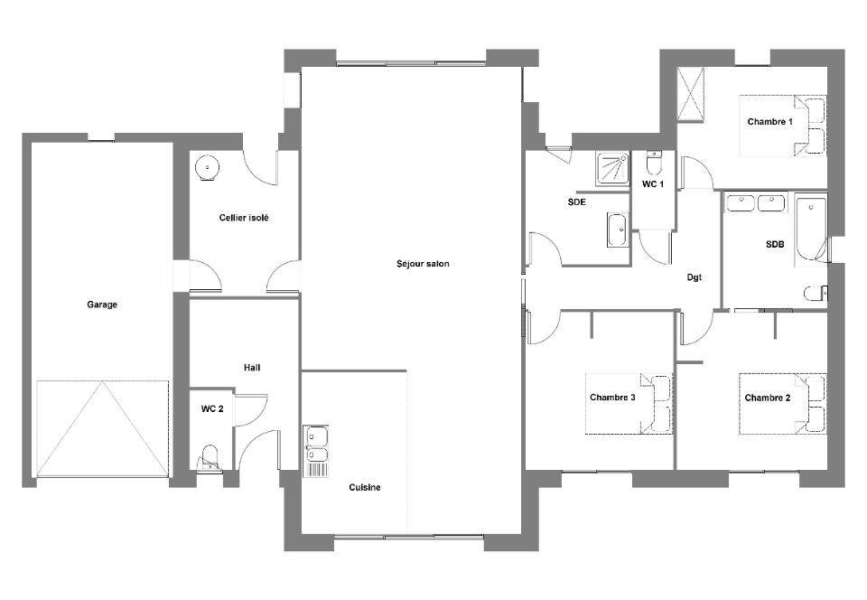
Maison de 4 pièces (145 m²) en vente à Ploéven
PROCHE DE QUIMPER - MAISON 4 PIÈCES NEUVE
À vendre : sur le littoral atlantique et à 20 km de Quimper, laissez vous charmer par cette maison de 4 pièces de plain-pied de 145 m² et de 467 m² de terrain à Ploéven (29550). Conçue de plain-pied, elle compte trois chambres, une cuisine et deux salles de bains.
La maison est neuve.
L'École Primaire Publique Simone Veil est implantée à moins de 10 minutes à pied. Les nationales N165 et N164 sont accessibles à moins de 18 km. On trouve une boulangerie à proximité.
Elle est à vendre pour la somme de 342 300 €.
Contactez notre agence (LAURENT Marie : (Numéro supprimé)) pour toute information sur cette maison. Concrétisez vos projets immobiliers avec Maisons de l'Avenir Quimper.
Logement susceptibles de vous intéresser
Nous vous proposons de découvrir aussi cette sélection de logements situés à moins de 10km de Ploéven et qui seraient susceptibles de vous intéresser.
Plomodiern
TERRAINDEVENEZ PROPRIÉTAIRE D’UN TERRAIN À PLOMODIERN !Vivez dans un cadre de vie privilégié à Plomodiern, charmante commune du Finistère, à proximité des commerces, écoles et services, et à quelques minutes du littoral nord.Profitez du calme de la campagne tout en restant proche des commodités – un emplacement idéal pour votre futur projet immobilier ! Votre terrain comprendo Surface de 423 m², bien orientéeo Possibilité de construire la maison de vos rêves selon vos envies Les atouts du projeto Terrain viabilisé ou proche des réseauxo Cadre de vie paisible, à proximité du littoral et des axes principauxo Liberté de construction, plan personnalisable selon vos besoins Prix indiqué hors frais Photos non contractuelles – à titre d’illustration Accession possible avec ou sans apportNe manquez pas cette opportunité unique de devenir propriétaire d’un terrain à Plomodiern et de réaliser votre projet sur-mesure ! Contactez-nous dès maintenant pour plus d’informations et étudier votre projet personnalisé.
Cast
TERRAIN ET MAISONDEVENEZ PROPRIÉTAIRE À CAST – MAISON NEUVE RE2020 SUR-MESUREOffrez-vous un cadre de vie agréable à Cast, charmante commune du Finistère, à proximité immédiate de Châteaulin et à quelques minutes des plages de la baie de Douarnenez.Profitez d’un environnement calme, verdoyant et convivial, tout en restant proche des commerces, écoles et services. Votre future maison comprendo 2 chambres spacieuses et lumineuseso Un grand salon-séjour traversant, ouvert sur le jardino Une cuisine moderne et fonctionnelleo Salle de bain et WC séparéso Le tout sur un terrain de 481 m², bien exposé et facile à aménager Les atouts du projeto Maison neuve RE2020, économe en énergieo Plan personnalisable selon vos besoins et vos envieso Emplacement idéal entre campagne et littoralo Prestations de qualité et finitions soignéeso Accès rapide à Châteaulin, Quimper et Douarnenez Prix indiqué hors frais Photos non contractuelles à titre d’illustration Accession à la propriété possible avec ou sans apportNe manquez pas cette belle opportunité de devenir propriétaire d’une maison neuve, moderne et économique à Cast ! Contactez-nous dès maintenant pour découvrir les plans et étudier votre projet personnalisé.
Ploéven
TERRAINDEVENEZ PROPRIÉTAIRE D’UN TERRAIN À PLOÉVEN !Vivez dans un cadre de vie privilégié à Ploéven, charmante commune du Sud-Finistère, idéalement située entre Concarneau et Pont-Aven, à proximité du littoral.Profitez du calme de la campagne et de la proximité de la mer, tout en restant proche des commerces, écoles et services – un environnement idéal pour votre futur projet ! Votre terrain comprend 😮 Une surface de 547 m², bien orientéeo Possibilité de construire la maison de vos rêves selon vos envies Les atouts du projet 😮 Terrain viabilisé ou proche des réseauxo Cadre de vie paisible et proche du littoralo Liberté de construction, avec plan personnalisable selon vos besoins Prix indiqué hors frais Photos non contractuelles à titre d’illustration Accession possible avec ou sans apportNe manquez pas cette opportunité unique de devenir propriétaire d’un terrain à Ploéven et de réaliser votre projet sur-mesure ! Contactez-nous dès maintenant pour plus d’informations et étudier votre projet.
Cast
TERRAINDEVENEZ PROPRIÉTAIRE D’UN TERRAIN À CAST !Vivez dans un cadre de vie privilégié à Cast, charmante commune du Finistère, idéalement située à proximité de Quimper et du littoral sud.Profitez du calme de la campagne, tout en restant proche des commerces, écoles et services – un environnement idéal pour votre futur projet ! Votre terrain comprend 😮 Une surface de 481 m², bien orientéeo Possibilité de construire la maison de vos rêves selon vos envies Les atouts du projet 😮 Terrain viabilisé ou proche des réseauxo Cadre de vie paisible, proche des commodités et du littoralo Liberté de construction, avec plan personnalisable selon vos besoins Prix indiqué hors frais Photos non contractuelles à titre d’illustration Accession possible avec ou sans apportNe manquez pas cette opportunité unique de devenir propriétaire d’un terrain à Cast et de réaliser votre projet sur-mesure ! Contactez-nous dès maintenant pour plus d’informations et étudier votre projet.
Locronan
TERRAINEn exclusivité agence :Terrain constructible à Locronan de 1160m2 avec aperçu mer – 97 990 euros FAIDécouvrez ce magnifique terrain niché sur les hauteurs du célèbre village historique de Locronan offrant une vue imprenable sur le Porzay et l’océan.Ce terrain avec un dénivelé offre un cadre idéal pour profiter d’une vue panoramique sur le Ménez Hom et les plages.L’assainissement est tout à l’égout et les réseaux sont déjà au bord de la parcelle.Un environnement calme, très arboré et préservé.Possibilité d’acquérir en sus une parcelle d’environ 450m2 en zone naturelle donc non constructible.- Situé dans un quartier paisible- A proximité des commerces, écoles (école Ste Anne à Locronan, écoles à Plogonnec, Plonévez Porzay), services publics.- A 5 km des premières plages- Implanté au coeur d’un village historique unique, célèbre pour ses maisons en pierre et son patrimoine remarquable.Prix : 97990 euros incluant les honoraires d’un montant de 7990 euros dont 8.88% à la charge de l’acquéreur.Prix Net vendeur : 90000 eurosFrais de Notaire en Sus : 8000 eurosCe terrain est une opportunité rare pour construire la maison de vos rêves dans un environnement naturel et authentique.Contactez moi dès maintenant pour plus d’informations ou pour planifier une visite !Pour visiter et vous accompagner dans votre projet, contactez Laetitia DREAU, au (Numéro supprimé) ou, par courriel à (Email supprimé).Selon l’article L.561.5 du Code Monétaire et Financier, pour l’organisation de la visite, la présentation d’une pièce d’identité vous sera demandée.Cette présente annonce a été rédigée sous la responsabilité éditoriale de Laetitia DREAU agissant sous le statut d’agent commercial immatriculé au RSAC 948169917 QUIMPER auprès de SAS PROPRIETES PRIVEES, au capital de 44 920 euros, ZAC LE CHÊNE FERRÉ – 44 ALLÉE DES CINQ CONTINENTS 44120 VERTOU; SIRET 487 624 777 00040, RCS Nantes. Carte Professionnelle Transactions sur immeubles et fonds de commerce (T) et Gestion immobilière (G) n°CPI 4401 2016 000 010 388 délivrée par la CCI Nantes – Saint Nazaire. Compte séquestre n(Numéro supprimé)67 BPA SAINT-SEBASTIEN-SUR-LOIRE (44230). Garantie GALIAN-SMABTP – 89 rue de la Boétie, 75008 Paris – n°28137 J pour 2 000 000 euros pour T et 120 000 euros pour G. Assurance responsabilité civile professionnelle par GALIAN-SMABTP n° de police 28137.JMandat réf : 426122 – Le professionnel garantit et sécurise votre projet immobilier. (8.88 % honoraires TTC à la charge de l’acquéreur.) Julien PÉROT (EI) Agent Commercial – Numéro RSAC : SAINT BRIEUC 822474151 – .
Dinéault
TERRAIN ET MAISONDEVENEZ PROPRIÉTAIRE À DINÉAULT – MAISON NEUVE RE2020 SUR-MESURE !Vivez dans un cadre de vie privilégié à Dinéault, charmante commune dynamique du Sud-Finistère, idéalement située entre Châteaulin et Quimper.Profitez du calme de la campagne, tout en restant proche des commerces, écoles et services – un environnement idéal pour votre famille ! Votre future maison comprend 😮 4 chambres spacieuses et lumineuseso Un grand salon-séjour traversant, ouvert sur le jardino Une cuisine moderne et fonctionnelleo Salle de bain et WC séparéso Le tout sur un terrain de 800 m², bien orienté Les atouts du projet 😮 Maison neuve RE2020, à faible consommation d’énergieo Plan personnalisable selon vos envies et vos besoinso Cadre de vie paisible, à proximité de Châteaulin, Quimper et du littoral sudo Prestations de qualité, finitions soignées Prix indiqué hors frais Photos non contractuelles à titre d’illustration Accession à la propriété possible avec ou sans apportNe manquez pas cette belle opportunité de devenir propriétaire d’une maison neuve moderne et économique à Dinéault ! Contactez-nous dès maintenant pour découvrir les plans et étudier votre projet personnalisé.
Ploéven
TERRAINVENTE d’un terrain de 481 m² à PloévenPROCHE CENTRE-VILLE – PROCHE DE QUIMPERTerrain de 481 m² à 5 km de l’océan Atlantique et à quelques kilomètres de Quimper. Ce terrain se situe proche du centre-ville de Ploéven (29550). Il est orienté au sud-ouest. Il y a l’École Primaire Publique Simone Veil à moins de 10 minutes à pied. Les nationales N165 et N164 sont accessibles à moins de 18 km. On trouve une boulangerie à quelques minutes.Il est à vendre pour la somme de 38 000 €. Prenez contact avec notre agence (ALKIS Sami) pour toute question sur le terrain. Concrétisez vos projets immobiliers avec Maisons de l’Avenir Guipavas.
Ploéven
TERRAIN ET MAISONVENTE d’une maison T4 (92 m²) à PloévenPROCHE CENTRE-VILLE – MAISON 4 PIÈCES NEUVEÀ vendre sur la côte atlantique et à deux pas de Quimper, proche du centre-ville de Ploéven (29550), Maisons de l’Avenir Guipavas vous propose cette maison de 4 pièces de 92 m² et de 481 m² de terrain.Cette maison compte 2 niveaux. Elle dispose de trois chambres, d’une cuisine et d’une salle de bains. Cette maison est neuve.L’École Primaire Publique Simone Veil est implantée à moins de 10 minutes à pied. Les nationales N165 et N164 sont accessibles à moins de 18 km. On trouve une boulangerie à quelques minutes.Son prix de vente est de 271 725 €.Contactez notre agence (Sami ALKIS) pour toute question sur la maison. Donnez vie à vos projets immobiliers avec Maisons de l’Avenir Guipavas.
Ploéven
TERRAIN ET MAISONMaison T4 (62 m²) à vendre à PloévenPROCHE CENTRE-VILLE – MAISON 4 PIÈCES NEUVEÀ vendre : sur la côte atlantique et à quelques kilomètres de Quimper, notre agence Maisons de l’Avenir Guipavas est heureuse de vous proposer, proche du centre-ville de Ploéven (29550), cette maison de 4 pièces de 62 m² et de 481 m² de terrain.Cette maison comporte 2 niveaux. Elle comporte trois chambres, une cuisine et une salle de bains. La maison est neuve.L’École Primaire Publique Simone Veil se trouve à moins de 10 minutes à pied. Les nationales N165 et N164 sont accessibles à moins de 18 km. Il y a une boulangerie à proximité du logement.Il est à vendre pour la somme de 178 832 €.N’hésitez pas à prendre contact avec notre agence (Sami ALKIS) pour toute information sur la maison. Maisons de l’Avenir Guipavas est là pour vous accompagner dans toutes vos démarches.
L’actualité immobilière à Ploéven
27/11/2023
02/11/2023
30/10/2023
20/10/2023
16/10/2023
16/10/2023