Maison à construire à Ploudaniel (29260)
Images
Description
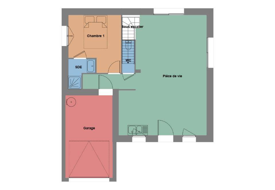
VENTE d'une maison T5 (102 m²) à Ploudaniel
PROCHE DE BREST - MAISON 5 PIÈCES NEUVE
Sur le littoral et à 19 km de Brest, notre agence Maisons de l'Avenir Guipavas est ravie de vous proposer cette maison de 5 pièces de 102 m² en vente à Ploudaniel (29260). Son intérieur est composé de quatre chambres, d'une cuisine et de deux salles de bains.
Le terrain du bien s'étend sur 727 m².
Cette maison comporte 2 niveaux. Elle est neuve.
Il y a l'École Primaire Privée Sainte Anne à moins de 10 minutes à pied et une structure d'accueil pour la petite enfance. On trouve un accès à la nationale N12 à 6 km. On trouve une boulangerie, une épicerie et un bureau de poste dans les environs.
Elle est à vendre pour la somme de 330 900 €.
N'hésitez pas à prendre contact avec notre constructeur (Aurélie CAGNARD : (Numéro supprimé)) pour plus d'informations sur la maison ou sur les modalités de vente.
Logement susceptibles de vous intéresser
Nous vous proposons de découvrir aussi cette sélection de logements situés à moins de 10km de Ploudaniel et qui seraient susceptibles de vous intéresser.
Trémaouézan
TERRAIN ET MAISONDEVENEZ PROPRIÉTAIRE À TRÉMAOUÉZAN – MAISON NEUVE RE2020 SUR-MESUREVivez dans un cadre de vie paisible à Trémaouézan, charmante commune du Nord-Finistère, située à proximité de Lesneven, Landerneau et à quelques minutes du littoral.Profitez du calme de la campagne, tout en restant proche des commerces, écoles et grands axes – un environnement idéal pour votre famille ! Votre future maison comprendo 2 chambres spacieuses et lumineuseso Un grand salon-séjour traversant, ouvert sur le jardino Une cuisine moderne et fonctionnelleo Salle de bain et WC séparéso Le tout sur un terrain de 620 m², bien orienté et offrant un bel espace extérieur à aménager Les atouts du projeto Maison neuve RE2020, à faible consommation d’énergieo Plan personnalisable selon vos besoins et vos envieso Environnement verdoyant, à deux pas de Lesneven et Landerneauo Prestations de qualité et finitions soignéeso Cadre de vie calme, idéal pour un premier achat ou une famille Prix indiqué hors frais Photos non contractuelles à titre d’illustration Accession à la propriété possible avec ou sans apportNe manquez pas cette belle opportunité de devenir propriétaire d’une maison neuve, moderne et économique à Trémaouézan ! Contactez-nous dès maintenant pour découvrir les plans et étudier votre projet personnalisé.
Le Folgoët
TERRAIN ET MAISONDEVENEZ PROPRIÉTAIRE AU FOLGOËT – MAISON NEUVE RE2020 SUR-MESURE !Vivez dans un cadre de vie privilégié à Le Folgoët, charmante commune dynamique du Nord-Finistère, à seulement quelques minutes de Lesneven et des plages du littoral.Profitez du calme de la campagne, tout en restant proche des commerces, écoles et services – un environnement idéal pour votre famille ! Votre future maison comprend :o2 chambres spacieuses et lumineusesoUn grand salon-séjour traversant, ouvert sur le jardinoUne cuisine moderne et fonctionnelleoSalle de bain et WC séparésoLe tout sur un terrain de 338 m², bien orienté Les atouts du projet :oMaison neuve RE2020, à faible consommation d’énergieoPlan personnalisable selon vos besoinsoCadre de vie paisible, à proximité de Brest et du littoraloPrestations de qualité, finitions soignées Prix indiqué hors frais Photos non contractuelles à titre d’illustration Accession à la propriété possible avec ou sans apportNe manquez pas cette belle opportunité de devenir propriétaire d’une maison neuve moderne et économique au Folgoët ! Contactez-nous dès maintenant pour découvrir les plans et étudier votre projet personnalisé.
La Forest-Landerneau
TERRAIN ET MAISONDEVENEZ PROPRIÉTAIRE À LA FOREST-LANDERNEAU – MAISON NEUVE RE2020 SUR-MESUREOffrez-vous un cadre de vie privilégié à La Forest-Landerneau, commune recherchée du Finistère, à seulement quelques minutes de Landerneau et de Brest.Profitez du calme de la campagne, dans un environnement verdoyant, tout en restant proche des commerces, écoles et services. Un lieu de vie idéal pour votre famille ! Votre future maison comprendo 2 chambres spacieuses et lumineuseso Un grand salon-séjour traversant, ouvert sur le jardino Une cuisine moderne et fonctionnelleo Salle de bain et WC séparéso Le tout sur un terrain exceptionnel de 413 m², bien orienté et offrant de nombreuses possibilités d’aménagement Les atouts du projeto Maison neuve RE2020, à faible consommation d’énergieo Plan personnalisable selon vos besoins et votre mode de vieo Grand terrain arboré, rare sur le secteuro Environnement paisible, à proximité immédiate de Brest, Landerneau et de la voie expresso Prestations de qualité et finitions soignées Prix indiqué hors frais Photos non contractuelles à titre d’illustration Accession à la propriété possible avec ou sans apportNe manquez pas cette belle opportunité de devenir propriétaire d’une maison neuve, moderne et économique à La Forest-Landerneau ! Contactez-nous dès maintenant pour découvrir les plans et étudier votre projet personnalisé.
Landerneau
TERRAINTerrain de 440 m² à vendre à LanderneauPROCHE DE BRESTÀ Landerneau (29800) sur le littoral et à 18 km de Brest, découvrez ce terrain de 440 m². Des écoles de tous niveaux sont implantées à moins de 10 minutes. Côté transports en commun, il y a la gare Landerneau dans un rayon de 1 km. Les nationales N12 et N165 sont accessibles à moins de 9 km. On trouve un tennis, des commerces, des boulangeries, un supermarché, un bureau de poste et deux épiceries dans les environs. Il est à vendre pour la somme de 108 000 €. Contactez notre agence (ROPERS Jean : (Numéro supprimé)) pour tout renseignement sur le terrain et sur les démarches à suivre. Maisons de l’Avenir Guipavas est là pour vous accompagner à toutes les étapes de l’achat.
Landerneau
TERRAIN ET MAISONMaison de 5 pièces (150 m²) à vendre à LanderneauPROCHE DE BREST – MAISON 5 PIÈCES NEUVEEn vente : à quelques kilomètres de la mer et à deux pas de Brest, Maisons de l’Avenir Guipavas vous propose à Landerneau (29800), cette maison de 5 pièces de 150 m². Elle inclut quatre chambres, une cuisine et deux salles de bains.Le terrain du bien est de 440 m².Cette maison compte 2 niveaux. Son prix de vente est de 465 000 €.N’hésitez pas à prendre contact avec Jean ROPERS ((Numéro supprimé)) pour plus d’informations sur cette maison, sur les démarches à suivre et sur les modalités de vente.
Landerneau
TERRAIN ET MAISONVENTE d’une maison T4 (100 m²) à LanderneauMAISON 4 PIÈCES NEUVE – PROCHE DE BRESTEn vente : située sur le littoral et à deux pas de Brest, nous vous présentons à Landerneau (29800), cette maison de 4 pièces de 100 m².C’est une maison de 2 niveaux. Elle dispose de trois chambres, d’une cuisine et de deux salles de bains.Elle est à vendre pour la somme de 355 000 €.Contactez Jean ROPERS ((Numéro supprimé)) pour toute information sur cette maison ou sur les modalités de vente. Maisons de l’Avenir Guipavas est là pour vous accompagner dans toutes vos démarches.
Landerneau
TERRAIN ET MAISONVENTE d’une maison T5 (110 m²) à LanderneauMAISON 5 PIÈCES NEUVE – PROCHE DE BRESTÀ vendre : à quelques kilomètres de la mer et à 18 km de Brest, à Landerneau (29800), votre agence Maisons de l’Avenir Guipavas est ravie de vous proposer cette maison de 5 pièces de plain-pied de 110 m².Conçue de plain-pied, elle offre quatre chambres, une cuisine et deux salles de bains. .Elle est à vendre pour la somme de 362 000 €.N’hésitez pas à prendre contact avec Jean ROPERS ((Numéro supprimé)) pour tout renseignement sur cette maison. Maisons de l’Avenir Guipavas vous accompagne à toutes les étapes de votre projet et dans tous vos projets immobiliers.
Landerneau
TERRAIN ET MAISONVENTE d’une maison T5 (95 m²) à LanderneauPROCHE DE BREST – MAISON 5 PIÈCES NEUVEEn vente : localisée sur le littoral et à deux pas de Brest, nous vous proposons cette maison de 5 pièces de 95 m² et de 440 m² de terrain à Landerneau (29800).Cette maison possède 2 niveaux. Son intérieur offre trois chambres, une cuisine et deux salles de bains. Son prix de vente est de 344 000 €.N’hésitez pas à prendre contact avec notre agence (ROPERS Jean : (Numéro supprimé)) pour obtenir de plus amples informations sur cette maison.
Landerneau
TERRAIN ET MAISONVENTE d’une maison F6 (115 m²) à LanderneauPROCHE DE BREST – MAISON 6 PIÈCES NEUVEEn vente sur le littoral et à 18 km de Brest, nous sommes heureux de vous présenter cette maison de 6 pièces de 115 m² et de 440 m² de terrain à Landerneau (29800).Il s’agit d’une maison de 2 niveaux. Son intérieur dispose de cinq chambres, d’une cuisine et de deux salles de bains. Son prix de vente est de 407 400 €.Prenez contact avec Jean ROPERS (tél : (Numéro supprimé)) pour toute question sur le bien ou sur les démarches à suivre. Maisons de l’Avenir Guipavas est là pour vous accompagner dans tous vos projets immobiliers.
L’actualité immobilière à Ploudaniel
27/11/2023
02/11/2023
30/10/2023
20/10/2023
16/10/2023
16/10/2023