Maison à construire à Plouguerneau (29880)
Images
Description
📢 À vendre : Terrain à Plouguerneau, proche de la mer ! 🌊
Dernière opportunité dans un charmant lotissement de 11 lots ! Ce magnifique terrain de 348 m² vous attend à Plouguerneau, à quelques pas de la mer, pour un prix attractif de 49 000 €.
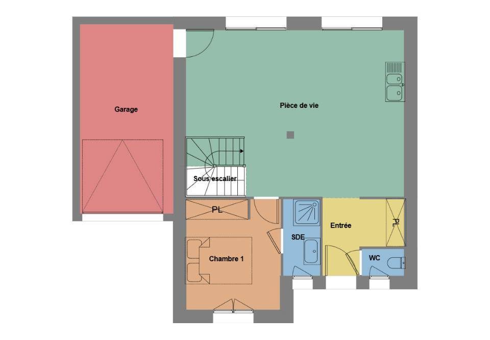
✨ Projet clé en main : Sur ce terrain, nous vous proposons les plans d'une maison de plain-pied de 115 m², comprenant :
4 chambres confortables 🛏️
Un espace de vie tout ouvert, lumineux et convivial 🛋️
Une vaste salle de bain et une salle d'eau privé supplémentaire🚿
Un garage pratique pour protéger ou stocker votre voiture 🚗
Ce projet s'inscrit dans le cadre de nos maisons passives Bâti Activ', conçues pour optimiser l'ensoleillement et maximiser les gains d'énergie. 🌞💡
Prix du projet terrain + maison : 320 000 €
Ne laissez pas passer cette belle opportunité ! Contactez dès maintenant Erwan Tilly des Maisons de l'Avenir pour visiter le terrain et concevoir votre future maison sur mesure, adaptée à vos envies et besoins.
Faites vite, ce bien va partir très rapidement ! 🏡
Logement susceptibles de vous intéresser
Nous vous proposons de découvrir aussi cette sélection de logements situés à moins de 10km de Plouguerneau et qui seraient susceptibles de vous intéresser.
Plouguerneau
TERRAIN ET MAISONDEVENEZ PROPRIÉTAIRE À PLOUGUERNEAU – MAISON NEUVE RE2020 SUR-MESUREVivez au cœur de Plouguerneau, charmante commune littorale du Nord-Finistère, réputée pour sa qualité de vie, ses plages et son ambiance familiale.Profitez d’un cadre de vie entre mer et campagne, à proximité immédiate des commerces, écoles et services, tout en restant à seulement quelques minutes de Lesneven et Lannilis. Votre future maison comprendo 4 chambres spacieuses et lumineuseso Un grand salon-séjour traversant, ouvert sur le jardino Une cuisine moderne et fonctionnelleo Salle de bain et WC séparéso Le tout sur un terrain de 557 m², idéalement orienté et prêt à accueillir votre projet de vie Les atouts du projeto Maison neuve RE2020, économe en énergieo Plan personnalisable selon vos envies et votre mode de vieo Environnement paisible à proximité du littoral et des plageso Prestations de qualité et finitions soignéeso Commune dynamique et bien desservie, à 30 min de Brest Prix indiqué hors frais Photos non contractuelles à titre d’illustration Accession à la propriété possible avec ou sans apportNe manquez pas cette belle opportunité de devenir propriétaire d’une maison neuve, moderne et économique à Plouguerneau ! Contactez-nous dès maintenant pour découvrir les plans et étudier votre projet personnalisé
Plouguerneau
TERRAIN ET MAISONDEVENEZ PROPRIÉTAIRE À PLOUGUERNEAU – MAISON NEUVE RE2020 SUR-MESUREVivez au cœur de Plouguerneau, charmante commune littorale du Nord-Finistère, réputée pour sa qualité de vie, ses plages et son ambiance familiale.Profitez d’un cadre de vie entre mer et campagne, à proximité immédiate des commerces, écoles et services, tout en restant à seulement quelques minutes de Lesneven et Lannilis. Votre future maison comprendo 2 chambres spacieuses et lumineuseso Un grand salon-séjour traversant, ouvert sur le jardino Une cuisine moderne et fonctionnelleo Salle de bain et WC séparéso Le tout sur un terrain de 468 m², idéalement orienté et prêt à accueillir votre projet de vie Les atouts du projeto Maison neuve RE2020, économe en énergieo Plan personnalisable selon vos envies et votre mode de vieo Environnement paisible à proximité du littoral et des plageso Prestations de qualité et finitions soignéeso Commune dynamique et bien desservie, à 30 min de Brest Prix indiqué hors frais Photos non contractuelles à titre d’illustration Accession à la propriété possible avec ou sans apportNe manquez pas cette belle opportunité de devenir propriétaire d’une maison neuve, moderne et économique à Plouguerneau ! Contactez-nous dès maintenant pour découvrir les plans et étudier votre projet personnalisé
Plouguerneau
TERRAINVENTE : terrain de 450 m² à PlouguerneauCENTRE-VILLE – NOUVEAUTE! rare , plat et bien exposéTerrain de 450 m² en vente à quelques kilomètres de la mer et à quelques kilomètres de Brest. Ce terrain se situe à Plouguerneau (29880), en centre-ville. L’École Primaire Privée Saint Joseph et l’École Primaire Publique le Petit Prince sont implantées à moins de 10 minutes à pied. Il y a un accès à la nationale N12 à 20 km. On trouve un tennis, deux boulangeries, des commerces, deux supermarchés, un bureau de poste et une supérette à quelques minutes à peine. Son prix de vente est de 45 000 €. Contactez notre agence (ROPERS Jean : (Numéro supprimé)) pour toute question sur ce terrain et sur les démarches à suivre. Donnez vie à vos projets immobiliers avec Maisons de l’Avenir Guipavas.
Plouguerneau
TERRAIN ET MAISONPlouguerneau : maison T4 (90 m²) en venteCENTRE-VILLE – MAISON 4 PIÈCES NEUVEEn vente : à quelques kilomètres de la mer et à deux pas de Brest, Maisons de l’Avenir Guipavas vous propose, en plein coeur de Plouguerneau (29880), cette maison de 4 pièces de 90 m² et de 450 m² de terrain. Elle comporte trois chambres, une cuisine et deux salles de bains.Il s’agit d’une maison de 2 niveaux. L’École Primaire Privée Saint Joseph et l’École Primaire Publique le Petit Prince sont implantées à moins de 10 minutes à pied. La nationale N12 est accessible à 20 km. Il y a un tennis, deux boulangeries, des commerces, deux supermarchés, une supérette et une épicerie dans les environs.Elle est à vendre pour la somme de 262 000 €.Contactez notre agence (Jean ROPERS : (Numéro supprimé)) pour obtenir de plus amples renseignements sur la maison ou sur les démarches à suivre. Maisons de l’Avenir Guipavas vous accompagne dans tous vos projets immobiliers et à toutes les étapes de votre projet.
Plouguerneau
TERRAIN ET MAISONVENTE : maison T5 (85 m²) à PlouguerneauCENTRE-VILLE – MAISON 5 PIÈCES NEUVESur le littoral et à 22 km de Brest, nous vous présentons cette maison de 5 pièces de 85 m² et de 450 m² de terrain à Plouguerneau (29880), en centre-ville. Elle compte trois chambres, une cuisine et deux salles de bains.Il s’agit d’une maison de 2 niveaux.Son prix de vente est de 262 000 €.Contactez Jean ROPERS ((Numéro supprimé)) pour tout renseignement sur la maison, sur les modalités de vente ou sur les démarches à suivre. Maisons de l’Avenir Guipavas vous accompagne dans tous vos projets immobiliers et à toutes les étapes de l’achat.
Plouguerneau
TERRAIN ET MAISONPlouguerneau : maison F3 (80 m²) en venteCENTRE-VILLE – MAISON 3 PIÈCES NEUVEEn vente sur le littoral et à 22 km de Brest, notre agence Maisons de l’Avenir Guipavas est ravie de vous présenter cette maison de 3 pièces de plain-pied de 80 m², dans le centre de Plouguerneau (29880). Elle dispose de trois chambres, d’une cuisine et d’une salle de bains.Le terrain de cette maison est de 450 m².Son prix de vente est de 251 000 €.N’hésitez pas à prendre contact avec notre constructeur (Jean ROPERS : (Numéro supprimé)) pour toute information sur la maison, sur les démarches à suivre ou sur les modalités de vente.
Plouguerneau
TERRAIN ET MAISONPlouguerneau : maison de 4 pièces (70 m²) à vendreCENTRE-VILLE – MAISON 4 PIÈCES NEUVESur le littoral et à 22 km de Brest, notre agence Maisons de l’Avenir Guipavas est ravie de vous présenter cette maison de 4 pièces de 70 m² et de 450 m² de terrain à vendre dans le centre de Plouguerneau (29880).Cette maison possède 2 niveaux. Elle se divise en trois chambres, une cuisine et une salle de bains. Son prix de vente est de 229 000 €.Prenez contact avec notre constructeur (ROPERS Jean : (Numéro supprimé)) pour tout renseignement sur la maison ou sur les modalités de vente. Maisons de l’Avenir Guipavas est là pour vous accompagner à toutes les étapes de l’achat.
Plouguerneau
TERRAIN ET MAISONVENTE d’une maison F4 (90 m²) à PlouguerneauCENTRE-VILLE – MAISON 4 PIÈCES OSSATURE BOIEn vente à quelques kilomètres de la mer et à 22 km de Brest, nous sommes heureux de vous proposer cette maison de 4 pièces de plain-pied de 90 m² et de 450 m² de terrain, dans le centre de Plouguerneau (29880). Son intérieur est composé de trois chambres, d’une cuisine et de deux salles de bains.Elle est à vendre pour la somme de 286 650 €.N’hésitez pas à prendre contact avec notre agence (ROPERS Jean : (Numéro supprimé)) pour toute information sur la propriété. Maisons de l’Avenir Guipavas est là pour vous accompagner dans tous vos projets immobiliers.
Lannilis
TERRAIN ET MAISONVENTE d’une maison de 5 pièces (102 m²) à LannilisPROCHE CENTRE-VILLE – MAISON 5 PIÈCES NEUVEÀ vendre : localisée à quelques kilomètres de la mer et à quelques kilomètres de Brest, Maisons de l’Avenir Guipavas vous propose, proche du centre-ville de Lannilis (29870), cette maison de 5 pièces de 102 m² et de 403 m² de terrain.Il s’agit d’une maison de 2 niveaux. Son intérieur compte quatre chambres, une cuisine et deux salles de bains. Cette maison est neuve.Quatre établissements scolaires sont implantés à moins de 10 minutes à pied, tout comme une crèche. Les nationales N12 et N265 sont accessibles à moins de 19 km. Il y a une bibliothèque, un tennis, des commerces, quatre boulangeries, deux supermarchés, deux boucheries-charcuteries et un bureau de poste dans les environs. Enfin, le marché Place Leclerc anime le quartier tous les mercredis.Elle est proposée à l’achat pour 256 891 €.N’hésitez pas à prendre contact avec notre agence (ALKIS Sami) pour plus de renseignements sur la maison, sur les modalités de vente ou sur les démarches à suivre. Maisons de l’Avenir Guipavas vous accompagne à toutes les étapes de votre projet et dans tous vos projets immobiliers.
L’actualité immobilière à Plouguerneau
27/11/2023
02/11/2023
30/10/2023
20/10/2023
16/10/2023
16/10/2023