Maison à construire à Ploumoguer (29810)
Images
Description
🌿 À VENDRE - Terrain constructible de 400 m² à Ploumoguer
Découvrez ce superbe terrain de 400 m², situé sur la commune très recherchée de Ploumoguer, à seulement quelques minutes de la mer et de Brest.
Issu d'une division de parcelle, ce terrain offre un cadre idyllique, alliant calme, verdure et proximité du littoral un emplacement parfait pour concrétiser votre projet de vie.
🏡 Notre proposition de maison sur ce terrain :
Maisons de l'Avenir vous propose une maison sur mesure, entièrement personnalisable selon vos besoins et vos envies.
Cette réalisation allie modernité, esthétisme et hautes performances énergétiques.
Pensée dans le cadre du concept Bâti Activ, cette maison bénéficie d'un ensoleillement naturel optimal, garantissant confort et économies d'énergie au quotidien.
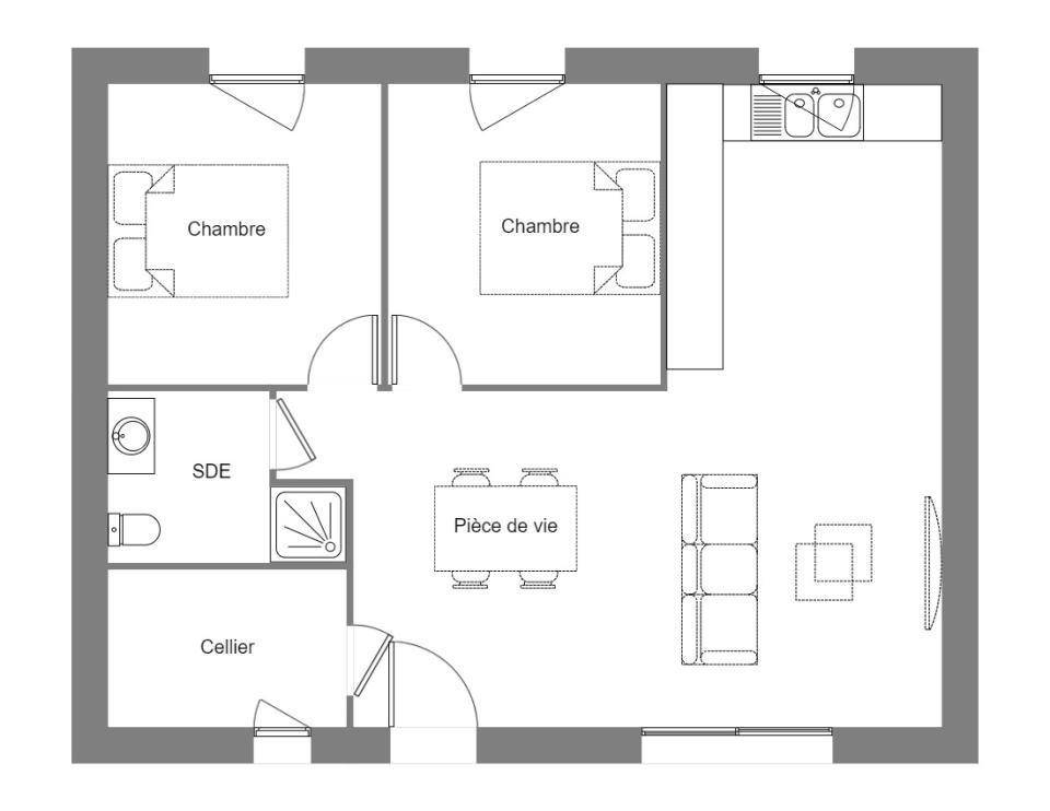
Cette maison de plain-pied comprend :
3 chambres,
1 salles de bains,
un vaste espace de vie lumineux de plus de 35 m²,
un cellier/buanderie,
Selon vos goûts, elle peut être réalisée avec une façade bois contemporaine ou une finition enduite plus traditionnelle.
💰 Prix de l'ensemble Terrain + Maison : 230 000 €
📞 Intéressé ?
Contactez Erwan TILLY - Maisons de l'Avenir pour obtenir plus d'informations, organiser une visite et concevoir ensemble votre future maison sur mesure.
Logement susceptibles de vous intéresser
Nous vous proposons de découvrir aussi cette sélection de logements situés à moins de 10km de Ploumoguer et qui seraient susceptibles de vous intéresser.
Plougonvelin
TERRAIN ET MAISON🏡 À Vendre : Terrain de 480m² a Plougonvelin – 122 000€ 🌊Découvrez ce magnifique terrain de 480m², idéalement situé dans un petit lotissement paisible sur la commune de Plougonvelin, à deux pas de la mer. 🌅 Ce terrain offre un cadre exceptionnel pour construire la maison de vos rêves, alliant tranquillité et proximité avec les plages. 🏖️Maisons de l’Avenir vous propose un modèle sur plan de 130m², comprenant 4 chambres dont une suite parentale, un vaste espace de vie de 48m², deux salles de bains, et un grand garage. 🛏️🍽️🚿Les plans sont entièrement modifiables, permettant ainsi une maison sur mesure dans tous les aspects, conçue dans le cadre de notre gamme de maisons passives Bâti Activ. 🏠🌿 Cette maison a été pensée pour maximiser les apports de lumière naturelle, favorisant ainsi les gains énergétiques. 🌞⚡L’opération globale terrain + maison est de 469 000€. 💰Ce bien rare et recherché est une opportunité à ne pas manquer. ⭐Pour plus d’informations ou pour organiser une visite, contactez Erwan TILLY 📞. Ne tardez pas, ce terrain risque de partir rapidement ! ⏳
Plougonvelin
TERRAIN ET MAISON🏡 À Vendre : Terrain de 480m² a Plougonvelin- 122 000€ 🌊Découvrez ce magnifique terrain de 480m², idéalement situé dans un petit lotissement paisible sur la commune de Plougonvelin, à deux pas de la mer. 🌅 Ce terrain offre un cadre exceptionnel pour construire la maison de vos rêves, alliant tranquillité et proximité avec les plages. 🏖️Maisons de l’Avenir vous propose un modèle sur plan plein pied de 120m², comprenant 3 chambres dont une suite parentale, un vaste espace de vie de 52m², deux salles de bains, et un grand garage. 🛏️🍽️🚿Les plans sont entièrement modifiables, permettant ainsi une maison sur mesure dans tous les aspects, conçue dans le cadre de notre gamme de maisons passives Bâti Activ. 🏠🌿 Cette maison a été pensée pour maximiser les apports de lumière naturelle, favorisant ainsi les gains énergétiques. 🌞⚡L’opération globale terrain + maison est de 428 000€. 💰Ce bien rare et recherché est une opportunité à ne pas manquer. ⭐Pour plus d’informations ou pour organiser une visite, contactez Erwan TILLY 📞. Ne tardez pas, ce terrain risque de partir rapidement ! ⏳
Plougonvelin
TERRAIN ET MAISON🏡 À Vendre : Terrain de 480m² a Plougonvelin- 122 000€ 🌊Découvrez ce magnifique terrain de 480m², idéalement situé dans un petit lotissement paisible sur la commune de Plougonvelin, à deux pas de la mer. 🌅 Ce terrain offre un cadre exceptionnel pour construire la maison de vos rêves, alliant tranquillité et proximité avec les plages. 🏖️Maisons de l’Avenir vous propose un modèle sur plan de 110m², comprenant 4 chambres dont une suite parentale, un vaste espace de vie de 42m², deux salles de bains, et un grand garage. 🛏️🍽️🚿Les plans sont entièrement modifiables, permettant ainsi une maison sur mesure dans tous les aspects, conçue dans le cadre de notre gamme de maisons passives Bâti Activ. 🏠🌿 Cette maison a été pensée pour maximiser les apports de lumière naturelle, favorisant ainsi les gains énergétiques. 🌞⚡L’opération globale terrain + maison est de 399 000€. 💰Ce bien rare et recherché est une opportunité à ne pas manquer. ⭐Pour plus d’informations ou pour organiser une visite, contactez Erwan TILLY 📞. Ne tardez pas, ce terrain risque de partir rapidement ! ⏳
Plougonvelin
TERRAIN ET MAISON🏡 À Vendre : Terrain de 480m² a Plougonvelin- 122 000€ 🌊Découvrez ce magnifique terrain de 480m², idéalement situé dans un petit lotissement paisible sur la commune de Plougonvelin, à deux pas de la mer. 🌅 Ce terrain offre un cadre exceptionnel pour construire la maison de vos rêves, alliant tranquillité et proximité avec les plages. 🏖️Maisons de l’Avenir vous propose un modèle sur plan de 121m², comprenant 4 chambres dont une suite parentale, un vaste espace de vie de 49m², deux salles de bains, et un grand garage. 🛏️🍽️🚿Les plans sont entièrement modifiables, permettant ainsi une maison sur mesure dans tous les aspects, conçue dans le cadre de notre gamme de maisons passives Bâti Activ. 🏠🌿 Cette maison a été pensée pour maximiser les apports de lumière naturelle, favorisant ainsi les gains énergétiques. 🌞⚡L’opération globale terrain + maison est de 443 500€. 💰Ce bien rare et recherché est une opportunité à ne pas manquer. ⭐Pour plus d’informations ou pour organiser une visite, contactez Erwan TILLY 📞. Ne tardez pas, ce terrain risque de partir rapidement ! ⏳
Plougonvelin
TERRAIN ET MAISON🏡 À Vendre : Terrain de 480m² a Plougonvelin- 122 000€ 🌊Découvrez ce magnifique terrain de 480m², idéalement situé dans un petit lotissement paisible sur la commune de Plougonvelin, à deux pas de la mer. 🌅 Ce terrain offre un cadre exceptionnel pour construire la maison de vos rêves, alliant tranquillité et proximité avec les plages. 🏖️Maisons de l’Avenir vous propose un modèle sur plan de 150m², comprenant 4 chambres dont une suite parentale, un vaste espace de vie de 60m², deux salles de bains, et un grand garage. 🛏️🍽️🚿Les plans sont entièrement modifiables, permettant ainsi une maison sur mesure dans tous les aspects, conçue dans le cadre de notre gamme de maisons passives Bâti Activ. 🏠🌿 Cette maison a été pensée pour maximiser les apports de lumière naturelle, favorisant ainsi les gains énergétiques. 🌞⚡L’opération globale terrain + maison est de 529 000€. 💰Ce bien rare et recherché est une opportunité à ne pas manquer. ⭐Pour plus d’informations ou pour organiser une visite, contactez Erwan TILLY 📞. Ne tardez pas, ce terrain risque de partir rapidement ! ⏳
Plougonvelin
TERRAIN ET MAISON🏡 À Vendre : Terrain de 480m² a Plougonvelin- 122 000€ 🌊Découvrez ce magnifique terrain de 480m², idéalement situé dans un petit lotissement paisible sur la commune de Plougonvelin, à deux pas de la mer. 🌅 Ce terrain offre un cadre exceptionnel pour construire la maison de vos rêves, alliant tranquillité et proximité avec les plages. 🏖️Maisons de l’Avenir vous propose un modèle sur plan de 75m², comprenant 3 chambres, un vaste espace de vie de 35m², deux salles de bains, et un grand garage. 🛏️🍽️🚿Les plans sont entièrement modifiables, permettant ainsi une maison sur mesure dans tous les aspects, conçue dans le cadre de notre gamme de maisons passives Bâti Activ. 🏠🌿 Cette maison a été pensée pour maximiser les apports de lumière naturelle, favorisant ainsi les gains énergétiques. 🌞⚡L’opération globale terrain + maison est de 265 000€. 💰Ce bien rare et recherché est une opportunité à ne pas manquer. ⭐Pour plus d’informations ou pour organiser une visite, contactez Erwan TILLY 📞. Ne tardez pas, ce terrain risque de partir rapidement ! ⏳
Locmaria-Plouzané
TERRAINAnnonce de Vente : Terrain Rare à Locmaria-Plouzané 🏡Découvrez ce magnifique terrain de 1705m2 dont 790m² de zone constructible, idéalement situé sur la commune de Locmaria-Plouzané, issu d’un petit lotissement exclusif de seulement 11 lots.Avec sa superbe exposition sud-ouest 🌞, ce terrain vous offrira un cadre de vie lumineux et agréable tout au long de l’année. Sa proximité à pied du bourg 🚶♂️🛍 facilite votre quotidien, en vous offrant un accès rapide aux commerces, écoles et services de la commune.💰 Prix : 165 000 €Ce bien rare sur le marché 🏆 ne restera pas disponible longtemps !Pour plus d’informations ou organiser une visite, contactez Erwan TILLY des Maisons de l’Avenir 📞 dès aujourd’hui.Une opportunité à ne pas manquer pour concrétiser votre projet de vie ! 🌟✨
Locmaria-Plouzané
TERRAIN ET MAISONAnnonce de Vente : Terrain Rare à Locmaria-Plouzané 🏡Découvrez ce magnifique terrain de 1705m2 dont 790 m² constructible, idéalement situé sur la commune de Locmaria-Plouzané, issu d’un petit lotissement exclusif de seulement 11 lots.Avec sa superbe exposition sud-ouest 🌞, ce terrain vous offrira un cadre de vie lumineux et agréable tout au long de l’année. Sa proximité à pied du bourg 🚶♂️🛍 facilite votre quotidien, en vous offrant un accès rapide aux commerces, écoles et services de la commune.💰 Prix du terrain seul : 165 000 €Nous vous proposons également sur ce terrain la réalisation d’un projet de construction sur mesure 🏠 :Une maison contemporaine de style architectural moderne, de 150 m².Comprenant :5 chambres, dont une suite parentale2 salles de bains,Un vaste espace de vie lumineux de plus de 55 m²,Un garage 🚗.Conçue dans le cadre de nos maisons passives Bâti Activ, qui favorisent l’entrée de lumière naturelle et maximisent les gains énergétiques 🌞⚡.💰 Prix du projet terrain + maison : 517 000 €Ce bien rare sur le marché 🏆 ne restera pas disponible longtemps !Pour plus d’informations ou organiser une visite, contactez Erwan TILLY des Maisons de l’Avenir 📞 dès aujourd’hui.Une opportunité unique pour réaliser votre projet de vie ! 🌟✨
Locmaria-Plouzané
TERRAIN ET MAISONAnnonce de Vente : Terrain Rare à Locmaria-Plouzané 🏡Découvrez ce magnifique terrain de 1705m2 dont 790 m² constructible, idéalement situé sur la commune de Locmaria-Plouzané, issu d’un petit lotissement exclusif de seulement 11 lots.Avec sa superbe exposition sud-ouest 🌞, ce terrain vous offrira un cadre de vie lumineux et agréable tout au long de l’année. Sa proximité à pied du bourg 🚶♂️🛍 facilite votre quotidien, en vous offrant un accès rapide aux commerces, écoles et services de la commune.💰 Prix du terrain seul : 165 000 €Nous vous proposons également sur ce terrain la réalisation d’un projet de construction sur mesure 🏠 :Une maison traditionnel de style architectural moderne, de 121 m².Comprenant :4 chambres, dont une suite parentale2 salles de bains,Un vaste espace de vie lumineux de plus de 45 m²,Un garage 🚗.Conçue dans le cadre de nos maisons passives Bâti Activ, qui favorisent l’entrée de lumière naturelle et maximisent les gains énergétiques 🌞⚡.💰 Prix du projet terrain + maison : 450 000 €Ce bien rare sur le marché 🏆 ne restera pas disponible longtemps !Pour plus d’informations ou organiser une visite, contactez Erwan TILLY des Maisons de l’Avenir 📞 dès aujourd’hui.Une opportunité unique pour réaliser votre projet de vie ! 🌟✨
L’actualité immobilière à Ploumoguer
27/11/2023
02/11/2023
30/10/2023
20/10/2023
16/10/2023
16/10/2023