Maison à construire à Saint-Coulitz (29150)
Images
Description
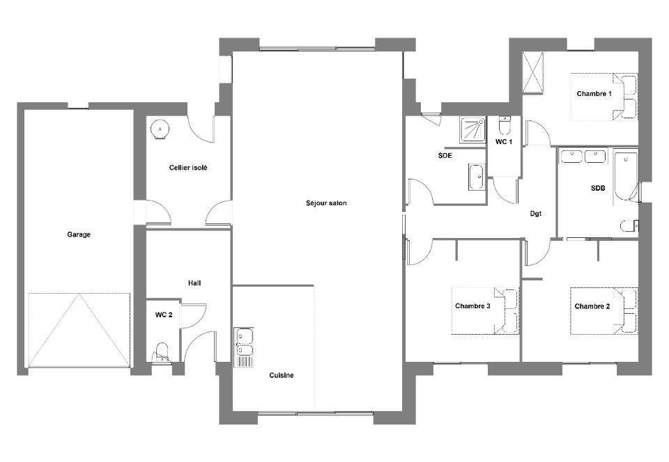
VENTE d'une maison de 4 pièces (130 m²) à Saint-Coulitz
PROCHE DE QUIMPER - MAISON 4 PIÈCES NEUVE
En vente : localisée à 19 km de l'océan Atlantique et à quelques kilomètres de Quimper, à Saint-Coulitz (29150), Maisons de l'Avenir Quimper vous propose cette maison de 4 pièces de plain-pied de 130 m².
Conçue de plain-pied, elle inclut trois chambres, une cuisine et deux salles de bains. La maison est neuve.
Le terrain du bien est de 520 m².
Des établissements scolaires de tous niveaux (de la maternelle au lycée) sont implantés à moins de 10 minutes en voiture. Niveau transports, on trouve deux gares (Châteaulin et Pont-de-Buis) dans un rayon de 10 km. Les nationales N165 et N164 sont accessibles à moins de 5 km. Il y a deux bassins de natation, des bibliothèques, des tennis, des commerces, des supermarchés, des boulangeries, trois bureaux de poste et une supérette dans les environs. Ne manquez pas le marché Centre-Ville chaque jeudi.
Elle est à vendre pour la somme de 336 100 €.
Prenez contact avec Marie LAURENT ((Numéro supprimé)) pour tout renseignement sur la maison, sur les démarches à suivre ou sur les modalités de vente.
Logement susceptibles de vous intéresser
Nous vous proposons de découvrir aussi cette sélection de logements situés à moins de 10km de Saint-Coulitz et qui seraient susceptibles de vous intéresser.
Cast
TERRAIN ET MAISONDEVENEZ PROPRIÉTAIRE À CAST – MAISON NEUVE RE2020 SUR-MESUREOffrez-vous un cadre de vie agréable à Cast, charmante commune du Finistère, à proximité immédiate de Châteaulin et à quelques minutes des plages de la baie de Douarnenez.Profitez d’un environnement calme, verdoyant et convivial, tout en restant proche des commerces, écoles et services. Votre future maison comprendo 2 chambres spacieuses et lumineuseso Un grand salon-séjour traversant, ouvert sur le jardino Une cuisine moderne et fonctionnelleo Salle de bain et WC séparéso Le tout sur un terrain de 481 m², bien exposé et facile à aménager Les atouts du projeto Maison neuve RE2020, économe en énergieo Plan personnalisable selon vos besoins et vos envieso Emplacement idéal entre campagne et littoralo Prestations de qualité et finitions soignéeso Accès rapide à Châteaulin, Quimper et Douarnenez Prix indiqué hors frais Photos non contractuelles à titre d’illustration Accession à la propriété possible avec ou sans apportNe manquez pas cette belle opportunité de devenir propriétaire d’une maison neuve, moderne et économique à Cast ! Contactez-nous dès maintenant pour découvrir les plans et étudier votre projet personnalisé.
Cast
TERRAINDEVENEZ PROPRIÉTAIRE D’UN TERRAIN À CAST !Vivez dans un cadre de vie privilégié à Cast, charmante commune du Finistère, idéalement située à proximité de Quimper et du littoral sud.Profitez du calme de la campagne, tout en restant proche des commerces, écoles et services – un environnement idéal pour votre futur projet ! Votre terrain comprend 😮 Une surface de 481 m², bien orientéeo Possibilité de construire la maison de vos rêves selon vos envies Les atouts du projet 😮 Terrain viabilisé ou proche des réseauxo Cadre de vie paisible, proche des commodités et du littoralo Liberté de construction, avec plan personnalisable selon vos besoins Prix indiqué hors frais Photos non contractuelles à titre d’illustration Accession possible avec ou sans apportNe manquez pas cette opportunité unique de devenir propriétaire d’un terrain à Cast et de réaliser votre projet sur-mesure ! Contactez-nous dès maintenant pour plus d’informations et étudier votre projet.
Dinéault
TERRAIN ET MAISONDEVENEZ PROPRIÉTAIRE À DINÉAULT – MAISON NEUVE RE2020 SUR-MESURE !Vivez dans un cadre de vie privilégié à Dinéault, charmante commune dynamique du Sud-Finistère, idéalement située entre Châteaulin et Quimper.Profitez du calme de la campagne, tout en restant proche des commerces, écoles et services – un environnement idéal pour votre famille ! Votre future maison comprend 😮 4 chambres spacieuses et lumineuseso Un grand salon-séjour traversant, ouvert sur le jardino Une cuisine moderne et fonctionnelleo Salle de bain et WC séparéso Le tout sur un terrain de 800 m², bien orienté Les atouts du projet 😮 Maison neuve RE2020, à faible consommation d’énergieo Plan personnalisable selon vos envies et vos besoinso Cadre de vie paisible, à proximité de Châteaulin, Quimper et du littoral sudo Prestations de qualité, finitions soignées Prix indiqué hors frais Photos non contractuelles à titre d’illustration Accession à la propriété possible avec ou sans apportNe manquez pas cette belle opportunité de devenir propriétaire d’une maison neuve moderne et économique à Dinéault ! Contactez-nous dès maintenant pour découvrir les plans et étudier votre projet personnalisé.
Saint-Coulitz
TERRAIN ET MAISONVENTE d’une maison de 5 pièces (140 m²) à Saint-CoulitzPROCHE DE QUIMPER – MAISON 5 PIÈCES NEUVEÀ 19 km de la côte atlantique et à deux pas de Quimper, votre agence Maisons de l’Avenir Quimper est ravie de vous proposer en vente à Saint-Coulitz (29150), cette maison de 5 pièces de 140 m² et de 520 m² de terrain.C’est une maison de 2 niveaux. Elle offre quatre chambres, une cuisine et deux salles de bains. Cette maison est neuve.Des établissements scolaires (de la maternelle au lycée) sont implantés à moins de 10 minutes en voiture. Niveau transports en commun, on trouve deux gares (Châteaulin et Pont-de-Buis) dans un rayon de 10 km. Les nationales N165 et N164 sont accessibles à moins de 5 km. Il y a deux bassins de natation, des bibliothèques, des tennis, des commerces, des supermarchés, des boulangeries, une supérette et une poissonnerie dans les environs. Ne manquez pas le marché Centre-Ville tous les jeudis.Il est à vendre pour la somme de 343 600 €.N’hésitez pas à prendre contact avec notre constructeur (Marie LAURENT : (Numéro supprimé)) pour obtenir de plus amples informations sur cette maison, sur les démarches à suivre ou sur les modalités de vente. Faites de vos projets immobiliers une réalité avec Maisons de l’Avenir Quimper.
Saint-Coulitz
TERRAINVENTE d’un terrain de 520 m² à Saint-CoulitzPROCHE DE QUIMPERÀ Saint-Coulitz (29150) en vente à 19 km de l’océan Atlantique et à quelques kilomètres de Quimper, donnez vie à votre résidence principale ou secondaire sur ce terrain de 520 m². Il est exposé au sud-ouest. Tous les types d’écoles (de la maternelle au lycée) sont implantés à moins de 10 minutes en voiture. Côté transports, il y a deux gares (Châteaulin et Pont-de-Buis) dans les environs. Les nationales N165 et N164 sont accessibles à moins de 5 km. On trouve deux bassins de natation, des bibliothèques, des tennis, des commerces, des supermarchés, des boulangeries, trois épiceries et des boucheries-charcuteries à quelques minutes. Le marché Centre-Ville a lieu tous les jeudis.Son prix de vente est de 35 100 €. Contactez notre agence (Marie LAURENT : (Numéro supprimé)) pour plus de renseignements sur ce terrain. Maisons de l’Avenir Quimper vous accompagne dans tous vos projets immobiliers et à toutes les étapes de votre projet.
Saint-Coulitz
TERRAIN ET MAISONVENTE d’une maison de 5 pièces (95 m²) à Saint-CoulitzPROCHE DE QUIMPER – MAISON 5 PIÈCES NEUVEEn vente : à 19 km de l’océan Atlantique et à quelques kilomètres de Quimper, Maisons de l’Avenir Quimper vous propose à Saint-Coulitz (29150), cette maison de 5 pièces de 95 m² et de 520 m² de terrain.Il s’agit d’une maison de 2 niveaux. Son intérieur comporte quatre chambres, une cuisine et deux salles de bains. La maison est neuve.Il y a tous les types d’établissements scolaires (de la maternelle au lycée) à moins de 10 minutes en voiture. Niveau transports en commun, on trouve les gares Châteaulin et Pont-de-Buis dans les alentours. Les nationales N165 et N164 sont accessibles à moins de 5 km. Il y a deux bassins de natation, des bibliothèques, des tennis, des commerces, des supermarchés, des boulangeries, trois épiceries et trois bureaux de poste à proximité. Le marché Centre-Ville a lieu chaque jeudi.Elle est à vendre pour la somme de 259 800 €.Contactez Marie LAURENT (tél : (Numéro supprimé)) pour tout renseignement sur le bien. Faites de vos projets immobiliers une réalité avec Maisons de l’Avenir Quimper.
Saint-Coulitz
TERRAIN ET MAISONSaint-Coulitz : maison F3 (55 m²) en ventePROCHE DE QUIMPER – MAISON 3 PIÈCES NEUVEEn vente à 19 km de la côte atlantique et à 21 km de Quimper, laissez vous charmer par cette maison de 3 pièces de plain-pied de 55 m² et de 520 m² de terrain à Saint-Coulitz (29150).Elle inclut deux chambres, une cuisine et une salle de bains. La maison est neuve.Il y a des écoles du primaire et du secondaire à moins de 10 minutes en voiture. Côté transports, on trouve les gares Châteaulin et Pont-de-Buis à proximité. Les nationales N165 et N164 sont accessibles à moins de 5 km. Il y a deux bassins de natation, des bibliothèques, des tennis, des commerces, des supermarchés, des boulangeries, une poissonnerie et trois épiceries à quelques minutes de la maison. Le marché Centre-Ville anime les environs tous les jeudis.Son prix de vente est de 171 100 €.N’hésitez pas à prendre contact avec notre agence (Marie LAURENT : (Numéro supprimé)) pour toute information sur la maison, sur les démarches à suivre ou sur les modalités de vente. Donnez vie à vos projets immobiliers avec Maisons de l’Avenir Quimper.
Saint-Coulitz
TERRAIN ET MAISONVENTE d’une maison de 4 pièces (130 m²) à Saint-CoulitzPROCHE DE QUIMPER – MAISON 4 PIÈCES NEUVEEn vente : localisée à 19 km de l’océan Atlantique et à quelques kilomètres de Quimper, à Saint-Coulitz (29150), Maisons de l’Avenir Quimper vous propose cette maison de 4 pièces de plain-pied de 130 m².Conçue de plain-pied, elle inclut trois chambres, une cuisine et deux salles de bains. La maison est neuve.Le terrain du bien est de 520 m².Des établissements scolaires de tous niveaux (de la maternelle au lycée) sont implantés à moins de 10 minutes en voiture. Niveau transports, on trouve deux gares (Châteaulin et Pont-de-Buis) dans un rayon de 10 km. Les nationales N165 et N164 sont accessibles à moins de 5 km. Il y a deux bassins de natation, des bibliothèques, des tennis, des commerces, des supermarchés, des boulangeries, trois bureaux de poste et une supérette dans les environs. Ne manquez pas le marché Centre-Ville chaque jeudi.Elle est à vendre pour la somme de 336 100 €.Prenez contact avec Marie LAURENT ((Numéro supprimé)) pour tout renseignement sur la maison, sur les démarches à suivre ou sur les modalités de vente.
Dinéault
TERRAINJoli terrain sur DINEAULT , plat et idéalement situé, parfait pour réaliser votre projet de construction de maison individuelle avec notre entreprise.- Superficie : 800 m²- Emplacement : Bien placé dans un cadre agréable- Prix : Hors fraisNe manquez pas cette opportunité !Pour plus d’informations, contactez nous au (Numéro supprimé).
L’actualité immobilière à Saint-Coulitz
27/11/2023
02/11/2023
30/10/2023
20/10/2023
16/10/2023
16/10/2023