Maison à construire à Saint-Évarzec (29170)
Images
Description
VENTE d'une maison de 5 pièces (165 m²) à Saint-Évarzec
PROCHE DE QUIMPER - MAISON 5 PIÈCES NEUVE
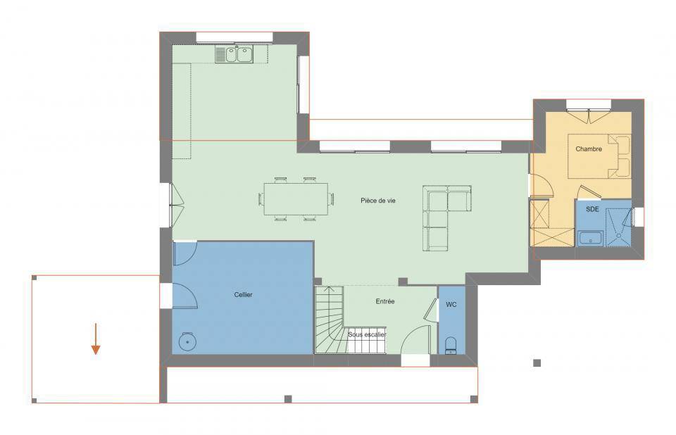
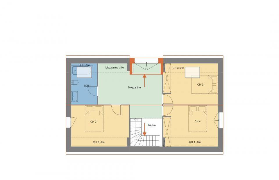
En vente : sur le littoral atlantique et à 8 km de Quimper, Maisons de l'Avenir Quimper vous propose cette maison de 5 pièces de 165 m² et de 950 m² de terrain à Saint-Évarzec (29170). Elle dispose de quatre chambres, d'une cuisine et de deux salles de bains.
Cette maison possède 2 niveaux.
Son prix de vente est de 513 000 €.
Contactez notre agence (DEROUET Mathieu : (Numéro supprimé)) pour obtenir de plus amples renseignements sur la maison. Maisons de l'Avenir Quimper vous accompagne dans tous vos projets immobiliers et à toutes les étapes de l'achat.
Logement susceptibles de vous intéresser
Nous vous proposons de découvrir aussi cette sélection de logements situés à moins de 10km de Saint-Évarzec et qui seraient susceptibles de vous intéresser.
Ergué-Gabéric
TERRAINDEVENEZ PROPRIÉTAIRE D’UN TERRAIN À ERGUÉ-GABÉRIC !Vivez dans un cadre de vie privilégié à Ergué-Gabéric, charmante commune du Finistère, à proximité immédiate de Quimper, des commerces, écoles et services.Profitez du calme de la campagne tout en restant proche de toutes les commodités – un environnement idéal pour votre futur projet immobilier ! Votre terrain comprendo Surface de 390 m², bien orientéeo Possibilité de construire la maison de vos rêves selon vos envies Les atouts du projeto Terrain viabilisé ou proche des réseauxo Cadre de vie paisible, proche de Quimper et du littoral sudo Liberté de construction, plan personnalisable selon vos besoins Prix indiqué hors frais Photos non contractuelles – à titre d’illustration Accession possible avec ou sans apportNe manquez pas cette opportunité unique de devenir propriétaire d’un terrain à Ergué-Gabéric et de concrétiser votre projet sur-mesure ! Contactez-nous dès maintenant pour plus d’informations et étudier votre projet personnalisé.
Elliant
TERRAINDEVENEZ PROPRIÉTAIRE D’UN TERRAIN À ELLIANT !Vivez dans un cadre de vie privilégié à Elliant, charmante commune du Finistère, à proximité des commerces, écoles et services, tout en profitant du calme de la campagne.Un environnement idéal pour construire la maison de vos rêves et réaliser votre projet sur-mesure ! Votre terrain comprendo Surface de 316 m², bien orientéeo Possibilité de construire la maison de vos rêves selon vos envies Les atouts du projeto Terrain viabilisé ou proche des réseauxo Cadre de vie paisible, proche des axes principauxo Liberté de construction, plan personnalisable selon vos besoins Prix indiqué hors frais Photos non contractuelles – à titre d’illustration Accession possible avec ou sans apportNe manquez pas cette opportunité unique de devenir propriétaire d’un terrain à Elliant et de concrétiser votre projet personnalisé ! Contactez nous dès maintenant pour plus d’informations et étudier votre projet sur-mesure.
Saint-Évarzec
TERRAINDEVENEZ PROPRIÉTAIRE D’UN TERRAIN À SAINT-EVARZEC !Vivez dans un cadre de vie privilégié à Saint-Evarzec, charmante commune du Sud-Finistère, idéalement située entre Quimper et le littoral sud.Profitez du calme de la campagne, tout en restant proche des commerces, écoles et services – un environnement idéal pour votre futur projet ! Votre terrain comprend 😮 Une surface de 390 m², bien orientéeo Possibilité de construire la maison de vos rêves selon vos envies Les atouts du projet 😮 Terrain viabilisé ou proche des réseaux (à préciser selon le lot)o Cadre de vie paisible, proche des commodités et du littoralo Liberté de construction, avec plan personnalisable selon vos besoins Prix indiqué hors frais Photos non contractuelles à titre d’illustration Accession possible avec ou sans apportNe manquez pas cette opportunité unique de devenir propriétaire d’un terrain à Saint-Evarzec et de réaliser votre projet sur-mesure ! Contactez-nous dès maintenant pour plus d’informations et étudier votre projet.
Concarneau
TERRAINDEVENEZ PROPRIÉTAIRE D’UN TERRAIN À CONCARNEAU !Vivez dans un cadre de vie privilégié à Concarneau, ville dynamique du Sud-Finistère, idéalement située entre Quimper et Lorient, à proximité du littoral.Profitez du calme urbain tout en restant proche des commerces, écoles et services, ainsi que des plages – un environnement idéal pour votre futur projet ! Votre terrain comprend 😮 Une surface de 408 m², bien orientéeo Possibilité de construire la maison de vos rêves selon vos envies Les atouts du projet 😮 Terrain viabilisé ou proche des réseauxo Cadre de vie pratique et proche du littoralo Liberté de construction, avec plan personnalisable selon vos besoins Prix indiqué hors frais Photos non contractuelles à titre d’illustration Accession possible avec ou sans apportNe manquez pas cette opportunité unique de devenir propriétaire d’un terrain à Concarneau et de réaliser votre projet sur-mesure ! Contactez-nous dès maintenant pour plus d’informations et étudier votre projet.
Saint-Yvi
TERRAINSaint-Yvi : terrain de 398 m² à vendrePROCHE CENTRE-VILLE – PROCHE DE QUIMPERÀ Saint-Yvi (29140) à vendre à 10 km de la côte atlantique et à deux pas de Quimper, imaginez la maison de vos rêves sur ce terrain de 398 m². Il se trouve non loin du centre-ville. Il est à vendre pour la somme de 46 000 €. Contactez notre agence (Mathieu DEROUET : (Numéro supprimé)) pour plus d’informations sur ce terrain ou sur les modalités de vente. Maisons de l’Avenir Quimper vous accompagne dans tous vos projets immobiliers et à toutes les étapes de l’achat.
Saint-Yvi
TERRAIN ET MAISONVENTE : maison F4 (105 m²) à Saint-YviPROCHE CENTRE-VILLE – MAISON 4 PIÈCES NEUVEÀ vendre : sur le littoral atlantique et à deux pas de Quimper, nous sommes ravis de vous présenter, proche du centre-ville de Saint-Yvi (29140), cette maison de 4 pièces de 105 m².C’est une maison de 2 niveaux. Son intérieur comporte quatre chambres, une cuisine et deux salles de bains. Elle est à vendre pour la somme de 310 500 €.Contactez Mathieu DEROUET ((Numéro supprimé)) pour obtenir de plus amples renseignements sur le bien ou sur les modalités de vente.
Saint-Yvi
TERRAIN ET MAISONSaint-Yvi : maison de 4 pièces (100 m²) en ventePROCHE CENTRE-VILLE – MAISON 4 PIÈCES NEUVEÀ vendre sur le littoral atlantique et à 13 km de Quimper, nous vous présentons cette maison de 4 pièces de 100 m² proche du centre-ville de Saint-Yvi (29140). Son intérieur inclut trois chambres, une cuisine et deux salles de bains.Le terrain de la propriété s’étend sur 398 m².C’est une maison de 2 niveaux.Elle est proposée à l’achat pour 299 500 €.Contactez notre agence (DEROUET Mathieu : (Numéro supprimé)) pour plus de renseignements sur la maison, sur les démarches à suivre et sur les modalités de vente.
Saint-Yvi
TERRAIN ET MAISONMaison T4 (90 m²) à vendre à Saint-YviPROCHE CENTRE-VILLE – MAISON 4 PIÈCES NEUVEEn vente : à 10 km de la côte atlantique et à deux pas de Quimper, proche du centre-ville de Saint-Yvi (29140), laissez vous charmer par cette maison de 4 pièces de 90 m².C’est une maison de 2 niveaux. Son intérieur dispose de trois chambres, d’une cuisine et de deux salles de bains. Elle est à vendre pour la somme de 277 500 €.N’hésitez pas à prendre contact avec notre agence (Mathieu DEROUET : (Numéro supprimé)) pour toute information sur la propriété, sur les démarches à suivre ou sur les modalités de vente. Maisons de l’Avenir Quimper vous accompagne à toutes les étapes de votre projet et dans tous vos projets immobiliers.
Saint-Yvi
TERRAIN ET MAISONVENTE d’une maison de 4 pièces (80 m²) à Saint-YviPROCHE CENTRE-VILLE – MAISON 4 PIÈCES NEUVEÀ vendre : à 10 km de la côte atlantique et à quelques kilomètres de Quimper, Maisons de l’Avenir Quimper vous propose cette maison de 4 pièces de plain-pied de 80 m² proche du centre-ville de Saint-Yvi (29140). Son intérieur offre trois chambres, une cuisine et une salle de bains.Son prix de vente est de 255 500 €.Contactez Mathieu DEROUET (tél : (Numéro supprimé)) pour toute question sur le bien. Maisons de l’Avenir Quimper vous accompagne dans toutes vos démarches et à toutes les étapes de votre projet.
L’actualité immobilière à Saint-Évarzec
27/11/2023
02/11/2023
30/10/2023
20/10/2023
16/10/2023
16/10/2023