Maison à construire à Saint-Nic (29550)
Images
Description
VENTE d'une maison de 4 pièces (80 m²) à Saint-Nic
IDÉALEMENT SITUÉE - MAISON 4 PIÈCES NEUVE
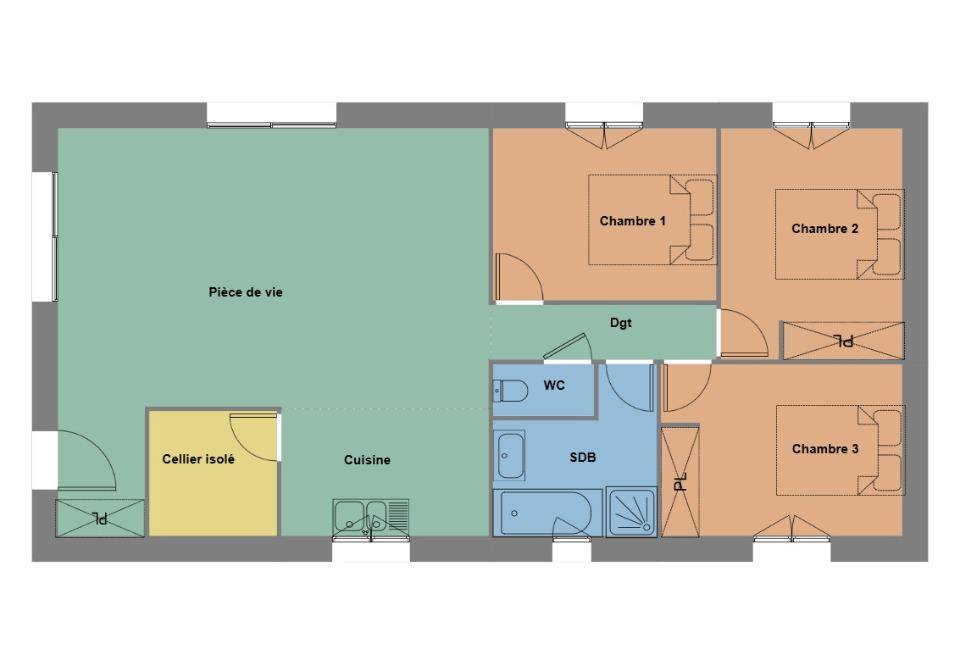
En vente sur le littoral atlantique et à deux pas de Brest, nous vous présentons cette maison de 4 pièces de plain-pied de 80 m², idéalement située dans Saint-Nic (29550). Elle inclut trois chambres, une cuisine et une salle de bains.
Le terrain de cette maison s'étend sur 522 m².
La maison est neuve.
La maison est située dans un quartier attractif. On trouve l'École Primaire Publique de Saint-Nic à moins de 10 minutes à pied. Les nationales N165 et N164 sont accessibles à moins de 20 km. Il y a un tennis et une boulangerie dans les environs.
Son prix de vente est de 243 600 €.
Contactez Marie LAURENT ((Numéro supprimé)) pour plus d'informations sur la maison. Concrétisez vos projets immobiliers avec Maisons de l'Avenir Quimper.
Logement susceptibles de vous intéresser
Nous vous proposons de découvrir aussi cette sélection de logements situés à moins de 10km de Saint-Nic et qui seraient susceptibles de vous intéresser.
Plomodiern
TERRAINDEVENEZ PROPRIÉTAIRE D’UN TERRAIN À PLOMODIERN !Vivez dans un cadre de vie privilégié à Plomodiern, charmante commune du Finistère, à proximité des commerces, écoles et services, et à quelques minutes du littoral nord.Profitez du calme de la campagne tout en restant proche des commodités – un emplacement idéal pour votre futur projet immobilier ! Votre terrain comprendo Surface de 423 m², bien orientéeo Possibilité de construire la maison de vos rêves selon vos envies Les atouts du projeto Terrain viabilisé ou proche des réseauxo Cadre de vie paisible, à proximité du littoral et des axes principauxo Liberté de construction, plan personnalisable selon vos besoins Prix indiqué hors frais Photos non contractuelles – à titre d’illustration Accession possible avec ou sans apportNe manquez pas cette opportunité unique de devenir propriétaire d’un terrain à Plomodiern et de réaliser votre projet sur-mesure ! Contactez-nous dès maintenant pour plus d’informations et étudier votre projet personnalisé.
Ploéven
TERRAINDEVENEZ PROPRIÉTAIRE D’UN TERRAIN À PLOÉVEN !Vivez dans un cadre de vie privilégié à Ploéven, charmante commune du Sud-Finistère, idéalement située entre Concarneau et Pont-Aven, à proximité du littoral.Profitez du calme de la campagne et de la proximité de la mer, tout en restant proche des commerces, écoles et services – un environnement idéal pour votre futur projet ! Votre terrain comprend 😮 Une surface de 547 m², bien orientéeo Possibilité de construire la maison de vos rêves selon vos envies Les atouts du projet 😮 Terrain viabilisé ou proche des réseauxo Cadre de vie paisible et proche du littoralo Liberté de construction, avec plan personnalisable selon vos besoins Prix indiqué hors frais Photos non contractuelles à titre d’illustration Accession possible avec ou sans apportNe manquez pas cette opportunité unique de devenir propriétaire d’un terrain à Ploéven et de réaliser votre projet sur-mesure ! Contactez-nous dès maintenant pour plus d’informations et étudier votre projet.
Dinéault
TERRAIN ET MAISONDEVENEZ PROPRIÉTAIRE À DINÉAULT – MAISON NEUVE RE2020 SUR-MESURE !Vivez dans un cadre de vie privilégié à Dinéault, charmante commune dynamique du Sud-Finistère, idéalement située entre Châteaulin et Quimper.Profitez du calme de la campagne, tout en restant proche des commerces, écoles et services – un environnement idéal pour votre famille ! Votre future maison comprend 😮 4 chambres spacieuses et lumineuseso Un grand salon-séjour traversant, ouvert sur le jardino Une cuisine moderne et fonctionnelleo Salle de bain et WC séparéso Le tout sur un terrain de 800 m², bien orienté Les atouts du projet 😮 Maison neuve RE2020, à faible consommation d’énergieo Plan personnalisable selon vos envies et vos besoinso Cadre de vie paisible, à proximité de Châteaulin, Quimper et du littoral sudo Prestations de qualité, finitions soignées Prix indiqué hors frais Photos non contractuelles à titre d’illustration Accession à la propriété possible avec ou sans apportNe manquez pas cette belle opportunité de devenir propriétaire d’une maison neuve moderne et économique à Dinéault ! Contactez-nous dès maintenant pour découvrir les plans et étudier votre projet personnalisé.
Ploéven
TERRAINVENTE d’un terrain de 481 m² à PloévenPROCHE CENTRE-VILLE – PROCHE DE QUIMPERTerrain de 481 m² à 5 km de l’océan Atlantique et à quelques kilomètres de Quimper. Ce terrain se situe proche du centre-ville de Ploéven (29550). Il est orienté au sud-ouest. Il y a l’École Primaire Publique Simone Veil à moins de 10 minutes à pied. Les nationales N165 et N164 sont accessibles à moins de 18 km. On trouve une boulangerie à quelques minutes.Il est à vendre pour la somme de 38 000 €. Prenez contact avec notre agence (ALKIS Sami) pour toute question sur le terrain. Concrétisez vos projets immobiliers avec Maisons de l’Avenir Guipavas.
Ploéven
TERRAIN ET MAISONVENTE d’une maison T4 (92 m²) à PloévenPROCHE CENTRE-VILLE – MAISON 4 PIÈCES NEUVEÀ vendre sur la côte atlantique et à deux pas de Quimper, proche du centre-ville de Ploéven (29550), Maisons de l’Avenir Guipavas vous propose cette maison de 4 pièces de 92 m² et de 481 m² de terrain.Cette maison compte 2 niveaux. Elle dispose de trois chambres, d’une cuisine et d’une salle de bains. Cette maison est neuve.L’École Primaire Publique Simone Veil est implantée à moins de 10 minutes à pied. Les nationales N165 et N164 sont accessibles à moins de 18 km. On trouve une boulangerie à quelques minutes.Son prix de vente est de 271 725 €.Contactez notre agence (Sami ALKIS) pour toute question sur la maison. Donnez vie à vos projets immobiliers avec Maisons de l’Avenir Guipavas.
Ploéven
TERRAIN ET MAISONMaison T4 (62 m²) à vendre à PloévenPROCHE CENTRE-VILLE – MAISON 4 PIÈCES NEUVEÀ vendre : sur la côte atlantique et à quelques kilomètres de Quimper, notre agence Maisons de l’Avenir Guipavas est heureuse de vous proposer, proche du centre-ville de Ploéven (29550), cette maison de 4 pièces de 62 m² et de 481 m² de terrain.Cette maison comporte 2 niveaux. Elle comporte trois chambres, une cuisine et une salle de bains. La maison est neuve.L’École Primaire Publique Simone Veil se trouve à moins de 10 minutes à pied. Les nationales N165 et N164 sont accessibles à moins de 18 km. Il y a une boulangerie à proximité du logement.Il est à vendre pour la somme de 178 832 €.N’hésitez pas à prendre contact avec notre agence (Sami ALKIS) pour toute information sur la maison. Maisons de l’Avenir Guipavas est là pour vous accompagner dans toutes vos démarches.
Ploéven
TERRAIN ET MAISONPloéven : maison F4 (132 m²) à vendrePROCHE CENTRE-VILLE – MAISON 4 PIÈCES NEUVEÀ vendre sur la côte atlantique et à deux pas de Quimper, votre agence Maisons de l’Avenir Guipavas est heureuse de vous présenter cette maison de 4 pièces de 132 m² et de 481 m² de terrain proche du centre-ville de Ploéven (29550). Son intérieur propose trois chambres, une cuisine et deux salles de bains.Cette maison comporte 2 niveaux. Elle est neuve.L’École Primaire Publique Simone Veil se trouve à moins de 10 minutes à pied. Les nationales N165 et N164 sont accessibles à moins de 18 km. Il y a une boulangerie dans les environs.Son prix de vente est de 337 661 €.Prenez contact avec Sami ALKIS pour tout renseignement sur la maison ou sur les démarches à suivre.
Ploéven
TERRAIN ET MAISONMaison de 4 pièces (94 m²) en vente à PloévenPROCHE CENTRE-VILLE – MAISON 4 PIÈCES NEUVEEn vente sur la côte atlantique et à deux pas de Quimper, votre agence Maisons de l’Avenir Guipavas est heureuse de vous proposer, proche du centre-ville de Ploéven (29550), cette maison de 4 pièces de plain-pied de 94 m². Son intérieur est composé de trois chambres, d’une cuisine et de deux salles de bains.Le terrain du bien est de 481 m².La maison est neuve.L’École Primaire Publique Simone Veil est implantée à moins de 10 minutes à pied. Les nationales N165 et N164 sont accessibles à moins de 18 km. Il y a une boulangerie à quelques minutes à peine.Son prix de vente est de 267 443 €.N’hésitez pas à prendre contact avec notre constructeur (ALKIS Sami) pour toute information sur la propriété. Faites de vos projets immobiliers une réalité avec Maisons de l’Avenir Guipavas.
Plomodiern
TERRAINSur la commune de Plomodiern, à proximité immédiate du bourg et à seulement 5 minutes des plages, beau terrain à bâtir d’une surface de 567 m². Situé dans un environnement calme et dégagé, ce terrain offre une vue agréable sur le Menez-Hom, idéal pour un projet de construction dans un cadre naturel préservé. Les commerces de proximité (boulangerie, écoles primaires) se trouvent à quelques minutes à pied, alliant confort de vie et cadre de campagne.Le terrain est non viabilisé, mais les réseaux (eau, électricité, tout-à-l’égout) passent à proximité, facilitant les raccordements.Emplacement recherché, entre bourg et littoral.Vue sur le Menez-Hom.Commerces et école accessibles facilement.Cadre naturel et calme.Raccordements proches.Cette annonce référence 290988 vous est présentée par votre agent commercial BSK Immobilier SIDRIT SKENDERAJ (EI) immatriculé au RSAC de QUIMPER (29000) sous le numéro 83869446100016.Prix du bien : 45 000,00 €Les honoraires d’agence sont à la charge du vendeur.Les informations sur les risques auxquels ce bien est exposé sont disponibles sur le site Géorisques : www.georisques.gouv.fr
L’actualité immobilière à Saint-Nic
27/11/2023
02/11/2023
30/10/2023
20/10/2023
16/10/2023
16/10/2023