Maison à construire à Floirac (33270)
Images
Description
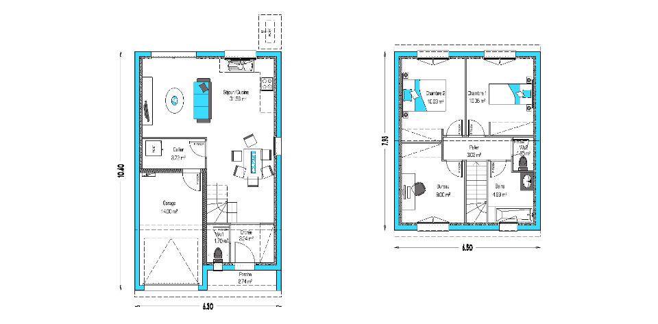
Projet de construction secteur haut Floirac, quartier résidentiel calme, en lisière du parc des Coteaux sur un terrain de 300 m² avec surface plancher autorisée de 110 m² (validation mairie).
Projet sur mesure avec So'9 Habitat - Marque urbaine du Groupe HDV :
Maison contemporaine avec 3 chambres et un bureau, une pièce de vie lumineuse de 50 m², des prestations personnalisées, entièrement personnalisable.
Bus lignes 16 (4 min) et 28 (7 min), tram à 15 min à pied / 5 min en vélo.
Contactez Sébastien Monacelli au (Numéro supprimé) pour plus d'informations.
Logement susceptibles de vous intéresser
Nous vous proposons de découvrir aussi cette sélection de logements situés à moins de 10km de Floirac et qui seraient susceptibles de vous intéresser.
Bouliac
TERRAINVENTE : terrain de 670 m² à BouliacPROCHE DE BORDEAUXÀ 25 km de la côte atlantique et à deux pas de Bordeaux à Bouliac (33270), grand terrain. Des écoles maternelles et élémentaires sont implantées à moins de 10 minutes à pied, tout comme, parmi lesquelles l’École Élementaire André Peynaud. Niveau transports, on trouve huit gares à moins de 10 minutes en voiture. Les autoroutes A630, A10 et A62 et les nationales N230 et N89 sont accessibles à moins de 10 km. Il y a un tennis, une bibliothèque, une boulangerie, quatre commerces, un bureau de poste et une boucherie-charcuterie dans les environs.Il est à vendre pour la somme de 247 000 €. N’hésitez pas à prendre contact avec notre agence (ZODROS Naomi : (Numéro supprimé) ) pour obtenir de plus amples renseignements sur ce terrain. Maisons de la Côte Atlantique Créon est là pour vous accompagner dans tous vos projets immobiliers.
Bouliac
TERRAIN ET MAISONVENTE d’une maison de 6 pièces (100 m²) à BouliacMAISON 6 PIÈCES NEUVE – PROCHE DE BORDEAUXÀ 25 km de la côte atlantique et à quelques kilomètres de Bordeaux, venez découvrir cette maison de 6 pièces de plain-pied de 100 m² et de 670 m² de terrain à vendre à Bouliac (33270). Son intérieur comporte trois chambres, une cuisine et deux salles de bains.La maison est neuve.Il y a des écoles maternelles et élémentaires à moins de 10 minutes à pied et dont l’École Élementaire André Peynaud. Niveau transports, on trouve huit gares à moins de 10 minutes en voiture. Les autoroutes A630, A10 et A62 et les nationales N230 et N89 sont accessibles à moins de 10 km. Il y a un tennis, une bibliothèque, une boulangerie, quatre commerces, une boucherie-charcuterie et un bureau de poste dans les environs.Son prix de vente est de 452 995 €.Contactez notre agence (Naomi ZODROS : (Numéro supprimé) ) pour tout renseignement sur cette maison, sur les modalités de vente ou sur les démarches à suivre. Concrétisez vos projets immobiliers avec Maisons de la Côte Atlantique Créon.
Bouliac
TERRAIN ET MAISONVENTE : maison de 3 pièces (111 m²) à BouliacMAISON 3 PIÈCES NEUVE – PROCHE DE BORDEAUXEn vente sur le littoral atlantique et à quelques kilomètres de Bordeaux, à Bouliac (33270), votre agence Maisons de la Côte Atlantique Créon est heureuse de vous présenter cette maison de 3 pièces de plain-pied de 111 m².Conçue de plain-pied, elle offre trois chambres, une cuisine et une salle de bains. Cette maison est neuve.Le terrain de la propriété s’étend sur 670 m².Il y a des écoles maternelles et élémentaires à moins de 10 minutes à pied et, parmi lesquelles l’École Élementaire André Peynaud. Côté transports en commun, on trouve huit gares à moins de 10 minutes en voiture. Les autoroutes A630, A10 et A62 et les nationales N230 et N89 sont accessibles à moins de 10 km. Il y a un tennis, une bibliothèque, une boulangerie, quatre commerces, un bureau de poste et une boucherie-charcuterie dans les environs.Elle est proposée à l’achat pour 457 997 €.Contactez notre constructeur (Naomi ZODROS : (Numéro supprimé) ) pour tout renseignement sur la maison ou sur les démarches à suivre.
Bouliac
TERRAIN ET MAISONBouliac : maison de 3 pièces (100 m²) en ventePROCHE DE BORDEAUX – MAISON 3 PIÈCES NEUVEÀ vendre à 25 km de l’océan Atlantique et à deux pas de Bordeaux, nous vous proposons cette maison de 3 pièces de plain-pied de 100 m² et de 670 m² de terrain à Bouliac (33270).Son intérieur dispose de trois chambres, d’une cuisine et de deux salles de bains. Cette maison est neuve.Des écoles maternelles et élémentaires sont implantées à moins de 10 minutes à pied, tout comme dont l’École Élementaire André Peynaud. Côté transports en commun, il y a huit gares à moins de 10 minutes en voiture. Les autoroutes A630, A10 et A62 et les nationales N230 et N89 sont accessibles à moins de 10 km. On trouve un tennis, une bibliothèque, une boulangerie, quatre commerces, une boucherie-charcuterie et un bureau de poste dans les environs.Son prix de vente est de 427 995 €.Contactez notre agence (Naomi ZODROS : (Numéro supprimé) ) pour toute information sur cette maison, sur les modalités de vente ou sur les démarches à suivre. Maisons de la Côte Atlantique Créon est là pour vous accompagner dans tous vos projets immobiliers.
Bouliac
TERRAIN ET MAISONVENTE : maison de 4 pièces (100 m²) à BouliacMAISON 4 PIÈCES NEUVE – PROCHE DE BORDEAUXÀ vendre : à 25 km de l’océan Atlantique et à quelques kilomètres de Bordeaux, nous sommes heureux de vous présenter cette maison de 4 pièces de plain-pied de 100 m² à Bouliac (33270).Conçue de plain-pied, elle propose trois chambres, une cuisine et deux salles de bains. Cette maison est neuve.Le terrain de la propriété est de 670 m².Des écoles maternelles et élémentaires se trouvent à moins de 10 minutes à pied, tout comme, comme l’École Élementaire André Peynaud. Niveau transports en commun, il y a huit gares à moins de 10 minutes en voiture. Les autoroutes A630, A10 et A62 et les nationales N230 et N89 sont accessibles à moins de 10 km. On trouve un tennis, une bibliothèque, une boulangerie, quatre commerces, une boucherie-charcuterie et un bureau de poste à proximité.Elle est à vendre pour la somme de 432 995 €.Prenez contact avec notre agence (ZODROS Naomi : (Numéro supprimé) ) pour obtenir de plus amples renseignements sur la maison ou sur les modalités de vente. Maisons de la Côte Atlantique Créon vous accompagne à toutes les étapes de votre projet et dans tous vos projets immobiliers.
Bordeaux
TERRAINVENTE : terrain de 700 m² à BordeauxSur le littoral atlantique à Bordeaux (33300), grand terrain. Réalisez-y votre résidence principale ou secondaire. Il est exposé au sud. Le terrain est proche des écoles et des commerces. Cinq établissements scolaires sont implantés à moins de 10 minutes à pied. Côté transports, il y a 12 gares à moins de 10 minutes en voiture. Il y a un accès à l » » » »autoroute A630 à 1 km. On trouve un tennis, un bassin de natation, des commerces, des boulangeries, trois supermarchés, trois épiceries et deux boucheries-charcuteries à quelques minutes à peine. Le marché Boulevard Brandenburg a lieu tous les vendredis matin.Ce terrain est proposé à l » » » »achat pour 680 000 €. Contactez notre agence (Laurent BOLZER : (Numéro supprimé)) pour toute information sur le terrain, sur les modalités de vente et sur les démarches à suivre.
Bordeaux
TERRAIN ET MAISONVENTE : maison de 4 pièces (102 m²) à BordeauxMAISON 4 PIÈCES NEUVESur le littoral atlantique, nous sommes heureux de vous présenter cette maison de 4 pièces de 102 m² à Bordeaux (33300). Son intérieur comporte quatre chambres, une cuisine et une salle de bains.Le terrain de la propriété est de 700 m².Cette maison compte 2 niveaux. Elle est neuve.Il y a cinq établissements scolaires à moins de 10 minutes à pied. Côté transports en commun, on trouve 12 gares à moins de 10 minutes en voiture. On trouve un accès à l’autoroute A630 à 1 km. Il y a un tennis, un bassin de natation, des commerces, des boulangeries, trois supermarchés, un bureau de poste et trois épiceries à proximité de la maison. Le marché Boulevard Brandenburg a lieu chaque vendredi matin.Elle est à vendre pour la somme de 875 000 €.Contactez notre agence (Laurent BOLZER : (Numéro supprimé)) pour obtenir de plus amples informations sur le bien ou sur les démarches à suivre. Donnez vie à vos projets immobiliers avec Maisons de la Côte Atlantique Biganos.
Bordeaux
TERRAINÀ Bordeaux, rare opportunité avec ce terrain non viabilisé de 382 m², proposé à 290 000 €. Situé dans un secteur calme et recherché, il offre un cadre de vie agréable à proximité immédiate des commerces, écoles et transports. // Réf. : T210579. Prix terrain : 290 000 €, hors frais d'agence et de notaire à la charge de l'acquéreur. Ce terrain vous est proposé, par nos partenaires fonciers, dans le cadre d'un projet de construction avec nous. Les informations sur les risques auxquels ce bien est exposé sont disponibles sur le site Géorisques (www.georisques.gouv.fr).
Bordeaux
TERRAIN ET MAISONÀ Bordeaux, rare opportunité avec ce terrain non viabilisé de 382 m², proposé à 290 000 €. Situé dans un secteur calme et recherché, il offre un cadre de vie agréable à proximité immédiate des commerces, écoles et transports. Idéale pour une première acquisition, cette charmante maison de plain-pied vous accueille dans un très bel espace de vie baigné de lumière grâce à sa baie vitrée. Elle vous offre également deux chambres, une salle de bains et des wc séparés. Le garage est intégré à la maison et communique avec le cellierPour vous assurer un confort de vie et conformèment à la RE2025, nous avons chosi un mode de chauffage par PAC + plancher chauffant, volets roulants électriques, Prix hors fourniture et pose : des appareils sanitaires (sauf système de chauffage et d'eau chaude sanitaire), du carrelage et de la faïence, des revêtements de sol dans les chambres. Hors décoration et aménagement intérieur et peinture. Hors raccordements, frais de notaire et dommage ouvrage. // Réf. : 1118-210579-MIP. Prix terrain : 290 000 €, hors frais d'agence à la charge de l'acquéreur. Ce terrain vous est proposé, par nos partenaires fonciers, dans le cadre d'un projet de construction avec nous. Les informations sur les risques auxquels ce bien est exposé sont disponibles sur le site Géorisques (www.georisques.gouv.fr). Prix maison : 105 488 €.
L’actualité immobilière à Floirac
27/11/2023
02/11/2023
30/10/2023
20/10/2023
16/10/2023
16/10/2023