Maison à construire à Quarante (34310)
Images
Description
PROJET DE CONSTRUCTION - Maison F3 (70 m²) à Quarante
MAISON 3 PIÈCES - PROCHE DE BÉZIERS
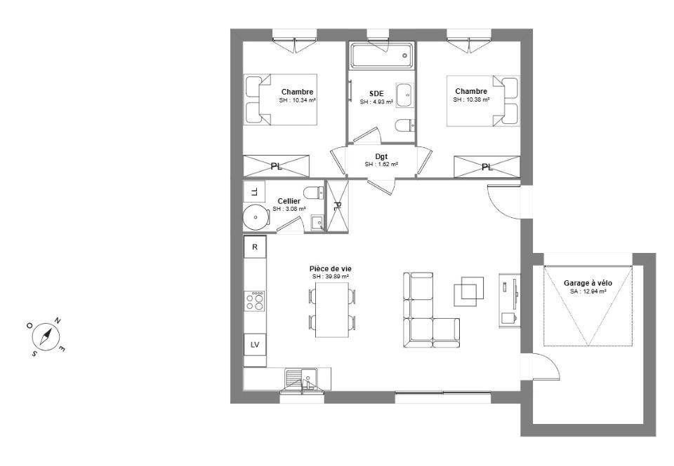
En vente : située à 30 km de la côte méditerranéenne et à deux pas de Béziers, à Quarante (34310), ayez le coup de coeur pour cette maison de 3 pièces de plain-pied de 70 m².
Elle est composée de deux chambres, d'une cuisine, d'un cellier, d'une salle de bains et d'un garage.
(Carrelage inclus dans toutes les pièces / Raccordements inclus).
Le terrain du bien s'étend sur 558 m².
Il y a le Collège Louis Cahuzac, l'École Élémentaire Jules Ferry et l'École Maternelle de l'Horte à moins de 10 minutes à pied. L'autoroute A9 est accessible à 20 km. On trouve un tennis, deux boulangeries, un bureau de poste, une épicerie et trois boucheries-charcuteries dans les environs.
Son prix de vente est de 208 000 €.
Pour plus d'information contacter (Anthony BALLESTER : (Numéro supprimé)) Maisons France Confort Béziers pour échanger sur votre projet et réaliser une étude gratuite. (Plan personnalisable). Tous nos ouvrages sont réalisés sur-mesure en fonction de vos attentes et de nos échanges avec vous ainsi que dans le respect de la règlementation RE 2020. Ce projet comporte les garanties suivantes: Contrat de construction CCMI. Dommage/Ouvrage. RC Garantie décennale. Parfaite achèvement. Etude de sol G2. Prix et délais convenu. Garantie de livraison. Garantie financière Pour votre tranquillité nous nous occupons de toutes les formalités administratives.
Logement susceptibles de vous intéresser
Nous vous proposons de découvrir aussi cette sélection de logements situés à moins de 10km de Quarante et qui seraient susceptibles de vous intéresser.
Sallèles-d'Aude
TERRAIN ET MAISONSallèles d’Aude.Nous construisons votre villa RE 2020 sur cette parcelle de 545m² située dans un petit lotissement en bordure du canal.Sallèles est un village tous commerces et offres tous les services sur place: centre médical, crèche, école supermarché etc.., le tout à 10 minutes de Narbonne .Contactez-nous au (Numéro supprimé) pour discuter de votre projet de construction.
Sallèles-d'Aude
TERRAIN ET MAISONSallèles d’Aude.Nous construisons votre villa RE 2020 sur cette parcelle de 545m² située dans un petit lotissement en bordure du canal.Sallèles est un village tous commerces et offres tous les services sur place: centre médical, crèche, école supermarché etc.., le tout à 10 minutes de Narbonne .Contactez-nous au (Numéro supprimé) pour discuter de votre projet de construction.
Puisserguier
TERRAIN ET MAISONPuisserguier.Nous construisons votre villa RE 2020 sur cette parcelle de 330m² viabilisée et prête à la construction située dans un petit lotissement installé autour d’une coulée verte rappelant la nature environnante.Vous trouverez toutes les commodités sur place: médecins, pharmacie, commerces, écoles maternelle et primaire, et le collège à 5 kms, à Capestang.Emplacement idéal entre Béziers et Narbonne, à 20 minutes.Contactez-nous au (Numéro supprimé) pour discuter de votre projet de construction.
Bize-Minervois
TERRAINVENTE d’un terrain de 300 m² à Bize-MinervoisIDÉALEMENT SITUÉ – VUE SANS VIS-À-VISÀ 36 km de la mer Méditerranée et à 29 km de Béziers à Bize-Minervois (11120), terrain de 300 m². Il profite d’une vue sans vis-à-vis et est exposé au sud. Dans un secteur recherché, ce terrain idéalement situé est proche des commerces et des écoles. Des établissements scolaires primaires sont implantés à moins de 10 minutes à pied, tout comme, comme l’École Primaire Privée Calendreta Lo Cigal. Les autoroutes A61 et A9 sont accessibles à moins de 20 km. On trouve un tennis, un commerce, deux boulangeries, une épicerie et un bureau de poste à quelques minutes.Il est proposé à l’achat pour 65 000 €. Contactez Frédéric MAGERE (tél : (Numéro supprimé)) pour obtenir de plus amples renseignements sur le terrain et sur les démarches à suivre. Maisons France Confort Carcassonne vous accompagne à toutes les étapes de votre projet et dans tous vos projets immobiliers.
Bize-Minervois
TERRAIN ET MAISONMaison T3 (85 m²) en vente à Bize-MinervoisIDÉALEMENT SITUÉE – VUE SANS VIS-À-VISÀ vendre à 36 km de la mer Méditerranée et à quelques kilomètres de Béziers, idéalement située dans Bize-Minervois (11120), nous vous présentons cette maison de 3 pièces de 85 m² sans vis-à-vis. Son intérieur propose trois chambres, une cuisine et une salle de bains.Le terrain du bien est de 300 m².Cette maison est de plain-pied. Elle est neuve.Cette maison est située dans un secteur convoité. Des écoles maternelles et élémentaires se trouvent à moins de 10 minutes à pied, tout comme dont l’École Primaire Privée Calendreta Lo Cigal. Les autoroutes A61 et A9 sont accessibles à moins de 20 km. Il y a un tennis, un commerce, deux boulangeries, une épicerie et un bureau de poste à quelques minutes du logement.Elle est à vendre pour la somme de 192 000 €.Contactez Frédéric MAGERE ((Numéro supprimé)) pour obtenir de plus amples renseignements sur la maison, sur les démarches à suivre ou sur les modalités de vente.
Maureilhan
TERRAINFiche N°Id-TCT173705 : MAUREILHAN Fiche BC173705 : Maureilhan, Terrain constructible d’environ 120 m2 de 409 m2 – Vue : Rue – Construction 2024 – Equipements annexes : jardin – – chauffage : Aucun – Plus d’informations disponibles sur demande… – Mentions légales : Proposé à la vente à 162000 Euros (honoraires à la charge du vendeur) – Affaire suivie par Mme Carole KIEL (Agent immobilier – Responsable) – Reseau Immo-Diffusion Narbonne – Pour plus d’informations, contactez notre secrétariat au (Numéro supprimé) (Appel gratuit ou prix d’une communication locale) – Les informations sur les risques auxquels ce bien est exposé sont disponibles sur le site Géorisques : www.georisques.gouv.fr
Puisserguier
TERRAINVENTE d’un terrain de 354 m² à PuisserguierEMPLACEMENT PRIVILÉGIÉ – VUE DÉGAGÉEÀ 28 km de la mer Méditerranée et à deux pas de Béziers à Puisserguier (34620), terrain de 354 m². Il est prêt à accueillir votre résidence principale ou secondaire pour toute la famille. Il profite d’une vue dégagée. Dans un quartier prisé, le terrain bénéficiant d’un emplacement d’exception est proche des écoles et des commerces. L’École Primaire Font Claire est implantée dans la commune. Les autoroutes A9 et A75 sont accessibles à moins de 17 km. Il y a une bibliothèque à quelques minutes.Son prix de vente est de 89 900 €. Prenez contact avec notre agence (Léo RENARD : (Numéro supprimé)) pour toute question sur ce terrain, sur les modalités de vente ou sur les démarches à suivre. Donnez vie à vos projets immobiliers avec Maisons France Confort Béziers.
Puisserguier
TERRAIN ET MAISONVENTE d’une maison T3 (50 m²) à PuisserguierEMPLACEMENT PRIVILÉGIÉ – MAISON 3 PIÈCES NEUVEEn vente : à 28 km de la mer Méditerranée et à quelques kilomètres de Béziers, Maisons France Confort Béziers vous propose cette maison de 3 pièces de plain-pied de 50 m² et de 354 m² de terrain bénéficiant d’un emplacement privilégié dans Puisserguier (34620). Conçue de plain-pied, elle propose une chambre, une cuisine et deux salles de bains.Cette maison est neuve.Cette maison est située dans un quartier attractif. On y trouve l’École Primaire Font Claire. Les autoroutes A9 et A75 sont accessibles à moins de 17 km. Il y a une bibliothèque à proximité de la maison.Elle est à vendre pour la somme de 192 000 €.Contactez Léo RENARD ((Numéro supprimé)) pour obtenir de plus amples informations sur la maison ou sur les démarches à suivre. Maisons France Confort Béziers est là pour vous accompagner à toutes les étapes de votre projet.
Puisserguier
TERRAIN ET MAISONPuisserguier : maison de 3 pièces (71 m²) en venteEMPLACEMENT PRIVILÉGIÉ – MAISON 3 PIÈCES NEUVEEn vente : située à 28 km de la mer Méditerranée et à quelques kilomètres de Béziers, nous vous proposons cette maison de 3 pièces de plain-pied de 71 m² et de 354 m² de terrain, bénéficiant d’un emplacement privilégié dans Puisserguier (34620). Conçue de plain-pied, elle est composée de deux chambres, d’une cuisine et d’une salle de bains.Cette maison est neuve.La maison est située dans un secteur recherché. On y trouve l’École Primaire Font Claire. Les autoroutes A9 et A75 sont accessibles à moins de 17 km. Il y a une bibliothèque à quelques minutes.Elle est proposée à l’achat pour 217 000 €.Contactez notre agence (RENARD Léo : (Numéro supprimé)) pour tout renseignement sur la propriété, sur les modalités de vente ou sur les démarches à suivre.
L’actualité immobilière à Quarante
27/11/2023
02/11/2023
30/10/2023
20/10/2023
16/10/2023
16/10/2023