Maison à construire à Ernée (53500)
Images
Description
VENTE d'une maison de 6 pièces (124 m²) à Ernée
PROCHE DE LAVAL - MAISON 6 PIÈCES NEUVE
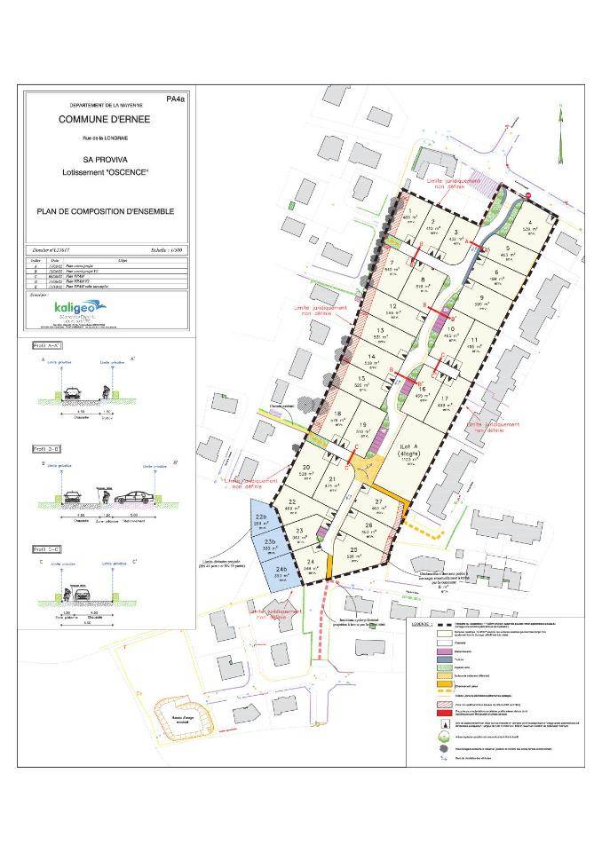
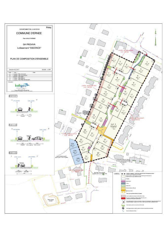
En vente : à deux pas de Laval, nous sommes ravis de vous proposer cette maison de 6 pièces de 124 m² à Ernée (53500). Son intérieur est composé de cinq chambres, d'une cuisine et de deux salles de bains.
Le terrain de cette maison s'étend sur 519 m².
Cette maison possède 2 niveaux. Elle est neuve.
Il y a des écoles de tous niveaux (de la maternelle au lycée) à moins de 10 minutes à pied. On trouve un tennis, un bassin de natation, une bibliothèque, des commerces, trois boulangeries, un supermarché, un bureau de poste et une supérette à proximité. Ne manquez pas le marché Centre-Ville chaque mardi matin.
Elle est à vendre pour la somme de 326 500 €.
Prenez contact avec notre agence (FERBER Claire : (Numéro supprimé)) pour toute question sur cette maison, sur les démarches à suivre ou sur les modalités de vente.
Logement susceptibles de vous intéresser
Nous vous proposons de découvrir aussi cette sélection de logements situés à moins de 10km de Ernée et qui seraient susceptibles de vous intéresser.
Saint-Hilaire-du-Maine
TERRAINTerrain de 500 m² à vendre à Saint-Hilaire-du-MaineIDÉALEMENT SITUÉ – VUE DÉGAGÉEÀ vendre à deux pas de Laval à Saint-Hilaire-du-Maine (53380), terrain de 500 m². Il profite d’une vue dégagée. Il se situe dans un quartier attractif. On y trouve une école primaire. L’autoroute A81 et les nationales N157 et N162 sont accessibles à moins de 20 km. On trouve une bibliothèque et une épicerie à quelques minutes à peine.Ce terrain est à vendre pour la somme de 19 500 €. Contactez notre agence (Claire FERBER : (Numéro supprimé)) pour obtenir de plus amples informations sur ce terrain et sur les démarches à suivre. Maisons France Confort Bonchamp-lès-Laval vous accompagne à toutes les étapes de votre projet et dans tous vos projets immobiliers.
Ernée
TERRAINVENTE : terrain de 472 m² à ErnéePROCHE DE LAVALTerrain de 472 m² à vendre à 29 km de Laval. Ce terrain se situe dans Ernée (53500). Des établissements scolaires de tous types (de la maternelle au lycée) sont implantés à moins de 10 minutes à pied. On trouve un tennis, un bassin de natation, une bibliothèque, des commerces, trois boulangeries, un supermarché, une épicerie et une supérette dans les environs. Enfin, le marché Centre-Ville anime les environs tous les mardis matin.Son prix de vente est de 39 500 €. Contactez Claire FERBER (tél : (Numéro supprimé)) pour obtenir de plus amples informations sur ce terrain, sur les démarches à suivre et sur les modalités de vente.
Ernée
TERRAINTerrain de 519 m² à vendre à ErnéePROCHE DE LAVALÀ vendre à deux pas de Laval à Ernée (53500), grand terrain. Il y a des écoles de tous types à moins de 10 minutes à pied. On trouve un tennis, un bassin de natation, une bibliothèque, des commerces, trois boulangeries, un supermarché, un bureau de poste et une épicerie dans les environs. Le marché Centre-Ville a lieu chaque mardi matin.Il est à vendre pour la somme de 46 700 €. Prenez contact avec notre agence (Claire FERBER : (Numéro supprimé)) pour plus de renseignements sur ce terrain. Concrétisez vos projets immobiliers avec Maisons France Confort Bonchamp-lès-Laval.
Saint-Hilaire-du-Maine
TERRAIN ET MAISONVENTE d’une maison T5 (100 m²) à Saint-Hilaire-du-MaineIDÉALEMENT SITUÉE – MAISON 5 PIÈCES NEUVEÀ 22 km de Laval, Maisons France Confort Bonchamp-lès-Laval vous présente cette maison de 5 pièces de 100 m² et de 500 m² de terrain à vendre idéalement située dans Saint-Hilaire-du-Maine (53380).Cette maison possède 2 niveaux. Elle dispose de quatre chambres, d’une cuisine et d’une salle de bains. Cette maison est neuve.La maison se situe dans un quartier recherché. Une école primaire y est implantée. L’autoroute A81 et les nationales N157 et N162 sont accessibles à moins de 20 km. On trouve une bibliothèque et une épicerie à quelques minutes du logement.Elle est à vendre pour la somme de 234 600 €.N’hésitez pas à prendre contact avec Claire FERBER ((Numéro supprimé)) pour obtenir de plus amples informations sur la maison ou sur les démarches à suivre. Faites de vos projets immobiliers une réalité avec Maisons France Confort Bonchamp-lès-Laval.
Saint-Hilaire-du-Maine
TERRAIN ET MAISONVENTE d’une maison de 4 pièces (80 m²) à Saint-Hilaire-du-MaineIDÉALEMENT SITUÉE – MAISON 4 PIÈCES NEUVEEn vente : à 22 km de Laval, notre agence Maisons France Confort Bonchamp-lès-Laval est ravie de vous présenter, idéalement située dans Saint-Hilaire-du-Maine (53380), cette maison de 4 pièces de plain-pied de 80 m² et de 500 m² de terrain.Conçue de plain-pied, elle est composée de trois chambres, d’une cuisine et d’une salle de bains. La maison est neuve.La maison se trouve dans un secteur recherché. On y trouve une école primaire. L’autoroute A81 et les nationales N157 et N162 sont accessibles à moins de 20 km. Il y a une bibliothèque et une épicerie à proximité.Elle est à vendre pour la somme de 196 700 €.N’hésitez pas à prendre contact avec notre constructeur (FERBER Claire : (Numéro supprimé)) pour plus d’informations sur la maison, sur les démarches à suivre ou sur les modalités de vente. Maisons France Confort Bonchamp-lès-Laval vous accompagne à toutes les étapes de l’achat et dans tous vos projets immobiliers.
Saint-Hilaire-du-Maine
TERRAIN ET MAISONSaint-Hilaire-du-Maine : maison F3 (90 m²) à vendreIDÉALEMENT SITUÉE – MAISON 3 PIÈCES NEUVEÀ 22 km de Laval, Maisons France Confort Bonchamp-lès-Laval vous présente en vente, idéalement située dans Saint-Hilaire-du-Maine (53380), cette maison de 3 pièces de plain-pied de 90 m².Son intérieur propose deux chambres, une cuisine et une salle de bains. La maison est neuve.Le terrain du bien s’étend sur 500 m².Cette maison se trouve dans un quartier convoité. On y trouve une école primaire. L’autoroute A81 et les nationales N157 et N162 sont accessibles à moins de 20 km. Il y a une bibliothèque et une épicerie à proximité du logement.Elle est à vendre pour la somme de 211 300 €.N’hésitez pas à prendre contact avec Claire FERBER (tél : (Numéro supprimé)) pour tout renseignement sur la maison. Maisons France Confort Bonchamp-lès-Laval est là pour vous accompagner dans tous vos projets immobiliers.
Saint-Hilaire-du-Maine
TERRAIN ET MAISONMaison de 3 pièces (73 m²) en vente à Saint-Hilaire-du-MaineIDÉALEMENT SITUÉE – MAISON 3 PIÈCES NEUVEEn vente : à quelques kilomètres de Laval, nous vous proposons cette maison de 3 pièces de plain-pied de 73 m² et de 500 m² de terrain, idéalement située dans Saint-Hilaire-du-Maine (53380). Elle comporte deux chambres, une cuisine et une salle de bains.Cette maison est neuve.La maison se situe dans un quartier prisé. On y trouve une école primaire. L’autoroute A81 et les nationales N157 et N162 sont accessibles à moins de 20 km. On trouve une bibliothèque et une épicerie à proximité du logement.Son prix de vente est de 184 700 €.Prenez contact avec notre agence (Claire FERBER : (Numéro supprimé)) pour tout renseignement sur la maison. Maisons France Confort Bonchamp-lès-Laval vous accompagne dans tous vos projets immobiliers et à toutes les étapes de l’achat.
Saint-Hilaire-du-Maine
TERRAIN ET MAISONMaison T6 (110 m²) à vendre à Saint-Hilaire-du-MaineIDÉALEMENT SITUÉE – MAISON 6 PIÈCES NEUVEEn vente à 22 km de Laval, découvrez cette maison de 6 pièces de 110 m² et de 500 m² de terrain idéalement située dans Saint-Hilaire-du-Maine (53380). Elle comporte quatre chambres, une cuisine et deux salles de bains.Cette maison possède 2 niveaux. Elle est neuve.La maison se trouve dans un quartier recherché. On y trouve une école primaire. L’autoroute A81 et les nationales N157 et N162 sont accessibles à moins de 20 km. Il y a une bibliothèque et une épicerie à quelques minutes.Son prix de vente est de 258 700 €.N’hésitez pas à prendre contact avec notre agence (Claire FERBER : (Numéro supprimé)) pour toute information sur la maison, sur les démarches à suivre ou sur les modalités de vente. Faites de vos projets immobiliers une réalité avec Maisons France Confort Bonchamp-lès-Laval.
Saint-Hilaire-du-Maine
TERRAIN ET MAISONMaison de 5 pièces (89 m²) en vente à Saint-Hilaire-du-MaineIDÉALEMENT SITUÉE – MAISON 5 PIÈCES NEUVEÀ deux pas de Laval, votre agence Maisons France Confort Bonchamp-lès-Laval est ravie de vous proposer en vente, idéalement située dans Saint-Hilaire-du-Maine (53380), cette maison de 5 pièces de plain-pied de 89 m².Son intérieur inclut trois chambres, une cuisine et une salle de bains. La maison est neuve.Le terrain de la propriété est de 500 m².Cette maison se situe dans un secteur recherché. Une école primaire y est implantée. L’autoroute A81 et les nationales N157 et N162 sont accessibles à moins de 20 km. On trouve une bibliothèque et une épicerie dans les environs.Son prix de vente est de 219 400 €.N’hésitez pas à prendre contact avec Claire FERBER (tél : (Numéro supprimé)) pour tout renseignement sur la maison, sur les modalités de vente ou sur les démarches à suivre. Maisons France Confort Bonchamp-lès-Laval est là pour vous accompagner dans tous vos projets immobiliers.
L’actualité immobilière à Ernée
27/11/2023
02/11/2023
30/10/2023
20/10/2023
16/10/2023
16/10/2023