Images
Description
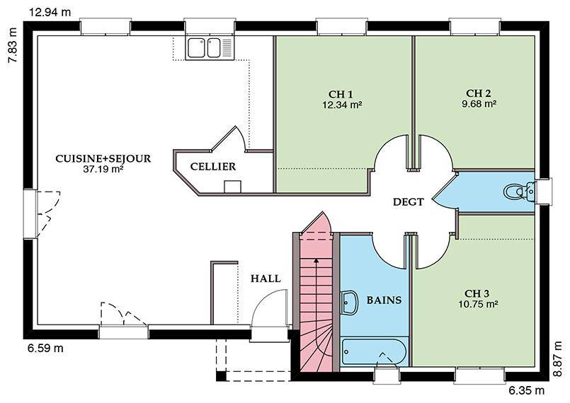
Nous vous proposons cette maison neuve, baptisée ""Perrière"", un modèle de construction qui allie élégance et performance énergétique. Avec une surface habitable de 108 m², cette demeure est conçue pour offrir confort et bien-être à ses occupants. Elle se compose de 4 chambres spacieuses et lumineuses, réparties dans un agencement de 4 pièces pensé pour optimiser l'espace et la fonctionnalité.
La maison Perrière se distingue par son architecture moderne, disponible en versions à 2 ou 4 pans, permettant ainsi de s'adapter à vos préférences esthétiques tout en garantissant une intégration harmonieuse dans son environnement. Chaque détail a été soigneusement étudié pour offrir un cadre de vie exceptionnel, depuis la conception des espaces de vie jusqu'au choix des matériaux de construction de haute qualité.
Ce qui rend la maison Perrière particulièrement attractive, c'est son engagement envers la durabilité et l'efficacité énergétique. Conforme à la réglementation environnementale RE2020, cette maison neuve est classée basse consommation. Elle est équipée de technologies avancées en matière d'isolation, de chauffage et de ventilation, garantissant ainsi des économies d'énergie significatives tout au long de l'année. Vivre dans la maison Perrière, c'est faire le choix d'un habitat respectueux de l'environnement, tout en bénéficiant d'un confort inégalé et de coûts d'exploitation réduits.
La maison Perrière représente l'opportunité idéale pour les familles à la recherche d'un foyer moderne, spacieux et éco-responsable. Elle offre non seulement un cadre de vie exceptionnel, mais aussi la tranquillité d'esprit grâce à sa construction conforme aux normes les plus exigeantes en matière d'efficacité énergétique et de durabilité.
N'attendez plus pour découvrir la maison Perrière, le choix parfait pour votre projet immobilier, alliant esthétique, confort et responsabilité environnementale.
Logement susceptibles de vous intéresser
Nous vous proposons de découvrir aussi cette sélection de logements situés à moins de 10km de Guérigny et qui seraient susceptibles de vous intéresser.
Poiseux
TERRAINDécouvrez ce magnifique terrain de 5390 m² situé à Poiseux, dans le département de la Nièvre, en Bourgogne-Franche-Comté. Ensoleillé et arboré, ce terrain bénéficie d’une vue dégagée qui offre un cadre champêtre idéal pour concrétiser votre projet de construction de maison. Avec une situation privilégiée, ce bien immobilier représente une opportunité rare d’ériger votre havre de paix dans un environnement naturel et serein. Poiseux est une charmante commune qui allie tranquillité et commodités. À proximité, vous trouverez divers services pratiques tout en profitant de la beauté des paysages environnants. La région est également riche en attractions locales, offrant des possibilités d’activités de plein air et de détente. Que vous soyez passionné par la nature ou à la recherche d’un cadre de vie paisible, Poiseux est l’endroit parfait pour réaliser votre rêve immobilier. Ne manquez pas cette occasion unique d’investir dans un terrain d’exception qui saura accueillir votre futur projet de maison ! À noter qu’en tant que constructeur, nous ne sommes pas mandatés pour réaliser la vente de ce terrain.
Poiseux
TERRAIN ET MAISONNous vous proposons cette maison neuve, baptisée « »Aubetière » », un modèle d’habitation qui allie élégance et performance énergétique, conforme aux exigences de la norme RE2020. Avec une surface habitable de 131 m², cette maison est conçue pour offrir confort et bien-être à ses occupants. L’Aubetière se distingue par son architecture moderne, disponible en versions à 2 ou 4 pans, permettant ainsi de s’adapter à vos préférences esthétiques et aux spécificités de votre terrain. Cette maison basse consommation est pensée pour minimiser son impact environnemental tout en garantissant des économies d’énergie significatives sur le long terme. Le logement se compose de 4 chambres spacieuses, promettant intimité et confort pour chaque membre de la famille. Les 4 pièces de la maison sont réparties de manière à optimiser les espaces de vie, offrant une circulation fluide et agréable entre les différentes zones de la maison. L’Aubetière est conçue selon les standards de la RE2020, la réglementation environnementale de 2020, qui vise à réduire les consommations énergétiques des bâtiments neufs et à améliorer leur performance environnementale. Cette maison neuve bénéficie donc des dernières innovations en matière d’isolation, de chauffage, et de production d’énergie renouvelable, assurant un confort optimal en toutes saisons tout en réduisant l’empreinte écologique. En choisissant l’Aubetière, vous optez pour une maison à la pointe de la technologie, conçue pour répondre aux défis de demain. Son design soigné et ses performances énergétiques en font un lieu de vie idéal pour ceux qui cherchent à allier qualité de vie et respect de l’environnement. N’attendez plus pour faire de l’Aubetière le foyer de vos rêves, un espace où bien-être rime avec durabilité.
Parigny-les-Vaux
TERRAINNous vous proposons de découvrir ce terrain exceptionnel de 1 500 m², niché au cœur de Parigny-les-Vaux, un havre de paix en Bourgogne-Franche-Comté. Non viabilisé, ce terrain offre un potentiel inégalé pour la réalisation de votre projet de construction de maison. Évoluez dans un cadre champêtre, arboré et au calme, sans vis-à-vis, vous permettant de construire votre rêve en toute sérénité. Ne manquez pas cette opportunité de saisir le dernier lot disponible dans ce quartier prisé, avec un Plan Local d’Urbanisme (PLU) non contraignant, vous assurant ainsi une grande liberté dans la conception de votre futur habitat. Idéalement situé dans la charmante commune de Parigny-les-Vaux, dans le département de la Nièvre, vous profiterez de la proximité des écoles et de l’arrêt de bus, garantissant un accès facile aux commodités locales. La ville se distingue par sa qualité de vie, conviviale et paisible, entourée de paysages naturels à couper le souffle, propices à la randonnée et aux activités en plein air. Vous serez également à proximité de nombreuses attractions locales qui ajouteront une touche d’animation à votre quotidien. Ce terrain est l’opportunité rêvée pour embrasser un mode de vie harmonieux, alliant tranquillité et accessibilité. N’attendez plus pour envisager cette magnifique opportunité d’achat qui vous ouvre les portes d’un nouvel art de vivre. Ce terrain est prêt à accueillir vos idées, votre projet et votre avenir. À noter qu’en tant que constructeur, nous ne sommes pas mandatés pour réaliser la vente de ce terrain.
Parigny-les-Vaux
TERRAIN ET MAISONDécouvrez la Prunière, une maison neuve de 87,5 m² avec garage intégré, qui marie style moderne et confort au quotidien. Disponible en toit 2 ou 4 pans, elle séduit par son architecture élégante et son agencement fonctionnel, idéal pour un couple ou une jeune famille.L’intérieur se compose de 3 chambres lumineuses, d’un espace de vie ouvert et convivial, et d’un garage accolé offrant un rangement pratique et un accès direct à la maison. Chaque espace a été pensé pour offrir volume, clarté et bien-être.Conforme à la réglementation RE2020, la Prunière bénéficie d’une isolation performante, d’une consommation énergétique réduite et d’un confort thermique optimal tout au long de l’année.La Prunière 87,5 m² + garage, c’est le choix d’une maison moderne, économe et durable, pensée pour un mode de vie simple, serein et tourné vers l’avenir.
Saint-Aubin-les-Forges
TERRAINÀ la recherche d’un terrain idéal pour réaliser le projet de vos rêves ? Nous vous présentons ce superbe terrain de 1560 m², situé à Saint-Aubin-les-Forges dans la belle région de la Nièvre, en Bourgogne-Franche-Comté. Ce terrain non viabilisé bénéficie d’une vue dégagée et sans vis-à-vis, idéal pour construire votre future maison dans un environnement arboré et apaisant. Sa situation géographique, en plein cadre champêtre, offre un ensoleillement optimal, vous promettant ainsi un cadre de vie agréable et calme. Saint-Aubin-les-Forges est une ville charmante, où la tranquillité se marie parfaitement avec les commodités de la vie moderne. À proximité, vous pourrez profiter des attractions locales, notamment des paysages pittoresques et des activités de plein air qui séduiront les amoureux de la nature. La ville offre également un accès facile aux services essentiels, assurant ainsi un quotidien agréable et pratique pour ses habitants. Faites le choix d’une location de vie idéale où les opportunités de détente et d’évasion ne manquent pas. Ce terrain représente une véritable opportunité d’achat pour ceux souhaitant construire dans un cadre enchanteur. N’attendez plus pour envisager ce projet unique qui pourrait devenir votre havre de paix. À noter qu’en tant que constructeur, nous ne sommes pas mandatés pour réaliser la vente de ce terrain.
Saint-Aubin-les-Forges
TERRAIN ET MAISONMaison Aubetière – 109 m² de confort moderneDécouvrez l’Aubetière, une maison neuve de 109 m² alliant élégance et performance énergétique. Conforme à la norme RE2020, elle offre un confort durable et une consommation maîtrisée.Proposée en toit 2 pans ou 4 pans, l’Aubetière s’adapte à tous les styles et s’intègre harmonieusement à son environnement. À l’intérieur, vous profitez d’un espace lumineux avec 4 chambres et un grand séjour ouvert, pensé pour la vie de famille.Grâce à son isolation performante et ses matériaux écoresponsables, cette maison basse consommation conjugue style, économie et durabilité. L’Aubetière, c’est le choix d’une maison moderne où bien-être et éco-responsabilité vont de pair.
Coulanges-lès-Nevers
TERRAINPatrick et Florent LOISY vous proposent à la vente un terrain à bâtir de 1240 m2 à Coulanges-lès-Nevers.Secteur recherché, terrain viabilisé avec étude de sol, situé à proximité immédiate des commerces, aux portes de Nevers.Prix : 53 000 euros honoraires à la charge du vendeur.Pour visiter et vous accompagner dans votre projet, contactez PATRICK LOISY FLORENT LOISY, au (Numéro supprimé) ou, par courriel à (Email supprimé).Selon l’article L.561.5 du Code Monétaire et Financier, pour l’organisation de la visite, la présentation d’une pièce d’identité vous sera demandée.Cette présente annonce a été rédigée sous la responsabilité éditoriale de PATRICK LOISY FLORENT LOISY agissant sous le statut d’agent commercial immatriculé au RSAC nevers 503 140 766 auprès de SAS PROPRIETES PRIVEES, au capital de 44 920 euros, ZAC LE CHÊNE FERRÉ – 44 ALLÉE DES CINQ CONTINENTS 44120 VERTOU; SIRET 487 624 777 00040, RCS Nantes. Carte Professionnelle Transactions sur immeubles et fonds de commerce (T) et Gestion immobilière (G) n°CPI 4401 2016 000 010 388 délivrée par la CCI Nantes – Saint Nazaire. Compte séquestre n(Numéro supprimé)67 BPA SAINT-SEBASTIEN-SUR-LOIRE (44230). Garantie GALIAN-SMABTP – 89 rue de la Boétie, 75008 Paris – n°28137 J pour 2 000 000 euros pour T et 120 000 euros pour G. Assurance responsabilité civile professionnelle par GALIAN-SMABTP n° de police 28137.JMandat réf : 424106 – Le professionnel garantit et sécurise votre projet immobilier. PATRICK LOISY FLORENT LOISY (EI) Agent Commercial – Numéro RSAC : nevers 503 140 766 – .
Coulanges-lès-Nevers
TERRAINPatrick LOISY vous propose à la vente un terrain à bâtir de 580 m2, entièrement viabilisé et borné au coeur d’un nouveau lotissement de 20 lots à Coulanges-lès-Nevers.A proximité immédiate des écoles et commerces ainsi que de toutes les commodités de cette commune « Le Champ Cotaire » vous permettra de réaliser votre projet de construction dans un cadre de vie idyllique.Prix : 44 000 euros honoraires à la charge du vendeur.Pour visiter et vous accompagner dans votre projet, contactez PATRICK LOISY FLORENT LOISY, au (Numéro supprimé) ou, par courriel à (Email supprimé).Selon l’article L.561.5 du Code Monétaire et Financier, pour l’organisation de la visite, la présentation d’une pièce d’identité vous sera demandée.Cette présente annonce a été rédigée sous la responsabilité éditoriale de PATRICK LOISY FLORENT LOISY agissant sous le statut d’agent commercial immatriculé au RSAC nevers 503 140 766 auprès de SAS PROPRIETES PRIVEES, au capital de 44 920 euros, ZAC LE CHÊNE FERRÉ – 44 ALLÉE DES CINQ CONTINENTS 44120 VERTOU; SIRET 487 624 777 00040, RCS Nantes. Carte Professionnelle Transactions sur immeubles et fonds de commerce (T) et Gestion immobilière (G) n°CPI 4401 2016 000 010 388 délivrée par la CCI Nantes – Saint Nazaire. Compte séquestre n(Numéro supprimé)67 BPA SAINT-SEBASTIEN-SUR-LOIRE (44230). Garantie GALIAN-SMABTP – 89 rue de la Boétie, 75008 Paris – n°28137 J pour 2 000 000 euros pour T et 120 000 euros pour G. Assurance responsabilité civile professionnelle par GALIAN-SMABTP n° de police 28137.JMandat réf : 424108 – Le professionnel garantit et sécurise votre projet immobilier. PATRICK LOISY FLORENT LOISY (EI) Agent Commercial – Numéro RSAC : nevers 503 140 766 – .
Coulanges-lès-Nevers
TERRAINPatrick et Florent LOISY vous proposent à la vente un terrain constructible de 826 m2 à Coulanges-lès-Nevers.Secteur recherché, terrain viabilisé avec étude de sol, situé à proximité immédiate des commerces, aux portes de Nevers.Prix : 43 000 euros honoraires à la charge du vendeur.Pour visiter et vous accompagner dans votre projet, contactez PATRICK LOISY FLORENT LOISY, au (Numéro supprimé) ou, par courriel à (Email supprimé).Selon l’article L.561.5 du Code Monétaire et Financier, pour l’organisation de la visite, la présentation d’une pièce d’identité vous sera demandée.Cette présente annonce a été rédigée sous la responsabilité éditoriale de PATRICK LOISY FLORENT LOISY agissant sous le statut d’agent commercial immatriculé au RSAC nevers 503 140 766 auprès de SAS PROPRIETES PRIVEES, au capital de 44 920 euros, ZAC LE CHÊNE FERRÉ – 44 ALLÉE DES CINQ CONTINENTS 44120 VERTOU; SIRET 487 624 777 00040, RCS Nantes. Carte Professionnelle Transactions sur immeubles et fonds de commerce (T) et Gestion immobilière (G) n°CPI 4401 2016 000 010 388 délivrée par la CCI Nantes – Saint Nazaire. Compte séquestre n(Numéro supprimé)67 BPA SAINT-SEBASTIEN-SUR-LOIRE (44230). Garantie GALIAN-SMABTP – 89 rue de la Boétie, 75008 Paris – n°28137 J pour 2 000 000 euros pour T et 120 000 euros pour G. Assurance responsabilité civile professionnelle par GALIAN-SMABTP n° de police 28137.JMandat réf : 424107 – Le professionnel garantit et sécurise votre projet immobilier. PATRICK LOISY FLORENT LOISY (EI) Agent Commercial – Numéro RSAC : nevers 503 140 766 – .
L’actualité immobilière à Guérigny
27/11/2023
02/11/2023
30/10/2023
20/10/2023
16/10/2023
16/10/2023