Images
Description
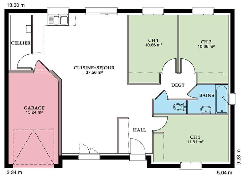
Nous vous proposons cette maison neuve, baptisée ""Prunière"", un modèle de construction alliant élégance et fonctionnalité, conçu pour répondre aux attentes des familles modernes. Avec une surface habitable de 99 m², cette maison est parfaitement dimensionnée pour offrir confort et bien-être à ses occupants.
La ""Prunière"" se distingue par son architecture soignée, disponible en versions à 2 ou 4 pans, selon vos préférences, intégrant harmonieusement un garage. Cette caractéristique non seulement ajoute à l'esthétique de la maison mais assure également une fonctionnalité accrue, offrant un espace supplémentaire pour votre véhicule ou pour du rangement.
L'intérieur de la maison est judicieusement agencé pour maximiser l'espace et la lumière naturelle. Elle comprend quatre chambres spacieuses, promettant un espace privé confortable pour chaque membre de la famille. Les quatre pièces de la maison sont conçues pour faciliter une vie familiale harmonieuse, avec des espaces de vie communs accueillants et bien pensés.
Au-delà de son design attrayant, la ""Prunière"" est une maison basse consommation, conçue dans le strict respect de la réglementation environnementale RE2020. Cette norme garantit une efficacité énergétique optimale et une réduction significative de votre empreinte carbone. Vivre dans la ""Prunière"", c'est choisir un habitat respectueux de l'environnement, tout en bénéficiant d'un confort inégalé et de réductions substantielles sur vos factures d'énergie.
Cette maison neuve représente une opportunité exceptionnelle de posséder une demeure moderne, durable et économe en énergie. La ""Prunière"" est la promesse d'un foyer chaleureux, où chaque détail a été pensé pour votre bien-être et celui de votre famille. Ne manquez pas cette chance de construire la maison de vos rêves, un lieu où de nouveaux souvenirs seront créés et chéris pour les années à venir.
Logement susceptibles de vous intéresser
Nous vous proposons de découvrir aussi cette sélection de logements situés à moins de 10km de Saint-Éloi et qui seraient susceptibles de vous intéresser.
Saint-Éloi
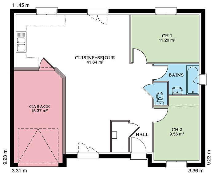
TERRAIN ET MAISONDécouvrez la Prunière, une maison neuve de 87,5 m² avec garage intégré, qui marie style moderne et confort au quotidien. Disponible en toit 2 ou 4 pans, elle séduit par son architecture élégante et son agencement fonctionnel, idéal pour un couple ou une jeune famille.L’intérieur se compose de 3 chambres lumineuses, d’un espace de vie ouvert et convivial, et d’un garage accolé offrant un rangement pratique et un accès direct à la maison. Chaque espace a été pensé pour offrir volume, clarté et bien-être.Conforme à la réglementation RE2020, la Prunière bénéficie d’une isolation performante, d’une consommation énergétique réduite et d’un confort thermique optimal tout au long de l’année.La Prunière 87,5 m² + garage, c’est le choix d’une maison moderne, économe et durable, pensée pour un mode de vie simple, serein et tourné vers l’avenir.
Saint-Éloi
TERRAINNous vous proposons à la vente un terrain exceptionnel de 923 m², idéalement situé au sein d’un quartier privilégié de Saint-Éloi, dans le département de la Nièvre, en Bourgogne-Franche-Comté. Ce terrain viabilisé vous offre une opportunité parfaite pour un projet de construction de maison au sein d’un environnement paisible et arboré. Avec un terrain plat, ce cadre champêtre vous permet de concevoir votre future habitation selon vos goûts, tout en bénéficiant d’un PLU non contraignant. Saint-Éloi est une charmante ville qui offre un cadre de vie agréable, alliant tranquillité et proximité des commodités essentielles. Vous trouverez en effet toutes les infrastructures nécessaires à votre quotidien : commerces, écoles, collèges et lycées à proximité, ainsi qu’un accès facile aux transports en commun et aux axes routiers importants. Ce secteur dynamique vous séduira par sa qualité de vie, ses espaces verts et son ambiance conviviale, tout en étant proche des attractions locales qui font le charme de la région bourguignonne. Ne manquez pas cette opportunité unique d’investir dans un terrain avec un potentiel exceptionnel. Pour plus d’informations, n’hésitez pas à nous contacter. À noter qu’en tant que constructeur, nous ne sommes pas mandatés pour réaliser la vente de ce terrain.
Saint-Éloi
TERRAIN ET MAISONNous vous proposons cette maison neuve, baptisée « »Prunière » », un modèle de construction alliant élégance et fonctionnalité, conçu pour répondre aux attentes des familles modernes. Avec une surface habitable de 99 m², cette maison est parfaitement dimensionnée pour offrir confort et bien-être à ses occupants. La « »Prunière » » se distingue par son architecture soignée, disponible en versions à 2 ou 4 pans, selon vos préférences, intégrant harmonieusement un garage. Cette caractéristique non seulement ajoute à l’esthétique de la maison mais assure également une fonctionnalité accrue, offrant un espace supplémentaire pour votre véhicule ou pour du rangement. L’intérieur de la maison est judicieusement agencé pour maximiser l’espace et la lumière naturelle. Elle comprend quatre chambres spacieuses, promettant un espace privé confortable pour chaque membre de la famille. Les quatre pièces de la maison sont conçues pour faciliter une vie familiale harmonieuse, avec des espaces de vie communs accueillants et bien pensés. Au-delà de son design attrayant, la « »Prunière » » est une maison basse consommation, conçue dans le strict respect de la réglementation environnementale RE2020. Cette norme garantit une efficacité énergétique optimale et une réduction significative de votre empreinte carbone. Vivre dans la « »Prunière » », c’est choisir un habitat respectueux de l’environnement, tout en bénéficiant d’un confort inégalé et de réductions substantielles sur vos factures d’énergie. Cette maison neuve représente une opportunité exceptionnelle de posséder une demeure moderne, durable et économe en énergie. La « »Prunière » » est la promesse d’un foyer chaleureux, où chaque détail a été pensé pour votre bien-être et celui de votre famille. Ne manquez pas cette chance de construire la maison de vos rêves, un lieu où de nouveaux souvenirs seront créés et chéris pour les années à venir.
Saint-Éloi
TERRAINDécouvrez ce terrain d’exception de 923 m², idéalement situé à Saint-Éloi, dans le département de la Nièvre, en Bourgogne-Franche-Comté. C’est l’emplacement parfait pour réaliser votre projet de construction de maison dans un cadre verdoyant et serein. Ce terrain est entièrement viabilisé et offre une surface plate, garantissant une facilité de construction. Ne manquez pas l’opportunité de faire de cet espace arboré votre futur chez-vous dans un quartier privilégié, en toute tranquillité. Saint-Éloi se distingue par son atmosphère paisible et sécurisée, tout en étant proche de toutes les commodités nécessaires à la vie quotidienne. Vous bénéficierez d’écoles à proximité, d’arrêts de bus pour un accès facile aux transports en commun, ainsi que de la proximité d’un axe routier important, facilitant vos déplacements. Avec un cadre champêtre et arboré, ce terrain vous promet une qualité de vie appréciable, ainsi que des prix attractifs pour le dernier lot disponible. Imaginez donc votre futur habitat, harmonieux et au calme, dans cette belle région riche en nature. Ce terrain représente une opportunité d’achat unique pour tous les acquéreurs désireux de s’installer dans un environnement agréable et pratique. N’attendez plus pour envisager votre futur projet ! À noter qu’en tant que constructeur, nous ne sommes pas mandatés pour réaliser la vente de ce terrain.
Coulanges-lès-Nevers
TERRAINPatrick et Florent LOISY vous proposent à la vente un terrain à bâtir de 1240 m2 à Coulanges-lès-Nevers.Secteur recherché, terrain viabilisé avec étude de sol, situé à proximité immédiate des commerces, aux portes de Nevers.Prix : 53 000 euros honoraires à la charge du vendeur.Pour visiter et vous accompagner dans votre projet, contactez PATRICK LOISY FLORENT LOISY, au (Numéro supprimé) ou, par courriel à (Email supprimé).Selon l’article L.561.5 du Code Monétaire et Financier, pour l’organisation de la visite, la présentation d’une pièce d’identité vous sera demandée.Cette présente annonce a été rédigée sous la responsabilité éditoriale de PATRICK LOISY FLORENT LOISY agissant sous le statut d’agent commercial immatriculé au RSAC nevers 503 140 766 auprès de SAS PROPRIETES PRIVEES, au capital de 44 920 euros, ZAC LE CHÊNE FERRÉ – 44 ALLÉE DES CINQ CONTINENTS 44120 VERTOU; SIRET 487 624 777 00040, RCS Nantes. Carte Professionnelle Transactions sur immeubles et fonds de commerce (T) et Gestion immobilière (G) n°CPI 4401 2016 000 010 388 délivrée par la CCI Nantes – Saint Nazaire. Compte séquestre n(Numéro supprimé)67 BPA SAINT-SEBASTIEN-SUR-LOIRE (44230). Garantie GALIAN-SMABTP – 89 rue de la Boétie, 75008 Paris – n°28137 J pour 2 000 000 euros pour T et 120 000 euros pour G. Assurance responsabilité civile professionnelle par GALIAN-SMABTP n° de police 28137.JMandat réf : 424106 – Le professionnel garantit et sécurise votre projet immobilier. PATRICK LOISY FLORENT LOISY (EI) Agent Commercial – Numéro RSAC : nevers 503 140 766 – .
Coulanges-lès-Nevers
TERRAINPatrick LOISY vous propose à la vente un terrain à bâtir de 580 m2, entièrement viabilisé et borné au coeur d’un nouveau lotissement de 20 lots à Coulanges-lès-Nevers.A proximité immédiate des écoles et commerces ainsi que de toutes les commodités de cette commune « Le Champ Cotaire » vous permettra de réaliser votre projet de construction dans un cadre de vie idyllique.Prix : 44 000 euros honoraires à la charge du vendeur.Pour visiter et vous accompagner dans votre projet, contactez PATRICK LOISY FLORENT LOISY, au (Numéro supprimé) ou, par courriel à (Email supprimé).Selon l’article L.561.5 du Code Monétaire et Financier, pour l’organisation de la visite, la présentation d’une pièce d’identité vous sera demandée.Cette présente annonce a été rédigée sous la responsabilité éditoriale de PATRICK LOISY FLORENT LOISY agissant sous le statut d’agent commercial immatriculé au RSAC nevers 503 140 766 auprès de SAS PROPRIETES PRIVEES, au capital de 44 920 euros, ZAC LE CHÊNE FERRÉ – 44 ALLÉE DES CINQ CONTINENTS 44120 VERTOU; SIRET 487 624 777 00040, RCS Nantes. Carte Professionnelle Transactions sur immeubles et fonds de commerce (T) et Gestion immobilière (G) n°CPI 4401 2016 000 010 388 délivrée par la CCI Nantes – Saint Nazaire. Compte séquestre n(Numéro supprimé)67 BPA SAINT-SEBASTIEN-SUR-LOIRE (44230). Garantie GALIAN-SMABTP – 89 rue de la Boétie, 75008 Paris – n°28137 J pour 2 000 000 euros pour T et 120 000 euros pour G. Assurance responsabilité civile professionnelle par GALIAN-SMABTP n° de police 28137.JMandat réf : 424108 – Le professionnel garantit et sécurise votre projet immobilier. PATRICK LOISY FLORENT LOISY (EI) Agent Commercial – Numéro RSAC : nevers 503 140 766 – .
Coulanges-lès-Nevers
TERRAINPatrick et Florent LOISY vous proposent à la vente un terrain constructible de 826 m2 à Coulanges-lès-Nevers.Secteur recherché, terrain viabilisé avec étude de sol, situé à proximité immédiate des commerces, aux portes de Nevers.Prix : 43 000 euros honoraires à la charge du vendeur.Pour visiter et vous accompagner dans votre projet, contactez PATRICK LOISY FLORENT LOISY, au (Numéro supprimé) ou, par courriel à (Email supprimé).Selon l’article L.561.5 du Code Monétaire et Financier, pour l’organisation de la visite, la présentation d’une pièce d’identité vous sera demandée.Cette présente annonce a été rédigée sous la responsabilité éditoriale de PATRICK LOISY FLORENT LOISY agissant sous le statut d’agent commercial immatriculé au RSAC nevers 503 140 766 auprès de SAS PROPRIETES PRIVEES, au capital de 44 920 euros, ZAC LE CHÊNE FERRÉ – 44 ALLÉE DES CINQ CONTINENTS 44120 VERTOU; SIRET 487 624 777 00040, RCS Nantes. Carte Professionnelle Transactions sur immeubles et fonds de commerce (T) et Gestion immobilière (G) n°CPI 4401 2016 000 010 388 délivrée par la CCI Nantes – Saint Nazaire. Compte séquestre n(Numéro supprimé)67 BPA SAINT-SEBASTIEN-SUR-LOIRE (44230). Garantie GALIAN-SMABTP – 89 rue de la Boétie, 75008 Paris – n°28137 J pour 2 000 000 euros pour T et 120 000 euros pour G. Assurance responsabilité civile professionnelle par GALIAN-SMABTP n° de police 28137.JMandat réf : 424107 – Le professionnel garantit et sécurise votre projet immobilier. PATRICK LOISY FLORENT LOISY (EI) Agent Commercial – Numéro RSAC : nevers 503 140 766 – .
Nevers
TERRAINVenez découvrir ce grand terrain constructible de 7646 m² à proximité de l’hôpital de Nevers et de la zone commerciale des grands champs.Son emplacement de choix et son zonage permet de nombreux projets tels que de la division pour des constructions d’habitations, de commerces, d’établissements de santé par exemple.Tous les réseaux sont à proximité et plusieurs accès sont possibles.N’hésitez pas à me contacter pour plus d’informations.Prix : 192000 euros honoraires charge vendeurPour visiter et vous accompagner dans votre projet, contactez Jerome GROBARCIK, au (Numéro supprimé) ou, par courriel à (Email supprimé).Selon l’article L.561.5 du Code Monétaire et Financier, pour l’organisation de la visite, la présentation d’une pièce d’identité vous sera demandée.Cette présente annonce a été rédigée sous la responsabilité éditoriale de Jerome GROBARCIK agissant sous le statut d’agent commercial immatriculé au RSAC nevers 904548880 auprès de SAS PROPRIETES PRIVEES, au capital de 44 920 euros, ZAC LE CHÊNE FERRÉ – 44 ALLÉE DES CINQ CONTINENTS 44120 VERTOU; SIRET 487 624 777 00040, RCS Nantes. Carte Professionnelle Transactions sur immeubles et fonds de commerce (T) et Gestion immobilière (G) n°CPI 4401 2016 000 010 388 délivrée par la CCI Nantes – Saint Nazaire. Compte séquestre n(Numéro supprimé)67 BPA SAINT-SEBASTIEN-SUR-LOIRE (44230). Garantie GALIAN-SMABTP – 89 rue de la Boétie, 75008 Paris – n°28137 J pour 2 000 000 euros pour T et 120 000 euros pour G. Assurance responsabilité civile professionnelle par GALIAN-SMABTP n° de police 28137.JMandat réf : 422381 – Le professionnel garantit et sécurise votre projet immobilier. Jerome GROBARCIK (EI) Agent Commercial – Numéro RSAC : nevers 904548880 – .Les informations sur les risques auxquels ce bien est exposé sont disponibles sur le site Géorisques : www. georisques. gouv. fr
Saint-Éloi
TERRAINNous vous présentons un terrain à vendre d’une surface généreuse de 1074 m², idéalement situé à Saint-Éloi, dans le département de la Nièvre en Bourgogne-Franche-Comté. Ce terrain viabilisé offre une multitude de possibilités pour réaliser votre projet de construction de maison, que ce soit pour une maison familiale ou un projet plus ambitieux. Profitez d’un cadre calme et sécurisé, parfait pour les amoureux de la nature, tout en étant proche des commodités nécessaires au quotidien. Saint-Éloi se situe dans une région riche en attraits, alliant tranquillité et accessibilité. À proximité, vous trouverez des écoles pour vos enfants, des transports en commun facilitant vos déplacements, ainsi qu’un accès rapide à un axe routier important. Les espaces verts et le cadre champêtre qui entourent le terrain vous offriront un cadre de vie agréable. De plus, des commerces et services de proximité garantiront votre confort au quotidien. C’est un endroit rêvé pour bâtir votre future maison ! Ne manquez pas cette opportunité unique d’acquérir un terrain au potentiel exceptionnel. Prenez contact dès maintenant pour explorer les possibilités qu’offre cette propriété ! À noter qu’en tant que constructeur, nous ne sommes pas mandatés pour réaliser la vente de ce terrain.
L’actualité immobilière à Saint-Éloi
27/11/2023
02/11/2023
30/10/2023
20/10/2023
16/10/2023
16/10/2023