Maison à construire à Beaufay (72110)
Images
Description
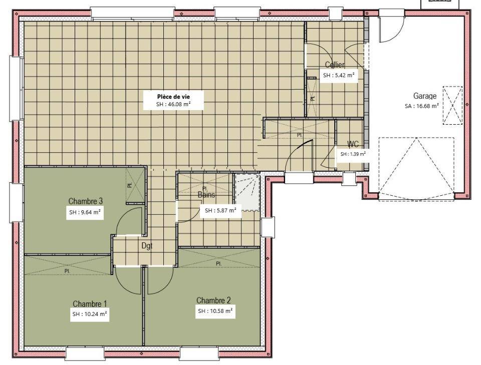
Maison T4 (90 m²) à vendre à Beaufay
IDÉALEMENT SITUÉE - MAISON 4 PIÈCES NEUVE
En vente : à deux pas du Mans, nous sommes ravis de vous présenter, idéalement située dans Beaufay (72110), cette maison de 4 pièces de plain-pied de 90 m² et de 1 010 m² de terrain.
Elle inclut trois chambres, une cuisine et une salle de bains. La maison est neuve.
Cette propriété est située dans un secteur attractif. Une école primaire y est implantée. Les autoroutes A11 et A28 sont accessibles à moins de 16 km. Il y a un tennis, une boulangerie et une épicerie à quelques minutes à peine.
Elle est à vendre pour la somme de 239 000 €.
N'hésitez pas à prendre contact avec notre agence (Luc LIVET : (Numéro supprimé)) pour obtenir de plus amples renseignements sur la maison, sur les démarches à suivre ou sur les modalités de vente. Maine Construction Le Mans est là pour vous accompagner à toutes les étapes de l'achat.
Logement susceptibles de vous intéresser
Nous vous proposons de découvrir aussi cette sélection de logements situés à moins de 10km de Beaufay et qui seraient susceptibles de vous intéresser.
Beaufay
TERRAINBeaufay : terrain de 1 010 m² en venteIDÉALEMENT SITUÉ – PROCHE DU MANSÀ Beaufay (72110) en vente à quelques kilomètres du Mans, imaginez la maison de vos rêves sur ce terrain de 1 010 m². Il donne sur un espace vert et bénéficie d’une exposition ouest. Il est situé dans un secteur convoité. Une école primaire y est implantée. Les autoroutes A11 et A28 sont accessibles à moins de 16 km. Il y a un tennis, une boulangerie et une épicerie à proximité du bien.Son prix de vente est de 51 500 €. N’hésitez pas à prendre contact avec notre agence (LIVET Luc : (Numéro supprimé)) pour tout renseignement sur ce terrain. Maine Construction Le Mans vous accompagne à toutes les étapes de votre projet et dans toutes vos démarches.
Beaufay
TERRAIN ET MAISONBeaufay : maison F5 (92 m²) en vente (à construire)IDÉALEMENT SITUÉE – MAISON 5 PIÈCES NEUVE COMBLES AménageablesÀ vendre : à quelques kilomètres du Mans, notre agence Maine Construction Le Mans est ravie de vous proposer cette maison de 5 pièces de plain-pied de 92 m², idéalement située dans Beaufay (72110). Conçue de plain-pied, elle comporte trois chambres, une cuisine et une salle de bains.Le terrain de cette maison s’étend sur 1 010 m².Cette maison est neuve.La maison est située dans un quartier convoité. On y trouve une école primaire. Les autoroutes A11 et A28 sont accessibles à moins de 16 km. On trouve un tennis, une boulangerie et une épicerie à quelques minutes du bien.Son prix de vente est de 234 000 €.Prenez contact avec Luc LIVET (tél : (Numéro supprimé)) pour obtenir de plus amples renseignements sur la maison. Maine Construction Le Mans vous accompagne à toutes les étapes de votre projet et dans tous vos projets immobiliers.
Beaufay
TERRAIN ET MAISONBeaufay : maison F4 (90 m²) en venteIDÉALEMENT SITUÉE – MAISON 4 PIÈCES NEUVEEn vente : à deux pas du Mans, nous sommes ravis de vous présenter cette maison de 4 pièces de plain-pied de 90 m² et de 1 010 m² de terrain, idéalement située dans Beaufay (72110). Conçue de plain-pied, elle dispose de trois chambres, d’une cuisine et d’une salle de bains.La maison est neuve.Cette propriété se situe dans un quartier prisé. On y trouve une école primaire. Les autoroutes A11 et A28 sont accessibles à moins de 16 km. On trouve un tennis, une boulangerie et une épicerie à proximité du bien.Elle est à vendre pour la somme de 224 000 €.Prenez contact avec Luc LIVET ((Numéro supprimé)) Maine Construction pour toute information sur la maison ou sur les démarches à suivre.
Beaufay
TERRAIN ET MAISONBeaufay : maison de 6 pièces (108 m²) à vendreIDÉALEMENT SITUÉE – MAISON 6 PIÈCES NEUVEEn vente : à 21 km du Mans, idéalement située dans Beaufay (72110), ayez le coup de coeur pour cette maison de 6 pièces de 108 m². Elle est composée de quatre chambres, d’une cuisine et de deux salles de bains.Le terrain de cette maison s’étend sur 1 010 m².Il s’agit d’une maison de 2 niveaux. Elle est neuve.Le bien se situe dans un secteur convoité. Une école primaire y est implantée. Les autoroutes A11 et A28 sont accessibles à moins de 16 km. Il y a un tennis, une boulangerie et une épicerie à proximité.Son prix de vente est de 269 000 €.Contactez Luc LIVET (tél : (Numéro supprimé)) Maine Construction pour obtenir de plus amples informations sur la maison, sur les démarches à suivre ou sur les modalités de vente.
Beaufay
TERRAIN ET MAISONVENTE : maison F6 (160 m²) à BeaufayIDÉALEMENT SITUÉE – MAISON 6 PIÈCES NEUVEEn vente : localisée à 21 km du Mans, idéalement située dans Beaufay (72110), nous vous présentons cette maison de 6 pièces de plain-pied de 160 m² et de 1 010 m² de terrain.Elle offre quatre chambres, une cuisine et deux salles de bains. La maison est neuve.Cette maison se trouve dans un quartier prisé. Une école primaire y est implantée. Les autoroutes A11 et A28 sont accessibles à moins de 16 km. Il y a un tennis, une boulangerie et une épicerie dans les environs.Elle est à vendre pour la somme de 395 000 €.Contactez notre agence (LIVET Luc : (Numéro supprimé)) Maine Construction pour tout renseignement sur la maison, sur les démarches à suivre ou sur les modalités de vente.
Beaufay
TERRAIN ET MAISONVENTE : maison de 4 pièces (73 m²) à BeaufayIDÉALEMENT SITUÉE – MAISON 4 PIÈCES NEUVEÀ vendre : localisée à deux pas du Mans, idéalement située dans Beaufay (72110), Maine Construction Le Mans vous propose cette maison de 4 pièces de plain-pied de 73 m² et de 1 010 m² de terrain.Son intérieur dispose de trois chambres, d’une cuisine et d’une salle de bains. La maison est neuve.Ce bien se situe dans un quartier convoité. On y trouve une école primaire. Les autoroutes A11 et A28 sont accessibles à moins de 16 km. On trouve un tennis, une boulangerie et une épicerie à proximité.Il est à vendre pour la somme de 199 000 €.N’hésitez pas à prendre contact avec notre agence (Luc LIVET : (Numéro supprimé))Maine Construction pour plus de renseignements sur la maison.
Beaufay
TERRAIN ET MAISONMaison T4 (90 m²) à vendre à BeaufayIDÉALEMENT SITUÉE – MAISON 4 PIÈCES NEUVEEn vente : à deux pas du Mans, nous sommes ravis de vous présenter, idéalement située dans Beaufay (72110), cette maison de 4 pièces de plain-pied de 90 m² et de 1 010 m² de terrain.Elle inclut trois chambres, une cuisine et une salle de bains. La maison est neuve.Cette propriété est située dans un secteur attractif. Une école primaire y est implantée. Les autoroutes A11 et A28 sont accessibles à moins de 16 km. Il y a un tennis, une boulangerie et une épicerie à quelques minutes à peine.Elle est à vendre pour la somme de 239 000 €.N’hésitez pas à prendre contact avec notre agence (Luc LIVET : (Numéro supprimé)) pour obtenir de plus amples renseignements sur la maison, sur les démarches à suivre ou sur les modalités de vente. Maine Construction Le Mans est là pour vous accompagner à toutes les étapes de l’achat.
Joué-l'Abbé
TERRAINTerrain de 826 m² en vente à Joué-l’AbbéIDÉALEMENT SITUÉ – VUE SANS VIS-À-VISÀ Joué-l’Abbé (72380) à vendre à 14 km du Mans, donnez vie à votre résidence principale ou secondaire sur ce terrain de 826 m². Ce terrain, exposé plein sud-ouest, profite d’une vue sans vis-à-vis. Il se situe dans un secteur attractif. Il y a l’École Primaire Publique Jacqueline Duhême à moins de 10 minutes à pied. Côté transports en commun, on trouve quatre gares à moins de 10 minutes en voiture. Les autoroutes A11 et A28 sont accessibles à moins de 10 km. Il y a un tennis à proximité.Ce terrain est à vendre pour la somme de 70 210 €. N’hésitez pas à prendre contact avec notre agence (RODRIGUES MORAIS Elisa : (Numéro supprimé)) pour toute question sur ce terrain.
Joué-l'Abbé
TERRAIN ET MAISONJoué-l’Abbé : maison T5 (90 m²) en venteIDÉALEMENT SITUÉE – MAISON 5 PIÈCES NEUVEEn vente à 14 km du Mans, nous sommes heureux de vous proposer cette maison de 5 pièces de 90 m² et de 826 m² de terrain idéalement située dans Joué-l’Abbé (72380).Cette maison comporte 2 niveaux. Son intérieur inclut trois chambres, une cuisine et une salle de bains. Cette maison est neuve.La maison se situe dans un quartier prisé. L’École Primaire Publique Jacqueline Duhême se trouve à moins de 10 minutes à pied. Côté transports, il y a quatre gares à moins de 10 minutes en voiture. Les autoroutes A11 et A28 sont accessibles à moins de 10 km. On trouve un tennis à proximité du logement.Elle est à vendre pour la somme de 250 000 €.Prenez contact avec notre agence (Elisa RODRIGUES MORAIS : (Numéro supprimé)) pour plus d’informations sur la maison ou sur les démarches à suivre. Maisons France Confort Alençon vous accompagne à toutes les étapes de l’achat et dans tous vos projets immobiliers.
L’actualité immobilière à Beaufay
27/11/2023
02/11/2023
30/10/2023
20/10/2023
16/10/2023
16/10/2023