Maison à construire à Doucelles (72170)
Images
Description
VENTE : maison de 6 pièces (115 m²) à 5 minutes de DOUCELLES
IDÉALEMENT SITUÉE - MAISON 6 PIÈCES NEUVE
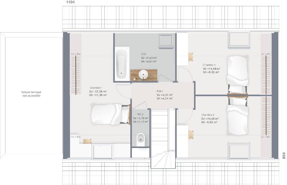
En vente : à 19 km d'Alençon, idéalement située à 5 minutes de DOUCELLES, nous sommes heureux de vous proposer cette maison de 6 pièces de 115 m² et de 879 m² de terrain. Son intérieur compte quatre chambres, une cuisine et deux salles de bains.
Il s'agit d'une maison de 2 niveaux. Elle est neuve.
La maison se situe dans un secteur convoité. Une école primaire y est implantée. Niveau transports, il y a deux gares (Vivoin-Beaumont et La Hutte Coulombiers) à moins de 10 minutes en voiture. On trouve un accès à l'autoroute A28 à 6 km.
Son prix de vente est de 248 000 €.
Contactez Elisa RODRIGUES MORAIS ((Numéro supprimé)) pour toute question sur la propriété ou sur les démarches à suivre.
Logement susceptibles de vous intéresser
Nous vous proposons de découvrir aussi cette sélection de logements situés à moins de 10km de Doucelles et qui seraient susceptibles de vous intéresser.
Vivoin
TERRAINÀ vendre : terrain viabilisé de 398 m² situé sur la commune de Vivoin, un emplacement privilégié au cœur de la Sarthe, dans la dynamique région des Pays de la Loire. Ce terrain représente une opportunité rare pour réaliser votre projet de construction de maison dans un quartier recherché, idéal pour profiter d’une qualité de vie exceptionnelle. Bénéficiant d’une situation idéale, ce terrain se distingue par son dernier emplacement disponible, offrant ainsi une chance unique aux futurs propriétaires. Vivoin, charmante commune du département de la Sarthe, bénéficie d’une localisation centrale à proximité des commodités nécessaires au quotidien. Entre ses écoles, ses commerces de proximité et ses services variés, vous trouverez tout ce dont vous avez besoin à quelques pas de votre futur foyer. De plus, la ville est entourée d’une nature préservée, parfaite pour les amoureux du plein air. Ne manquez pas l’occasion de vivre dans ce cadre de vie serein tout en étant à proximité des atouts de la région. Ce terrain représente une occasion à ne pas laisser passer pour construire votre maison de rêve dans un environnement de qualité. Pour toute information complémentaire ou visite, n’hésitez pas à nous contacter. À noter qu’en tant que constructeur, nous ne sommes pas mandatés pour réaliser la vente de ce terrain.
Vivoin
TERRAIN ET MAISONNous vous proposons cette maison neuve, baptisée « »Neptune » », un modèle de résidence qui allie avec brio fonctionnalité et esthétique, spécialement conçue pour s’intégrer harmonieusement en milieu urbain. Avec une surface habitable de 88 m² répartie sur deux niveaux, cette maison est l’incarnation même du confort moderne pour toute famille à la recherche d’un foyer chaleureux et accueillant.Neptune se distingue par ses combles aménagés, offrant ainsi un espace supplémentaire qui peut être transformé en bureau, salle de jeux, ou encore en une chambre d’amis, selon vos besoins et envies. Le garage intégré est un atout majeur, garantissant non seulement la sécurité de votre véhicule mais aussi une optimisation de l’espace extérieur de votre propriété.L’architecture de Neptune est pensée pour maximiser la lumière naturelle au sein de votre foyer, grâce à de grandes baies coulissantes qui ouvrent votre espace de vie sur l’extérieur, permettant ainsi une transition fluide entre votre jardin et votre intérieur. Cette maison à étage offre un cadre de vie des plus agréables, avec une vaste pièce à vivre au rez-de-chaussée et trois chambres à l’étage, conçues pour garantir l’intimité et le confort de chacun.Conforme à la norme RE2020, Neptune est une maison basse consommation, conçue avec des matériaux et des technologies de pointe pour réduire votre empreinte carbone tout en optimisant votre confort thermique tout au long de l’année. Ce modèle répond aux attentes les plus exigeantes en matière d’économie d’énergie et de respect de l’environnement, vous assurant ainsi des économies substantielles sur vos factures énergétiques.Choisir Neptune, c’est opter pour une maison qui combine esthétique, confort et performance énergétique, le tout dans un cadre de vie idéalement pensé pour le bien-être de toute la famille. Ne manquez pas l’opportunité de construire la maison de vos rêves, une demeure où chaque détail a été conçu pour répondre à vos attentes les plus élevées.
Fresnay-sur-Sarthe
TERRAINTerrain de 1 108 m² à vendre à 5 minutes de la HUTTEIDÉALEMENT SITUÉ – PROCHE D’ALENÇONÀ 5 minutes de LA HUTTE (72) à 19 km d’Alençon, projetez la maison de vos rêves sur ce terrain de 1 108 m². Il donne sur un espace vert et bénéficie d’une exposition sud-ouest. Il se trouve dans un quartier convoité. On y trouve une école primaire. Côté transports, il y a deux gares (Vivoin-Beaumont et La Hutte Coulombiers) à moins de 10 minutes en voiture. Il y a un accès à l’autoroute A28 à 6 km.Ce terrain est à vendre pour la somme de 29 250 €. Prenez contact avec Elisa RODRIGUES MORAIS (tél : (Numéro supprimé)) pour toute question sur le terrain. Faites de vos projets immobiliers une réalité avec Maisons France Confort Saint-Saturnin.
Beaumont-sur-Sarthe
TERRAINTerrain de 772 m² en vente à 5 minutes de BEAUMONT SUR SARTHEIDÉALEMENT SITUÉ – PROCHE D’ALENÇONA 5 minutes de BEAUMONT SUR SARTHE (72) à vendre à deux pas d’Alençon, imaginez la maison de vos rêves sur ce terrain de 772 m². Ce terrain, avec vue sur espace vert, bénéficie d’une exposition sud-ouest. Il est situé dans un quartier convoité. Une école primaire y est implantée. Niveau transports, on trouve les gares Vivoin-Beaumont et La Hutte Coulombiers à moins de 10 minutes en voiture. Il y a un accès à l’autoroute A28 à 6 km.Ce terrain est à vendre pour la somme de 20 400 €. Contactez Elisa RODRIGUES MORAIS ((Numéro supprimé)) pour toute information sur le terrain, sur les démarches à suivre ou sur les modalités de vente. Maisons France Confort Saint-Saturnin vous accompagne à toutes les étapes de votre projet et dans tous vos projets immobiliers.
Doucelles
TERRAINVENTE : terrain de 879 m² à 5 minutes de DOUCELLESIDÉALEMENT SITUÉ – PROCHE D’ALENÇONA 5 minutes de DOUCELLES à quelques kilomètres d’Alençon, projetez la maison de vos rêves sur ce terrain de 879 m². Il est exposé au sud-ouest. Il se trouve dans un secteur prisé. On y trouve une école primaire. Niveau transports, il y a deux gares (Vivoin-Beaumont et La Hutte Coulombiers) à moins de 10 minutes en voiture. Il y a un accès à l’autoroute A28 à 6 km.Ce terrain est proposé à l’achat pour 23 175 €. Contactez notre agence (RODRIGUES MORAIS Elisa : (Numéro supprimé)) pour tout renseignement sur ce terrain. Faites de vos projets immobiliers une réalité avec Maisons France Confort Saint-Saturnin.
Piacé
TERRAINTerrain de 886 m² en vente à PiacéPROCHE GARE – PROCHE D’ALENÇONÀ vendre à 19 km d’Alençon à Piacé (72170), grand terrain. Réalisez-y votre projet de construction. Il est exposé au sud-ouest. Il est situé non loin de la gare. Une école primaire est implantée dans le quartier. Niveau transports, il y a deux gares (Vivoin-Beaumont et La Hutte Coulombiers) à moins de 10 minutes en voiture. L’autoroute A28 est accessible à 6 km.Ce terrain est proposé à l’achat pour 23 400 €. N’hésitez pas à prendre contact avec Elisa RODRIGUES MORAIS (tél : (Numéro supprimé)) pour toute question sur le terrain, sur les démarches à suivre ou sur les modalités de vente. Maisons France Confort Saint-Saturnin est là pour vous accompagner à toutes les étapes de votre projet.
Fresnay-sur-Sarthe
TERRAIN ET MAISONVENTE : maison T3 (55 m²) à 5 minutes de LA HUTTEIDÉALEMENT SITUÉE – MAISON 3 PIÈCES NEUVEÀ quelques kilomètres d’Alençon, votre agence Maisons France Confort Saint-Saturnin est heureuse de vous présenter cette maison de 3 pièces de plain-pied de 55 m² idéalement située à 5 minutes de LA HUTTE (72). Son intérieur inclut deux chambres, une cuisine et une salle de bains.Le terrain de la propriété est de 1 108 m².Cette maison est neuve.Cette maison est située dans un secteur attractif. Une école primaire y est implantée. Côté transports en commun, il y a les gares Vivoin-Beaumont et La Hutte Coulombiers à moins de 10 minutes en voiture. L’autoroute A28 est accessible à 6 km.Elle est à vendre pour la somme de 134 850 €.N’hésitez pas à prendre contact avec Elisa RODRIGUES MORAIS ((Numéro supprimé)) pour obtenir de plus amples informations sur le bien. Donnez vie à vos projets immobiliers avec Maisons France Confort Saint-Saturnin.
Fresnay-sur-Sarthe
TERRAIN ET MAISONMaison de 3 pièces (55 m²) à vendre à 5 minutes de LA HUTTE (72)IDÉALEMENT SITUÉE – MAISON 3 PIÈCES NEUVEÀ 19 km d’Alençon, notre agence Maisons France Confort Saint-Saturnin est ravie de vous proposer en vente, idéalement située à 5 minutes de LA HUTTE (72) (72), cette maison de 3 pièces de plain-pied de 55 m².Son intérieur comporte deux chambres, une cuisine et une salle de bains. La maison est neuve.Le terrain du bien est de 1 108 m².Cette maison est située dans un quartier prisé. Une école primaire y est implantée. Niveau transports en commun, on trouve les gares Vivoin-Beaumont et La Hutte Coulombiers à moins de 5 minutes en voiture. On trouve un accès à l’autoroute A28 à 6 km.Son prix de vente est de 142 850 €.Contactez notre constructeur (Elisa RODRIGUES MORAIS : (Numéro supprimé)) pour toute question sur la maison.
Fresnay-sur-Sarthe
TERRAIN ET MAISONA 5 minutes de LA HUTTE (72) : maison de 5 pièces (90 m²) à vendreIDÉALEMENT SITUÉE – MAISON 5 PIÈCES NEUVEÀ vendre à quelques kilomètres d’Alençon, nous vous présentons cette maison de 5 pièces de plain-pied de 90 m² et de 1 108 m² de terrain, idéalement située à 5 minutes de LA HUTTE (72).Conçue de plain-pied, elle offre trois chambres, une cuisine et une salle de bains. Cette maison est neuve.Cette maison est située dans un secteur prisé. Une école primaire y est implantée. Côté transports en commun, il y a deux gares (Vivoin-Beaumont et La Hutte Coulombiers) à moins de 10 minutes en voiture. Il y a un accès à l’autoroute A28 à 6 km.Elle est à vendre pour la somme de 205 000 €.Contactez Elisa RODRIGUES MORAIS ((Numéro supprimé)) pour tout renseignement sur la maison, sur les démarches à suivre ou sur les modalités de vente.
L’actualité immobilière à Doucelles
27/11/2023
02/11/2023
30/10/2023
20/10/2023
16/10/2023
16/10/2023