Maison à construire à Neuville-sur-Sarthe (72190)
Images
Description
VENTE d'une maison T5 (119 m²) à Neuville-sur-Sarthe
QUARTIER RECHERCHÉ - MAISON 5 PIÈCES NEUVE
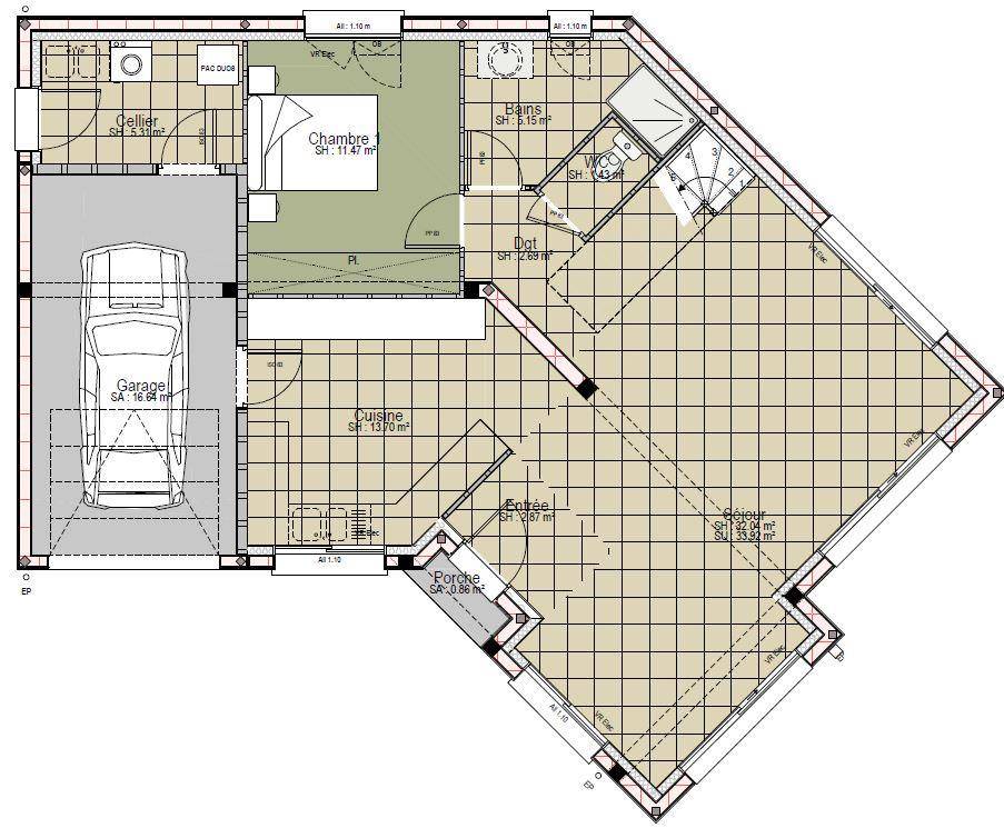
En vente à 10 km du Mans, ayez le coup de coeur pour cette maison de 5 pièces de 119 m² et de 568 m² de terrain dans un secteur attractif de Neuville-sur-Sarthe (72190). Elle dispose de quatre chambres, d'une cuisine et de deux salles de bains.
Il s'agit d'une maison de 2 niveaux. Elle est neuve.
La maison se situe dans un quartier convoité. Il y a l'École Primaire Publique Léonard de Vinci à moins de 10 minutes à pied. Niveau transports, on trouve la gare Neuville-sur-Sarthe à proximité. Il y a un accès à l'autoroute A11 à 3 km. Il y a un tennis, une boulangerie, un commerce, une boucherie-charcuterie et une épicerie à quelques minutes à peine.
Son prix de vente est de 332 000 €.
Contactez notre agence (Luc LIVET : (Numéro supprimé)) pour toute information sur la maison ou sur les modalités de vente. Maine Construction Saint-Saturnin vous accompagne à toutes les étapes de votre projet et dans toutes vos démarches.
Logement susceptibles de vous intéresser
Nous vous proposons de découvrir aussi cette sélection de logements situés à moins de 10km de Neuville-sur-Sarthe et qui seraient susceptibles de vous intéresser.
Le Mans
TERRAINVENTE : terrain de 349 m² au MansPROCHE CENTRE-VILLEProche du centre-ville du Mans (72000), terrain de 349 m². Il est prêt à accueillir votre résidence principale ou secondaire pour toute la famille. Ce terrain, exposé ouest, donne sur un jardin. Ce terrain est proche des écoles et des commerces. Il y a le lycée Institut Technologique Européen des Métiers de la Musique à moins de 10 minutes à pied, deux crèches et deux établissements du supérieur dans un rayon de 1 km : l’Université du Mans et l’Institut supérieur des matériaux du Mans. Niveau transports, on trouve trois gares (Le Mans, Neuville-sur-Sarthe et Arnage) à moins de 10 minutes en voiture. L’autoroute A11 est accessible à 3 km. Il y a deux tennis, trois boulangeries, des commerces, un supermarché et un bureau de poste à quelques minutes.Il est à vendre pour la somme de 95 000 €. Contactez François HOUDAYER (tél : (Numéro supprimé)) pour tout renseignement sur le terrain, sur les démarches à suivre ou sur les modalités de vente. Maine Construction Le Mans est là pour vous accompagner à toutes les étapes de votre projet.
Le Mans
TERRAIN ET MAISONVENTE : maison F3 (55 m²) au MansPROCHE CENTRE-VILLE – MAISON 3 PIÈCES NEUVEEn vente : nous sommes ravis de vous présenter, proche du centre-ville du Mans (72000), cette maison de 3 pièces de 55 m² et de 349 m² de terrain. Son intérieur se divise en trois chambres, une cuisine et deux salles de bains.Cette maison comporte 2 niveaux. Elle est neuve.Le lycée Institut Technologique Européen des Métiers de la Musique est implanté à moins de 10 minutes à pied, deux crèches, tout comme deux établissements du supérieur juste à côté : l’Université du Mans et l’Institut supérieur des matériaux du Mans. Niveau transports en commun, on trouve les gares Le Mans, Neuville-sur-Sarthe et Arnage à moins de 10 minutes en voiture. Il y a un accès à l’autoroute A11 à 3 km. Il y a deux tennis, trois boulangeries, des commerces, un supermarché et un bureau de poste à quelques minutes à peine.Elle est à vendre pour la somme de 225 000 €.Contactez notre agence (François HOUDAYER : (Numéro supprimé)) pour plus de renseignements sur la maison, sur les démarches à suivre ou sur les modalités de vente. Maine Construction Le Mans vous accompagne à toutes les étapes de l’achat et dans tous vos projets immobiliers.
Le Mans
TERRAIN ET MAISONLe Mans : maison F6 (125 m²) à vendrePROCHE CENTRE-VILLE – MAISON 6 PIÈCES NEUVEÀ vendre : nous vous proposons, proche du centre-ville du Mans (72000), cette maison de 6 pièces de plain-pied de 125 m² et de 349 m² de terrain. Elle comporte trois chambres, une cuisine et une salle de bains.La maison est neuve.Il y a le lycée Institut Technologique Européen des Métiers de la Musique à moins de 10 minutes à pied, deux crèches et deux établissements du supérieur dans les environs : l’Université du Mans et l’Institut supérieur des matériaux du Mans. Côté transports, on trouve trois gares (Le Mans, Neuville-sur-Sarthe et Arnage) à moins de 10 minutes en voiture. L’autoroute A11 est accessible à 3 km. Il y a deux tennis, trois boulangeries, des commerces, un supermarché et un bureau de poste à quelques minutes.Elle est proposée à l’achat pour 372 000 €.N’hésitez pas à prendre contact avec François HOUDAYER (tél : (Numéro supprimé)) pour toute information sur la maison, sur les modalités de vente ou sur les démarches à suivre. Faites de vos projets immobiliers une réalité avec Maine Construction Le Mans.
Le Mans
TERRAIN ET MAISONVENTE d’une maison T7 (160 m²) au MansPROCHE CENTRE-VILLE – MAISON 7 PIÈCES NEUVEEn vente : nous vous proposons, proche du centre-ville du Mans (72000), cette maison de 7 pièces de 160 m² et de 349 m² de terrain. Son intérieur propose quatre chambres, une cuisine et deux salles de bains.Cette maison possède 2 niveaux. Elle est neuve.Le lycée Institut Technologique Européen des Métiers de la Musique est implanté à moins de 10 minutes à pied, deux structures d’accueil pour la petite enfance, tout comme deux établissements du supérieur dans un rayon de 1 km : l’Université du Mans et l’Institut supérieur des matériaux du Mans. Niveau transports en commun, on trouve les gares Le Mans, Neuville-sur-Sarthe et Arnage à moins de 10 minutes en voiture. L’autoroute A11 est accessible à 3 km. Il y a deux tennis, trois boulangeries, des commerces, un supermarché et un bureau de poste à quelques minutes du logement.Elle est proposée à l’achat pour 443 000 €.Contactez notre agence (François HOUDAYER : (Numéro supprimé)) pour obtenir de plus amples renseignements sur la maison, sur les démarches à suivre ou sur les modalités de vente. Maine Construction Le Mans vous accompagne à toutes les étapes de votre projet et dans tous vos projets immobiliers.
Le Mans
TERRAIN ET MAISONVENTE : maison de 5 pièces (93 m²) au MansPROCHE CENTRE-VILLE – MAISON 5 PIÈCES NEUVEMaine Construction Le Mans vous propose à vendre, proche du centre-ville du Mans (72000), cette maison de 5 pièces de plain-pied de 93 m² et de 349 m² de terrain. Son intérieur offre quatre chambres, une cuisine et une salle de bains.Cette maison est neuve.Le lycée Institut Technologique Européen des Métiers de la Musique se trouve à moins de 10 minutes à pied, deux structures d’accueil pour la petite enfance, tout comme l’Université du Mans et l’Institut supérieur des matériaux du Mans pour le supérieur. Côté transports en commun, il y a trois gares (Le Mans, Neuville-sur-Sarthe et Arnage) à moins de 10 minutes en voiture. Il y a un accès à l’autoroute A11 à 3 km. On trouve deux tennis, trois boulangeries, des commerces, un supermarché et un bureau de poste dans les environs.Elle est à vendre pour la somme de 295 000 €.Contactez notre agence (HOUDAYER François : (Numéro supprimé)) pour toute information sur la maison ou sur les modalités de vente. Maine Construction Le Mans vous accompagne dans tous vos projets immobiliers et dans toutes vos démarches.
Le Mans
TERRAIN ET MAISONMaison T4 (76 m²) en vente au MansPROCHE CENTRE-VILLE – MAISON 4 PIÈCES NEUVEÀ vendre : venez découvrir, proche du centre-ville du Mans (72000), cette maison de 4 pièces de plain-pied de 76 m² et de 349 m² de terrain.Son intérieur est composé de trois chambres, d’une cuisine et d’une salle de bains. La maison est neuve.Le lycée Institut Technologique Européen des Métiers de la Musique se trouve à moins de 10 minutes à pied, deux crèches, tout comme deux établissements du supérieur à proximité : l’Université du Mans et l’Institut supérieur des matériaux du Mans. Niveau transports, il y a trois gares (Le Mans, Neuville-sur-Sarthe et Arnage) à moins de 10 minutes en voiture. L’autoroute A11 est accessible à 3 km. On trouve deux tennis, trois boulangeries, des commerces, un supermarché et un bureau de poste à quelques minutes du logement.Elle est à vendre pour la somme de 268 000 €.Prenez contact avec François HOUDAYER (tél : (Numéro supprimé)) pour toute information sur le bien.
Le Mans
TERRAIN ET MAISONMaison de 5 pièces (118 m²) à vendre au MansPROCHE CENTRE-VILLE – MAISON 5 PIÈCES NEUVEEn vente : nous sommes heureux de vous présenter cette maison de 5 pièces de plain-pied de 118 m² proche du centre-ville du Mans (72000).Conçue de plain-pied, elle comporte quatre chambres, une cuisine et une salle de bains. Cette maison est neuve.Le terrain de la propriété s’étend sur 349 m².Il y a le lycée Institut Technologique Européen des Métiers de la Musique à moins de 10 minutes à pied, deux structures d’accueil pour les enfants en bas âge et l’Université du Mans et l’Institut supérieur des matériaux du Mans pour le supérieur. Côté transports, on trouve trois gares (Le Mans, Neuville-sur-Sarthe et Arnage) à moins de 10 minutes en voiture. Il y a un accès à l’autoroute A11 à 3 km. Il y a deux tennis, trois boulangeries, des commerces, un supermarché et un bureau de poste à quelques minutes à peine.Elle est à vendre pour la somme de 345 000 €.Contactez François HOUDAYER (tél : (Numéro supprimé)) pour plus de renseignements sur la maison, sur les modalités de vente ou sur les démarches à suivre.
Le Mans
TERRAIN ET MAISONLe Mans : maison de 5 pièces (140 m²) en ventePROCHE CENTRE-VILLE – MAISON 5 PIÈCES NEUVEÀ vendre : laissez vous charmer par cette maison de 5 pièces de 140 m² proche du centre-ville du Mans (72000). Elle se divise en quatre chambres, une cuisine et deux salles de bains.Le terrain de la propriété s’étend sur 349 m².C’est une maison de 2 niveaux. Elle est neuve.Le lycée Institut Technologique Européen des Métiers de la Musique est implanté à moins de 10 minutes à pied, deux crèches, tout comme deux établissements du supérieur à quelques pas de la maison : l’Université du Mans et l’Institut supérieur des matériaux du Mans. Côté transports en commun, il y a les gares Le Mans, Neuville-sur-Sarthe et Arnage à moins de 10 minutes en voiture. On trouve un accès à l’autoroute A11 à 3 km. On trouve deux tennis, trois boulangeries, des commerces, un supermarché et un bureau de poste dans les environs.Elle est proposée à l’achat pour 399 000 €.Prenez contact avec François HOUDAYER (tél : (Numéro supprimé)) pour toute question sur la maison et sur les démarches à suivre. Donnez vie à vos projets immobiliers avec Maine Construction Le Mans.
Le Mans
TERRAIN ET MAISONVENTE : maison de 4 pièces (90 m²) au MansPROCHE CENTRE-VILLE – MAISON 4 PIÈCES NEUVEÀ vendre : votre agence Maine Construction Le Mans est ravie de vous présenter cette maison de 4 pièces de plain-pied de 90 m² proche du centre-ville du Mans (72000). Conçue de plain-pied, elle est composée de trois chambres, d’une cuisine et d’une salle de bains.Le terrain du bien est de 349 m².Cette maison est neuve.Le lycée Institut Technologique Européen des Métiers de la Musique est implanté à moins de 10 minutes à pied, deux crèches, tout comme deux établissements du supérieur dans les environs : l’Université du Mans et l’Institut supérieur des matériaux du Mans. Niveau transports, il y a les gares Le Mans, Neuville-sur-Sarthe et Arnage à moins de 10 minutes en voiture. L’autoroute A11 est accessible à 3 km. On trouve deux tennis, trois boulangeries, des commerces, un supermarché et un bureau de poste à quelques minutes.Elle est à vendre pour la somme de 295 000 €.N’hésitez pas à prendre contact avec notre constructeur (François HOUDAYER : (Numéro supprimé)) pour toute information sur le bien, sur les modalités de vente et sur les démarches à suivre. Maine Construction Le Mans est là pour vous accompagner à toutes les étapes de votre projet.
L’actualité immobilière à Neuville-sur-Sarthe
27/11/2023
02/11/2023
30/10/2023
20/10/2023
16/10/2023
16/10/2023