Images
Description
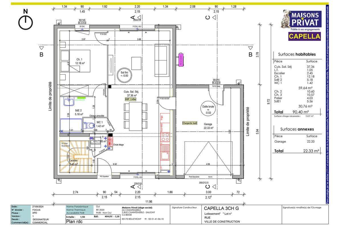
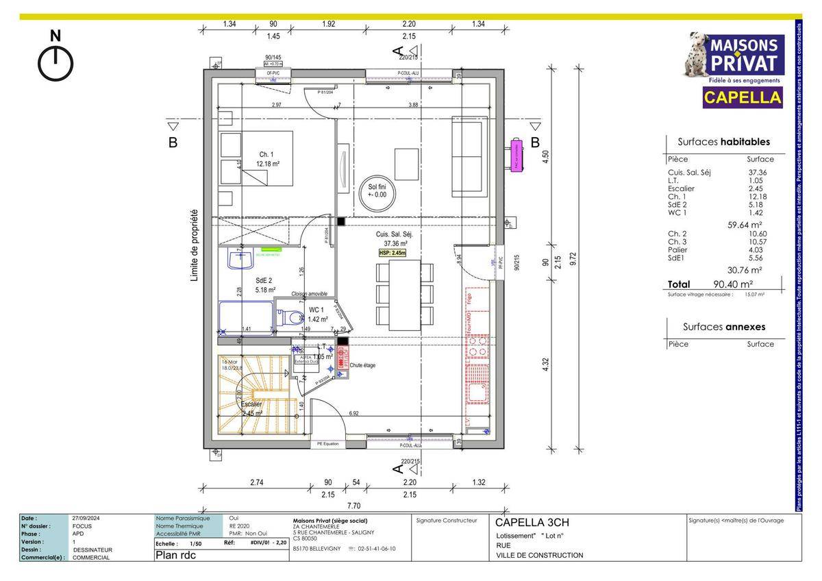
Sur ce terrain, nous vous proposons cette magnifique maison contemporaine de 90,57 m², offrant un cadre de vie idyllique où modernité, confort et nature se rencontrent harmonieusement. Avec ses volumes optimisés, elle est idéale pour une famille à la recherche de bien-être et de sérénité.
Un intérieur spacieux et lumineux
Dès l’entrée, laissez-vous séduire par un grand espace de vie ouvert de 37 m², baigné de lumière grâce à ses larges baies vitrées offrant une vue imprenable sur le jardin et la piscine. La cuisine moderne et fonctionnelle s’intègre parfaitement à l’espace de réception, créant une atmosphère chaleureuse et conviviale.
Au rez-de-chaussée, vous trouverez une suite parentale de 12,18 m², parfaite pour plus d’intimité, une grande pièce de vie de 37 m² avec cuisine ouverte, salon et salle à manger, ainsi qu’une salle d’eau et des WC séparés. Le garage de 22,55 m², accessible directement depuis la maison, offre un espace de rangement idéal.
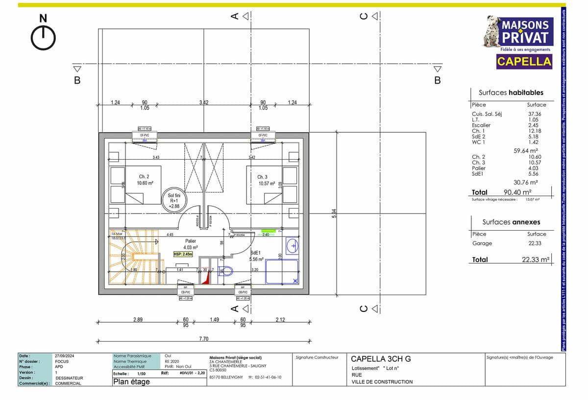
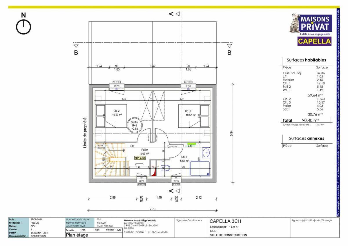
À l’étage, deux chambres confortables de 10,70 m² et 10,74 m² offrent un espace de vie agréable pour les enfants ou les invités. Une salle d’eau spacieuse de 5,56 m² et un palier pouvant être aménagé en bureau ou en espace détente complètent cet étage.
* Prix indiqué hors branchements, hors sanitaires, hors revêtement des sols et des murs. Assurance dommages ouvrages incluse.
Logement susceptibles de vous intéresser
Nous vous proposons de découvrir aussi cette sélection de logements situés à moins de 10km de Aizenay et qui seraient susceptibles de vous intéresser.
Aizenay
TERRAINOffrez-vous une opportunité rare avec ce magnifique terrain à vendre, d’une superficie généreuse de 545 m², idéalement situé à Aizenay. Ce terrain, entièrement viabilisé, est parfait pour la construction de votre maison de rêve. Grâce à ses caractéristiques uniques, telles qu’un terrain plat et un environnement calme, vous pourrez concevoir un projet qui s’intègre harmonieusement dans ce cadre de vie privilégié. Aizenay, située en Vendée au cœur de la région Pays de la Loire, bénéficie d’un cadre exceptionnel. La ville se distingue par ses commodités variées, ses écoles à proximité, et un accès facilité aux transports, incluant des arrêts de bus et une gare à proximité. Habiter à Aizenay, c’est choisir un mode de vie paisible tout en étant proche du centre-ville et de toutes les activités locales. Les accès autoroutiers à proximité et les nombreux commerces font de cette commune un lieu prisé pour le bien-vivre. Ce terrain constitue une occasion en or pour les investisseurs et ceux qui souhaitent réaliser un projet de vie sur mesure.
Aizenay
TERRAIN ET MAISONSur ce terrain, nous vous proposons cette magnifique maison contemporaine de 90,57 m², offrant un cadre de vie idyllique où modernité, confort et nature se rencontrent harmonieusement. Avec ses volumes optimisés, elle est idéale pour une famille à la recherche de bien-être et de sérénité.Un intérieur spacieux et lumineuxDès l’entrée, laissez-vous séduire par un grand espace de vie ouvert de 37 m², baigné de lumière grâce à ses larges baies vitrées offrant une vue imprenable sur le jardin et la piscine. La cuisine moderne et fonctionnelle s’intègre parfaitement à l’espace de réception, créant une atmosphère chaleureuse et conviviale.Au rez-de-chaussée, vous trouverez une suite parentale de 12,18 m², parfaite pour plus d’intimité, une grande pièce de vie de 37 m² avec cuisine ouverte, salon et salle à manger, ainsi qu’une salle d’eau et des WC séparés. Le garage de 22,55 m², accessible directement depuis la maison, offre un espace de rangement idéal.À l’étage, deux chambres confortables de 10,70 m² et 10,74 m² offrent un espace de vie agréable pour les enfants ou les invités. Une salle d’eau spacieuse de 5,56 m² et un palier pouvant être aménagé en bureau ou en espace détente complètent cet étage.* Prix indiqué hors branchements, hors sanitaires, hors revêtement des sols et des murs. Assurance dommages ouvrages incluse.
Aizenay
TERRAINNous avons le plaisir de vous présenter un terrain d’une surface généreuse de 502 m², idéalement situé à Aizenay, en Vendée. Ce terrain, déjà viabilisé, offre un potentiel exceptionnel pour un projet de construction de maison qui saura s’épanouir dans un environnement privilégié. Les caractéristiques uniques de cette ville, son calme et sa proximité avec les commodités en font un lieu de vie idéal pour les familles et les professionnels à la recherche de tranquillité et de confort. Aizenay, située dans le département de la Vendée au cœur de la région des Pays de la Loire, se distingue par son ambiance accueillante et ses nombreuses attractions. Le centre-ville, proche des commerces et des écoles, constitue un lieu de vie pratique et agréable. Avec des établissements scolaires jouxtant le terrain, ainsi que des transports en commun à proximité, cette localité bénéficie d’un réseau accessible et dynamique. Vous pourrez également profiter de la nature environnante tout en étant à deux pas des axes routiers importants, facilitant ainsi vos déplacements quotidiens. Ne laissez pas passer cette opportunité unique d’acquérir un terrain au potentiel indéniable dans un quartier recherché. Nous vous invitons à envisager le projet de vos rêves dans cette charmante ville d’Aizenay. À noter qu’en tant que constructeur, nous ne sommes pas mandatés pour réaliser la vente de ce terrain.
Aizenay
TERRAIN ET MAISONSur ce terrain, nous vous proposons cette maison neuve : la Dompierroise, une maison au concept original et agréable.La Dompierroise est une intéressante maison traditionnelle de plain-pied dont l’originalité tient au fait qu’elle se compose de deux corps de bâtiment en décalé. Ce qui permet une délimitation des espaces intéressante et une organisation optimisée. Avec une surface de 80 m², cette maison dispose de 3 chambres et de 4 pièces, offrant ainsi un espace de vie confortable et fonctionnel.Une maison pour toutes les configurations familiales.Déclinée en versions allant du T3 au T5, avec une surface au sol comprise entre 70 et 90 m², la Dompierroise s’adapte totalement à la composition de votre famille. Du plus petit au plus grand modèle, vous trouverez la même organisation pratique de l’intérieur, avec un salon-séjour-cuisine spacieux. Un grand garage intégré est inclus, quelle que soit la version. De plus, cette maison est équipée d’un porche accueillant, ajoutant une touche de charme et de fonctionnalité.Ceux qui ont aimé ce modèle ont également retenu ces options :- Enduit bi-ton- Plancher chauffant- Sous-solInsistons sur le fait que cette maison neuve est basse consommation et conforme à la RE2020, garantissant ainsi des performances énergétiques optimales et un confort de vie inégalé.Le constructeur de cette maison est Maisons Privat, un constructeur centenaire avec les meilleurs avis clients de la région. Faites confiance à leur expertise et à leur savoir-faire pour réaliser votre projet de vie dans une maison qui allie tradition et modernité.
Aizenay
TERRAINDécouvrez ce magnifique terrain à vendre de 492 m², au cœur de la charmante ville d’Aizenay, dans le département de la Vendée. Ce bien, entièrement viabilisé, offre une opportunité parfaite pour concrétiser votre projet de construction de maison individuelle. Profitez d’un cadre de vie agréable et d’un environnement paisible, idéal pour établir votre futur foyer. Ne laissez pas passer cette occasion unique de réaliser votre rêve immobilier! Aizenay, situé en Pays de la Loire, est réputé pour sa qualité de vie inégalée. À proximité des commerces, des écoles et des transports, ce terrain bénéficie d’une situation géographique privilégiée. Vous serez à quelques pas des commodités essentielles et des infrastructures éducatives, incluant un collège et un lycée. Ce quartier, calme et recherché, vous plongera dans une atmosphère conviviale tout en vous permettant d’accéder facilement aux axes routiers importants et à la gare pour vos déplacements. Bien plus qu’un simple terrain, c’est un point de départ vers un nouveau mode de vie! Ce terrain représente une opportunité à ne pas manquer pour tous ceux qui souhaitent s’installer dans un cadre serein, tout en bénéficiant des atouts d’une ville dynamique. Ne tardez pas à envisager cette chance d’achat unique!
Aizenay
TERRAIN ET MAISONSur ce terrain, nous vous proposons cette maison neuve : la Luçonnaise, une maison traditionnelle de plain-pied qui associe confort et élégance. Conçue par Maisons Privat, constructeur centenaire avec les meilleurs avis clients de la région, cette demeure est idéale pour une famille à la recherche de confort et de modernité.La Luçonnaise est une jolie maison de plain-pied en forme de L, parfaite pour une famille et ultra confortable. Avec une surface de 90 m², elle dispose de 3 chambres et de 4 pièces, offrant des volumes généreux et bien pensés. L’espace nuit est intelligemment délimité pour garantir tranquillité et intimité.Vous apprécierez sa cuisine semi-ouverte donnant sur un grand séjour bien éclairé, parfait pour des moments conviviaux en famille ou entre amis. Fan de soleil ? La conception avisée de ce plan permet une ouverture supplémentaire sur le côté du salon pour profiter d’une triple exposition.Son porche couvert à l’entrée abritera vos invités, le temps pour vous de vérifier que tout est prêt pour les accueillir. Toutes les versions de la Luçonnaise comportent un garage intégré, pratique et fonctionnel.Les caractéristiques principales de cette maison incluent un plan en L, un garage intégré et des volets roulants. Les options les plus demandées par nos clients, telles que les menuiseries en aluminium et les volets battants, sont également disponibles.Enfin, cette maison neuve est basse consommation et conforme à la RE2020, garantissant des performances énergétiques optimales et un confort de vie inégalé.Ne manquez pas cette opportunité unique de devenir propriétaire d’une maison alliant tradition et modernité, conçue par un constructeur de renom. Contactez-nous dès aujourd’hui pour plus d’informations !
Aizenay
TERRAINNous vous présentons une opportunité exceptionnelle d’acquérir un terrain de 358 m², idéalement situé dans un quartier recherché d’Aizenay, en Vendée. Ce lotissement est entièrement viabilisé, prêt à accueillir le projet de construction de votre maison rêvée. La configuration plate du terrain garantit une facilité de construction inégalée, vous permettant de donner vie à vos idées architecturales dans un cadre paisible et agréable. Aizenay, nichée au cœur du Pays de la Loire, se distingue par sa qualité de vie remarquable. La ville offre un accès facile aux commerces de proximité, ainsi qu’à des établissements scolaires, y compris des collèges et lycées, qui sont à quelques pas. Les transports publics, notamment les arrêts de bus à proximité, simplifient vos déplacements quotidiens, tandis que les espaces verts et les commodités locales apportent une touche agréable au quotidien. Ne manquez pas de découvrir les charmes de cette ville dynamique et conviviale. Ce terrain représente une réelle opportunité pour ceux qui aspirent à construire leur foyer dans un environnement équilibré et prometteur. N’hésitez pas à envisager cette offre unique de devenir propriétaire à Aizenay.
Aizenay
TERRAIN ET MAISONSur ce terrain, nous vous proposons cette maison neuve : la Florentaise. Conçue par Maisons Privat, constructeur centenaire avec les meilleurs avis clients de la région, cette maison de 70 m² allie confort et fonctionnalité.Intérieur bien pensé et confort sont les atouts de la Florentaise. Ce modèle de maison traditionnelle de plain-pied propose un intérieur bien organisé où le moindre espace est utilisé, ce qui en fait une demeure très fonctionnelle au style intemporel.La Florentaise, une maison neuve qui adapte ses dimensions à vos envies. Ce modèle se décline en versions d’une superficie allant de 70 à 102 m² et propose de 2 à 4 chambres donnant sur un dégagement. Vous apprécierez les placards équipant toutes les chambres. La taille généreuse de la salle de bain permet de l’équiper si vous le souhaitez d’une douche et d’une baignoire.Du côté de l’espace jour, un grand salon/séjour traversant pour profiter du moindre rayon de soleil. La cuisine ouverte fait de cette pièce de vie un endroit propice pour se retrouver en famille ou entre amis.Les caractéristiques principales de cette maison incluent un garage intégré, une conception basse consommation et une cuisine ouverte. La Florentaise est conforme à la RE2020, garantissant une performance énergétique optimale et un respect des normes environnementales les plus récentes.Parmi les options les plus demandées par nos clients, vous trouverez des menuiseries en aluminium, une toiture en deux pans ou quatre pans pour encore plus de style, ainsi qu’un grenier sur garage pour un espace de rangement supplémentaire.Ne manquez pas cette opportunité de construire la maison de vos rêves avec Maisons Privat, un constructeur de confiance reconnu pour son expertise et la satisfaction de ses clients.
Palluau
TERRAINVENTE d’un terrain de 351 m² à PalluauEMPLACEMENT PRIVILÉGIÉ – PROCHE DE LA ROCHE-SUR-YONTerrain de 351 m² à vendre à 33 km de l’océan Atlantique et à deux pas de La Roche-sur-Yon. Ce terrain se situe bénéficiant d’un emplacement d’exception dans Palluau (85670). Dans un secteur attractif, le terrain est proche des commerces et des écoles. Il y a l’École Primaire Publique le Verger, l’École Primaire Privée Sainte-Agnès et le Collège Privé Saint Paul à moins de 10 minutes à pied. L’autoroute A87 est accessible à 20 km. On trouve un commerce et une boulangerie à proximité.Son prix de vente est de 45 500 €. Contactez notre agence (NOVO Virginie : (Numéro supprimé)) pour tout renseignement sur le terrain ou sur les démarches à suivre. Faites de vos projets immobiliers une réalité avec LMP Constructeur La Roche-sur-Yon.
L’actualité immobilière à Aizenay
27/11/2023
02/11/2023
30/10/2023
20/10/2023
16/10/2023
16/10/2023