Images
Description
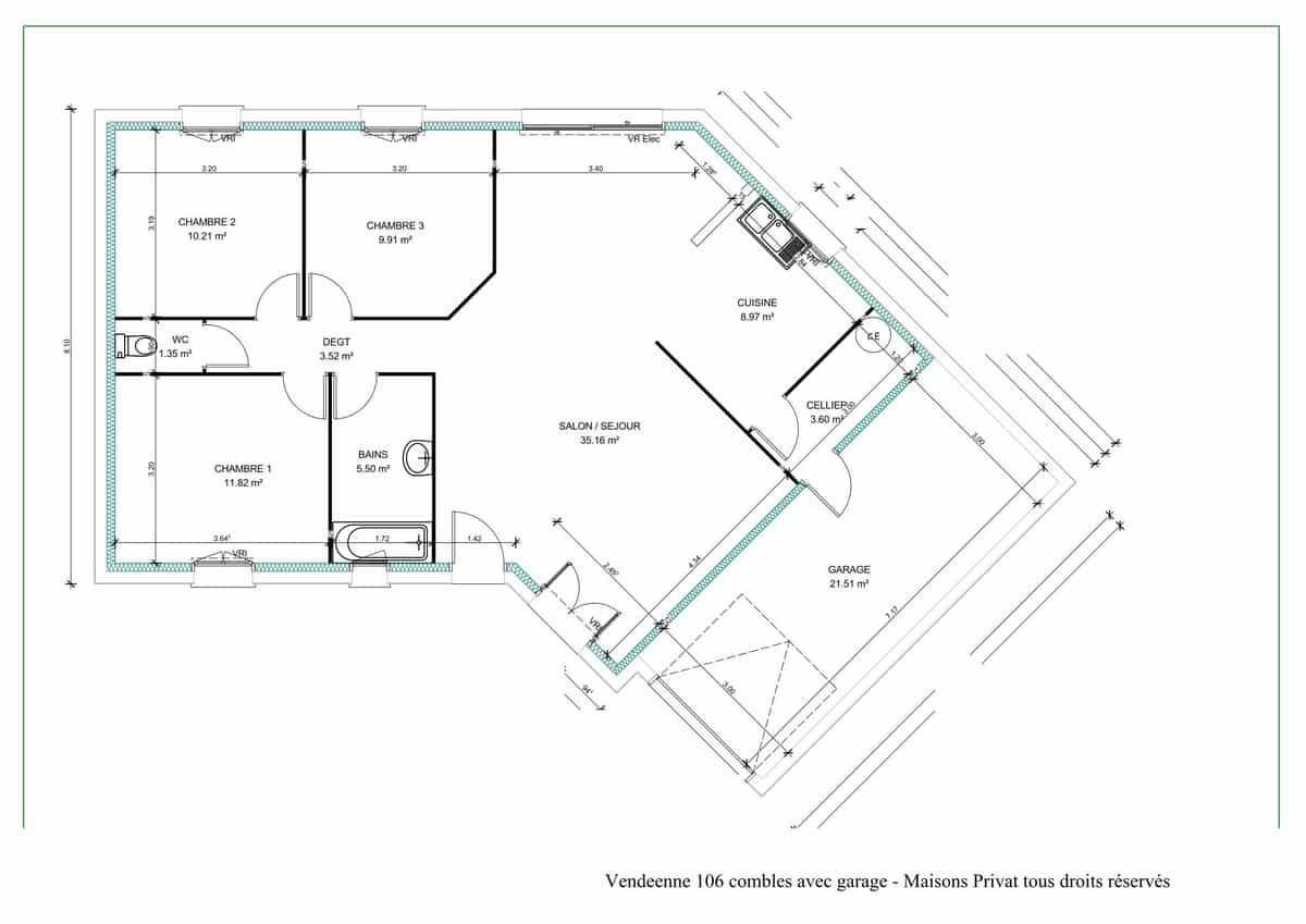
Sur ce terrain, nous vous proposons cette maison neuve : la Vendéenne. Conçue par Maisons Privat, constructeur centenaire avec les meilleurs avis clients de la région, cette maison de 110 m² allie confort, modernité et économie d'énergie.
La Vendéenne est une très belle maison de plain-pied avec un plan en V offrant tout l’équipement nécessaire à ses occupants. Elle séduit par sa belle prestance et sa toiture en tuile complexe. Cette maison familiale chaleureuse et bien pensée dispose de quatre confortables chambres, parfaites pour accueillir une famille nombreuse ou pour aménager un bureau à domicile.
Vous profiterez également d'une salle de bains moderne et d'un vaste salon-séjour-cuisine agrémenté d’un cellier, idéal pour optimiser votre espace de rangement. Le garage intégré ajoute une touche de praticité supplémentaire, vous permettant de stationner votre véhicule en toute sécurité.
La façade en V de la Vendéenne est orientée pour capter la lumière du soleil tout au long de la journée, garantissant une luminosité optimale et des économies d'énergie. Cette maison neuve est basse consommation et conforme à la RE2020, vous assurant ainsi un habitat respectueux de l'environnement et des factures énergétiques réduites.
Les options les plus demandées par nos clients, telles que les menuiseries en aluminium et les volets roulants motorisés, sont également disponibles pour personnaliser votre maison selon vos préférences.
Ne manquez pas cette opportunité unique d'accéder à la propriété avec la Vendéenne, une maison qui allie élégance, fonctionnalité et performance énergétique. Contactez-nous dès aujourd'hui pour plus d'informations et pour planifier une visite.
Logement susceptibles de vous intéresser
Nous vous proposons de découvrir aussi cette sélection de logements situés à moins de 10km de Notre-Dame-de-Monts et qui seraient susceptibles de vous intéresser.
Notre-Dame-de-Monts
TERRAINÀ saisir, un terrain exceptionnel de 1259 m², idéalement situé à Notre-Dame-de-Monts dans le département de la Vendée. Ce terrain plat et sablonneux se trouve dans un quartier calme et prisé, offrant une véritable opportunité de réalisation d’un projet de construction de maison. En tant que terrain hors lotissement, en deuxième rideau, il garantit à la fois tranquillité et intimité, tout en étant à proximité des commodités essentielles. Située en région Pays de la Loire, Notre-Dame-de-Monts est une charmante commune où la nature règne en maître. À seulement 500 mètres de la forêt domaniale et à 1,2 km de la mer, vous pourrez profiter pleinement des plaisirs de la plage et des balades en pleine nature. De plus, le bourg, situé à 1,4 km, offre toutes les commodités nécessaires, telles que des commerces, des restaurants et des services de proximité. Un cadre de vie agréable et dynamique qui saura séduire votre famille. Ne laissez pas passer cette occasion unique d’acquérir un terrain avec un potentiel remarquable. Contactez-nous dès aujourd’hui pour envisager votre avenir sur ce site exceptionnel. À noter qu’en tant que constructeur, nous ne sommes pas mandatés pour réaliser la vente de ce terrain.
Notre-Dame-de-Monts
TERRAIN ET MAISONSur ce terrain, nous vous proposons cette maison neuve : la Vendéenne. Conçue par Maisons Privat, constructeur centenaire avec les meilleurs avis clients de la région, cette maison de 110 m² allie confort, modernité et économie d’énergie.La Vendéenne est une très belle maison de plain-pied avec un plan en V offrant tout l’équipement nécessaire à ses occupants. Elle séduit par sa belle prestance et sa toiture en tuile complexe. Cette maison familiale chaleureuse et bien pensée dispose de quatre confortables chambres, parfaites pour accueillir une famille nombreuse ou pour aménager un bureau à domicile.Vous profiterez également d’une salle de bains moderne et d’un vaste salon-séjour-cuisine agrémenté d’un cellier, idéal pour optimiser votre espace de rangement. Le garage intégré ajoute une touche de praticité supplémentaire, vous permettant de stationner votre véhicule en toute sécurité.La façade en V de la Vendéenne est orientée pour capter la lumière du soleil tout au long de la journée, garantissant une luminosité optimale et des économies d’énergie. Cette maison neuve est basse consommation et conforme à la RE2020, vous assurant ainsi un habitat respectueux de l’environnement et des factures énergétiques réduites.Les options les plus demandées par nos clients, telles que les menuiseries en aluminium et les volets roulants motorisés, sont également disponibles pour personnaliser votre maison selon vos préférences.Ne manquez pas cette opportunité unique d’accéder à la propriété avec la Vendéenne, une maison qui allie élégance, fonctionnalité et performance énergétique. Contactez-nous dès aujourd’hui pour plus d’informations et pour planifier une visite.
Notre-Dame-de-Monts
TERRAINÀ la recherche d’un terrain d’exception pour construire la maison de vos rêves ? Ne cherchez plus ! Ce terrain plat et sablonneux de 1 259 m², idéalement situé dans un quartier calme et recherché de Notre-Dame-de-Monts, offre un immense potentiel pour votre projet immobilier. Avec la forêt domaniale à seulement 500 m et la mer à 1,2 km, cet emplacement vous permettra de profiter pleinement de la nature tout en étant proche des commodités locales. Notre-Dame-de-Monts, dans le département de la Vendée en région Pays de la Loire, est une commune réputée pour ses paysages naturels et son ambiance sereine. Vous découvrirez de nombreuses attractions locales, telles que les plages magnifiques et les sentiers de randonnée à travers la forêt. Profitez également des commerces, restaurants et services de proximité, vous garantissant un cadre de vie agréable et pratique. Ce terrain hors lotissement en deuxième rideau vous offre l’opportunité de créer un havre de paix dans un environnement d’exception. Ne laissez pas passer cette chance unique d’acquérir un terrain au potentiel immense, parfait pour construire votre futur foyer. Contactez-nous dès aujourd’hui pour plus d’informations ! À noter qu’en tant que constructeur, nous ne sommes pas mandatés pour réaliser la vente de ce terrain.
Notre-Dame-de-Monts
TERRAIN ET MAISONSur ce terrain, nous vous proposons cette maison neuve : la Yonnaise, une maison parfaite pour les amoureux de l’espace. Cette maison traditionnelle de plain-pied est absolument idéale pour ceux qui souhaitent une maison vaste dans laquelle prendre leurs aises. Elle a de l’allure cette grande maison ! En forme de V et même en Y pour le plus grand modèle, la Yonnaise ne peut que vous séduire.La Yonnaise vous offre une superficie de 110 m² pour installer votre famille dans ses 4 jolies chambres. Un spacieux espace de vie, séjour-salon-cuisine, réunira la tribu pour des instants collectifs. Vous disposerez également d’un double garage, intégré ou accolé, pour plus de praticité.Les options les plus demandées par nos clients, telles que les menuiseries en aluminium et le plancher chauffant, sont disponibles pour cette maison. De plus, cette maison neuve est basse consommation et conforme à la RE2020, garantissant ainsi des économies d’énergie et un confort optimal tout au long de l’année.Le constructeur de cette maison, Maisons Privat, est un constructeur centenaire avec les meilleurs avis clients de la région, vous assurant ainsi une qualité de construction irréprochable et un service client exemplaire.Ne manquez pas cette opportunité unique de devenir propriétaire de la Yonnaise, une grande et jolie maison familiale qui saura répondre à toutes vos attentes.
Notre-Dame-de-Monts
TERRAINÀ vendre, ce magnifique terrain de 1259 m², idéal pour concrétiser votre projet de construction de maison dans un cadre paisible et naturel. Situé dans un quartier calme de Notre-Dame-de-Monts, ce terrain plat et sablonneux offre l’opportunité unique de créer un espace de vie en harmonie avec la nature environnante. À proximité de la forêt domaniale, vous pourrez profiter de balades revitalisantes et d’un cadre de vie agréable, tout en restant à seulement 1,2 km de la mer. Notre-Dame-de-Monts, en Vendée, est une commune attrayante qui bénéficie d’une situation géographique privilégiée, mêlant la beauté des paysages naturels à l’accessibilité des commodités. Outre sa proximité avec la plage, vous trouverez dans le bourg des commerces, des services de santé, ainsi que des activités de loisirs pour toute la famille. Avec son ambiance conviviale, cette ville du Pays de la Loire est idéale pour ceux qui recherchent un cadre de vie tranquille, tout en restant connectés à l’animation de la côte atlantique. Ne manquez pas cette occasion unique d’acquérir un terrain offrant un potentiel exceptionnel pour votre future maison dans un environnement apaisant. Contactez-nous pour plus d’informations sur cette proposition de rêve ! À noter qu’en tant que constructeur, nous ne sommes pas mandatés pour réaliser la vente de ce terrain.
Notre-Dame-de-Monts
TERRAIN ET MAISONSur ce terrain, nous vous proposons cette maison neuve : la Palluoise, une maison familiale qui s’adapte à vos besoins. Avec une surface de 130 m², cette maison spacieuse dispose de 4 chambres et de 4 pièces, idéale pour accueillir toute votre famille.La Palluoise se distingue par son garage intégré, ses baies coulissantes et sa luminosité exceptionnelle. Vous serez séduit par son grand séjour et sa cuisine semi-ouverte ou fermée, selon vos préférences. Les options les plus demandées par nos clients, telles que le plancher chauffant et la terrasse en béton poreux, sont également disponibles pour personnaliser votre maison selon vos envies.Cette maison neuve est basse consommation et conforme à la RE2020, garantissant ainsi des performances énergétiques optimales et un confort de vie inégalé. Le constructeur Maisons Privat, fort de son expérience centenaire et reconnu pour ses excellents avis clients dans la région, vous accompagne dans la réalisation de votre projet immobilier. Ne manquez pas cette opportunité unique de devenir propriétaire d’une maison moderne, économe en énergie et parfaitement adaptée à votre famille. Contactez-nous dès aujourd’hui pour plus d’informations !
Notre-Dame-de-Monts
TERRAINDécouvrez ce terrain exceptionnel de 1259 m², situé dans la charmante commune de Notre-Dame-de-Monts, en Vendée. Ce terrain plat et sablonneux réside dans un quartier calme et recherché, parfait pour réaliser votre projet de construction de maison. Avec son accès facile et son cadre paisible, il offre toutes les opportunités pour créer un espace de vie idéal pour votre famille. Notre-Dame-de-Monts, située dans la région des Pays de la Loire, est une destination prisée pour sa proximité avec la nature. À seulement 500 mètres de la forêt domaniale et à 1,2 km des magnifiques plages, vous pourrez profiter d’activités de plein air et de loisirs aquatiques tout au long de l’année. Le bourg est à 1,4 km, offrant commodités, commerces et services de proximité qui enrichiront votre cadre de vie. Cette ville dynamique est également connue pour son ambiance conviviale et son accès facile aux autres attraits de la Vendée. Ne manquez pas cette opportunité d’acquérir un terrain plein de potentiel dans un environnement exceptionnel. Envisagez votre future maison au cœur d’un cadre idyllique. À noter qu’en tant que constructeur, nous ne sommes pas mandatés pour réaliser la vente de ce terrain.
Notre-Dame-de-Monts
TERRAIN ET MAISONSur ce terrain, nous vous proposons cette maison neuve, le modèle Talmontaise, une maison de plain-pied très pratique. Choisir de construire une Talmontaise, c’est s’assurer d’avoir une maison traditionnelle fonctionnelle, de belle dimension, dans laquelle toute la famille se sentira à l’aise.Avec son pignon en façade, sa petite avancée de toiture et son auvent sur l’entrée, elle a une allure séduisante. D’une surface de 100 m², cette maison vous offrira 4 chambres, toutes équipées d’un placard, et 4 pièces au total. Entièrement personnalisable, vous disposerez également dans cette habitation d’un spacieux espace jour, comprenant un salon-séjour et sa cuisine semi-ouverte.Les caractéristiques principales de cette maison incluent une construction Basse Consommation, un porche accueillant, et des volets roulants pour plus de confort et de sécurité. De plus, les options les plus demandées par nos clients, telles que le plancher chauffant et les systèmes de chauffage par aérothermie ou géothermie, sont disponibles pour cette maison.Insistons sur le fait que cette maison neuve est basse consommation et conforme à la RE2020, garantissant ainsi des performances énergétiques optimales et un respect des normes environnementales les plus récentes.Le constructeur de cette maison est Maisons Privat, un constructeur centenaire avec les meilleurs avis clients de la région. Faites confiance à notre expertise et à notre savoir-faire pour réaliser votre projet de vie dans une maison qui allie confort, modernité et respect de l’environnement.
Notre-Dame-de-Monts
TERRAINÀ vendre, un terrain d’une superficie généreuse de 1259 m² situé dans la charmante commune de Notre-Dame-de-Monts, à proximité de la Vendée et du superbe littoral des Pays de la Loire. Ce terrain plat et sablonneux est idéal pour réaliser votre projet de construction de maison. Niché dans un quartier calme et prisé, il offre une opportunité unique d’ériger un havre de paix en toute tranquillité, tout en profitant des richesses de la région. Notre-Dame-de-Monts est une ville qui sait séduire par son environnement agréable et ses nombreuses attractions locales. À seulement 500 mètres de la forêt domaniale, vous aurez accès à des promenades revigorantes et des balades en pleine nature. De plus, la mer n’est qu’à 1,2 km, offrant ainsi un accès facile aux plaisirs balnéaires. Le bourg est également à 1,4 km, où vous trouverez diverses commodités, commerces et services de proximité qui viendront compléter votre quotidien. Ce cadre de vie agréable fait de ce terrain une opportunité à ne pas manquer. Ne laissez pas passer cette chance d’acquérir un bien au potentiel indéniable dans un cadre idyllique. Contactez-nous pour discuter de ce projet qui pourrait devenir le vôtre ! À noter qu’en tant que constructeur, nous ne sommes pas mandatés pour réaliser la vente de ce terrain.
L’actualité immobilière à Notre-Dame-de-Monts
27/11/2023
02/11/2023
30/10/2023
20/10/2023
16/10/2023
16/10/2023