Maison à construire à Villiers-Saint-Frédéric (78640)
Images
Description
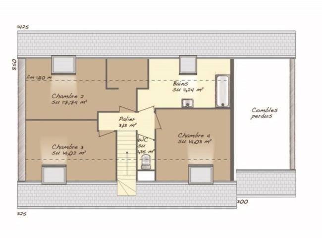
VENTE : maison F6 (117 m²) à Villiers-Saint-Frédéric
IDÉALEMENT SITUÉE - MAISON 6 PIÈCES NEUVE
En vente : au pied du Transilien N (gare de Plaisir-Grignon, 25 min de Paris), nous vous proposons cette maison de 6 pièces de plain-pied de 117 m² et de 494 m² de terrain, idéalement située dans Villiers-Saint-Frédéric (78640). Son intérieur propose quatre chambres, une cuisine et deux salles de bains.
La maison est neuve.
La maison se trouve dans un secteur attractif. L'École Élémentaire les Sablons et l'École Maternelle les Ramonettes sont implantées à moins de 10 minutes à pied. Il y a deux tennis, une bibliothèque, une boulangerie, deux commerces, une épicerie et une boucherie-charcuterie dans les environs.
Son prix de vente est de 528 400 €.
Contactez Thibault DUTEURTRE (tél : (Numéro supprimé)) pour toute information sur la maison. Maisons Balency Coignières vous accompagne dans tous vos projets immobiliers et à toutes les étapes de votre projet.
Annonce proposée par un Agent Commercial Partenaire.
Logement susceptibles de vous intéresser
Nous vous proposons de découvrir aussi cette sélection de logements situés à moins de 10km de Villiers-Saint-Frédéric et qui seraient susceptibles de vous intéresser.
Villiers-le-Mahieu
TERRAIN ET MAISONA VILLIERS-LE-MAHIEU sur un terrain de 255 m², Les Maisons Belles Demeures vous propose de réaliser cette maison neuve d'une surface de 121 m² habitables avec 3 chambres.Les Maisons Belles Demeures vous propose les prestations suivantes :- Plan sur-mesure et personnalisé de 2 à 6 chambres- Mode de chauffage au choix- Grands choix d'équipements et de prestations- Matériaux de qualité selon les normes en vigueur- Accompagnement dans le choix et l’acquisition du terrain- Construction conforme à la nouvelle RE 2020 Demandez une étude gratuite et personnalisée de votre projet de construction !Contactez Francis VILLAUME au (Numéro supprimé) ou au (Numéro supprimé) (Les Maisons Belles Demeures – Siège de Rouvres Saint Jean).Prix avec assurance dommages-ouvrage comprise, VRD non compris, terrain viabilisé, adaptation non comprise, assainissement non compris, frais de notaire non compris, taxes non comprises, frais divers non compris. Terrain sélectionné et vu pour vous sous réserve de disponibilité et au prix indiqué par notre partenaire foncier. Conditions et visuels non contractuels.Cette annonce a été créée et diffusée avec le logiciel VITAHOME.
Villiers-le-Mahieu
TERRAINPrix : 89899 €.Sur ce terrain de 255 m² à VILLIERS-LE-MAHIEU, Les Maisons Belles Demeures vous propose de réaliser votre projet de construction de maison individuelle.Les Maisons Belles Demeures propose de construire votre maison neuve avec toutes les prestations suivantes :- Plan sur-mesure et personnalisé de 2 à 6 chambres- Mode de chauffage au choix- Grands choix d'équipements et de prestations- Matériaux de qualité selon les normes en vigueur- Accompagnement dans le choix et l’acquisition du terrain- Construction conforme à la nouvelle RE 2020Demandez une étude gratuite et personnalisée de votre projet de construction sur ce terrain !Contactez Francis VILLAUME au (Numéro supprimé) ou au (Numéro supprimé) (Les Maisons Belles Demeures – Agence de Longpont).Prix hors frais de notaire. Terrain sélectionné et vu pour vous sous réserve de disponibilité et au prix indiqué par notre partenaire foncier. Conditions et visuels non contractuels.Cette annonce a été créée et diffusée avec le logiciel VITAHOME.
Plaisir
TERRAINVENTE d’un terrain de 280 m² à PlaisirEMPLACEMENT PRIVILÉGIÉ – VUE SANS VIS-À-VISProche de la gare de Plaisir-Les Clayes (Paris à 45 min par le Transilien N) à Plaisir (78370), terrain de 280 m². Réalisez-y votre résidence principale ou secondaire. Il profite d’une vue sans vis-à-vis. Dans un secteur convoité, ce terrain bénéficiant d’un emplacement privilégié est proche des commerces et des écoles. Plusieurs écoles (maternelle, élémentaire et collège) sont implantées à moins de 10 minutes à pied. Niveau transports en commun, il y a la ligne de RER C (Saint-Quentin-En-Yvelines) ainsi que 17 gares à moins de 10 minutes en voiture. On trouve une bibliothèque, un tennis, quatre commerces, deux boulangeries, un bureau de poste et une épicerie à quelques minutes. Enfin, le marché Rue Docteur Alexander Fleming anime les environs.Ce terrain est à vendre pour la somme de 230 000 €. Contactez Charles ZAGDANSKI ((Numéro supprimé)) pour tout renseignement sur le terrain, sur les démarches à suivre ou sur les modalités de vente.
Montfort-l'Amaury
TERRAINVENTE : terrain de 300 m² à Montfort-l’AmauryEMPLACEMENT PRIVILÉGIÉ – VUE SANS VIS-À-VISÀ proximité du Transilien N (gare de Montfort-l’Amaury-Méré, 35 min de Paris) à Montfort-l’Amaury (78490), terrain de 300 m². Réalisez-y votre résidence principale ou secondaire. Il profite d’une vue sans vis-à-vis. Dans un secteur prisé, ce terrain bénéficiant d’un emplacement privilégié est proche des écoles et des commerces. Deux établissements scolaires sont implantés à moins de 10 minutes à pied, tout comme dont le Collège Maurice Ravel. Côté transports, on trouve sept gares à moins de 10 minutes en voiture. Il y a un bassin de natation, un tennis, une bibliothèque, des commerces, trois boulangeries, trois épiceries, deux boucheries-charcuteries et un bureau de poste à proximité du bien.Son prix de vente est de 190 000 €. Contactez notre agence (Charles ZAGDANSKI : (Numéro supprimé)) pour toute information sur le terrain, sur les démarches à suivre ou sur les modalités de vente.
Plaisir
TERRAIN ET MAISONMaison de 6 pièces (100 m²) à vendre à PlaisirEMPLACEMENT PRIVILÉGIÉ – MAISON 6 PIÈCES NEUVEÀ côté du Transilien N (gare de Plaisir-Les Clayes, 45 min de Paris), nous vous proposons en vente, bénéficiant d’un emplacement privilégié dans Plaisir (78370), cette maison de 6 pièces de 100 m² et de 280 m² de terrain sans vis-à-vis. Son intérieur comporte quatre chambres, une cuisine et une salle de bains.Cette maison possède 2 niveaux. Elle est neuve.La maison se trouve dans un quartier recherché. Il y a plusieurs établissements scolaires (maternelle, élémentaire et collège) à moins de 10 minutes à pied. Niveau transports, on trouve la ligne de RER C (Saint-Quentin-En-Yvelines) ainsi que 17 gares à moins de 10 minutes en voiture. Il y a une bibliothèque, un tennis, quatre commerces, deux boulangeries, une épicerie et un bureau de poste à proximité. Le marché Rue Docteur Alexander Fleming anime le quartier.Elle est à vendre pour la somme de 430 000 €.Prenez contact avec Charles ZAGDANSKI (tél : (Numéro supprimé)) pour tout renseignement sur la maison, sur les démarches à suivre ou sur les modalités de vente. Faites de vos projets immobiliers une réalité avec Maisons France Confort Jouars-Pontchartrain.
Plaisir
TERRAIN ET MAISONVENTE d’une maison T5 (98 m²) à PlaisirEMPLACEMENT PRIVILÉGIÉ – MAISON 5 PIÈCES NEUVEÀ vendre : à quelques minutes de la gare de Plaisir-Les Clayes (Paris à 45 min avec le Transilien N), nous sommes ravis de vous présenter cette maison de 5 pièces de 98 m² et de 280 m² de terrain bénéficiant d’un emplacement privilégié dans Plaisir (78370).C’est une maison de 2 niveaux. Elle offre quatre chambres, une cuisine et une salle de bains. La maison est neuve.Cette maison se trouve dans un secteur recherché. Plusieurs établissements scolaires (maternelle, élémentaire et collège) sont implantés à moins de 10 minutes à pied. Côté transports, on trouve la ligne de RER C (Saint-Quentin-En-Yvelines) ainsi que 17 gares à moins de 10 minutes en voiture. Il y a une bibliothèque, un tennis, quatre commerces, deux boulangeries, un bureau de poste et une épicerie à proximité. Le marché Rue Docteur Alexander Fleming anime les environs.Elle est à vendre pour la somme de 390 000 €.Contactez notre agence (ZAGDANSKI Charles : (Numéro supprimé)) pour obtenir de plus amples informations sur le bien ou sur les modalités de vente.
Plaisir
TERRAIN ET MAISONVENTE : maison de 4 pièces (60 m²) à PlaisirEMPLACEMENT PRIVILÉGIÉ – MAISON 4 PIÈCES NEUVEAu pied de la gare de Plaisir-Les Clayes (Paris à 45 min avec le Transilien N), nous vous présentons à vendre, bénéficiant d’un emplacement privilégié dans Plaisir (78370), cette maison de 4 pièces de plain-pied de 60 m² et de 280 m² de terrain.Son intérieur comporte deux chambres, une cuisine et une salle de bains. Cette maison est neuve.Ce bien se trouve dans un quartier attractif. Il y a plusieurs établissements scolaires (maternelle, élémentaire et collège) à moins de 10 minutes à pied. Niveau transports en commun, on trouve la ligne de RER C (Saint-Quentin-En-Yvelines) ainsi que 17 gares à moins de 10 minutes en voiture. Il y a une bibliothèque, un tennis, quatre commerces, deux boulangeries, une épicerie et un bureau de poste dans les environs. Enfin, le marché Rue Docteur Alexander Fleming anime le quartier.Son prix de vente est de 340 000 €.Contactez notre agence (Charles ZAGDANSKI : (Numéro supprimé)) pour obtenir de plus amples renseignements sur la maison. Maisons France Confort Jouars-Pontchartrain est là pour vous accompagner dans tous vos projets immobiliers.
Montfort-l'Amaury
TERRAIN ET MAISONVENTE d’une maison de 6 pièces (100 m²) à Montfort-l’AmauryEMPLACEMENT PRIVILÉGIÉ – MAISON 6 PIÈCES NEUVEAu pied du Transilien N (gare de Montfort-l’Amaury-Méré, 35 min de Paris), en vente bénéficiant d’un emplacement privilégié dans Montfort-l’Amaury (78490), Maisons France Confort Jouars-Pontchartrain vous présente cette maison de 6 pièces de 100 m² et de 300 m² de terrain sans vis-à-vis. Elle propose quatre chambres, une cuisine et une salle de bains.Il s’agit d’une maison de 2 niveaux. Elle est neuve.La maison se trouve dans un secteur attractif. Deux établissements scolaires sont implantés à moins de 10 minutes à pied, tout comme, parmi lesquels le Collège Maurice Ravel. Niveau transports, il y a sept gares à moins de 10 minutes en voiture. On trouve un bassin de natation, un tennis, une bibliothèque, des commerces, trois boulangeries, deux boucheries-charcuteries, un bureau de poste et trois épiceries à proximité du logement.Son prix de vente est de 370 000 €.Prenez contact avec notre agence (ZAGDANSKI Charles : (Numéro supprimé)) pour plus d’informations sur la maison ou sur les modalités de vente. Maisons France Confort Jouars-Pontchartrain vous accompagne dans toutes vos démarches et dans tous vos projets immobiliers.
Montfort-l'Amaury
TERRAIN ET MAISONMaison F7 (120 m²) à vendre à Montfort-l’AmauryEMPLACEMENT PRIVILÉGIÉ – MAISON 7 PIÈCES NEUVEÀ proximité du Transilien N (gare de Montfort-l’Amaury-Méré, 35 min de Paris), nous vous proposons cette maison de 7 pièces de 120 m² et de 300 m² de terrain bénéficiant d’un emplacement privilégié dans Montfort-l’Amaury (78490).C’est une maison de 2 niveaux. Elle inclut cinq chambres, une cuisine et deux salles de bains. Cette maison est neuve.La maison se trouve dans un secteur attractif. Il y a deux établissements scolaires à moins de 10 minutes à pied et, comme le Collège Maurice Ravel. Niveau transports, on trouve sept gares à moins de 10 minutes en voiture. On trouve un bassin de natation, un tennis, une bibliothèque, des commerces, trois boulangeries, trois épiceries, deux boucheries-charcuteries et un bureau de poste dans les environs.Elle est proposée à l’achat pour 399 000 €.Prenez contact avec notre agence (ZAGDANSKI Charles : (Numéro supprimé)) pour obtenir de plus amples informations sur le bien ou sur les démarches à suivre. Maisons France Confort Jouars-Pontchartrain vous accompagne dans tous vos projets immobiliers et à toutes les étapes de l’achat.
L’actualité immobilière à Villiers-Saint-Frédéric
27/11/2023
02/11/2023
30/10/2023
20/10/2023
16/10/2023
16/10/2023