Maison à construire à Confrançon (01310)
Images
Description
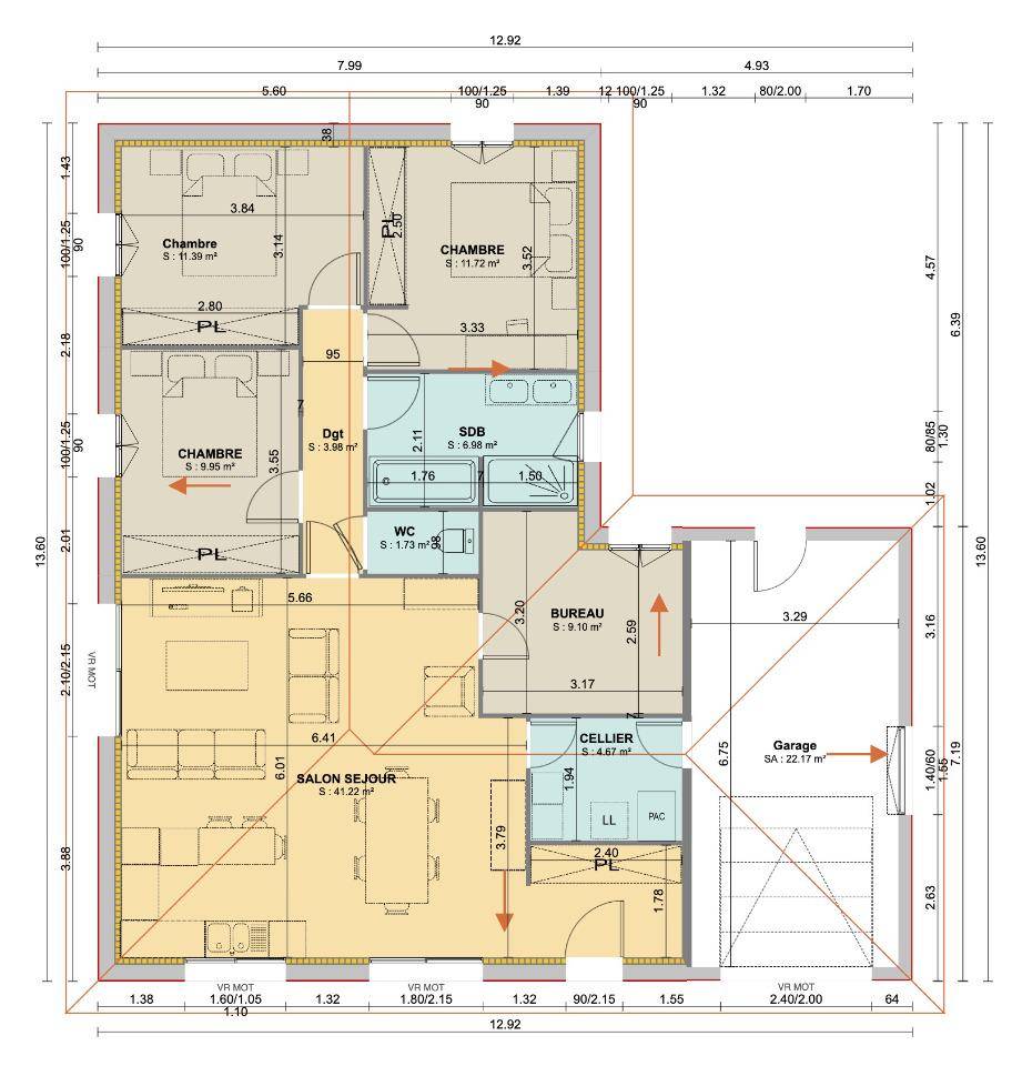
VENTE d'une maison de 5 pièces (100 m²) à Confrançon
PROCHE DE BOURG-EN-BRESSE - MAISON 5 PIÈCES NEUVE
En vente à quelques kilomètres de Bourg-en-Bresse, venez découvrir cette maison de 5 pièces de plain-pied de 100 m² et de 695 m² de terrain à Confrançon (01310).
Elle propose quatre chambres, une cuisine et une salle de bains. La maison est neuve.
Une école primaire est implantée dans le quartier. Côté transports, il y a les gares Mézériat, Polliat et Vonnas à moins de 10 minutes en voiture. On trouve un accès à l'autoroute A40 à 4 km. On trouve un tennis et une bibliothèque dans les environs.
Son prix de vente est de 265 000 €.
Contactez Sébastien GABRILLARGUES ((Numéro supprimé)) pour toute information sur la maison ou sur les démarches à suivre. Maisons France Confort Bourg-en-Bresse vous accompagne dans tous vos projets immobiliers et à toutes les étapes de l'achat.
Annonce proposée par un Agent Commercial Partenaire.
Logement susceptibles de vous intéresser
Nous vous proposons de découvrir aussi cette sélection de logements situés à moins de 10km de Confrançon et qui seraient susceptibles de vous intéresser.
Saint-Cyr-sur-Menthon
TERRAINMaisons France Confort, plus de 100 ans d’expérience dans la construction de maisons individuelles, vous présente cette très belle parcelle de terrain plate et hors lotissement de près de 1300 m2 située dans un quartier résidentiel de St Cyr au fond d’une impasse. Environnement dégagé et sans vis-à-vis, centre du village à 500 m avec école primaire, boulangerie et autres commerces, accès à l’autoroute A40 (direction Bourg – Lons – Pont d’Ain – Genève) à moins de 5 minutes, autoroute A6 et gare de Mâcon Loché en 15 minutes, centre de Bourg-en-Bresse et de Mâcon en 20 minutes. Sa forme rectangulaire permet une meilleure exploitation, idéal pour une maison de plain-pied avec de l’espace autour.Terrain à viabiliser avec assainissement individuel à prévoir.Points forts construction : une Maison entièrement dessinée sur mesure, matériaux de très grande qualité avec un cahier des charges technique optimum, rapport qualité prix très compétitif, garanties bancaires sans équivalent sécurisant votre investissement et assurances construction parmi les meilleures.Fort de son expérience sans équivalent, Maisons France Confort vous accompagne dans l’intégralité de votre projet afin de vous aider à chiffrer tous les frais annexes de votre construction et vous permettre d’aller jusqu’à la remise des clés en toute sérénité.Ref SG 2576Annonce proposée par un Agent Commercial Partenaire.
Saint-Cyr-sur-Menthon
TERRAIN ET MAISONVENTE d’une maison de 3 pièces (75 m²) à Saint-Cyr-sur-MenthonPROCHE DE BOURG-EN-BRESSE – MAISON 3 PIÈCES NEUVEÀ 23 km de Bourg-en-Bresse, nous sommes ravis de vous présenter cette maison de 3 pièces de plain-pied de 75 m² et de 1 285 m² de terrain en vente à Saint-Cyr-sur-Menthon (01380).Son intérieur compte deux chambres, une cuisine et une salle de bains. Cette maison est neuve.Il y a une école primaire dans le quartier et une structure d’accueil pour les enfants en bas âge. Niveau transports en commun, on trouve les gares Vonnas, Pont-de-Veyle et Mézériat à moins de 10 minutes en voiture. Les autoroutes A40 et A406 sont accessibles à moins de 8 km. Il y a un tennis, une bibliothèque, une boulangerie et une supérette à proximité du bien.Son prix de vente est de 232 000 €.Prenez contact avec notre agence (Sébastien GABRILLARGUES : (Numéro supprimé)) pour toute question sur cette maison ou sur les modalités de vente. Maisons France Confort Bourg-en-Bresse vous accompagne à toutes les étapes de votre projet et dans tous vos projets immobiliers.Annonce proposée par un Agent Commercial Partenaire.
Saint-Cyr-sur-Menthon
TERRAIN ET MAISONVENTE d’une maison de 4 pièces (87 m²) à Saint-Cyr-sur-MenthonMAISON 4 PIÈCES NEUVE – PROCHE DE BOURG-EN-BRESSEEn vente : à deux pas de Bourg-en-Bresse, nous sommes heureux de vous présenter à Saint-Cyr-sur-Menthon (01380), cette maison de 4 pièces de plain-pied de 87 m² et de 1 285 m² de terrain.Son intérieur propose trois chambres, une cuisine et une salle de bains. La maison est neuve.On trouve une école primaire dans le quartier et une structure d’accueil pour les enfants en bas âge. Côté transports en commun, il y a trois gares (Vonnas, Pont-de-Veyle et Mézériat) à moins de 10 minutes en voiture. Les autoroutes A40 et A406 sont accessibles à moins de 8 km. On trouve un tennis, une bibliothèque, une boulangerie et une supérette à proximité.Son prix de vente est de 255 000 €.N’hésitez pas à prendre contact avec Sébastien GABRILLARGUES (tél : (Numéro supprimé)) pour toute information sur la maison, sur les modalités de vente ou sur les démarches à suivre.Annonce proposée par un Agent Commercial Partenaire.
Saint-Cyr-sur-Menthon
TERRAIN ET MAISONMaison de 5 pièces (136 m²) à vendre à Saint-Cyr-sur-MenthonMAISON 5 PIÈCES NEUVE – PROCHE DE BOURG-EN-BRESSEEn vente à quelques kilomètres de Bourg-en-Bresse, nous sommes heureux de vous présenter cette maison de 5 pièces de plain-pied de 136 m² à Saint-Cyr-sur-Menthon (01380).Conçue de plain-pied, elle inclut quatre chambres, une cuisine et deux salles de bains. La maison est neuve.Le terrain de la propriété est de 1 285 m².Il y a une école primaire dans le quartier et une structure d’accueil pour les tout-petits. Côté transports en commun, on trouve les gares Vonnas, Pont-de-Veyle et Mézériat à moins de 10 minutes en voiture. Les autoroutes A40 et A406 sont accessibles à moins de 8 km. Il y a un tennis, une bibliothèque, une boulangerie et une supérette dans les environs.Elle est à vendre pour la somme de 393 500 €.N’hésitez pas à prendre contact avec Sébastien GABRILLARGUES (tél : (Numéro supprimé)) pour obtenir de plus amples renseignements sur la maison, sur les démarches à suivre ou sur les modalités de vente. Maisons France Confort Bourg-en-Bresse est là pour vous accompagner à toutes les étapes de votre projet.Annonce proposée par un Agent Commercial Partenaire.
Saint-Cyr-sur-Menthon
TERRAIN ET MAISONMaison T5 (125 m²) en vente à Saint-Cyr-sur-MenthonMAISON 5 PIÈCES AVEC BALCON – NEUVEÀ 23 km de Bourg-en-Bresse, en vente à Saint-Cyr-sur-Menthon (01380), nous sommes ravis de vous présenter cette maison de 5 pièces de 125 m² et de 1 285 m² de terrain. Son intérieur compte quatre chambres, une cuisine et trois salles de bains.Jouissez d’espace extérieur pour gagner en confort avec un balcon.Cette maison possède 2 niveaux. Elle est neuve.On trouve une école primaire dans le quartier et une crèche. Niveau transports, il y a trois gares (Vonnas, Pont-de-Veyle et Mézériat) à moins de 10 minutes en voiture. Les autoroutes A40 et A406 sont accessibles à moins de 8 km. On trouve un tennis, une bibliothèque, une boulangerie et une supérette à quelques minutes du logement.Son prix de vente est de 359 500 €.Contactez Sébastien GABRILLARGUES (tél : (Numéro supprimé)) pour tout renseignement sur la maison. Maisons France Confort Bourg-en-Bresse vous accompagne à toutes les étapes de l’achat et dans tous vos projets immobiliers.Annonce proposée par un Agent Commercial Partenaire.
Attignat
TERRAINPour votre projet avec Maisons France Confort, plus de 100 ans d’expérience dans la construction de maisons individuelles, très belle parcelle de terrain plate de plus de 600 m2, entièrement viabilisée avec tout à l’égout, située dans un joli programme au coeur d’Attignat. Le terrain à bâtir est dans un quartier calme, à moins de 500 m du centre du village, avec école primaire, tous commerces,…..et avec de très nombreuses associations sportives dont la plupart sont à proximité du terrain.Accès à l’autoroute A40 en moins de 5 minutes, Hopital Fleyriat en 10 minutes, centre ville et gare de Bourg en 15 minutes. Mâcon est à 25 minutes par l’autoroute.Points forts construction : une Maison entièrement dessinée sur mesure, matériaux de très grande qualité avec un cahier des charges technique optimum, rapport qualité prix très compétitif, garanties bancaires sans équivalent sécurisant votre investissement et assurances construction parmi les meilleures.Fort de son expérience sans équivalent, Maisons France Confort vous accompagne dans l’intégralité de votre projet afin de vous aider à chiffrer tous les frais annexes de votre construction et vous permettre d’aller jusqu’à la remise des clés en toute sérénité.Ref SG 2570Annonce proposée par un Agent Commercial Partenaire.
Attignat
TERRAIN ET MAISONVENTE d’une maison F4 (104 m²) à AttignatPROCHE DE BOURG-EN-BRESSE – MAISON 4 PIÈCES NEUVEEn vente : à deux pas de Bourg-en-Bresse, à Attignat (01340), Maisons France Confort Bourg-en-Bresse vous propose cette maison de 4 pièces de plain-pied de 104 m² et de 603 m² de terrain.Son intérieur se divise en trois chambres, une cuisine et une salle de bains. La maison est neuve.Il y a des établissements scolaires maternelles et élémentaires à moins de 10 minutes à pied et dont l’École Primaire Privée. Niveau transports, on trouve la gare Polliat à moins de 10 minutes en voiture. Les autoroutes A40 et A39 sont accessibles à moins de 8 km. Il y a un tennis, trois commerces, deux boulangeries, une supérette et une boucherie-charcuterie dans les environs.Elle est proposée à l’achat pour 312 000 €.Contactez Sébastien GABRILLARGUES (tél : (Numéro supprimé)) pour toute information sur cette maison.Annonce proposée par un Agent Commercial Partenaire.
Attignat
TERRAIN ET MAISONVENTE d’une maison F4 (117 m²) à AttignatMAISON 4 PIÈCES NEUVE – PROCHE DE BOURG-EN-BRESSEEn vente : localisée à deux pas de Bourg-en-Bresse, notre agence Maisons France Confort Bourg-en-Bresse est ravie de vous proposer cette maison de 4 pièces de plain-pied de 117 m² et de 603 m² de terrain à Attignat (01340).Elle compte trois chambres, une cuisine et deux salles de bains. Cette maison est neuve.Il y a des écoles maternelles et élémentaires à moins de 10 minutes à pied et dont l’École Primaire Privée. Côté transports, on trouve la gare Polliat à moins de 10 minutes en voiture. Les autoroutes A40 et A39 sont accessibles à moins de 8 km. Il y a un tennis, trois commerces, deux boulangeries, une boucherie-charcuterie et une supérette dans les environs.Son prix de vente est de 349 500 €.Contactez notre constructeur (Sébastien GABRILLARGUES : (Numéro supprimé)) pour toute question sur cette maison, sur les modalités de vente ou sur les démarches à suivre. Maisons France Confort Bourg-en-Bresse est là pour vous accompagner à toutes les étapes de l’achat.Annonce proposée par un Agent Commercial Partenaire.
Attignat
TERRAIN ET MAISONVENTE d’une maison de 5 pièces (100 m²) à AttignatMAISON 5 PIÈCES NEUVE – PROCHE DE BOURG-EN-BRESSEÀ 10 km de Bourg-en-Bresse, votre agence Maisons France Confort Bourg-en-Bresse est ravie de vous présenter cette maison de 5 pièces de plain-pied de 100 m² et de 603 m² de terrain à Attignat (01340).Conçue de plain-pied, elle dispose de quatre chambres, d’une cuisine et d’une salle de bains. La maison est neuve.Il y a des écoles maternelles et élémentaires à moins de 10 minutes à pied et, comme l’École Primaire Privée. Côté transports, on trouve la gare Polliat à moins de 10 minutes en voiture. Les autoroutes A40 et A39 sont accessibles à moins de 8 km. Il y a un tennis, trois commerces, deux boulangeries, une boucherie-charcuterie et une supérette à proximité de la maison.Son prix de vente est de 296 000 €.Prenez contact avec notre constructeur (GABRILLARGUES Sébastien : (Numéro supprimé)) pour toute question sur cette maison. Maisons France Confort Bourg-en-Bresse vous accompagne dans tous vos projets immobiliers et dans toutes vos démarches.Annonce proposée par un Agent Commercial Partenaire.
L’actualité immobilière à Confrançon
27/11/2023
02/11/2023
30/10/2023
20/10/2023
16/10/2023
16/10/2023