Images
Description
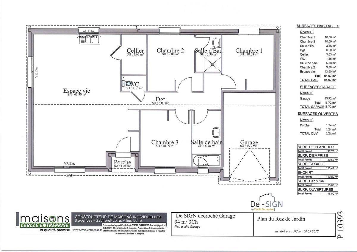
Nous vous proposons cette maison neuve, baptisée ""Nymphea"", un modèle de plain-pied qui incarne l'harmonie parfaite entre confort intérieur et respect de l'environnement. Avec une surface habitable de 94 m², cette maison est conçue pour répondre aux attentes des familles modernes, offrant 3 chambres spacieuses et un total de 4 pièces bien agencées pour maximiser l'espace et la luminosité.
La Nymphea se distingue par son agencement pensé pour le bien-être de ses occupants. Elle comprend une suite parentale avec salle d'eau privative, offrant un espace intime et confortable. Les deux autres chambres, indépendantes, sont idéalement situées pour préserver l'intimité de chacun, et sont complétées par une salle de bains attenante, garantissant fonctionnalité et confort au quotidien.
Ce modèle est conçu pour s'adapter parfaitement à votre parcelle, grâce à sa conception réversible qui permet d'optimiser l'orientation selon l'accès et l'ensoleillement, assurant ainsi une maison lumineuse et chaleureuse. La liaison entre l'intérieur et l'extérieur est soigneusement étudiée pour offrir un cadre de vie agréable et ouvert sur la nature.
L'un des atouts majeurs de la Nymphea est son engagement envers l'environnement. Cette maison neuve est basse consommation et répond aux exigences de la norme RE2020, vous assurant ainsi des économies d'énergie significatives et un confort optimal en toutes saisons. En choisissant Nymphea, vous optez pour une habitation respectueuse de l'environnement, sans compromis sur le confort et la qualité de vie.
La Nymphea vous est proposée à un prix compétitif, offrant l'essentiel du confort moderne et une qualité de construction irréprochable. C'est une invitation à vivre dans une maison qui respecte à la fois vos exigences de confort et votre engagement pour un mode de vie durable.
Découvrez la Nymphea, la maison de plain-pied qui allie élégance, confort et responsabilité environnementale, pour créer un foyer chaleureux et accueillant pour vous
Logement susceptibles de vous intéresser
Nous vous proposons de découvrir aussi cette sélection de logements situés à moins de 10km de Confrançon et qui seraient susceptibles de vous intéresser.
Confrançon
TERRAIN ET MAISONNous vous proposons cette maison neuve, baptisée « »Nymphea » », un modèle de plain-pied qui incarne l’harmonie parfaite entre confort intérieur et respect de l’environnement. Avec une surface habitable de 94 m², cette maison est conçue pour répondre aux attentes des familles modernes, offrant 3 chambres spacieuses et un total de 4 pièces bien agencées pour maximiser l’espace et la luminosité.La Nymphea se distingue par son agencement pensé pour le bien-être de ses occupants. Elle comprend une suite parentale avec salle d’eau privative, offrant un espace intime et confortable. Les deux autres chambres, indépendantes, sont idéalement situées pour préserver l’intimité de chacun, et sont complétées par une salle de bains attenante, garantissant fonctionnalité et confort au quotidien.Ce modèle est conçu pour s’adapter parfaitement à votre parcelle, grâce à sa conception réversible qui permet d’optimiser l’orientation selon l’accès et l’ensoleillement, assurant ainsi une maison lumineuse et chaleureuse. La liaison entre l’intérieur et l’extérieur est soigneusement étudiée pour offrir un cadre de vie agréable et ouvert sur la nature.L’un des atouts majeurs de la Nymphea est son engagement envers l’environnement. Cette maison neuve est basse consommation et répond aux exigences de la norme RE2020, vous assurant ainsi des économies d’énergie significatives et un confort optimal en toutes saisons. En choisissant Nymphea, vous optez pour une habitation respectueuse de l’environnement, sans compromis sur le confort et la qualité de vie.La Nymphea vous est proposée à un prix compétitif, offrant l’essentiel du confort moderne et une qualité de construction irréprochable. C’est une invitation à vivre dans une maison qui respecte à la fois vos exigences de confort et votre engagement pour un mode de vie durable.Découvrez la Nymphea, la maison de plain-pied qui allie élégance, confort et responsabilité environnementale, pour créer un foyer chaleureux et accueillant pour vous
Confrançon
TERRAINBienvenue dans le charmant village de Confrançon, où se trouve ce terrain exceptionnel à vendre. Avec une superficie de 680 m² environ, il offre aux futurs propriétaires une occasion unique de construire la maison de leurs rêves dans un cadre paisible et verdoyant. Situé dans le département de l’Ain, dans la région Auvergne-Rhône-Alpes, le terrain est idéalement situé à proximité de toutes les commodités nécessaires. Les écoles, les commerces et les services médicaux sont facilement accessibles, offrant ainsi un cadre de vie pratique pour toute la famille. Ce terrain bénéficie également d’un environnement privilégié avec des paysages magnifiques et des attractions locales telles que le château de Confrançon et la rivière Ain. Les amateurs de plein air pourront profiter de nombreuses activités telles que la randonnée, le vélo et la pêche à proximité. Avec tous ces atouts, ce terrain est une belle opportunité pour construire votre futur foyer dans un cadre champêtre et paisible. Il est viabilisé et prêt à accueillir votre projet de construction. Ne manquez pas cette occasion unique d’acquérir un terrain dans un cadre idéal. Contactez-nous dès aujourd’hui pour en savoir plus ! »
Polliat
TERRAIN ET MAISONPolliat : maison F4 (85 m²) à vendreMAISON 4 PIÈCES NEUVE – PROCHE DE BOURG-EN-BRESSEEn vente : à 10 km de Bourg-en-Bresse, nous vous présentons cette maison de 4 pièces de 85 m² à Polliat (01310).Il s’agit d’une maison de 2 niveaux. Elle compte trois chambres, une cuisine et une salle de bains. La maison est neuve.Le terrain de la propriété est de 438 m².Des établissements scolaires maternelles et élémentaires sont implantés dans le quartier. Côté transports en commun, il y a la gare Polliat à moins de 10 minutes à pied. Les autoroutes A40 et A39 sont accessibles à moins de 10 km. On trouve un tennis, une bibliothèque, une boulangerie, un commerce, un supermarché, un bureau de poste et trois boucheries-charcuteries à quelques minutes.Son prix de vente est de 245 500 €.Contactez Sébastien GABRILLARGUES ((Numéro supprimé)) pour obtenir de plus amples informations sur la maison, sur les démarches à suivre ou sur les modalités de vente.Annonce proposée par un Agent Commercial Partenaire.
Polliat
TERRAIN ET MAISONMaison T4 (89 m²) en vente à PolliatPROCHE DE BOURG-EN-BRESSE – MAISON 4 PIÈCES NEUVEEn vente : localisée à 10 km de Bourg-en-Bresse, votre agence Maisons France Confort Bourg-en-Bresse est heureuse de vous proposer à Polliat (01310), cette maison de 4 pièces de plain-pied de 89 m² et de 438 m² de terrain. Son intérieur offre trois chambres, une cuisine et une salle de bains.Cette maison est neuve.Des écoles maternelles et élémentaires sont implantées dans le quartier. Côté transports en commun, il y a la gare Polliat à moins de 10 minutes à pied. Les autoroutes A40 et A39 sont accessibles à moins de 10 km. On trouve un tennis, une bibliothèque, une boulangerie, un commerce, un supermarché, trois boucheries-charcuteries et un bureau de poste à proximité du bien.Elle est à vendre pour la somme de 249 800 €.Contactez notre constructeur (GABRILLARGUES Sébastien : (Numéro supprimé)) pour tout renseignement sur la maison, sur les modalités de vente ou sur les démarches à suivre. Maisons France Confort Bourg-en-Bresse est là pour vous accompagner à toutes les étapes de l’achat.Annonce proposée par un Agent Commercial Partenaire.
Polliat
TERRAINMaisons France Confort, plus de 100 ans d’expérience dans la construction de maisons individuelles, vous présente cette très belle parcelle de terrain plate et entièrement viabilisée avec tout à l’égout de près de 450 m2.Emplacement idéal en plein coeur de Polliat, dans un quartier résidentiel à 200 mètres du centre qui possède tous les commerces de proximité (boulangerie, boucherie, tabac presse,….), à 200 m du supermarché, de la pharmacie, des cabinets médicaux, écoles maternelle et primaire et de la gare ferroviaire…. Tout se fait à pied. Bourg est à moins de 10 minutes, l’accès autoroute A40 est à 5 minutes, la gare ferroviaire de Bourg à 12 minutes. Points forts construction : une Maison entièrement dessinée sur mesure, matériaux de très grande qualité avec un cahier des charges technique optimum, rapport qualité prix très compétitif, garanties bancaires sans équivalent sécurisant votre investissement et assurances construction parmi les meilleures.Fort de son expérience sans équivalents, Maisons France Confort vous accompagne dans l’intégralité de votre projet afin de vous aider à chiffrer tous les frais annexes de votre construction et vous permettre d’aller jusqu’à la remise des clés en toute sérénité.Ref SG 2584Annonce proposée par un Agent Commercial Partenaire.
Polliat
TERRAIN ET MAISONPolliat : maison de 2 pièces (50 m²) en ventePROCHE DE BOURG-EN-BRESSE – MAISON 2 PIÈCES NEUVEÀ quelques kilomètres de Bourg-en-Bresse, en vente à Polliat (01310), nous vous présentons cette maison de 2 pièces de plain-pied de 50 m² et de 438 m² de terrain.Elle inclut deux chambres, une cuisine et une salle de bains. Cette maison est neuve.Des établissements scolaires primaires sont implantés dans le quartier. Niveau transports, il y a la gare Polliat à moins de 10 minutes à pied. Les autoroutes A40 et A39 sont accessibles à moins de 10 km. On trouve un tennis, une bibliothèque, une boulangerie, un commerce, un supermarché, un bureau de poste et trois boucheries-charcuteries à proximité du logement.Elle est à vendre pour la somme de 179 500 €.Contactez notre agence (Sébastien GABRILLARGUES : (Numéro supprimé)) pour tout renseignement sur la maison, sur les démarches à suivre ou sur les modalités de vente. Maisons France Confort Bourg-en-Bresse est là pour vous accompagner à toutes les étapes de votre projet.Annonce proposée par un Agent Commercial Partenaire.
Polliat
TERRAIN ET MAISONPolliat : maison T3 (72 m²) à vendrePROCHE DE BOURG-EN-BRESSE – MAISON 3 PIÈCES NEUVEEn vente : à deux pas de Bourg-en-Bresse, Maisons France Confort Bourg-en-Bresse vous présente à Polliat (01310), cette maison de 3 pièces de plain-pied de 72 m² et de 438 m² de terrain.Son intérieur inclut deux chambres, une cuisine et une salle de bains. Cette maison est neuve.Il y a des établissements scolaires primaires dans le quartier. Côté transports, on trouve la gare Polliat à moins de 10 minutes à pied. Les autoroutes A40 et A39 sont accessibles à moins de 10 km. Il y a un tennis, une bibliothèque, une boulangerie, un commerce, un supermarché, un bureau de poste et trois boucheries-charcuteries à quelques minutes de la maison.Elle est proposée à l’achat pour 219 800 €.Prenez contact avec Sébastien GABRILLARGUES ((Numéro supprimé)) pour tout renseignement sur la maison, sur les démarches à suivre ou sur les modalités de vente.Annonce proposée par un Agent Commercial Partenaire.
Attignat
TERRAINSitué sur la commune d’Attignat, à proximité immédiate de l’entrée d’autoroute et du centre du village, tout en étant préservé de toute nuisance, ce terrain constructible d’environ 950 m² offre un cadre idéal pour votre projet de construction. Entièrement plat, clos et arboré, il bénéficie d’un environnement agréable et intimiste. La parcelle dispose également d’un puits, un atout appréciable pour l’arrosage ou d’autres usages. Les réseaux sont en bordure, facilitant ainsi la viabilisation, et l’assainissement sera à prévoir en individuel. De plus, vous bénéficiez du libre choix de votre constructeur, pour concevoir la maison de vos rêves selon vos envies. Prix de vente : 69 000 E (honoraires de l’agence inclus à la charge du vendeur). « Les informations sur les risques auxquels ce bien est exposé sont disponibles sur le site Géorisques : www.géorisques.gouv.fr »Pour plus d’informations, téléphonez à Sylvain BRIDON (Agent commercial RSAC N(Numéro supprimé) greffe de Bourg en Bresse), Agence ImmoBresse au (Numéro supprimé) ou (Numéro supprimé), retrouvez également cette annonce et toutes les annonces d’ImmoBresse sur (Site supprimé)
Polliat
TERRAIN ET MAISONPolliat : maison de 4 pièces (117 m²) en venteMAISON 4 PIÈCES NEUVE – PROCHE DE BOURG-EN-BRESSEÀ vendre : à deux pas de Bourg-en-Bresse, nous vous proposons cette maison de 4 pièces de plain-pied de 117 m² à Polliat (01310). Conçue de plain-pied, elle dispose de trois chambres, d’une cuisine et de deux salles de bains.Le terrain de la maison est de 1 331 m².Cette maison est neuve.Il y a des écoles primaires dans le quartier. Niveau transports en commun, on trouve la gare Polliat à moins de 10 minutes à pied. Les autoroutes A40 et A39 sont accessibles à moins de 10 km. Il y a un tennis, une bibliothèque, une boulangerie, un commerce, un supermarché, un bureau de poste et trois boucheries-charcuteries dans les environs.Elle est proposée à l’achat pour 385 000 €.Prenez contact avec notre agence (GABRILLARGUES Sébastien : (Numéro supprimé)) pour plus d’informations sur la maison. Maisons France Confort Bourg-en-Bresse est là pour vous accompagner dans toutes vos démarches.Annonce proposée par un Agent Commercial Partenaire.
L’actualité immobilière à Confrançon
27/11/2023
02/11/2023
30/10/2023
20/10/2023
16/10/2023
16/10/2023