Maison à construire à Péron (01630)
Images
Description
VENTE d'une maison de 5 pièces (140 m²) à Péron
MAISON 5 PIÈCES NEUVE - PROCHE D'ANNEMASSE
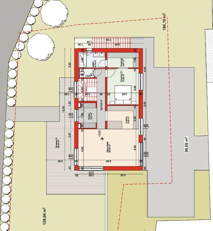
En vente : sur la frontière suisse et à 26 km d'Annemasse, nous vous présentons cette maison de 5 pièces de 140 m² à Péron (01630). Son intérieur se divise en quatre chambres, une cuisine et deux salles de bains.
Le terrain de la maison est de 720 m².
Cette maison comporte 2 niveaux. Elle est neuve.
Deux établissements scolaires sont implantés à moins de 10 minutes à pied, tout comme dont le Collège le Paruthiol. Côté transports en commun, on trouve deux gares (Pougny-Chancy et Valleiry) à moins de 10 minutes en voiture. Les autoroutes A40 et A41 sont accessibles à moins de 15 km. Il y a une bibliothèque, trois commerces, une boulangerie et un supermarché à proximité.
Elle est à vendre pour la somme de 625 000 €.
N'hésitez pas à prendre contact avec notre agence (Clément BOYER-FAYSSE : (Numéro supprimé)) pour tout renseignement sur la maison. Maisons France Confort Ferney-Voltaire vous accompagne dans toutes vos démarches et dans tous vos projets immobiliers.
Annonce proposée par un Agent Commercial Partenaire.
Logement susceptibles de vous intéresser
Nous vous proposons de découvrir aussi cette sélection de logements situés à moins de 10km de Péron et qui seraient susceptibles de vous intéresser.
Péron
TERRAIN ET MAISONVENTE d’une maison de 5 pièces (140 m²) à PéronMAISON 5 PIÈCES NEUVE – PROCHE D’ANNEMASSEEn vente : sur la frontière suisse et à 26 km d’Annemasse, nous vous présentons cette maison de 5 pièces de 140 m² à Péron (01630). Son intérieur se divise en quatre chambres, une cuisine et deux salles de bains.Le terrain de la maison est de 720 m².Cette maison comporte 2 niveaux. Elle est neuve.Deux établissements scolaires sont implantés à moins de 10 minutes à pied, tout comme dont le Collège le Paruthiol. Côté transports en commun, on trouve deux gares (Pougny-Chancy et Valleiry) à moins de 10 minutes en voiture. Les autoroutes A40 et A41 sont accessibles à moins de 15 km. Il y a une bibliothèque, trois commerces, une boulangerie et un supermarché à proximité.Elle est à vendre pour la somme de 625 000 €.N’hésitez pas à prendre contact avec notre agence (Clément BOYER-FAYSSE : (Numéro supprimé)) pour tout renseignement sur la maison. Maisons France Confort Ferney-Voltaire vous accompagne dans toutes vos démarches et dans tous vos projets immobiliers.Annonce proposée par un Agent Commercial Partenaire.
Péron
TERRAINVENTE d’un terrain de 720 m² à PéronPROCHE D’ANNEMASSEGrand terrain à moins de 5 km du Suisse et à deux pas d’Annemasse. De 720 m², ce terrain se situe dans Péron (01630). Il y a deux établissements scolaires à moins de 10 minutes à pied et, parmi lesquels le Collège le Paruthiol. Côté transports en commun, on trouve les gares Pougny-Chancy et Valleiry à moins de 10 minutes en voiture. Les autoroutes A40 et A41 sont accessibles à moins de 15 km. Il y a une bibliothèque, trois commerces, une boulangerie et un supermarché dans les environs.Il est proposé à l’achat pour 350 000 €. Prenez contact avec Clément BOYER-FAYSSE (tél : (Numéro supprimé)) pour toute question sur le terrain ou sur les démarches à suivre. Donnez vie à vos projets immobiliers avec Maisons France Confort Ferney-Voltaire.Annonce proposée par un Agent Commercial Partenaire.
Valleiry
TERRAIN ET MAISONMaisons Oxygène concepteur-bâtisseur de maisons individuelles vous propose cette maison de 110 m² sur la commune de ValleiryNous voici sur un beau terrain déjà viabilisé, proche de toutes les commodités de la commune. La localisation est idéale quant à sa proximité avec les frontières suisses.Imaginons :Un généreux séjour d’environ 50m² en ouverture sur votre terrasse extérieureDe baies vitrées XXL pour profiter de la luminosité naturelleD’un garage de20m2 en accès direct avec la maisonL’étage, quant à lui, accueillerait 3 belles chambres (entre 11 et 14m2) ainsi qu’une salle de bains familiale.…C’est une hypothèse ; nous bâtissons à la manière d’un architecte, chaque projet saura s’adapter à votre vision et vos envies.Avec Maisons Oxygène ayez le privilège :Des garanties et de l’accompagnement du contrat de construction de maison individuelleDu confort du chauffage par plancher chauffant avec pompe à chaleurD’une domotique permettant de piloter à distance l’habitationDes bienfaits d’une luminosité naturelle avec une performance thermique à faible émission de gaz à effet de serreNos maisons sont conçues pour profiter de tous les bienfaits de leur environnement. Cette réalisation signée Oxygène, labellisée NF Haute Qualité Environnementale fait du bien à la planète, à votre consommation énergétique ainsi qu’à votre bien-être.Pour élaborer ensemble les contours de votre futur « chez-vous », contactez-nous au (Numéro supprimé).MO-GP-7012-VALLEIRY-74520Contactez Adeline au (Numéro supprimé).Le prix comprend :- Le prix du terrain et frais de notaire- Une estimation du lot VRD- Une provision pour l'étude de sol – Une provision pour les taxes (aménagement / raccordement)- La MaisonLe prix ne comprend pas les finitions (cuisine, parquets, peinture)Cette annonce a été créée et diffusée avec le logiciel VITAHOME.
Valleiry
TERRAINPrix : 210000 €.Sur ce terrain de 375 m² à VALLEIRY, Maisons Oxygène vous propose de concevoir et de bâtir votre projet de vie.Une maison Oxygène c’est la promesse :- D’un projet qui vous ressemble- D’une architecture « Équilibrée »- D’une construction de qualité- D’une maison labellisée NF Haute Qualité Environnementale- D’une maison à faible consommation énergétique- D’engagements précis et clairs- D’un accompagnement à toutes les étapes de votre projet- Des garanties exclusives du contrat de construction de maison individuelleRencontrons-nous pour élaborer ensemble les contours de votre futur « chez vous ».Contactez-moi au (Numéro supprimé). Adeline des Maisons Oxygène. Prix hors frais de notaire. Terrain sélectionné et vu pour vous sous réserve de disponibilité et au prix indiqué par notre partenaire foncier. Conditions et visuels non contractuels.Cette annonce a été créée et diffusée avec le logiciel VITAHOME.
Collonges
TERRAIN ET MAISONSur ce terrain, nous vous proposons cette maison neuve : la Primevère. Conçue par Maisons et Chalets des Alpes, le constructeur avec les meilleurs avis clients de la région, cette maison de 95 m² saura vous séduire par son charme et sa fonctionnalité.La Primevère dispose de 4 pièces, dont 3 chambres, offrant ainsi un espace de vie confortable et bien pensé pour toute la famille. Son crépis coloré lui confère une allure moderne et élégante, s’intégrant parfaitement dans n’importe quel environnement.Cette maison neuve est basse consommation et conforme à la RE2020, garantissant ainsi des performances énergétiques optimales et un respect de l’environnement. Vous pourrez également personnaliser votre maison selon vos envies grâce aux options les plus demandées par nos clients : une maison évolutive, un garage accolé, ou encore une suite parentale.Imaginez-vous dans cette maison, évolutive et adaptable à vos besoins futurs, avec un garage accolé pour plus de praticité, et une suite parentale pour un confort optimal. La Primevère est la maison idéale pour ceux qui recherchent une habitation moderne, économique et respectueuse de l’environnement.Ne manquez pas cette opportunité unique de devenir propriétaire d’une maison neuve, fonctionnelle et personnalisée, construite par le constructeur le plus apprécié de la région. Contactez-nous dès maintenant pour plus d’informations et pour découvrir toutes les possibilités qu’offre la Primevère.
Collonges
TERRAIN ET MAISONSur ce terrain, nous vous proposons cette maison neuve : la Rochebrune, une maison de type chalet au charme fou. Conçue par Maisons et Chalets des Alpes, le constructeur avec les meilleurs avis clients de la région, cette maison basse consommation est conforme à la RE2020, garantissant des performances énergétiques optimales.Ce modèle compact de 88 m² est idéal pour les familles, avec ses 4 chambres et ses 5 pièces. La Rochebrune est dotée d’un garage intégré, d’un auvent, de baies coulissantes et de volets roulants motorisés, offrant ainsi un confort moderne et pratique.La toiture deux pans de la Rochebrune est parfaitement adaptée à son environnement alpin, avec des avant-toits de 80 centimètres et une pente de 50 %. Le bardage bois assure une intégration architecturale harmonieuse, tandis que l’auvent sur la porte d’entrée ajoute une touche de chic.Les options les plus demandées par nos clients incluent un balcon, des combles aménageables et un sous-sol, permettant de personnaliser votre maison selon vos besoins et envies.Ne manquez pas cette opportunité unique de construire une maison élégante et fonctionnelle, parfaitement intégrée à son environnement naturel. Contactez-nous dès aujourd’hui pour plus d’informations et pour planifier une visite de ce magnifique projet.
Vulbens
TERRAINNuances immo vous présente un terrain à bâtir de 413 m² pour maison jumelée avec une SP de 250 m².Lot N° 14, règlement lotissement en vigueur, viabilisation effectuéeLibre constructeur ou possibilité de projet sur devis en CCMIVisite sur place sur rendez vousPour plus d’informations ou pour organiser une visite, contactez Mr Cohen au (Numéro supprimé) – (Email supprimé) – RSAC 483 087 680 Annecy Agent commercial indépendant du réseau national Marketplace Immobilier N° RSAC : 483 087 680
Vulbens
TERRAINNuances immo vous propose un terrain à bâtir de 424 m² dans un lotissement pour une maison jumelée dont la SP est de 250 m²,terrain plat viabilisé bénéficiant du règlement du lotissement en vigueur, lot N° 9Libre constructeurs ou possibilités de réaliser votre projet en CCMIPour plus d’informations ou pour organiser une visite, contactez Mr Cohen au (Numéro supprimé) – (Email supprimé) – RSAC 483 087 680 Annecy Agent commercial indépendant du réseau national Marketplace Immobilier N° RSAC : 483 087 680
Vulbens
TERRAINNuances immo vous présente un terrain à bâtir de 439 m² dans un lotissement pour une maison jumelée dont la SP est de 250 m² ,Règlement du lotissement en vigueur et purgé de tout recours lot N° 10Libre constructeurs ou possibilités de réaliser votre projet sur devis en CCMIPour plus d’informations ou pour organiser une visite, contactez Mr Cohen au (Numéro supprimé) – (Email supprimé) – RSAC 483 087 680 Annecy Agent commercial indépendant du réseau national Marketplace Immobilier N° RSAC : 483 087 680
L’actualité immobilière à Péron
27/11/2023
02/11/2023
30/10/2023
20/10/2023
16/10/2023
16/10/2023