Maison à construire à Sandrans (01400)
Images
Description
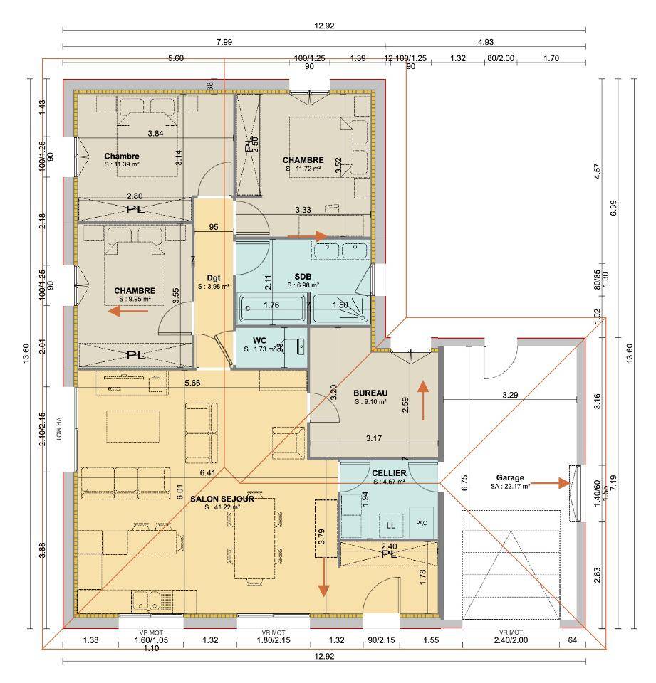
Sandrans : maison T5 (100 m²) en vente
MAISON 5 PIÈCES NEUVE - PROCHE DE BOURG-EN-BRESSE
À vendre : à quelques kilomètres de Bourg-en-Bresse, nous vous proposons cette maison de 5 pièces de plain-pied de 100 m² et de 608 m² de terrain à Sandrans (01400). Son intérieur dispose de quatre chambres, d'une cuisine et d'une salle de bains.
La maison est neuve.
Une école primaire est implantée dans le quartier. Niveau transports, il y a les gares Marlieux-Châtillon et Villars-les-Dombes à moins de 10 minutes en voiture. On trouve un accès à l'autoroute A6 à 19 km. On trouve une boucherie-charcuterie à proximité du logement.
Son prix de vente est de 325 500 €.
Contactez notre agence (Sébastien GABRILLARGUES : (Numéro supprimé)) pour plus de renseignements sur cette maison, sur les démarches à suivre ou sur les modalités de vente. Faites de vos projets immobiliers une réalité avec Maisons France Confort Bourg-en-Bresse.
Annonce proposée par un Agent Commercial Partenaire.
Logement susceptibles de vous intéresser
Nous vous proposons de découvrir aussi cette sélection de logements situés à moins de 10km de Sandrans et qui seraient susceptibles de vous intéresser.
Villars-les-Dombes
TERRAIN ET MAISONVENTE : maison T4 (80 m²) à Villars-les-DombesPROCHE DE VILLEURBANNE – MAISON 4 PIÈCES NEUVEÀ vendre : à deux pas de la gare, nous vous proposons cette maison de 4 pièces de plain-pied de 80 m² et de 298 m² de terrain à Villars-les-Dombes (01330).Son intérieur se divise en trois chambres, une cuisine et une salle de bains. Cette maison est neuve.Il y a l’École Simone Veil, le Lycée Agricole Privé de l’Ain, l’École Maternelle École des p’Tits Artistes et le Collège Léon Comas à moins de 10 minutes à pied. Niveau transports, on trouve la gare Villars-les-Dombes à quelques pas de la maison. Les autoroutes A46 et A42 sont accessibles à moins de 18 km et Villeurbanne se situe à 28 km. Il y a un tennis, un bassin de natation, des commerces, quatre boulangeries, deux supermarchés, une boucherie-charcuterie et un bureau de poste dans les environs. Le marché Place du marché anime les environs chaque mardi matin.Elle est proposée à l’achat pour 249 500 €.N’hésitez pas à prendre contact avec Sébastien GABRILLARGUES (tél : (Numéro supprimé)) pour plus d’informations sur la maison, sur les modalités de vente ou sur les démarches à suivre. Maisons France Confort Bourg-en-Bresse est là pour vous accompagner dans tous vos projets immobiliers.Annonce proposée par un Agent Commercial Partenaire.
Villars-les-Dombes
TERRAINEmplacement privilégié de choix, au coeur de la Dombes, et proche du centre ville.Maisons France Confort, + de 100 ans d’expérience, vous propose cette parcelle de terrain plate et entièrement viabilisée avec tout à l’égout de près de 300 m2.Terrain situé dans un environnement très calme, vers une impasse, avec vue sur des terrains non constructible.A 1,5 km se situe Le centre de Villars où vous trouverez école primaire, collège, infrastructures sportives, supermarchés et tous les commerces de proximité (boulangerie, boucherie, tabac presse, pharmacie, cabinets médicaux,… )…La gare ferroviaire de Villars à 2 km. Lyon et Bourg-en-Bresse sont à 40 minutes.Fort de son expérience sans équivalents, Maisons France Confort vous accompagne dans l’intégralité de votre projet afin de vous aider à chiffrer tous les frais annexes de votre construction et vous permettre d’aller jusqu’à la remise des clés en toute sérénité.Ref SG 2581Annonce proposée par un Agent Commercial Partenaire.
Villars-les-Dombes
TERRAIN ET MAISONMaison de 5 pièces (100 m²) à vendre à Villars-les-DombesPROCHE DE VILLEURBANNE – MAISON 5 PIÈCES NEUVEEn vente : à deux pas de la gare, à Villars-les-Dombes (01330), venez découvrir cette maison de 5 pièces de 100 m² et de 298 m² de terrain.Cette maison comporte 2 niveaux. Elle est composée de quatre chambres, d’une cuisine et d’une salle de bains. La maison est neuve.Il y a l’École Simone Veil, le Lycée Agricole Privé de l’Ain, l’École Maternelle École des p’Tits Artistes et le Collège Léon Comas à moins de 10 minutes à pied. Niveau transports en commun, on trouve la gare Villars-les-Dombes dans les alentours. Les autoroutes A46 et A42 sont accessibles à moins de 18 km et Villeurbanne se situe à 28 km. On trouve un tennis, un bassin de natation, des commerces, quatre boulangeries, deux supermarchés, un bureau de poste et une boucherie-charcuterie à proximité de la maison. Le marché Place du marché anime le quartier tous les mardis matin.Elle est proposée à l’achat pour 278 500 €.Contactez notre agence (Sébastien GABRILLARGUES : (Numéro supprimé)) pour plus d’informations sur cette maison. Donnez vie à vos projets immobiliers avec Maisons France Confort Bourg-en-Bresse.Annonce proposée par un Agent Commercial Partenaire.
Villars-les-Dombes
TERRAIN ET MAISONVENTE : maison de 2 pièces (50 m²) à Villars-les-DombesPROCHE DE VILLEURBANNE – MAISON 2 PIÈCES NEUVEEn vente : à quelques minutes de la gare, votre agence Maisons France Confort Bourg-en-Bresse est heureuse de vous présenter cette maison de 2 pièces de plain-pied de 50 m² et de 298 m² de terrain à Villars-les-Dombes (01330).Son intérieur inclut deux chambres, une cuisine et une salle de bains. Cette maison est neuve.L’École Simone Veil, le Lycée Agricole Privé de l’Ain, l’École Maternelle École des p’Tits Artistes et le Collège Léon Comas sont implantés à moins de 10 minutes à pied. Niveau transports, il y a la gare Villars-les-Dombes à quelques pas de la maison. Les autoroutes A46 et A42 sont accessibles à moins de 18 km et Villeurbanne se situe à 28 km. On trouve un tennis, un bassin de natation, des commerces, quatre boulangeries, deux supermarchés, un bureau de poste et une boucherie-charcuterie à quelques minutes de la maison. Le marché Place du marché a lieu tous les mardis matin.Elle est à vendre pour la somme de 209 000 €.N’hésitez pas à prendre contact avec notre constructeur (Sébastien GABRILLARGUES : (Numéro supprimé)) pour obtenir de plus amples renseignements sur la maison ou sur les modalités de vente. Concrétisez vos projets immobiliers avec Maisons France Confort Bourg-en-Bresse.Annonce proposée par un Agent Commercial Partenaire.
Villars-les-Dombes
TERRAIN ET MAISONVillars-les-Dombes : maison de 4 pièces (86 m²) en venteMAISON 4 PIÈCES NEUVE – PROCHE DE VILLEURBANNEProche de la gare, votre agence Maisons France Confort Bourg-en-Bresse est ravie de vous proposer cette maison de 4 pièces de plain-pied de 86 m² à vendre à Villars-les-Dombes (01330).Son intérieur offre trois chambres, une cuisine et une salle de bains. La maison est neuve.Le terrain du bien est de 298 m².Il y a l’École Simone Veil, le Lycée Agricole Privé de l’Ain, l’École Maternelle École des p’Tits Artistes et le Collège Léon Comas à moins de 10 minutes à pied. Niveau transports en commun, on trouve la gare Villars-les-Dombes à proximité. Les autoroutes A46 et A42 sont accessibles à moins de 18 km et Villeurbanne est située à 28 km. Il y a un tennis, un bassin de natation, des commerces, quatre boulangeries, deux supermarchés, un bureau de poste et une boucherie-charcuterie dans les environs. Enfin, le marché Place du marché anime le quartier tous les mardis matin.Elle est proposée à l’achat pour 255 000 €.Contactez Sébastien GABRILLARGUES ((Numéro supprimé)) pour tout renseignement sur cette propriété, sur les modalités de vente ou sur les démarches à suivre. Maisons France Confort Bourg-en-Bresse est là pour vous accompagner à toutes les étapes de l’achat.Annonce proposée par un Agent Commercial Partenaire.
Sandrans
TERRAIN ET MAISONVENTE : maison F4 (105 m²) à SandransPROCHE DE BOURG-EN-BRESSE – MAISON 4 PIÈCES NEUVEÀ vendre : à deux pas de Bourg-en-Bresse, découvrez cette maison de 4 pièces de 105 m² à Sandrans (01400).Cette maison comporte 2 niveaux. Son intérieur comporte trois chambres, une cuisine et deux salles de bains. Cette maison est neuve.Le terrain du bien s’étend sur 608 m².Il y a une école primaire dans le quartier. Côté transports, on trouve les gares Marlieux-Châtillon et Villars-les-Dombes à moins de 10 minutes en voiture. On trouve un accès à l’autoroute A6 à 19 km. Il y a une boucherie-charcuterie à quelques minutes à peine.Elle est proposée à l’achat pour 332 500 €.N’hésitez pas à prendre contact avec Sébastien GABRILLARGUES (tél : (Numéro supprimé)) pour toute question sur cette maison, sur les modalités de vente ou sur les démarches à suivre. Maisons France Confort Bourg-en-Bresse vous accompagne à toutes les étapes de votre projet et dans tous vos projets immobiliers.Annonce proposée par un Agent Commercial Partenaire.
Sandrans
TERRAINMaisons France Confort, 100 ans d’expérience dans la construction de maisons individuelles, vous propose cette belle parcelle de terrain de plus de 600 m2, plate, et entièrement viabilisée (eau, électricité, telecom, tout à l’égout), située à Sandrans, dans un quartier résidentiel.Idéalement positionné au coeur de la Dombes à moins de 10 minutes de la gare de Marlieux, ou de celle de Villars les Dombes avec également tous les commerces, cabinets médicaux,….Chatillon est également à moins de 6 kilomètres.Bourg-en-Bresse et Villefranche sont à moins de 30 minutes.Points forts construction : une Maison entièrement dessinée sur mesure, matériaux de très grande qualité avec un cahier des charges technique optimum, rapport qualité prix très compétitif, garanties bancaires sans équivalent sécurisant votre investissement et assurances construction parmi les meilleures.Fort de son expérience sans équivalent, Maisons France Confort vous accompagne dans l’intégralité de votre projet afin de vous aider à chiffrer tous les frais annexes de votre construction et vous permettre d’aller jusqu’à la remise des clés en toute sérénité.Ref SG 2579Annonce proposée par un Agent Commercial Partenaire.
Sandrans
TERRAIN ET MAISONSandrans : maison de 3 pièces (75 m²) à vendreMAISON 3 PIÈCES NEUVE – PROCHE DE BOURG-EN-BRESSEEn vente à 25 km de Bourg-en-Bresse, à Sandrans (01400), Maisons France Confort Bourg-en-Bresse vous propose cette maison de 3 pièces de plain-pied de 75 m².Conçue de plain-pied, elle compte deux chambres, une cuisine et une salle de bains. Cette maison est neuve.Le terrain de la propriété est de 608 m².Il y a une école primaire dans le quartier. Côté transports, on trouve les gares Marlieux-Châtillon et Villars-les-Dombes à moins de 10 minutes en voiture. L’autoroute A6 est accessible à 19 km. Il y a une boucherie-charcuterie à quelques minutes du logement.Son prix de vente est de 254 500 €.Contactez notre agence (Sébastien GABRILLARGUES : (Numéro supprimé)) pour tout renseignement sur la maison. Maisons France Confort Bourg-en-Bresse vous accompagne dans tous vos projets immobiliers et dans toutes vos démarches.Annonce proposée par un Agent Commercial Partenaire.
Sandrans
TERRAIN ET MAISONSandrans : maison T5 (100 m²) en venteMAISON 5 PIÈCES NEUVE – PROCHE DE BOURG-EN-BRESSEÀ vendre : à quelques kilomètres de Bourg-en-Bresse, nous vous proposons cette maison de 5 pièces de plain-pied de 100 m² et de 608 m² de terrain à Sandrans (01400). Son intérieur dispose de quatre chambres, d’une cuisine et d’une salle de bains.La maison est neuve.Une école primaire est implantée dans le quartier. Niveau transports, il y a les gares Marlieux-Châtillon et Villars-les-Dombes à moins de 10 minutes en voiture. On trouve un accès à l’autoroute A6 à 19 km. On trouve une boucherie-charcuterie à proximité du logement.Son prix de vente est de 325 500 €.Contactez notre agence (Sébastien GABRILLARGUES : (Numéro supprimé)) pour plus de renseignements sur cette maison, sur les démarches à suivre ou sur les modalités de vente. Faites de vos projets immobiliers une réalité avec Maisons France Confort Bourg-en-Bresse.Annonce proposée par un Agent Commercial Partenaire.
L’actualité immobilière à Sandrans
27/11/2023
02/11/2023
30/10/2023
20/10/2023
16/10/2023
16/10/2023