Maison à construire à Saint-Denis-lès-Bourg (01000)
Images
Description
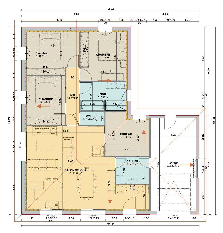
VENTE : maison F5 (100 m²) à Saint-Denis-lès-Bourg
PROCHE DE BOURG-EN-BRESSE - MAISON 5 PIÈCES NEUVE
En vente : à deux pas de Bourg-en-Bresse, Maisons France Confort Bourg-en-Bresse vous propose cette maison de 5 pièces de plain-pied de 100 m² à Saint-Denis-lès-Bourg (01000).
Conçue de plain-pied, elle propose quatre chambres, une cuisine et une salle de bains. Cette maison est neuve.
Le terrain du bien est de 588 m².
L'École Primaire Village et le Collège Yvon Morandat sont implantés à moins de 10 minutes à pied. Niveau transports en commun, il y a trois gares (Bourg-en-Bresse, Polliat et Servas-Lent) à moins de 10 minutes en voiture. Les autoroutes A40 et A39 sont accessibles à moins de 8 km. On trouve un tennis, un bowling, des commerces, une boulangerie, un supermarché, une boucherie-charcuterie et une épicerie dans les environs.
Elle est proposée à l'achat pour 335 000 €.
Prenez contact avec notre agence (GABRILLARGUES Sébastien : (Numéro supprimé)) pour plus d'informations sur la maison ou sur les modalités de vente. Maisons France Confort Bourg-en-Bresse est là pour vous accompagner à toutes les étapes de l'achat.
Annonce proposée par un Agent Commercial Partenaire.
Logement susceptibles de vous intéresser
Nous vous proposons de découvrir aussi cette sélection de logements situés à moins de 10km de Saint-Denis-lès-Bourg et qui seraient susceptibles de vous intéresser.
Servas
TERRAINA saisir très vite, Maisons France Confort, plus de 100 ans d’expérience dans la construction de maisons individuelles, vous propose cette parcelle de plus de 300 m2, plate, et entièrement viabilisé avec tout à l’égout.Située dans un quartier résidentiel tout se fait à pied : gare à 250 m (direction Lyon ou Bourg), tout comme le supermarché.Accès autoroute A40 en 15 minutes tout comme le centre ville de Bourg-en-Bresse, Hopital Fleyriat à moins de 20 minutes.Points forts construction : une Maison entièrement dessinée sur mesure, matériaux de très grande qualité avec un cahier des charges technique optimum, rapport qualité prix très compétitif, garanties bancaires sans équivalent sécurisant votre investissement et assurances construction parmi les meilleures.Fort de son expérience sans équivalents, Maisons France Confort vous accompagne dans l’intégralité de votre projet afin de vous aider à chiffrer tous les frais annexes de votre construction et vous permettre d’aller jusqu’à la remise des clés en toute sérénité.Ref SG 2592Annonce proposée par un Agent Commercial Partenaire.
Servas
TERRAIN ET MAISONVENTE d’une maison F3 (75 m²) à ServasMAISON 3 PIÈCES NEUVE – PROCHE DE BOURG-EN-BRESSEÀ deux pas de Bourg-en-Bresse, votre agence Maisons France Confort Bourg-en-Bresse est heureuse de vous proposer cette maison de 3 pièces de plain-pied de 75 m² à vendre à Servas (01960).Son intérieur offre deux chambres, une cuisine et une salle de bains. La maison est neuve.Le terrain de la propriété est de 316 m².Il y a une école primaire dans le quartier. Niveau transports, on trouve la gare Servas-Lent à moins de 10 minutes à pied. Il y a un accès à l’autoroute A40 à 10 km. Il y a une boulangerie et un supermarché dans les environs.Elle est à vendre pour la somme de 221 500 €.Contactez notre constructeur (Sébastien GABRILLARGUES : (Numéro supprimé)) pour plus de renseignements sur cette maison ou sur les modalités de vente. Faites de vos projets immobiliers une réalité avec Maisons France Confort Bourg-en-Bresse.Annonce proposée par un Agent Commercial Partenaire.
Servas
TERRAIN ET MAISONMaison F2 (50 m²) à vendre à ServasMAISON 2 PIÈCES NEUVE – PROCHE DE BOURG-EN-BRESSEÀ vendre : à 9 km de Bourg-en-Bresse, à Servas (01960), nous sommes heureux de vous proposer cette maison de 2 pièces de plain-pied de 50 m².Son intérieur dispose de deux chambres, d’une cuisine et d’une salle de bains. Cette maison est neuve.Le terrain de la propriété s’étend sur 316 m².Il y a une école primaire dans le quartier. Niveau transports en commun, on trouve la gare Servas-Lent à moins de 10 minutes à pied. L’autoroute A40 est accessible à 10 km. Il y a une boulangerie et un supermarché à quelques minutes du bien.Son prix de vente est de 169 500 €.Contactez Sébastien GABRILLARGUES (tél : (Numéro supprimé)) pour toute question sur la maison ou sur les modalités de vente.Annonce proposée par un Agent Commercial Partenaire.
Servas
TERRAIN ET MAISONVENTE d’une maison de 4 pièces (86 m²) à ServasPROCHE DE BOURG-EN-BRESSE – MAISON 4 PIÈCES NEUVEÀ vendre à 9 km de Bourg-en-Bresse, à Servas (01960), nous vous proposons cette maison de 4 pièces de plain-pied de 86 m². Elle se divise en trois chambres, une cuisine et une salle de bains.Le terrain du bien s’étend sur 316 m².La maison est neuve.Une école primaire est implantée dans le quartier. Côté transports en commun, il y a la gare Servas-Lent à moins de 10 minutes à pied. L’autoroute A40 est accessible à 10 km. On trouve une boulangerie et un supermarché à proximité de la maison.Son prix de vente est de 237 500 €.Contactez Sébastien GABRILLARGUES (tél : (Numéro supprimé)) pour toute information sur la maison, sur les modalités de vente ou sur les démarches à suivre. Maisons France Confort Bourg-en-Bresse vous accompagne dans tous vos projets immobiliers et dans toutes vos démarches.Annonce proposée par un Agent Commercial Partenaire.
Saint-Denis-lès-Bourg
TERRAIN ET MAISONVENTE d’une maison T5 (108 m²) à Saint-Denis-lès-BourgPROCHE DE BOURG-EN-BRESSE – MAISON 5 PIÈCES NEUVEEn vente : à 5 km de Bourg-en-Bresse, votre agence Maisons France Confort Bourg-en-Bresse est heureuse de vous présenter cette maison de 5 pièces de 108 m² à Saint-Denis-lès-Bourg (01000).Il s’agit d’une maison de 2 niveaux. Elle comporte quatre chambres, une cuisine et deux salles de bains. La maison est neuve.Le terrain de la propriété est de 588 m².Il y a l’École Primaire Village et le Collège Yvon Morandat à moins de 10 minutes à pied. Côté transports en commun, on trouve trois gares (Bourg-en-Bresse, Polliat et Servas-Lent) à moins de 10 minutes en voiture. Les autoroutes A40 et A39 sont accessibles à moins de 8 km. Il y a un tennis, un bowling, des commerces, une boulangerie, un supermarché, une boucherie-charcuterie et une épicerie dans les environs.Elle est à vendre pour la somme de 349 500 €.Contactez Sébastien GABRILLARGUES ((Numéro supprimé)) pour toute information sur la maison ou sur les démarches à suivre. Maisons France Confort Bourg-en-Bresse est là pour vous accompagner dans tous vos projets immobiliers.Annonce proposée par un Agent Commercial Partenaire.
Saint-Denis-lès-Bourg
TERRAIN ET MAISONVENTE : maison F5 (100 m²) à Saint-Denis-lès-BourgPROCHE DE BOURG-EN-BRESSE – MAISON 5 PIÈCES NEUVEEn vente : à deux pas de Bourg-en-Bresse, Maisons France Confort Bourg-en-Bresse vous propose cette maison de 5 pièces de plain-pied de 100 m² à Saint-Denis-lès-Bourg (01000).Conçue de plain-pied, elle propose quatre chambres, une cuisine et une salle de bains. Cette maison est neuve.Le terrain du bien est de 588 m².L’École Primaire Village et le Collège Yvon Morandat sont implantés à moins de 10 minutes à pied. Niveau transports en commun, il y a trois gares (Bourg-en-Bresse, Polliat et Servas-Lent) à moins de 10 minutes en voiture. Les autoroutes A40 et A39 sont accessibles à moins de 8 km. On trouve un tennis, un bowling, des commerces, une boulangerie, un supermarché, une boucherie-charcuterie et une épicerie dans les environs.Elle est proposée à l’achat pour 335 000 €.Prenez contact avec notre agence (GABRILLARGUES Sébastien : (Numéro supprimé)) pour plus d’informations sur la maison ou sur les modalités de vente. Maisons France Confort Bourg-en-Bresse est là pour vous accompagner à toutes les étapes de l’achat.Annonce proposée par un Agent Commercial Partenaire.
Saint-Denis-lès-Bourg
TERRAIN ET MAISONVENTE d’une maison de 4 pièces (117 m²) à Saint-Denis-lès-BourgMAISON 4 PIÈCES NEUVE – PROCHE DE BOURG-EN-BRESSEÀ vendre à quelques kilomètres de Bourg-en-Bresse, à Saint-Denis-lès-Bourg (01000), votre agence Maisons France Confort Bourg-en-Bresse est heureuse de vous présenter cette maison de 4 pièces de plain-pied de 117 m² et de 588 m² de terrain.Son intérieur dispose de trois chambres, d’une cuisine et de deux salles de bains. Cette maison est neuve.L’École Primaire Village et le Collège Yvon Morandat sont implantés à moins de 10 minutes à pied. Côté transports en commun, on trouve les gares Bourg-en-Bresse, Polliat et Servas-Lent à moins de 10 minutes en voiture. Les autoroutes A40 et A39 sont accessibles à moins de 8 km. Il y a un tennis, un bowling, des commerces, une boulangerie, un supermarché, une boucherie-charcuterie et une épicerie à proximité du logement.Son prix de vente est de 384 500 €.Prenez contact avec notre constructeur (GABRILLARGUES Sébastien : (Numéro supprimé)) pour obtenir de plus amples informations sur cette maison ou sur les démarches à suivre. Maisons France Confort Bourg-en-Bresse vous accompagne dans tous vos projets immobiliers et dans toutes vos démarches.Annonce proposée par un Agent Commercial Partenaire.
Saint-Denis-lès-Bourg
TERRAINVotre constructeur, Maisons France Confort, + de 100 ans d’expérience, vous propose cette parcelle de terrain plate et entièrement viabilisée avec tout à l’égout de près de 600 m2, idéale pour construire une maison de plain-pied ou à étage.Terrain situé dans un environnement très calme, avec vue sur des terrains non constructible, et idéalement situé : école primaire, collège, infrastructures sportives, supermarchés et tous les commerces de proximité (boulangerie, boucherie, tabac presse, pharmacie, cabinets médicaux,… ) se situe dans un rayon d’un kilomètre !!!La gare ferroviaire de Bourg (TER pour Lyon, TGV pour Paris, Genève) est à moins de cinq minutes et un arrêt de bus est au pied du terrain.Fort de son expérience sans équivalents, Maisons France Confort vous accompagne dans l’intégralité de votre projet afin de vous aider à chiffrer tous les frais annexes de votre construction et vous permettre d’aller jusqu’à la remise des clés en toute sérénité.Ref SG 2587Annonce proposée par un Agent Commercial Partenaire.
Saint-Denis-lès-Bourg
TERRAIN ET MAISONVENTE d’une maison de 4 pièces (90 m²) à Saint-Denis-lès-BourgMAISON 4 PIÈCES NEUVE – PROCHE DE BOURG-EN-BRESSEÀ vendre à quelques kilomètres de Bourg-en-Bresse, Maisons France Confort Bourg-en-Bresse vous présente cette maison de 4 pièces de plain-pied de 90 m² à Saint-Denis-lès-Bourg (01000).Conçue de plain-pied, elle propose trois chambres, une cuisine et une salle de bains. La maison est neuve.Le terrain du bien est de 588 m².Il y a l’École Primaire Village et le Collège Yvon Morandat à moins de 10 minutes à pied. Niveau transports en commun, on trouve les gares Bourg-en-Bresse, Polliat et Servas-Lent à moins de 10 minutes en voiture. Les autoroutes A40 et A39 sont accessibles à moins de 8 km. Il y a un tennis, un bowling, des commerces, une boulangerie, un supermarché, une boucherie-charcuterie et une épicerie dans les environs.Elle est à vendre pour la somme de 319 000 €.Prenez contact avec notre agence (GABRILLARGUES Sébastien : (Numéro supprimé)) pour plus de renseignements sur cette maison ou sur les modalités de vente.Annonce proposée par un Agent Commercial Partenaire.
L’actualité immobilière à Saint-Denis-lès-Bourg
27/11/2023
02/11/2023
30/10/2023
20/10/2023
16/10/2023
16/10/2023