Maison à construire à Marigny-en-Orxois (02810)
Images
Description
VENTE : maison de 6 pièces (115 m²) à Marigny-en-Orxois
PROCHE DE MEAUX - MAISON 6 PIÈCES NEUVE
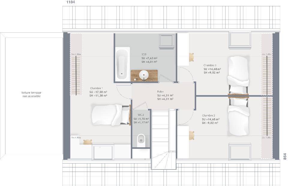
À vendre : à proximité du Transilien P (gare de Nanteuil-Saâcy, 50 min de Paris), nous sommes ravis de vous présenter à Marigny-en-Orxois (02810), cette maison de 6 pièces de 115 m². Son intérieur se divise en quatre chambres, une cuisine et deux salles de bains.
Le terrain de cette maison s'étend sur 890 m².
Cette maison possède 2 niveaux. Elle est neuve.
Une école maternelle est implantée dans le quartier. Niveau transports en commun, il y a la gare Nanteuil-Saâcy à moins de 10 minutes en voiture. On trouve un accès à l'autoroute A4 à 8 km et Meaux est située à 25 km.
Elle est à vendre pour la somme de 295 000 €.
N'hésitez pas à prendre contact avec notre agence (YAHIAOUI Cedric : (Numéro supprimé)) pour obtenir de plus amples renseignements sur cette maison.
Annonce proposée par un Agent Commercial Partenaire.
Logement susceptibles de vous intéresser
Nous vous proposons de découvrir aussi cette sélection de logements situés à moins de 10km de Marigny-en-Orxois et qui seraient susceptibles de vous intéresser.
Sainte-Aulde
TERRAINTerrain situé à 10 minutes de la gare de Saacy-sur-Marne, écoles sur place.Cadre verdoyant et calme.Prix : 75000 €.Sur ce terrain, réalisez votre projet de construction de maison RE 2020 avec PAVILLONS D'ÎLE-DE-FRANCE (constructeur de maisons de gamme et sur-mesure depuis plus de 50 ans) :- Plan sur-mesure et personnalisé de 2 à 5 chambres- Mode de chauffage au choix- Grands choix d'équipements et de prestations- Matériaux de qualité selon les normes en vigueur- Accompagnement dans le choix et l’acquisition du terrainDemandez une étude gratuite et personnalisée de votre projet de construction sur ce terrain !Contactez Olivier SAMSON au (Numéro supprimé) ou au (Numéro supprimé) (Pavillons d'Île-de-France – Agence de Meaux).Prix hors frais de notaire. Terrain sélectionné et vu pour vous sous réserve de disponibilité et au prix indiqué par notre partenaire foncier. Visuels non contractuels.Cette annonce a été créée et diffusée avec le logiciel VITAHOME.
Sainte-Aulde
TERRAIN ET MAISONRéalisez votre projet de construction de maison RE 2020 avec PAVILLONS D'ÎLE-DE-FRANCE (constructeur de maisons de gamme et sur-mesure depuis plus de 50 ans) :- Plan sur-mesure et personnalisé de 2 à 5 chambres- Mode de chauffage au choix- Grands choix d'équipements et de prestations- Matériaux de qualité selon les normes en vigueur- Accompagnement dans le choix et l’acquisition du terrainInformations du terrain : Mohammed – Agence Pavillons d'Île-de-FranceVotre expert en maisons sur-mesure depuis plus de 50 ans à Mareuil-lès-MeauxTransformez votre rêve en réalité !Situé dans un écrin de verdure, ce terrain de 240 m² vous offre l'opportunité rare de construire la maison de vos rêves dans un cadre calme et agréable. À deux pas des commerces, écoles et transports, vous bénéficierez de la tranquillité de la campagne sans renoncer à la proximité de la vie urbaine.Imaginez votre futur chez-vous, parfaitement adapté à vos envies et à vos besoins. Ce terrain est prêt à accueillir votre projet et à vous offrir un cadre de vie exceptionnel.Prix : 45 000 €Ne laissez pas passer cette chance unique ! Contactez-nous dès maintenant au (Numéro supprimé) pour planifier une étude de faisabilité.Demandez une étude gratuite et personnalisée de votre projet de construction !Contactez Mohammed HAMDAOUI au (Numéro supprimé) ou au (Numéro supprimé) (Pavillons d'Île-de-France – Agence de Meaux).Prix avec assurance dommages-ouvrage comprise, hors VRD, terrain non viabilisé, assainissement non compris, frais de notaire non compris, taxes non comprises, frais divers non compris. Terrain sélectionné et vu pour vous sous réserve de disponibilité et au prix indiqué par notre partenaire foncier. Visuels non contractuels.Cette annonce a été créée et diffusée avec le logiciel VITAHOME.
Villiers-Saint-Denis
TERRAIN ET MAISONRéalisez votre projet de construction de maison RE 2020 avec PAVILLONS D'ÎLE-DE-FRANCE (constructeur de maisons de gamme et sur-mesure depuis plus de 50 ans) :- Plan sur-mesure et personnalisé de 2 à 5 chambres- Mode de chauffage au choix- Grands choix d'équipements et de prestations- Matériaux de qualité selon les normes en vigueur- Accompagnement dans le choix et l’acquisition du terrainDemandez une étude gratuite et personnalisée de votre projet de construction !Contactez Stéphane VERHAUVEN au (Numéro supprimé) ou au (Numéro supprimé) (Pavillons d'Île-de-France – Agence de Meaux).Prix avec assurance dommages-ouvrage comprise, hors VRD, terrain non viabilisé, assainissement non compris, frais de notaire non compris, taxes non comprises, frais divers non compris. Terrain sélectionné et vu pour vous sous réserve de disponibilité et au prix indiqué par notre partenaire foncier. Visuels non contractuels.Cette annonce a été créée et diffusée avec le logiciel VITAHOME.
Villiers-Saint-Denis
TERRAINPrix : 58000 €.Sur ce terrain, réalisez votre projet de construction de maison RE 2020 avec PAVILLONS D'ÎLE-DE-FRANCE (constructeur de maisons de gamme et sur-mesure depuis plus de 50 ans) :- Plan sur-mesure et personnalisé de 2 à 5 chambres- Mode de chauffage au choix- Grands choix d'équipements et de prestations- Matériaux de qualité selon les normes en vigueur- Accompagnement dans le choix et l’acquisition du terrainDemandez une étude gratuite et personnalisée de votre projet de construction sur ce terrain !Contactez Stéphane VERHAUVEN au (Numéro supprimé) ou au (Numéro supprimé) (Pavillons d'Île-de-France – Agence de Meaux).Prix hors frais de notaire. Terrain sélectionné et vu pour vous sous réserve de disponibilité et au prix indiqué par notre partenaire foncier. Visuels non contractuels.Cette annonce a été créée et diffusée avec le logiciel VITAHOME.
Sainte-Aulde
TERRAIN ET MAISONRéalisez votre projet de construction de maison RE 2020 avec PAVILLONS D'ÎLE-DE-FRANCE (constructeur de maisons de gamme et sur-mesure depuis plus de 50 ans) :- Plan sur-mesure et personnalisé de 2 à 5 chambres- Mode de chauffage au choix- Grands choix d'équipements et de prestations- Matériaux de qualité selon les normes en vigueur- Accompagnement dans le choix et l’acquisition du terrainInformations du terrain : Terrain situé à 10 minutes de la gare de Saacy-sur-Marne, écoles sur place.Cadre verdoyant et calme.Demandez une étude gratuite et personnalisée de votre projet de construction !Contactez Olivier SAMSON au (Numéro supprimé) ou au (Numéro supprimé) (Pavillons d'Île-de-France – Agence de Meaux).Prix avec assurance dommages-ouvrage comprise, hors VRD, terrain non viabilisé, assainissement non compris, frais de notaire non compris, taxes non comprises, frais divers non compris. Terrain sélectionné et vu pour vous sous réserve de disponibilité et au prix indiqué par notre partenaire foncier. Visuels non contractuels.Cette annonce a été créée et diffusée avec le logiciel VITAHOME.
Sainte-Aulde
TERRAIN ET MAISONRéalisez votre projet de construction de maison RE 2020 avec PAVILLONS D'ÎLE-DE-FRANCE (constructeur de maisons de gamme et sur-mesure depuis plus de 50 ans) :- Plan sur-mesure et personnalisé de 2 à 5 chambres- Mode de chauffage au choix- Grands choix d'équipements et de prestations- Matériaux de qualité selon les normes en vigueur- Accompagnement dans le choix et l’acquisition du terrainInformations du terrain : Mohammed – Agence Pavillons d'Île-de-FranceVotre expert en maisons sur-mesure depuis plus de 50 ans à Mareuil-lès-MeauxTransformez votre rêve en réalité !Situé dans un écrin de verdure, ce terrain de 240 m² vous offre l'opportunité rare de construire la maison de vos rêves dans un cadre calme et agréable. À deux pas des commerces, écoles et transports, vous bénéficierez de la tranquillité de la campagne sans renoncer à la proximité de la vie urbaine.Imaginez votre futur chez-vous, parfaitement adapté à vos envies et à vos besoins. Ce terrain est prêt à accueillir votre projet et à vous offrir un cadre de vie exceptionnel.Prix : 45 000 €Ne laissez pas passer cette chance unique ! Contactez-nous dès maintenant au (Numéro supprimé) pour planifier une étude de faisabilité.Demandez une étude gratuite et personnalisée de votre projet de construction !Contactez Mohammed HAMDAOUI au (Numéro supprimé) ou au (Numéro supprimé) (Pavillons d'Île-de-France – Agence de Meaux).Prix avec assurance dommages-ouvrage comprise, hors VRD, terrain non viabilisé, assainissement non compris, frais de notaire non compris, taxes non comprises, frais divers non compris. Terrain sélectionné et vu pour vous sous réserve de disponibilité et au prix indiqué par notre partenaire foncier. Visuels non contractuels.Cette annonce a été créée et diffusée avec le logiciel VITAHOME.
Sainte-Aulde
TERRAINMohammed – Agence Pavillons d'Île-de-FranceVotre expert en maisons sur-mesure depuis plus de 50 ans à Mareuil-lès-MeauxTransformez votre rêve en réalité !Situé dans un écrin de verdure, ce terrain de 240 m² vous offre l'opportunité rare de construire la maison de vos rêves dans un cadre calme et agréable. À deux pas des commerces, écoles et transports, vous bénéficierez de la tranquillité de la campagne sans renoncer à la proximité de la vie urbaine.Imaginez votre futur chez-vous, parfaitement adapté à vos envies et à vos besoins. Ce terrain est prêt à accueillir votre projet et à vous offrir un cadre de vie exceptionnel.Prix : 45 000 €Ne laissez pas passer cette chance unique ! Contactez-nous dès maintenant au (Numéro supprimé) pour planifier une étude de faisabilité.Prix : 45000 €.Sur ce terrain, réalisez votre projet de construction de maison RE 2020 avec PAVILLONS D'ÎLE-DE-FRANCE (constructeur de maisons de gamme et sur-mesure depuis plus de 50 ans) :- Plan sur-mesure et personnalisé de 2 à 5 chambres- Mode de chauffage au choix- Grands choix d'équipements et de prestations- Matériaux de qualité selon les normes en vigueur- Accompagnement dans le choix et l’acquisition du terrainDemandez une étude gratuite et personnalisée de votre projet de construction sur ce terrain !Contactez Mohammed HAMDAOUI au (Numéro supprimé) ou au (Numéro supprimé) (Pavillons d'Île-de-France – Agence de Meaux).Prix hors frais de notaire. Terrain sélectionné et vu pour vous sous réserve de disponibilité et au prix indiqué par notre partenaire foncier. Visuels non contractuels.Cette annonce a été créée et diffusée avec le logiciel VITAHOME.
Sainte-Aulde
TERRAIN ET MAISONRéalisez votre projet de construction de maison RE 2020 avec PAVILLONS D'ÎLE-DE-FRANCE (constructeur de maisons de gamme et sur-mesure depuis plus de 50 ans) :- Plan sur-mesure et personnalisé de 2 à 5 chambres- Mode de chauffage au choix- Grands choix d'équipements et de prestations- Matériaux de qualité selon les normes en vigueur- Accompagnement dans le choix et l’acquisition du terrainInformations du terrain : Terrain situé à 10 minutes de la gare de Saacy-sur-Marne, écoles sur place.Cadre verdoyant et calme.Demandez une étude gratuite et personnalisée de votre projet de construction !Contactez Olivier SAMSON au (Numéro supprimé) ou au (Numéro supprimé) (Pavillons d'Île-de-France – Agence de Meaux).Prix avec assurance dommages-ouvrage comprise, hors VRD, terrain non viabilisé, assainissement non compris, frais de notaire non compris, taxes non comprises, frais divers non compris. Terrain sélectionné et vu pour vous sous réserve de disponibilité et au prix indiqué par notre partenaire foncier. Visuels non contractuels.Cette annonce a été créée et diffusée avec le logiciel VITAHOME.
Sainte-Aulde
TERRAIN ET MAISONRéalisez votre projet de construction de maison RE 2020 avec PAVILLONS D'ÎLE-DE-FRANCE (constructeur de maisons de gamme et sur-mesure depuis plus de 50 ans) :- Plan sur-mesure et personnalisé de 2 à 5 chambres- Mode de chauffage au choix- Grands choix d'équipements et de prestations- Matériaux de qualité selon les normes en vigueur- Accompagnement dans le choix et l’acquisition du terrainInformations du terrain : Terrain situé à 10 minutes de la gare de Saacy-sur-Marne, écoles sur place.Cadre verdoyant et calme.Demandez une étude gratuite et personnalisée de votre projet de construction !Contactez Olivier SAMSON au (Numéro supprimé) ou au (Numéro supprimé) (Pavillons d'Île-de-France – Agence de Meaux).Prix avec assurance dommages-ouvrage comprise, hors VRD, terrain non viabilisé, assainissement non compris, frais de notaire non compris, taxes non comprises, frais divers non compris. Terrain sélectionné et vu pour vous sous réserve de disponibilité et au prix indiqué par notre partenaire foncier. Visuels non contractuels.Cette annonce a été créée et diffusée avec le logiciel VITAHOME.
L’actualité immobilière à Marigny-en-Orxois
27/11/2023
02/11/2023
30/10/2023
20/10/2023
16/10/2023
16/10/2023