Images
Description
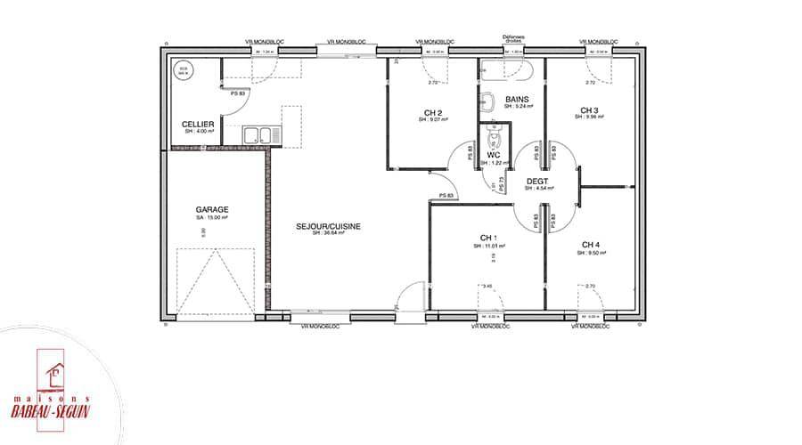
Sur ce terrain, nous vous proposons cette maison neuve : la Focus Family. Conçue par Babeau-Seguin, constructeur offrant le meilleur rapport qualité/prix du marché, cette maison familiale à tout petit prix est idéale pour ceux qui souhaitent allier confort et économies.
Avec une surface habitable de 89 m², la Focus Family vous offre un espace généreux et bien agencé. Elle comprend 4 chambres, parfaites pour accueillir toute votre famille, ainsi qu'un grand séjour traversant avec cuisine ouverte, pour un total de 4 pièces. Vous apprécierez également le garage intégré, pratique pour stationner votre véhicule ou pour du rangement supplémentaire.
L'enduit bi-ton de la façade apporte une touche moderne et élégante à cette maison. De plus, les options les plus demandées par nos clients, comme les menuiseries en aluminium, sont disponibles pour personnaliser votre future habitation selon vos goûts.
La Focus Family est une maison basse consommation, conforme à la réglementation environnementale RE2020. Elle est équipée des dernières innovations technologiques pour garantir une isolation thermique et phonique optimale, tout en étant économique et respectueuse de l'environnement.
Ne faites aucune concession sur la qualité avec cette maison low cost de luxe. Babeau-Seguin met tout son savoir-faire et son professionnalisme dans la construction de la gamme Focus, en utilisant les meilleurs matériaux et une charpente traditionnelle.
N'attendez plus pour réaliser votre projet de maison familiale à petit prix avec la Focus Family, une maison spacieuse, écolo et accessible à tous les budgets.
Logement susceptibles de vous intéresser
Nous vous proposons de découvrir aussi cette sélection de logements situés à moins de 10km de Saint-Christophe-à-Berry et qui seraient susceptibles de vous intéresser.

Saint-Christophe-à-Berry
TERRAIN ET MAISONSur ce terrain, nous vous proposons cette maison neuve : la Focus Family. Conçue par Babeau-Seguin, constructeur offrant le meilleur rapport qualité/prix du marché, cette maison familiale à tout petit prix est idéale pour ceux qui souhaitent allier confort et économies.Avec une surface habitable de 89 m², la Focus Family vous offre un espace généreux et bien agencé. Elle comprend 4 chambres, parfaites pour accueillir toute votre famille, ainsi qu’un grand séjour traversant avec cuisine ouverte, pour un total de 4 pièces. Vous apprécierez également le garage intégré, pratique pour stationner votre véhicule ou pour du rangement supplémentaire.L’enduit bi-ton de la façade apporte une touche moderne et élégante à cette maison. De plus, les options les plus demandées par nos clients, comme les menuiseries en aluminium, sont disponibles pour personnaliser votre future habitation selon vos goûts.La Focus Family est une maison basse consommation, conforme à la réglementation environnementale RE2020. Elle est équipée des dernières innovations technologiques pour garantir une isolation thermique et phonique optimale, tout en étant économique et respectueuse de l’environnement.Ne faites aucune concession sur la qualité avec cette maison low cost de luxe. Babeau-Seguin met tout son savoir-faire et son professionnalisme dans la construction de la gamme Focus, en utilisant les meilleurs matériaux et une charpente traditionnelle.N’attendez plus pour réaliser votre projet de maison familiale à petit prix avec la Focus Family, une maison spacieuse, écolo et accessible à tous les budgets.

Saint-Christophe-à-Berry
TERRAINNous sommes ravis de vous proposer à la vente un terrain de 1809 m² situé à Saint-Christophe-à-Berry, dans l’Aisne, au cœur des Hauts-de-France. Ce terrain, offrant un cadre champêtre et calme, représente une opportunité idéale pour réaliser un projet de construction de maison. Non-viabilisé, il vous laisse la liberté d’imaginer votre espace de vie selon vos aspirations et vos envies. Saint-Christophe-à-Berry est une charmante commune qui séduit par son environnement tranquille et verdoyant. A proximité, vous trouverez de nombreuses attractions locales ainsi que des commodités telles que des commerces, des écoles, et des infrastructures sportives, qui enrichissent le cadre de vie. La beauté du paysage et la proximité de la nature apportent une sensation d’évasion, tout en restant accessible aux services urbains. Ce lieu paisible, tout en offrant un équilibre parfait entre la vie rurale et les commodités de la ville, offre un fort potentiel pour votre futur projet. Ce terrain constitue une occasion unique d’investir dans un espace qui pourra accueillir votre future maison. N’hésitez pas à envisager cette opportunité d’achat ! À noter qu’en tant que constructeur, nous ne sommes pas mandatés pour réaliser la vente de ce terrain.

Saint-Christophe-à-Berry
TERRAIN ET MAISONSur ce terrain, nous vous proposons la maison Focus Urban 80, un modèle à étage compact et moderne parfaitement adapté aux parcelles urbaines. Avec ses 80 m² habitables, cette maison neuve offre une belle pièce de vie ouverte et lumineuse au rez-de-chaussée, trois chambres bien agencées à l’étage, ainsi qu’un garage intégré pour plus de confort au quotidien.La distribution des pièces est pensée pour séparer harmonieusement les espaces jour et nuit, tout en maximisant la surface utile. Conforme à la réglementation environnementale RE2020, la Focus Urban garantit un excellent niveau de performance énergétique, avec un confort thermique optimal été comme hiver.C’est une solution idéale pour un premier achat, avec un prix accessible, un style sobre et contemporain, et la possibilité de vivre dans une maison neuve bien conçue, tout en maîtrisant votre budget.

Saint-Christophe-à-Berry
TERRAINNous sommes ravis de vous présenter ce terrain exceptionnel de 940 m², situé à Saint-Christophe-à-Berry, dans l’Aisne en région Hauts-de-France. Ce terrain offre une vue dégagée et s’inscrit dans un cadre champêtre enchanteur, idéal pour la réalisation de votre projet de construction de maison. C’est une opportunité unique pour les acheteurs en quête d’un environnement calme et serein, propice à la création d’un véritable havre de paix. Saint-Christophe-à-Berry est une charmante commune qui séduit par son authenticité et sa convivialité. Ce secteur paisible, riche en nature, vous permettra de profiter pleinement de la tranquillité de la campagne tout en étant à proximité des commodités essentielles. Les habitants bénéficient d’un accès facile aux services locaux, aux écoles et aux infrastructures sportives. Le dynamisme de cette région et ses nombreuses attractions vous offriront un cadre de vie agréable, vous permettant de profiter des plaisirs de la vie rurale tout en restant connecté à la ville. Ne manquez pas cette opportunité d’acquérir un terrain avec un potentiel exceptionnel, propice à la construction de votre maison de rêve. Contactez-nous dès aujourd’hui pour discuter de ce projet passionnant. À noter qu’en tant que constructeur, nous ne sommes pas mandatés pour réaliser la vente de ce terrain.

Ressons-le-Long
TERRAIN ET MAISONRéalisez votre projet de construction de maison RE 2020 avec PAVILLONS D'ÎLE-DE-FRANCE (constructeur de maisons de gamme et sur-mesure depuis plus de 50 ans) :- Plan sur-mesure et personnalisé de 2 à 5 chambres- Mode de chauffage au choix- Grands choix d'équipements et de prestations- Matériaux de qualité selon les normes en vigueur- Accompagnement dans le choix et l’acquisition du terrainDemandez une étude gratuite et personnalisée de votre projet de construction !Contactez Dominique BRETEL au (Numéro supprimé) ou au (Numéro supprimé) (Pavillons d'Île-de-France – Agence de Soissons).Prix avec assurance dommages-ouvrage comprise, hors VRD, terrain non viabilisé, assainissement non compris, frais de notaire non compris, taxes non comprises, frais divers non compris. Terrain sélectionné et vu pour vous sous réserve de disponibilité et au prix indiqué par notre partenaire foncier. Visuels non contractuels.Cette annonce a été créée et diffusée avec le logiciel VITAHOME.

Selens
TERRAIN ET MAISONRéalisez votre projet de construction de maison RE 2020 avec PAVILLONS D'ÎLE-DE-FRANCE (constructeur de maisons de gamme et sur-mesure depuis plus de 50 ans) :- Plan sur-mesure et personnalisé de 2 à 5 chambres- Mode de chauffage au choix- Grands choix d'équipements et de prestations- Matériaux de qualité selon les normes en vigueur- Accompagnement dans le choix et l’acquisition du terrainDemandez une étude gratuite et personnalisée de votre projet de construction !Contactez Dominique BRETEL au (Numéro supprimé) ou au (Numéro supprimé) (Pavillons d'Île-de-France – Agence de Soissons).Prix avec assurance dommages-ouvrage comprise, hors VRD, terrain viabilisé, assainissement compris, frais de notaire compris, taxes comprises, frais divers compris. Terrain sélectionné et vu pour vous sous réserve de disponibilité et au prix indiqué par notre partenaire foncier. Visuels non contractuels.Cette annonce a été créée et diffusée avec le logiciel VITAHOME.

Vic-sur-Aisne
TERRAIN ET MAISONRéalisez votre projet de construction de maison RE 2020 avec PAVILLONS D'ÎLE-DE-FRANCE (constructeur de maisons de gamme et sur-mesure depuis plus de 50 ans) :- Plan sur-mesure et personnalisé de 2 à 5 chambres- Mode de chauffage au choix- Grands choix d'équipements et de prestations- Matériaux de qualité selon les normes en vigueur- Accompagnement dans le choix et l’acquisition du terrainInformations du terrain : Rare sur Vic sur Aisne – Terrain situé dans zone pavillonnaire – avec commerces – terrain plat belle façade 21 Mètres. – accès RN31 Direct.Demandez une étude gratuite et personnalisée de votre projet de construction !Contactez Dominique BRETEL au (Numéro supprimé) ou au (Numéro supprimé) (Pavillons d'Île-de-France – Agence de Soissons).Prix avec assurance dommages-ouvrage comprise, hors VRD, terrain non viabilisé, assainissement non compris, frais de notaire non compris, taxes non comprises, frais divers non compris. Terrain sélectionné et vu pour vous sous réserve de disponibilité et au prix indiqué par notre partenaire foncier. Visuels non contractuels.Cette annonce a été créée et diffusée avec le logiciel VITAHOME.

Selens
TERRAINPrix : 21000 €.Sur ce terrain, réalisez votre projet de construction de maison RE 2020 avec PAVILLONS D'ÎLE-DE-FRANCE (constructeur de maisons de gamme et sur-mesure depuis plus de 50 ans) :- Plan sur-mesure et personnalisé de 2 à 5 chambres- Mode de chauffage au choix- Grands choix d'équipements et de prestations- Matériaux de qualité selon les normes en vigueur- Accompagnement dans le choix et l’acquisition du terrainDemandez une étude gratuite et personnalisée de votre projet de construction sur ce terrain !Contactez Dominique BRETEL au (Numéro supprimé) ou au (Numéro supprimé) (Pavillons d'Île-de-France – Agence de Soissons).Prix hors frais de notaire. Terrain sélectionné et vu pour vous sous réserve de disponibilité et au prix indiqué par notre partenaire foncier. Visuels non contractuels.Cette annonce a été créée et diffusée avec le logiciel VITAHOME.

Vic-sur-Aisne
TERRAINRare sur Vic sur Aisne – Terrain situé dans zone pavillonnaire – avec commerces – terrain plat belle façade 21 Mètres. – accès RN31 Direct.Prix : 44000 €.Sur ce terrain, réalisez votre projet de construction de maison RE 2020 avec PAVILLONS D'ÎLE-DE-FRANCE (constructeur de maisons de gamme et sur-mesure depuis plus de 50 ans) :- Plan sur-mesure et personnalisé de 2 à 5 chambres- Mode de chauffage au choix- Grands choix d'équipements et de prestations- Matériaux de qualité selon les normes en vigueur- Accompagnement dans le choix et l’acquisition du terrainDemandez une étude gratuite et personnalisée de votre projet de construction sur ce terrain !Contactez Dominique BRETEL au (Numéro supprimé) ou au (Numéro supprimé) (Pavillons d'Île-de-France – Agence de Soissons).Prix hors frais de notaire. Terrain sélectionné et vu pour vous sous réserve de disponibilité et au prix indiqué par notre partenaire foncier. Visuels non contractuels.Cette annonce a été créée et diffusée avec le logiciel VITAHOME.
L’actualité immobilière à Saint-Christophe-à-Berry





