Images
Description
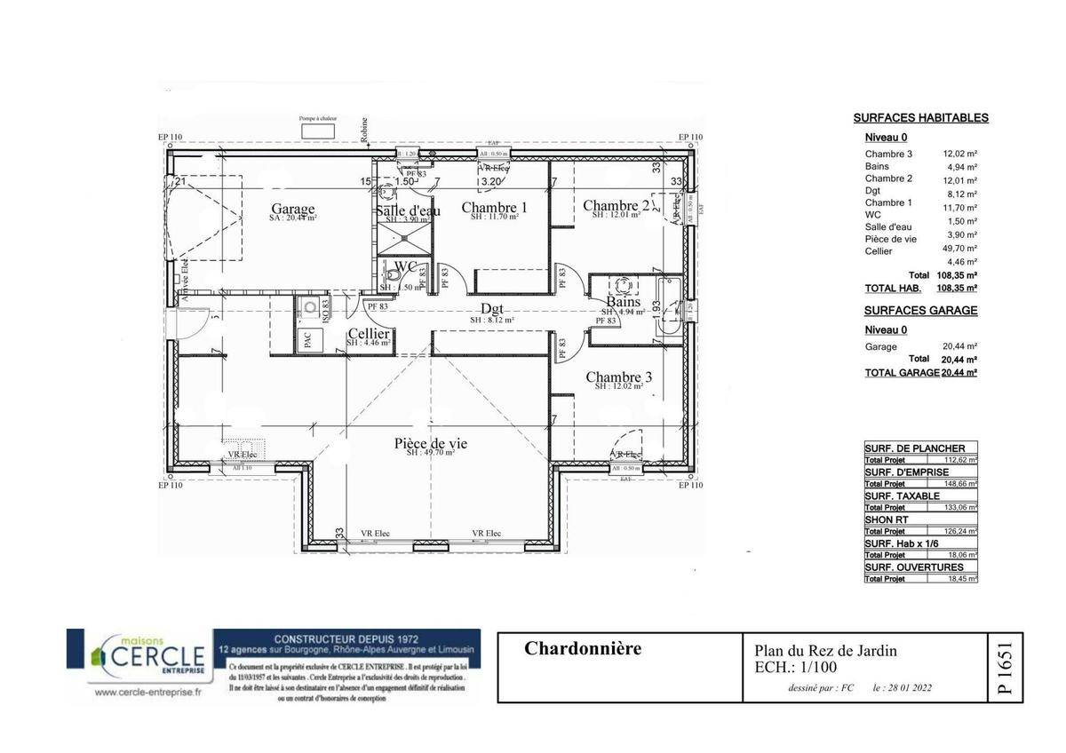
Nous vous proposons cette maison neuve, baptisée ""Chardonnière"", un modèle de plain-pied qui allie élégance et fonctionnalité, conçu pour répondre aux attentes des familles modernes. Avec une surface habitable de 106 m², cette demeure se distingue par son plan en T, offrant une organisation de l'espace optimale et une intégration harmonieuse dans son environnement.
La ""Chardonnière"" comprend 4 chambres spacieuses, permettant à chaque membre de la famille de bénéficier de son propre espace de tranquillité. Les pièces sont réparties de manière à favoriser l'intimité tout en conservant une belle convivialité dans les espaces de vie communs. Le salon et la salle à manger, d'une superficie généreuse de près de 50 m², forment un espace ouvert lumineux, idéal pour les moments de partage et de détente.
Cette maison est également équipée de deux salles de bains, dont une attenante à la suite parentale, offrant confort et praticité au quotidien. Le garage intégré, accessible depuis l'une des entrées de la maison, est un atout majeur pour les terrains à accès restreint, tout en préservant l'intimité des pièces de vie.
Construite selon la norme RE2020, la ""Chardonnière"" est une maison basse consommation qui illustre notre engagement envers l'environnement et le bien-être de ses occupants. Grâce à une isolation performante et une conception orientée vers le confort d'été, elle garantit une consommation énergétique minimale et un confort maximal, quelle que soit la saison.
Les options les plus plébiscitées, telles que les menuiseries en aluminium et la domotique, sont disponibles pour personnaliser votre maison selon vos envies et besoins. Ces technologies modernes ne sont pas seulement un gage de qualité et de durabilité, mais elles offrent également une expérience de vie connectée et simplifiée.
En choisissant ""Chardonnière"", vous optez pour une maison qui allie esthétique, confort et respect de l'environnement. Une demeure où chaque détail a été pensé pour répondr
Logement susceptibles de vous intéresser
Nous vous proposons de découvrir aussi cette sélection de logements situés à moins de 10km de Louchy-Montfand et qui seraient susceptibles de vous intéresser.
Meillard
TERRAIN ET MAISONNous vous proposons cette maison neuve, baptisée Eolia, un modèle d’habitation qui allie élégance et fonctionnalité dans un design en L distinctif. Avec une surface habitable de 102 m², cette maison est conçue pour offrir confort et bien-être à ses résidents. Elle dispose de 4 chambres spacieuses et est composée de 4 pièces bien agencées, promettant ainsi un cadre de vie idéal pour une famille.L’Eolia se distingue par son architecture moderne avec un choix entre un toit à 2 ou 4 pans et intègre un garage, fusionnant esthétique et praticité. La conception en L de la maison n’est pas seulement un choix esthétique mais aussi fonctionnel, offrant une séparation naturelle entre les espaces de vie et les zones de nuit, tout en maximisant l’exposition à la lumière naturelle.L’aspect le plus séduisant de l’Eolia réside dans sa grande ouverture vers l’extérieur. La possibilité d’aménager une vaste terrasse est une invitation à profiter des jours ensoleillés et des soirées douces, faisant de cette maison le lieu parfait pour des moments conviviaux en famille ou entre amis.Construite dans le respect des normes de la RE2020, cette maison basse consommation est un choix responsable qui témoigne de votre engagement envers l’environnement. Elle est équipée des dernières innovations en matière d’isolation et de systèmes énergétiques, garantissant ainsi une réduction significative de vos factures énergétiques tout en offrant un confort optimal en toutes saisons.L’Eolia est une maison qui répond aux attentes des plus exigeants, alliant design moderne, fonctionnalité et performance énergétique. C’est une opportunité unique de faire construire votre future maison, un espace pensé pour le bien-être de toute la famille. Ne laissez pas passer cette chance de vivre dans une maison qui allie beauté, confort et respect de l’environnement.
Meillard
TERRAINNous vous présentons un terrain de 2816 m² à vendre, idéalement situé dans la charmante commune de Meillard, au cœur du département de l’Allier, dans la région Auvergne-Rhône-Alpes. Ce terrain viabilisé, ensoleillé et plat, s’inscrit parfaitement dans un cadre champêtre et calme, idéal pour un projet de construction de maison. Ses caractéristiques uniques vous offrent l’opportunité de bâtir votre nid douillet dans un environnement paisible et agréable. Meillard est une commune pleine de charme, appréciée pour son atmosphère conviviale et ses paysages naturels préservés. Ce terrain offre un potentiel exceptionnel pour réaliser votre rêve de construction. N’hésitez pas à envisager cette opportunité d’achat ! À noter qu’en tant que constructeur, nous ne sommes pas mandatés pour réaliser la vente de ce terrain. ( Le projet Maison + terrain inclus les frais de notaire pour l’achat du terrain, la réalisation d’un accès , l’assurance dommage ouvrage ainsi que l’étude de sol G2 obligatoire). + de 80 autres modèles possibles. D’autres terrains sont disponibles dans le secteur. Contactez votre conseiller commercial: Anthony GRASSI
Meillard
TERRAIN ET MAISONNous vous proposons cette maison neuve, baptisée Focus 91, une demeure qui réinvente l’art de vivre en famille. Avec ses 91 m² judicieusement répartis, cette maison est l’incarnation parfaite du célèbre slogan L’espace n’est plus un luxe. Elle offre non seulement quatre chambres spacieuses mais aussi une grande pièce de vie où partager des moments inoubliables devient la norme. La Focus 91 se distingue par son design extérieur jeune et intemporel, qui séduira à coup sûr ceux qui cherchent à allier esthétique et fonctionnalité. Son grand garage intégré ajoute une touche de commodité non négligeable, faisant de cette maison le choix idéal pour les familles en quête d’un foyer convivial et pratique.Mais ce qui rend la Focus 91 véritablement exceptionnelle, c’est son rapport qualité/prix inimaginable pour une maison basse consommation. Conforme à la norme RE2020, cette maison est conçue pour minimiser votre empreinte écologique tout en maximisant votre confort. Elle est entièrement personnalisable, vous permettant ainsi de créer un espace qui reflète parfaitement votre style de vie et vos préférences.Les options les plus plébiscitées par nos clients, telles que des solutions d’isolation avancées et des systèmes de chauffage performants, sont disponibles pour faire de la Focus 91 une maison encore plus économique et agréable à vivre. En choisissant cette maison, vous optez pour un habitat durable qui répond aux exigences les plus strictes en matière de consommation énergétique.La Focus 91 est plus qu’une maison ; c’est un investissement dans votre avenir et celui de votre famille. Ne manquez pas l’opportunité de construire le foyer de vos rêves, un lieu où chaque jour est une invitation à profiter de la vie dans ce qu’elle a de meilleur. Contactez-nous dès maintenant pour commencer à concrétiser votre projet de vie dans une maison qui, bien plus qu’un lieu de résidence, sera le théâtre de vos plus beaux souvenirs.
Meillard
TERRAINNous vous présentons ce terrain exceptionnel de 3723 m², idéal pour un projet de construction de maison dans la charmante commune de Meillard, située dans le département de l’Allier en Auvergne-Rhône-Alpes. Ce terrain, viabilisé et plat, offre un cadre champêtre avec un ensoleillement optimal, tout en étant sans vis-à-vis. Profitez d’un environnement calme et paisible, parfait pour la création de votre havre de paix. Ce bien rare promet de devenir le cocon familial de vos rêves. Ce terrain constitue une véritable opportunité d’achat, conjuguant qualité de vie et potentiel de construction. N’attendez plus pour envisager l’avenir de votre résidence dans ce cadre enchanteur. À noter qu’en tant que constructeur, nous ne sommes pas mandatés pour réaliser la vente de ce terrain. À noter qu’en tant que constructeur, nous ne sommes pas mandatés pour réaliser la vente de ce terrain. ( Le projet Maison + terrain inclus les frais de notaire pour l’achat du terrain, la réalisation d’un accès , l’assurance dommage ouvrage ainsi que l’étude de sol G2 obligatoire). + de 80 autres modèles possibles. D’autres terrains sont disponibles dans le secteur.
Saint-Pourçain-sur-Sioule
TERRAIN ET MAISONNous vous proposons cette maison neuve, modèle « »Bruyère » », conçue avec soin pour allier confort, esthétique et performance énergétique. D’une surface de 105 m², cette maison de plain-pied se distingue par son architecture soignée et ses fonctionnalités pensées pour le bien-être de ses occupants.Le modèle « »Bruyère » » vous accueille avec un auvent élégant qui couvre l’entrée et le séjour, offrant une protection solaire optimale durant l’été et ajoutant un cachet indéniable à l’ensemble. Les différents volumes de toit ne sont pas en reste, contribuant à l’attrait esthétique de cette demeure.Cette maison est conçue pour maximiser l’espace et la lumière naturelle, offrant une distribution intérieure classique mais extrêmement efficace. Initialement prévue avec 3 chambres, notre offre inclut une déclinaison à 4 chambres, répondant ainsi aux besoins des familles à la recherche d’espace supplémentaire.L’un des atouts majeurs de la « »Bruyère » » réside dans son garage intégré, pratique et esthétique, qui s’harmonise parfaitement avec le style de la maison. De plain-pied, cette maison est accessible à tous, facilitant la vie quotidienne et offrant un confort de vie inégalé.Conforme à la norme RE2020, cette maison neuve est un modèle de basse consommation, vous assurant des économies d’énergie significatives tout en respectant l’environnement. La « »Bruyère » » est donc une réponse concrète aux attentes des clients les plus exigeants, cherchant à allier confort moderne et responsabilité écologique.En choisissant le modèle « »Bruyère » », vous optez pour une maison qui répond non seulement à vos besoins d’espace et de confort mais aussi à votre engagement pour un habitat durable et économe en énergie. Ne manquez pas l’opportunité de construire la maison de vos rêves, un lieu où chaque détail a été pensé pour votre bien-être.
Saint-Pourçain-sur-Sioule
TERRAINÀ visiter, terrain viabilisé de 1044 m² dans un environnement calme à Saint-Pourçain/Sioule. Proches commerces et écoles, idéalement situé. Terrain vu pour vous, hors frais de notaire et aménagement extérieurs.
Saint-Pourçain-sur-Sioule
TERRAIN ET MAISONNous vous proposons cette maison neuve, baptisée Design L, une conception architecturale moderne et élégante qui optimise l’espace et la lumière naturelle. Avec une surface habitable de 90 m², cette maison de plain-pied se distingue par sa forme en « »L » », permettant une parfaite adaptation sur des terrains de petite largeur tout en offrant un espace de vie convivial et intime.La Design L se compose de 4 pièces principales, dont 3 chambres confortables, un cellier pratique et un garage intégré, répondant ainsi aux besoins des familles en quête d’un foyer fonctionnel et accueillant. La disposition en « »L » » de la maison crée un espace extérieur protégé, idéal pour des moments de détente en toute intimité.Cette maison est conçue dans le respect des normes RE2020, garantissant une performance énergétique de premier plan. En tant que maison basse consommation, elle vous permettra de réaliser d’importantes économies d’énergie tout en contribuant à la protection de l’environnement. La Design L est donc une réponse concrète aux attentes des acquéreurs soucieux de leur empreinte écologique et désireux de bénéficier des dernières innovations en matière de confort et d’économie d’énergie.Parmi les options les plus plébiscitées par nos clients, la Design L offre la possibilité d’ajouter des équipements et des finitions personnalisées pour que votre maison neuve réponde parfaitement à vos attentes et à votre style de vie.Choisir la Design L, c’est opter pour une maison à la fois moderne, économique et adaptée à la vie de famille. Son prix attractif et ses caractéristiques en font une des références de notre gamme, capable de satisfaire les plus exigeants en termes de qualité de vie et de respect de l’environnement.N’attendez plus pour faire de la Design L votre nouveau chez-vous, un lieu où convivialité, confort et durabilité se rencontrent pour créer un cadre de vie idéal.
Saint-Pourçain-sur-Sioule
TERRAINIdéalement situé à Saint-Pourçain/Sioule, à 5 mn du centre-ville, terrain viabilisé de 845 m² dans un environnement calme. Terrain vu pour vous, hors frais de notaire et aménagement extérieurs.
Saint-Pourçain-sur-Sioule
TERRAIN ET MAISONNous vous proposons cette maison neuve, baptisée « »Dolcetto » », un modèle de résidence qui allie élégance et fonctionnalité sur une surface habitable de 93 m². Conçue pour s’adapter harmonieusement à des terrains de dimensions modestes, cette maison de plain-pied se distingue par son architecture intelligente, avec deux volumes décalés permettant une intégration optimale et un porche d’accueil chaleureux devant le hall.La « »Dolcetto » » est une habitation lumineuse par excellence, bénéficiant d’une triple orientation dans la partie vie, ce qui maximise l’ensoleillement tout au long de la journée. Elle se compose de quatre pièces principales, dont trois chambres confortables, une salle de bains centrale, un cellier pratique, un WC séparé, ainsi qu’un garage attenant, répondant ainsi parfaitement aux besoins d’une famille moderne.Cette maison est conçue dans le respect des normes RE2020, garantissant une performance énergétique de premier ordre. Elle est synonyme de basse consommation, une caractéristique essentielle pour les acquéreurs conscients de l’importance de l’efficacité énergétique et soucieux de l’environnement. Parmi les options les plus plébiscitées, les panneaux solaires se distinguent, offrant une source d’énergie renouvelable pour réduire encore davantage les dépenses énergétiques et assurer une autonomie accrue.La « »Dolcetto » » est donc une proposition idéale pour ceux qui cherchent à investir dans une maison neuve, économique et respectueuse de l’environnement, sans faire de compromis sur le confort et le style de vie. Avec ses espaces bien pensés et sa conception orientée vers la luminosité, elle promet un cadre de vie des plus agréables pour toute la famille.
L’actualité immobilière à Louchy-Montfand
27/11/2023
02/11/2023
30/10/2023
20/10/2023
16/10/2023
16/10/2023