Maison à construire à Corbières (04220)
Images
Description
Les Maisons France Confort construisent pour vous :
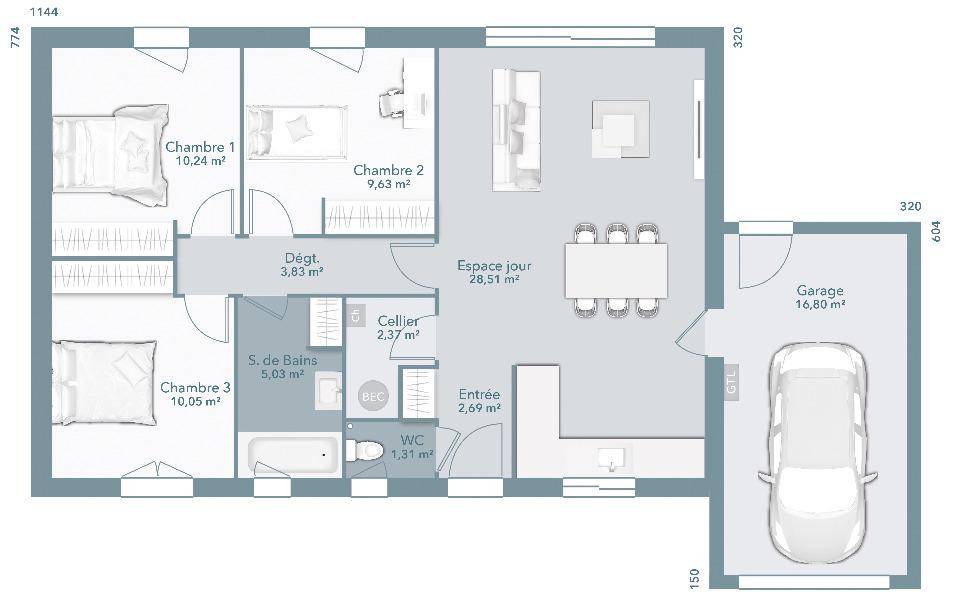
Villa plain pied de 73m², avec deux chambres et une belle pièce à vivre.
Emplacement de qualité dans un lotissement idéalement situé.
Projet accompagné d'un garage.
Terrain plat et viabilisé, belle exposition possible et proche de toutes les commodités.
Grâce à sa belle exposition et répondant à la Règlementation Environnementale 2020, profitez d'une résidence neuve, tout confort, réduisant votre consommation d'énergie.
Pour plus de renseignements, contactez votre conseiller Nicolas Van Brussel,
Les Maisons France Confort ((Numéro supprimé)).
Annonce proposée par un Agent Commercial Partenaire.
Logement susceptibles de vous intéresser
Nous vous proposons de découvrir aussi cette sélection de logements situés à moins de 10km de Corbières-en-Provence et qui seraient susceptibles de vous intéresser.
Pierrevert
TERRAIN ET MAISONA PIERREVERT sur un terrain de 498 m², VILLAS PRISME vous propose de réaliser votre projet de construction de maison individuelle d'une surface de 85 m² habitables avec 3 chambres.Avec VILLAS PRISME, vous pouvez personnaliser votre projet de maison sur mesure :- Plan et distribution- Système de chauffage au choix- Prestations et équipements selon vos souhaits : carrelages, faïence, menuiseries, salles de bains…- Mode constructif et matériaux selon les normes en vigueur Informations du terrain : quartier calmeDemandez une étude gratuite et personnalisée de votre projet de construction !Contactez Danielle TRÉVISIOL au (Numéro supprimé) (Villas Prisme – Agence de Manosque).Prix avec assurance dommages-ouvrage comprise, hors VRD, viabilisation comprise, frais de notaire non compris, frais divers non compris. Terrain sélectionné et vu pour vous sous réserve de disponibilité et au prix indiqué par notre partenaire foncier. Non mandaté pour la vente du terrain. Visuels non contractuels.Cette annonce a été créée et diffusée avec le logiciel VITAHOME.
Pierrevert
TERRAINC'est dans le très beau village de Pierrevert, que je vous propose ce terrain vendu entièrement viabilisé dans un tout nouveau lotissement comportant 9 lots constructibles. Les travaux de VRD sont en cours. Chaque parcelle bénéficie d'une belle orientation Sud Ouest et d'une emprise au sol de 200m2.A découvrir rapidement ! 6 parcelles restent disponibles !Prix : 135000 €.Sur ce terrain de 434 m² à PIERREVERT, VILLAS PRISME vous propose de réaliser votre projet de construction de maison individuelle.Avec VILLAS PRISME, vous pouvez personnaliser votre projet de maison sur mesure :- Plan et distribution- Système de chauffage au choix- Prestations et équipements selon vos souhaits : carrelages, faïence, menuiseries, salles de bains…- Mode constructif et matériaux selon les normes en vigueur Demandez une étude gratuite et personnalisée de votre projet de construction sur ce terrain à PIERREVERT ! Prix hors frais de notaire. Terrain sélectionné et vu pour vous sous réserve de disponibilité et au prix indiqué par notre partenaire foncier. Non mandaté pour la vente du terrain. Visuels non contractuels.Cette annonce a été créée et diffusée avec le logiciel VITAHOME.
Pierrevert
TERRAIN ET MAISONA PIERREVERT sur un terrain de 434 m², VILLAS PRISME vous propose de réaliser votre projet de construction de maison individuelle d'une surface de 85 m² habitables avec 3 chambres, garage 15m² et terrasse carrléeAvec VILLAS PRISME, vous pouvez personnaliser votre projet de maison sur mesure :- Plan et distribution- Système de chauffage gainable- Prestations et équipements selon vos souhaits : carrelages, faïence, menuiseries, salles de bains…- Mode constructif et matériaux selon les normes en vigueur Demandez une étude gratuite et personnalisée de votre projet de construction !Contactez Danielle TRÉVISIOL au (Numéro supprimé) (Villas Prisme – Agence de Manosque).Prix avec assurance dommages-ouvrage comprise, hors VRD, terrain viabilisé, frais de notaire non compris, frais divers non compris. Terrain sélectionné et vu pour vous sous réserve de disponibilité et au prix indiqué par notre partenaire foncier. Non mandaté pour la vente du terrain. Visuels non contractuels.Cette annonce a été créée et diffusée avec le logiciel VITAHOME.
Manosque
TERRAIN ET MAISONA MANOSQUE sur un terrain de 500 m², VILLAS PRISME vous propose de réaliser votre projet de construction de maison individuelle d'une surface de 85 m² habitables avec 3 chambres, garage et porche.Avec VILLAS PRISME, vous pouvez personnaliser votre projet de maison sur mesure :- Plan et distribution- Système de chauffage au choix- Prestations et équipements selon vos souhaits : carrelages, faïence, menuiseries, salles de bains…- Mode constructif et matériaux selon les normes en vigueur Informations du terrain : QUARTIER CALMEDemandez une étude gratuite et personnalisée de votre projet de construction !Contactez Danielle TRÉVISIOL au (Numéro supprimé) (Villas Prisme – Agence de Manosque).Prix avec assurance dommages ouvrage comprise, terrain viabilisé, frais de notaire non compris, frais divers non compris. Terrain sélectionné et vu pour vous sous réserve de disponibilité et au prix indiqué par notre partenaire foncier. Non mandaté pour la vente du terrain. Visuels non contractuels.Cette annonce a été créée et diffusée avec le logiciel VITAHOME.
Pierrevert
TERRAIN ET MAISONA PIERREVERT sur un terrain de 759 m², VILLAS PRISME vous propose de réaliser votre projet de construction de maison individuelle d'une surface de 125 m² habitables avec 4 chambres.Avec VILLAS PRISME, vous pouvez personnaliser votre projet de maison sur mesure :- Plan et distribution- Système de chauffage au choix- Prestations et équipements selon vos souhaits : carrelages, faïence, menuiseries, salles de bains…- Mode constructif et matériaux selon les normes en vigueur Informations du terrain : Proche village quartier calmeDemandez une étude gratuite et personnalisée de votre projet de construction !Contactez Danielle TRÉVISIOL au (Numéro supprimé) (Villas Prisme – Agence de Manosque).Prix avec assurance dommages-ouvrage comprise, terrain viabilisé, frais de notaire non compris, frais divers non compris. Terrain sélectionné et vu pour vous sous réserve de disponibilité et au prix indiqué par notre partenaire foncier. Non mandaté pour la vente du terrain. Visuels non contractuels.Cette annonce a été créée et diffusée avec le logiciel VITAHOME.
Pierrevert
TERRAINPrix : 127000 €.Sur ce terrain de 434 m² à PIERREVERT, VILLAS PRISME vous propose de réaliser votre projet de construction de maison individuelle.Avec VILLAS PRISME, vous pouvez personnaliser votre projet de maison sur mesure :- Plan et distribution- Système de chauffage au choix- Prestations et équipements selon vos souhaits : carrelages, faïence, menuiseries, salles de bains…- Mode constructif et matériaux selon les normes en vigueur Demandez une étude gratuite et personnalisée de votre projet de construction sur ce terrain à PIERREVERT ! Prix hors frais de notaire. Terrain sélectionné et vu pour vous sous réserve de disponibilité et au prix indiqué par notre partenaire foncier. Non mandaté pour la vente du terrain. Visuels non contractuels.Cette annonce a été créée et diffusée avec le logiciel VITAHOME.
Vinon-sur-Verdon
TERRAINLes Maisons de Manon Manosque ont sélectionné pour vous Terrain à bâtir de 648m² sur la commune de Vinon sur Verdon (83560). Profitez d’un environnement de qualité proche de toutes les commodités.Belle exposition possible, viabilisations en limite.Pour plus de renseignements sur votre projet, consultez votre conseiller Maisons de Manon Manosque.
Vinon-sur-Verdon
TERRAIN ET MAISONLes Maisons de Manon Manosque construisent pour vous :Villa a étage de 96m², avec quatre chambres et une belle pièce à vivre. Emplacement de qualité dans un lotissement idéalement situé.Projet accompagné d’un garage.Terrain plat et viabilisé, belle exposition possible et proche de toutes les commodités. Grâce à sa belle exposition et répondant à la Règlementation Environnementale 2020, profitez d’une résidence neuve, tout confort, réduisant votre consommation d’énergie. Pour plus de renseignements, contactez votre conseiller Les Maisons de Manon Manosque
Vinon-sur-Verdon
TERRAIN ET MAISONLes Maisons de Manon Manosque construisent pour vous :Villa a étage de 78m², avec trois chambres et une belle pièce à vivre. Emplacement de qualité, sur un terrain idéalement situé.Projet accompagné d’un garage.Terrain plat et viabilisé, belle exposition possible et proche de toutes les commodités. Grâce à sa belle exposition et répondant à la Règlementation Environnementale 2020, profitez d’une résidence neuve, tout confort, réduisant votre consommation d’énergie. Pour plus de renseignements, contactez votre conseiller Les Maisons de Manon Manosque
L’actualité immobilière à Corbières-en-Provence
27/11/2023
02/11/2023
30/10/2023
20/10/2023
16/10/2023
16/10/2023