Maison 95 m² avec terrain à LA BRILLANNE (04)
Images
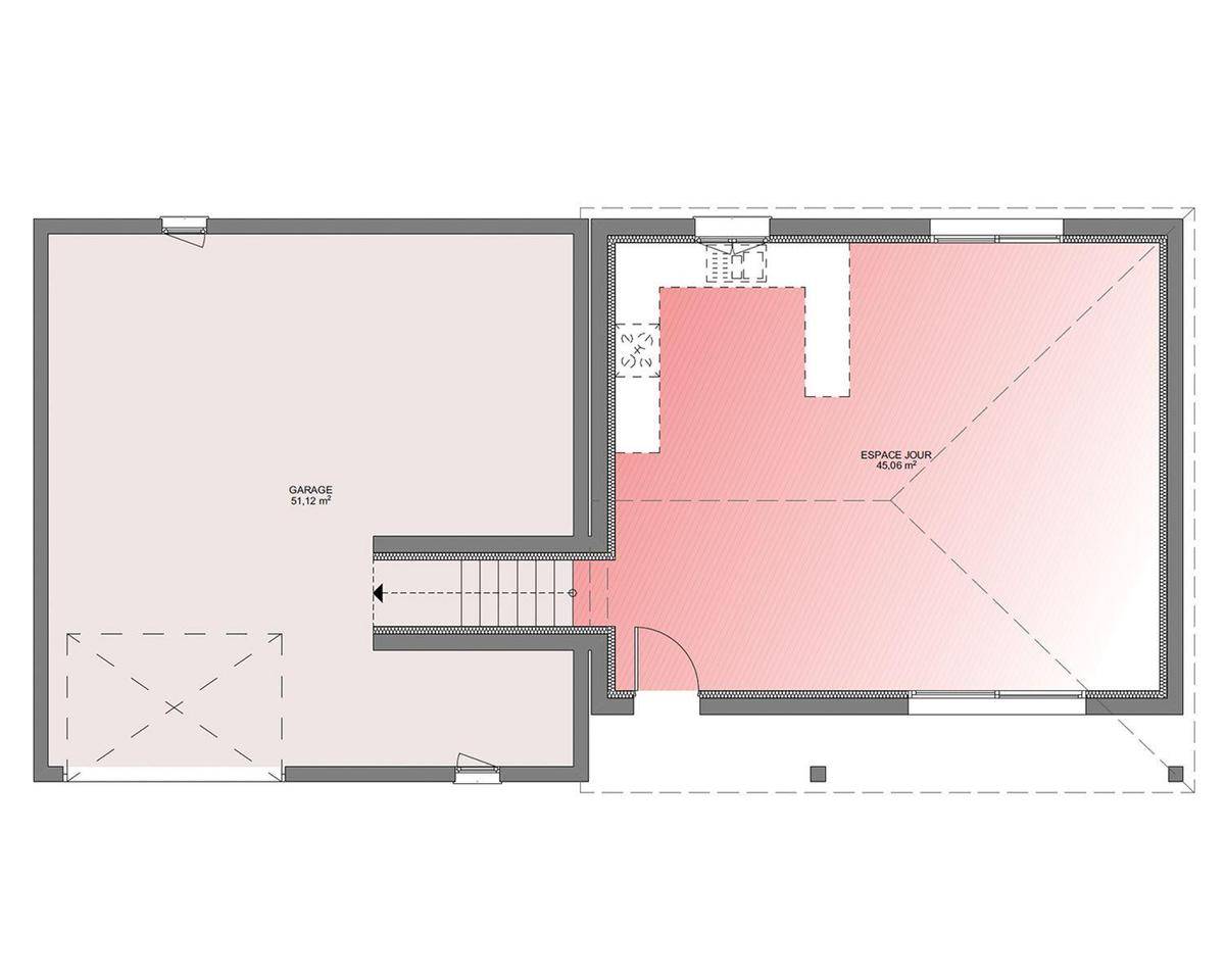
Description
A LA BRILLANNE sur un terrain de 400 m², VILLAS PRISME vous propose de réaliser votre projet de construction de maison individuelle d'une surface de 95 m² habitables avec 3 chambres.
Avec VILLAS PRISME, vous pouvez personnaliser votre projet de maison sur mesure :
- Plan et distribution
- Système de chauffage au choix
- Prestations et équipements selon vos souhaits : carrelages, faïence, menuiseries, salles de bains...
- Mode constructif et matériaux selon les normes en vigueur
Informations du terrain : A deux pas du village et des commodités.
Terrain plat et viabilisé de 400 m² bénéficiant d’une parfaite exposition.
Vue dégagée et peu de vis-à-vis.
Votre projet : Une maison sur mesure, construction brique et isolation renforcée RE2020.
Assurances et garanties du constructeur (RC professionnelle, décennale, dommage ouvrage, garantie de remboursement de l'acompte, livraison à prix et délai convenu).
Contact : Pierre JUHAN, (Numéro supprimé)
Demandez une étude gratuite et personnalisée de votre projet de construction !
Contactez Pierre JUHAN au (Numéro supprimé) (Villas Prisme - Agence de Manosque).
Prix avec assurance dommages-ouvrage comprise, hors VRD, terrain viabilisé, frais de notaire non compris, frais divers non compris. Terrain sélectionné et vu pour vous sous réserve de disponibilité et au prix indiqué par notre partenaire foncier. Non mandaté pour la vente du terrain. Visuels non contractuels.
Cette annonce a été créée et diffusée avec le logiciel VITAHOME.
Logement susceptibles de vous intéresser
Nous vous proposons de découvrir aussi cette sélection de logements situés à moins de 10km de La Brillanne et qui seraient susceptibles de vous intéresser.
Volx
TERRAINAu pied de la forêt de Pelicier, avec une vue imprenable sur la chaîne des Alpes, je vous propose ce terrain à bâtir d'environ 632m2, de surface plane et vendu entièrement viabilisé. L'emprise au sol est de 252m2 pour une surface autorisée maximale de 405m2. Idéal pour vous faire plaisir, en plain pied ou en étage !Prix : 134000 €.Sur ce terrain de 632 m² à VOLX, VILLAS PRISME vous propose de réaliser votre projet de construction de maison individuelle.Avec VILLAS PRISME, vous pouvez personnaliser votre projet de maison sur mesure :- Plan et distribution- Système de chauffage au choix- Prestations et équipements selon vos souhaits : carrelages, faïence, menuiseries, salles de bains…- Mode constructif et matériaux selon les normes en vigueur Demandez une étude gratuite et personnalisée de votre projet de construction sur ce terrain à VOLX ! Prix hors frais de notaire. Terrain sélectionné et vu pour vous sous réserve de disponibilité et au prix indiqué par notre partenaire foncier. Non mandaté pour la vente du terrain. Visuels non contractuels.Cette annonce a été créée et diffusée avec le logiciel VITAHOME.
La Brillanne
TERRAIN ET MAISONA LA BRILLANNE sur un terrain de 495 m², VILLAS PRISME vous propose de réaliser votre projet de construction de maison individuelle d'une surface de 90 m² habitables avec 3 chambres.Avec VILLAS PRISME, vous pouvez personnaliser votre projet de maison sur mesure :- Plan et distribution- Système de chauffage au choix- Prestations et équipements selon vos souhaits : carrelages, faïence, menuiseries, salles de bains…- Mode constructif et matériaux selon les normes en vigueur Informations du terrain : A deux pas du village et des commodités. Terrain plat et viabilisé de 495 m² bénéficiant d’une parfaite exposition.Vue dégagée et peu de vis-à-vis.Votre projet : Une maison sur mesure, construction brique et isolation renforcée RE2020.Assurances et garanties du constructeur (RC professionnelle, décennale, dommage ouvrage, garantie de remboursement de l'acompte, livraison à prix et délai convenu).Contact : Pierre JUHAN, (Numéro supprimé)Demandez une étude gratuite et personnalisée de votre projet de construction !Contactez Pierre JUHAN au (Numéro supprimé) (Villas Prisme – Agence de Manosque).Prix avec assurance dommages-ouvrage comprise, hors VRD, terrain viabilisé, frais de notaire non compris, frais divers non compris. Terrain sélectionné et vu pour vous sous réserve de disponibilité et au prix indiqué par notre partenaire foncier. Non mandaté pour la vente du terrain. Visuels non contractuels.Cette annonce a été créée et diffusée avec le logiciel VITAHOME.
Volx
TERRAINSur la commune recherchée de Volx, à proximité immédiate de Manosque et des axes principaux, découvrez ce magnifique terrain plats d’environ 300 m² situé dans un environnement calme et sans vis-à-vis.Ce terrain offre un cadre idéal pour construire votre maison individuelle de 80 m² environ, pour un budget total à partir de 225 000 € (terrain + maison).Un projet parfaitement adapté aux primo-accédants, avec possibilité de bénéficier des aides de l’État pour l’accession à la propriété.Terrain plat, bien orienté et facile à construireQuartier paisible, proche des commerces, écoles et servicesMaisons neuves conformes aux dernières normes énergétiquesMontage clair et accompagné : étude financière possible, suivi complet du projet jusqu’à la remise des clésVolx, charmant village provençal au cœur des Alpes-de-Haute-Provence, séduit par sa qualité de vie, sa proximité avec Manosque et ses paysages naturels. C’est un lieu idéal pour s’installer en famille, entre calme, soleil et authenticité.Prix des terrains : 75 000 €Contact uniquement par téléphone : (Numéro supprimé)
Volx
TERRAINMAISONS DE MANON MANOSQUE réalise pour vous un projet de construction de maison individuelle à votre image sur une parcelle viabilisée de 295 m² à VOLX.Quartier résidentiel, calme et agréable, à proximité du village et des commodités. Projet de construction entièrement personnalisable.
Volx
TERRAIN ET MAISONLes Maisons France Confort construisent pour vous :Villa plain pied de 60m², avec deux chambres et une belle pièce à vivre. Emplacement de qualité sur un terrain issu d’une division de parcelle.Projet accompagné d’un garage.Terrain plat, viabilisations en limite, belle exposition possible et proche de toutes les commodités. Grâce à sa belle exposition et répondant à la Règlementation Environnementale 2020, profitez d’une résidence neuve, tout confort, réduisant votre consommation d’énergie. Pour plus de renseignements, contactez votre conseiller Nicolas Van Brussel,Les Maisons France Confort ((Numéro supprimé)).Annonce proposée par un Agent Commercial Partenaire.
Forcalquier
TERRAIN04300 Forcalquier : Situé au Nord-Est en balcon de la commune, avec vue sur sa citadelle, au calme et dans un cadre naturel préservé à 3 minutes du centre-ville, beau terrain de 1,2ha dont partie constructible d’environ 5000m2. Raccordé au tout à l’égout, ce terrain a fait l’objet d’orientations d’aménagement et de programmation (OAP) lui conférant l’accueil de 11 à 13 logements en R+1. Le prix de vente est régi selon un prix départ des offres à 450K euros (Mandat de vente Mizapri 431082DGV), incluant les honoraires d’agence à la charge du vendeur. Renseignements et visite sur place auprès de votre conseiller Vincent Delalaing ((Numéro supprimé) ou (Email supprimé)), agent commercial médaillé du réseau immobilier SAS Propriétés Privées RCS 487 624 777. Agréé Fnaim, ce réseau de professionnels vous conseille, garantit et sécurise votre projet immobilier. Les informations sur les risques auxquels ce bien est exposé sont disponibles sur le site géorisques : www. georisques. gouv. fr Vincent DELALAING (EI) Agent Commercial – Numéro RSAC : AIX EN PROVENCE 752551135 – .
Volx
TERRAINLes Maisons France Confort Pertuis ont sélectionné pour vousTerrain à bâtir de 434m² sur la commune de Volx. Plat, offrant une belle exposition possible pour votre construction. Viabilisations en limite.Pour plus de renseignements sur votre projet de construction personnalisé, contactez votre conseiller Nicolas Van Brussel, les Maisons France Confort Pertuis ((Numéro supprimé))Annonce proposée par un Agent Commercial Partenaire.
Oraison
TERRAIN ET MAISONA ORAISON sur un terrain de 509 m², VILLAS PRISME vous propose de réaliser votre projet de construction de maison individuelle d'une surface de 85 m² habitables avec 3 chambres.Avec VILLAS PRISME, vous pouvez personnaliser votre projet de maison sur mesure :- Plan et distribution- Système de chauffage au choix- Prestations et équipements selon vos souhaits : carrelages, faïence, menuiseries, salles de bains…- Mode constructif et matériaux selon les normes en vigueur Informations du terrain : A deux pas du centre-ville et des écoles, ce terrain est plat, viabilisé, situé dans un environnement résidentiel idéal pour bâtir votre projet de vie.Votre projet : Une maison sur mesure, construction brique et isolation renforcée RE2020.Assurances et garanties du constructeur (RC professionnelle, décennale, dommage ouvrage, garantie de remboursement de l'acompte, livraison à prix et délai convenu).Contact : Pierre JUHAN, (Numéro supprimé)Demandez une étude gratuite et personnalisée de votre projet de construction !Contactez Pierre JUHAN au (Numéro supprimé) (Villas Prisme – Agence de Manosque).Prix avec assurance dommages-ouvrage comprise, hors VRD, terrain viabilisé, frais de notaire non compris, frais divers non compris. Terrain sélectionné et vu pour vous sous réserve de disponibilité et au prix indiqué par notre partenaire foncier. Non mandaté pour la vente du terrain. Visuels non contractuels.Cette annonce a été créée et diffusée avec le logiciel VITAHOME.
Oraison
TERRAIN ET MAISONA ORAISON sur un terrain de 501 m², VILLAS PRISME vous propose de réaliser votre projet de construction de maison individuelle d'une surface de 100 m² habitables avec 3 chambres.Avec VILLAS PRISME, vous pouvez personnaliser votre projet de maison sur mesure :- Plan et distribution- Système de chauffage au choix- Prestations et équipements selon vos souhaits : carrelages, faïence, menuiseries, salles de bains…- Mode constructif et matériaux selon les normes en vigueur Informations du terrain : A deux pas du village et des commodités. Terrain plat et viabilisé de 501 m² bénéficiant d’une parfaite exposition.Vue dégagée et peu de vis-à-vis.Votre projet : Une maison sur mesure, construction brique et isolation renforcée RE2020.Assurances et garanties du constructeur (RC professionnelle, décennale, dommage ouvrage, garantie de remboursement de l'acompte, livraison à prix et délai convenu).Contact : Pierre JUHAN, (Numéro supprimé)Demandez une étude gratuite et personnalisée de votre projet de construction !Contactez Pierre JUHAN au (Numéro supprimé) (Villas Prisme – Agence de Manosque).Prix avec assurance dommages-ouvrage comprise, hors VRD, terrain viabilisé, frais de notaire non compris, frais divers non compris. Terrain sélectionné et vu pour vous sous réserve de disponibilité et au prix indiqué par notre partenaire foncier. Non mandaté pour la vente du terrain. Visuels non contractuels.Cette annonce a été créée et diffusée avec le logiciel VITAHOME.
L’actualité immobilière à La Brillanne
27/11/2023
02/11/2023
30/10/2023
20/10/2023
16/10/2023
16/10/2023