Maison à construire à Aubenas (07200)
Images
Description
Bastide contemporaine - 130 m² habitables avec garage accolé
Cette bastide contemporaine d'environ 110 m², à laquelle s'ajoutent 20 m² attenants aménagés en suite parentale, offre de beaux volumes et des prestations modernes.
👉 Au rez-de-chaussée
Une vaste pièce de vie lumineuse de plus de 50 m²,
Une cuisine,
Un cellier,
Une suite parentale avec salle d'eau, dressing et accès direct à la terrasse.
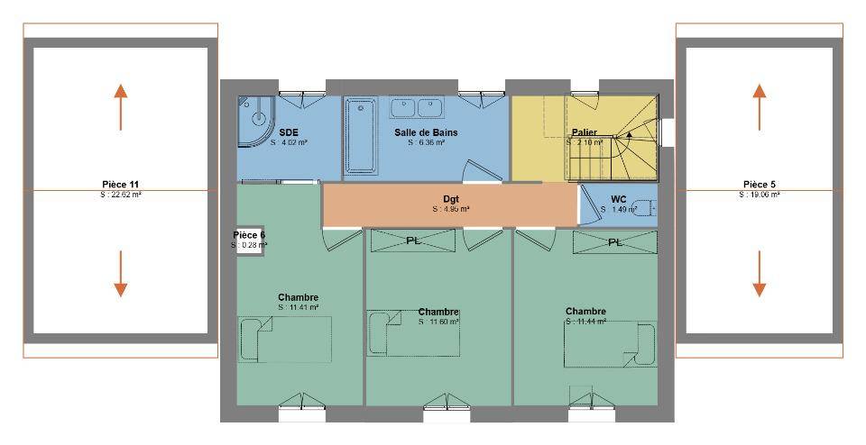
👉 À l'étage
Trois chambres avec vue côté jardin,
Une salle de bains,
Un WC indépendant.
👉 Annexes
Un garage accolé de plus de 20 m².
👉 Prestations
Pompe à chaleur gainable,
Carrelage sur toute la surface,
Menuiseries anthracite,
Volets roulants motorisés et centralisés.
Logement susceptibles de vous intéresser
Nous vous proposons de découvrir aussi cette sélection de logements situés à moins de 10km de Aubenas et qui seraient susceptibles de vous intéresser.
Aubenas
TERRAINFiche N°Id-TCT177930 : AUBENAS Fiche BC177930 : Aubenas, Terrain constructible – – Equipements annexes : – chauffage : Aucun – Plus d’informations disponibles sur demande… – Mentions légales : Proposé à la vente à 119000 Euros (honoraires à la charge du vendeur) – Affaire suivie par Mr Sofiane Amrouni (Agent commercial independant) – Reseau Immo-Diffusion Aubenas – Pour plus d’informations, contactez notre secrétariat au (Numéro supprimé) (Appel gratuit ou prix d’une communication locale)
Saint-Sernin
TERRAIN ET MAISON🏡 Maison Neuve de Plain-Pied – 3 Chambres dont Suite Parentale – Garage IntégréOffrez-vous le confort d’une maison moderne et fonctionnelle, pensée pour le bien-être de toute la famille.✅ Des espaces optimisés pour le quotidien :3 chambres, dont une suite parentale avec salle d’eau privative, WC indépendant et dressingGrande pièce de vie de 40 m², lumineuse et conviviale, avec grandes ouvertures sur l’extérieurGarage intégré, pratique et sécurisé🌟 Des prestations de qualité :Volets roulants motorisésClimatisation réversible gainable pour un confort en toute saisonMaison conçue selon les normes actuelles de performance énergétique💬 Une maison agréable à vivre, alliant modernité, confort et fonctionnalité, idéale pour les familles ou les jeunes couples souhaitant s’installer dans un cadre de vie serein.📞 Renseignements et devis gratuit auprès de Caroline au (Numéro supprimé)Maisons France Confort – Leader de la construction de maisons individuelles.
Aubenas
TERRAINTerrain ensoleillé avec vue panoramique 785 m² en Sud Ardèche (proche Aubenas)Envie de construire votre petit nid douillet ? Situé au coeur d’un charmant village authentique, à quelques minutes d’Aubenas, ce terrain en restanques exposé plein sud offre une vue dégagée à 180° sur la nature environnante.Ses atouts :Superficie : 785 m² en restanques, idéal pour une maison avec terrasses ou jardin méditerranéenTerrain constructible, avec CU opérationnelTotalement viabilisé : eau, électricité, tout-à-l’égoutPermis de construire déjà accordé : gagnez du temps ou totalement modifiable selon votre projet.Environnement :Calme absolu, cadre bucoliqueCommerces, écoles, médecins à moins de 10 minProximité de sentiers de randonnées, rivières, marchés locauxContactez-moi pour une visite sur place et vous faire découvrir ce cadre, idéal pour primo accédants ou pour une résidence secondairePrix : 69 000 euros honoraires charge vendeurVISITE VIRTUELLEPour visiter et vous accompagner dans votre projet, contactez Sarah BROUST, au (Numéro supprimé) ou, par courriel à (Email supprimé).Selon l’article L.561.5 du Code Monétaire et Financier, pour l’organisation de la visite, la présentation d’une pièce d’identité vous sera demandée.Cette présente annonce a été rédigée sous la responsabilité éditoriale de Sarah BROUST agissant sous le statut d’agent commercial auprès de SAS PROPRIETES PRIVEES, au capital de 44 920 euros, ZAC LE CHÊNE FERRÉ – 44 ALLÉE DES CINQ CONTINENTS 44120 VERTOU; SIRET 487 624 777 00040, RCS Nantes. Carte Professionnelle Transactions sur immeubles et fonds de commerce (T) et Gestion immobilière (G) n°CPI 4401 2016 000 010 388 délivrée par la CCI Nantes – Saint Nazaire. Compte séquestre n(Numéro supprimé)67 BPA SAINT-SEBASTIEN-SUR-LOIRE (44230). Garantie GALIAN-SMABTP – 89 rue de la Boétie, 75008 Paris – n°28137 J pour 2 000 000 euros pour T et 120 000 euros pour G. Assurance responsabilité civile professionnelle par GALIAN-SMABTP n° de police 28137.JMandat réf : 426676 – Le professionnel garantit et sécurise votre projet immobilier. Sarah BROUST (EI) Agent Commercial – Numéro RSAC : – .
Aubenas
TERRAIN🏡 Terrain à bâtir – Aubenas (quartier résidentiel prisé)En exclusivité, notre partenaire foncier vous propose une belle parcelle de 995 m², dont une partie non constructible, au prix de 79 500 €.Idéalement située dans un quartier résidentiel recherché d’Aubenas, cette parcelle bénéficie d’une excellente exposition et offre de nombreuses possibilités d’aménagement : maison de plain-pied ou à étage selon vos envies.Le terrain est à viabiliser (raccordements à prévoir).🏠 Construisez votre maison sur mesure avec Maisons France ConfortMaisons France Confort, 1er constructeur de maisons individuelles en France, vous accompagne dans votre projet avec :Des conceptions personnalisées, selon vos besoins, vos goûts et votre budget.Un Contrat de Construction de Maison Individuelle (CCMI) offrant toutes les garanties :Garantie de prix et de délais,Garantie de livraison,Assurance dommage-ouvrage incluse.📞 Renseignements et devis personnalisés auprès de Caroline :(Numéro supprimé)
Saint-Sernin
TERRAINVotre maison sur Saint-Sernin avec MAISONS FRANCE CONFORTÀ seulement quelques minutes d’Aubenas, découvrez cette belle opportunité !Nous vous proposons, en partenariat avec notre aménageur foncier, une parcelle plate de plus de 860 m², idéalement située et déjà viabilisée.Exposée plein sud, elle offre un environnement calme et une accessibilité rapide vers les écoles, collèges, commerces et principaux axes routiers.Le terrain est raccordable au tout-à-l’égout, parfait pour accueillir votre maison de plain-pied ou à étage, que ce soit pour une résidence principale ou un investissement locatif.💬 Renseignements et devis de constructionContactez Caroline au 📞 (Numéro supprimé)MAISONS FRANCE CONFORT 1er constructeur de maisons en France
Saint-Sernin
TERRAIN ET MAISONUne villa petite, fonctionnelle et lumineuse !Laissez-vous séduire par cette villa contemporaine de plain-pied, pensée pour allier confort et praticité au quotidien.Elle se compose de :Deux chambres avec emplacement pour placards,Une cuisine ouverte sur le séjour et la salle à manger,Une salle d’eau moderne,Un WC indépendant,Et une belle baie vitrée offrant une luminosité exceptionnelle et un accès direct au jardin.Les prestations sont personnalisables selon vos envies !Le modèle présenté comprend :Pompe à chaleur air/air (climatisation réversible),Carrelage dans la pièce de vie et la salle d’eau,Volets roulants motorisés pour plus de confort.📞 Pour plus de renseignements, contactez Caroline au (Numéro supprimé).MAISONS FRANCE CONFORT – Leader sur le marché de la construction de maisons individuelles.
Saint-Sernin
TERRAIN ET MAISONVilla de plain-pied en L – 90 m², lumineuse et fonctionnelleDécouvrez cette villa contemporaine de plain-pied de 90 m², au design en L, alliant confort, praticité et luminosité.Elle se compose de :3 chambres confortables,Une salle de bain moderne et un WC indépendant,Une grande pièce de vie lumineuse, dans un esprit loft, ouverte sur le jardin,Un cellier pratique donnant accès direct au garage.Prestations de qualité :Fondations adaptées au terrain,Film sous toiture et tuiles en terre cuite,Génoise et construction sur vide sanitaire,Volets battants sur les fenêtres et volets roulants motorisés sur les baies vitrées,Chauffage par pompe à chaleur,Carrelage sur l’ensemble des surfaces.Une maison pensée pour le confort et la performance énergétique, à personnaliser selon vos envies !📞 Renseignements et devis de construction auprès de Caroline – (Numéro supprimé)MAISONS FRANCE CONFORT – 1er constructeur de maisons individuelles en France
Saint-Sernin
TERRAIN ET MAISON🌿 Bastide contemporaine – Confort, lumière et optimisation des espaces 🌿Pensée pour une vie familiale agréable et conviviale, cette bastide moderne séduit par son agencement intelligent et sa luminosité naturelle, avec de larges ouvertures vers l’extérieur.✨ Un rez-de-chaussée lumineux et accueillantPièce à vivre spacieuse de 37 m²Séjour & salle à manger baignés de lumière grâce à deux grandes baies vitréesTerrasse en prolongement naturel de l’espace de vieCuisine fonctionnelle et modulable, avec accès direct possible au garage (en option)✨ Un étage pratique et bien pensé3 chambres avec placards intégrés (11,5 m², 11 m² et 10 m²)Salle de bains optimisée de 5 m² avec douche, meuble vasque et WCDistribution fluide autour d’un palier central🌞 Une maison tournée vers l’extérieurCette bastide contemporaine conjugue lumière, confort et optimisation des espaces pour offrir une qualité de vie optimale à toute la famille.📞 Renseignements et devis : Caroline – (Numéro supprimé)
Saint-Sernin
TERRAIN ET MAISON🏡 Maison contemporaine en L – Confort & intimitéCette élégante maison en L a été pensée pour distinguer deux espaces de vie, tout en offrant confort, modernité et convivialité.✨ Espace principal2 chambres1 salle d’eau moderne avec douche extra-plate type Kinemoon, meubles vasques et WC suspendus1 dressing fonctionnelUne belle pièce de vie ouverte sur une terrasse couverte, idéale pour profiter des beaux jours✨ Espace indépendant2 chambres supplémentaires1 espace détente pour recevoir vos proches en toute intimité1 salle d’eau et 1 WC indépendant⚙️ Prestations & confortChauffage par pompe à chaleur gainable (système Shogun)Volets roulants motorisés et centralisés avec sonde d’ensoleillementConstruction conforme à la réglementation RE2020🌟 Cette maison séduit par son plan ingénieux, respectueux de l’intimité de chacun, tout en alliant modernité et praticité.
L’actualité immobilière à Aubenas
27/11/2023
02/11/2023
30/10/2023
20/10/2023
16/10/2023
16/10/2023