Terrain à vendre

Maison à construire à Bourg-Saint-Andéol (07700)

322629 €
131 m²
Bourg-Saint-Andéol
Ardèche (07)
TERRAIN ET MAISON
Réf externe: 3558370
Annonce publiée le 5 novembre 2025

Images

Description

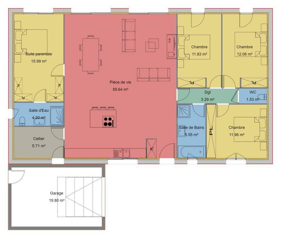
Bourg-Saint-Andéol : maison de 5 pièces (131 m²) à vendre
EMPLACEMENT PRIVILÉGIÉ - MAISON 5 PIÈCES NEUVE
À 23 km de Montélimar, à vendre bénéficiant d'un emplacement privilégié dans Bourg-Saint-Andéol (07700), nous vous présentons cette maison de 5 pièces de plain-pied de 131 m² et de 603 m² de terrain. Son intérieur dispose de quatre chambres, d'une cuisine et de deux salles de bains.
La maison est neuve.
La propriété est située dans un secteur prisé. Des établissements scolaires (de la maternelle au lycée) sont implantés à moins de 10 minutes à pied, tout comme deux structures d'accueil pour la petite enfance. Côté transports, il y a deux gares (Pierrelatte et Donzère) à moins de 10 minutes en voiture. La nationale N7 est accessible à 4 km. On trouve des commerces, quatre boulangeries, un supermarché, quatre boucheries-charcuteries et deux épiceries à quelques minutes. 2 marchés animent le quartier.
Elle est proposée à l'achat pour 322 629 €.
Prenez contact avec florian DUBOIS (tél : (Numéro supprimé)) pour toute question sur la maison, sur les démarches à suivre ou sur les modalités de vente. Donnez vie à vos projets immobiliers avec Maisons France Confort Montélimar.

CONTACTER

Logement susceptibles de vous intéresser

285 700 €
98 m²

Pierrelatte

TERRAIN ET MAISON

Découvrez le modèle Étage GA 4 Ch Design, une maison moderne de 98 m² conçue pour répondre aux besoins actuels des familles : espaces optimisés, luminosité et confort au quotidien.Au rez-de-chaussée, profitez d’une grande pièce de vie traversante de 33 m², baignée de lumière, où la cuisine ouverte s’intègre harmonieusement au séjour.Une chambre de plain-pied apporte une véritable polyvalence d’usage : idéale pour recevoir ou aménager un espace de travail.Un cellier de 4,83 m², donnant accès direct au garage, vient compléter l’ensemble, offrant un espace de rangement pratique et fonctionnel.À l’étage, l’espace nuit se compose de trois chambres spacieuses et d’une salle de bains équipée d’une baignoire et d’une douche, pour un confort adapté à toute la famille.Grâce à la nouvelle gamme Open, vous bénéficiez de finitions personnalisables et de packs évolutifs, afin d’adapter votre maison à vos envies et à vos besoins.Côté confort, rien n’a été laissé au hasard : volets roulants électriques, centralisation des fermetures, domotique intégrée… autant d’équipements modernes pensés pour simplifier votre quotidien et renforcer votre confort.Fonctionnelle, lumineuse et résolument moderne, cette maison offre un cadre de vie idéal pour accueillir votre famille et concrétiser votre projet de vie.Contactez dès maintenant Olivier PUAUX, votre conseiller MAISONS FRANCE CONFORT, au (Numéro supprimé), pour en savoir plus ou imaginer ensemble votre future maison.

L’actualité immobilière à Bourg-Saint-Andéol

Image du post Pourquoi acheter un terrain en lotissement ? 27/11/2023
Lire l’article
Pourquoi acheter un terrain en lotissement ?
Image du post Vendre son terrain à un promoteur : comment procéder ? 02/11/2023
Lire l’article
Vendre son terrain à un promoteur : comment procéder ?
Image du post Diviser le terrain de sa maison pour le vendre : pourquoi et comment ? 30/10/2023
Lire l’article
Diviser le terrain de sa maison pour le vendre : pourquoi et comment ?
Image du post Acheter un terrain viabilisé : quels avantages ? 20/10/2023
Lire l’article
Acheter un terrain viabilisé : quels avantages ?
Image du post Les 7 étapes incontournables pour bien vendre votre terrain constructible 16/10/2023
Lire l’article
Les 7 étapes incontournables pour bien vendre votre terrain constructible
Image du post 5 points clés à vérifier pour l’achat d’un terrain constructible  16/10/2023
Lire l’article
5 points clés à vérifier pour l’achat d’un terrain constructible