Maison à construire à Bourg-Saint-Andéol (07700)
Images
Description
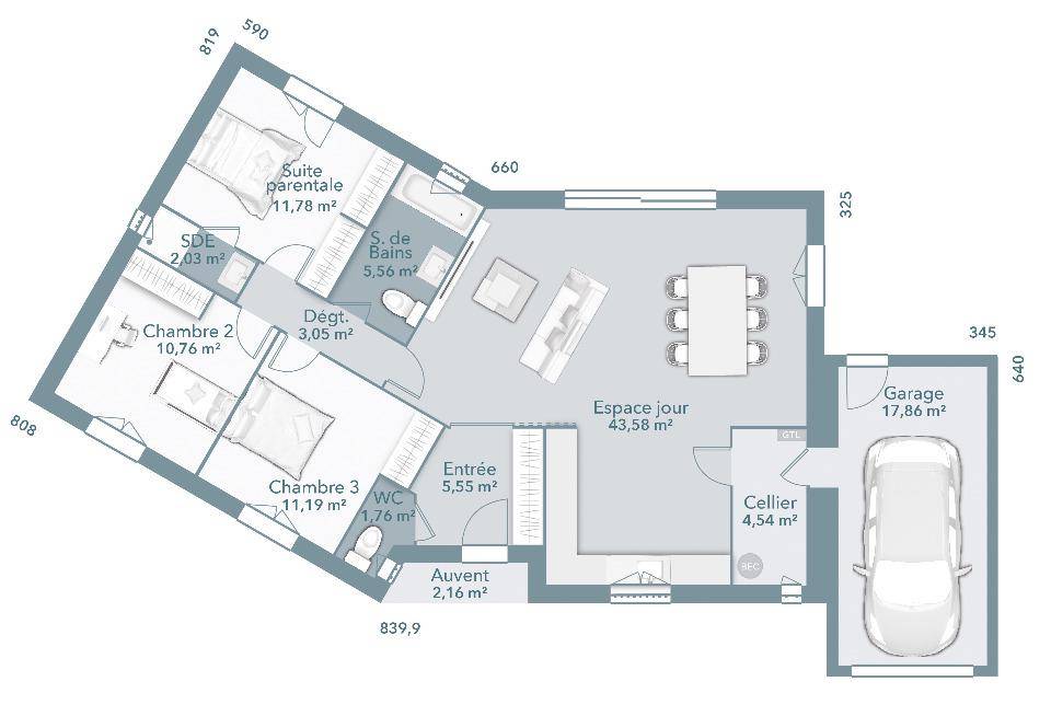
Bourg-Saint-Andéol : maison F4 (100 m²) à vendre
EMPLACEMENT PRIVILÉGIÉ - MAISON 4 PIÈCES NEUVE
À vendre : située à 23 km de Montélimar, votre agence Maisons France Confort Montélimar est ravie de vous présenter cette maison de 4 pièces de plain-pied de 100 m² bénéficiant d'un emplacement d'exception dans Bourg-Saint-Andéol (07700).
Elle propose trois chambres, une cuisine et deux salles de bains. La maison est neuve.
Le terrain de la propriété s'étend sur 603 m².
Cette maison se situe dans un quartier prisé. Des écoles de tous niveaux sont implantées à moins de 10 minutes à pied, tout comme deux structures d'accueil pour les tout-petits. Côté transports, il y a les gares Pierrelatte et Donzère à moins de 10 minutes en voiture. On trouve un accès à la nationale N7 à 4 km. On trouve des commerces, quatre boulangeries, un supermarché, un bureau de poste et quatre boucheries-charcuteries à quelques minutes de la maison. Enfin, 2 marchés animent les environs.
Son prix de vente est de 283 988 €.
Contactez florian DUBOIS ((Numéro supprimé)) pour tout renseignement sur la maison ou sur les démarches à suivre. Maisons France Confort Montélimar vous accompagne à toutes les étapes de votre projet et dans tous vos projets immobiliers.
Logement susceptibles de vous intéresser
Nous vous proposons de découvrir aussi cette sélection de logements situés à moins de 10km de Bourg-Saint-Andéol et qui seraient susceptibles de vous intéresser.
Larnas
TERRAIN ET MAISONMaison Bastide – 129,67 m² : le charme du traditionnel et le confort du moderneDécouvrez le modèle Bastide, une maison traditionnelle du Sud de la France de 129,67 m² qui séduit par son élégance et ses volumes généreux.Au rez-de-chaussée, profitez d’une vaste pièce de vie lumineuse de 49,37 m² avec cuisine ouverte sur salle à manger et salon, complétée par un cellier attenant à la cuisine et au garage. Vous bénéficierez également d’une suite parentale indépendante avec dressing, salle d’eau et WC.À l’étage, le palier dessert deux chambres confortables, une salle de bains avec WC, ainsi qu’une belle suite parentale avec dressing et salle d’eau privative.Cette maison associe authenticité et modernité, avec de nombreuses options pour s’adapter à vos envies : volets battants pour l’esthétique, volets roulants électriques, centralisation des ouvertures, solutions domotiques, pompe à chaleur avec plancher chauffant… autant d’atouts pour un confort optimal.Pour plus d’informations sur ce modèle ou découvrir d’autres projets personnalisables, contactez dès aujourd’hui :Olivier PUAUX – (Numéro supprimé)Maisons France ConfortJe vous accompagne dans toutes les étapes de votre projet de construction afin de bâtir la maison qui vous ressemble.
Larnas
TERRAINMAISONS FRANCE CONFORT, en partenariat avec son partenaire foncier, vous propose un superbe terrain à bâtir sur la commune de Montségur-sur-Lauzon.Cette belle parcelle arborée de 1002 m², proposée au prix de 75 000 €, est entièrement viabilisée. Vous serez séduit par son cadre verdoyant, son environnement résidentiel et calme, ainsi que par son atout majeur : une vue dominante dégagée, qui valorisera pleinement votre future maison.Idéal pour concrétiser votre projet de vie et construire la maison de vos rêves, ce terrain est une opportunité rare à ne pas manquer.Pour plus d’informations ou pour bénéficier d’un accompagnement personnalisé, contactez dès maintenant votre conseiller en construction : Olivier PUAUX – (Numéro supprimé)
Saint-Montan
TERRAIN ET MAISONMAISONS FRANCE CONFORT vous propose, en collaboration avec son partenaire foncier, un terrain situé sur la commune de SAINT-MONTANCette jolie parcelle d’une superficie de 647 m² , pour 74000€, viabilisé est idéalement situéImplantée dans un environnement calme, mais proche des commodité, cette opportunité est idéale pour concrétiser votre projet de vie et bâtir la maison de vos rêves.Si vous aussi, vous rêvez d’une maison qui vous ressemble et d’un accompagnement sur mesure, contactez votre conseiller Florian DUBOIS au (Numéro supprimé) 📞
Saint-Montan
TERRAIN ET MAISONMAISONS FRANCE CONFORT vous propose, en collaboration avec son partenaire foncier, un terrain situé sur la commune de SAINT-MONTANCette jolie parcelle d’une superficie de 647 m² , pour 74000€, viabilisé est idéalement situéImplantée dans un environnement calme, mais proche des commodité, cette opportunité est idéale pour concrétiser votre projet de vie et bâtir la maison de vos rêves.Si vous aussi, vous rêvez d’une maison qui vous ressemble et d’un accompagnement sur mesure, contactez votre conseiller Florian DUBOIS au (Numéro supprimé) 📞
Saint-Montan
TERRAIN ET MAISONMAISONS FRANCE CONFORT vous propose, en collaboration avec son partenaire foncier, un terrain situé sur la commune de SAINT-MONTANCette jolie parcelle d’une superficie de 647 m² , pour 74000€, viabilisé est idéalement situéImplantée dans un environnement calme, mais proche des commodité, cette opportunité est idéale pour concrétiser votre projet de vie et bâtir la maison de vos rêves.Si vous aussi, vous rêvez d’une maison qui vous ressemble et d’un accompagnement sur mesure, contactez votre conseiller Florian DUBOIS au (Numéro supprimé) 📞
Lapalud
TERRAIN ET MAISONVENTE d’une maison de 4 pièces (73 m²) à LapaludQUARTIER RECHERCHÉ – MAISON 4 PIÈCES NEUVEÀ vendre à deux pas de Montélimar, Maisons France Confort Montélimar vous présente, située dans un quartier attractif de Lapalud (84840), cette maison de 4 pièces de plain-pied de 73 m².Son intérieur offre trois chambres, une cuisine et une salle de bains. La maison est neuve.Le terrain de la propriété s’étend sur 376 m².Cette maison est située dans un secteur prisé. On trouve l’École Primaire Louis Pergaud à moins de 10 minutes à pied et une crèche. Niveau transports en commun, il y a trois gares (Bollène La Croisière, Pont-Saint-Esprit et Pierrelatte) à moins de 10 minutes en voiture. La nationale N7 est accessible à 1 km. On trouve une bibliothèque, un tennis, trois commerces, trois boulangeries, deux épiceries et un bureau de poste dans les environs. Enfin, le marché Cours des platanes anime les environs.Son prix de vente est de 199 800 €.Prenez contact avec notre agence (florian DUBOIS : (Numéro supprimé)) pour toute information sur le bien, sur les démarches à suivre ou sur les modalités de vente. Maisons France Confort Montélimar est là pour vous accompagner à toutes les étapes de votre projet.
Bourg-Saint-Andéol
TERRAINVENTE d »un terrain de 603 m² à Bourg-Saint-AndéolEMPLACEMENT PRIVILÉGIÉ – PROCHE DE MONTÉLIMARÀ vendre à quelques kilomètres de Montélimar à Bourg-Saint-Andéol (07700), grand terrain. Il est prêt à accueillir votre projet immobilier pour toute la famille. Il donne sur un espace vert. Dans un quartier attractif, ce terrain bénéficiant d »un emplacement privilégié est proche des commerces et des écoles. Des écoles (de la maternelle au lycée) sont implantées à moins de 10 minutes à pied, tout comme deux structures d »accueil pour les tout-petits. Côté transports en commun, il y a les gares Pierrelatte et Donzère à moins de 10 minutes en voiture. La nationale N7 est accessible à 4 km. On trouve des commerces, quatre boulangeries, un supermarché, un bureau de poste et quatre boucheries-charcuteries dans les environs. Enfin, 2 marchés animent les environs.Il est proposé à l »achat pour 89 000 €. Contactez notre agence (DUBOIS Florian : (Numéro supprimé)) pour tout renseignement sur le terrain. Concrétisez vos projets immobiliers avec Maisons France Confort Montélimar.
Bourg-Saint-Andéol
TERRAIN ET MAISONBourg-Saint-Andéol : maison F3 (80 m²) à vendreEMPLACEMENT PRIVILÉGIÉ – MAISON 3 PIÈCES NEUVEEn vente : située à 23 km de Montélimar, bénéficiant d’un emplacement privilégié dans Bourg-Saint-Andéol (07700), ayez le coup de coeur pour cette maison de 3 pièces de plain-pied de 80 m² et de 603 m² de terrain.Son intérieur se divise en trois chambres, une cuisine et une salle de bains. Cette maison est neuve.La maison est située dans un quartier recherché. Il y a des écoles de tous types (de la maternelle au lycée) à moins de 10 minutes à pied, tout comme deux structures d’accueil pour les tout-petits. Niveau transports en commun, on trouve deux gares (Pierrelatte et Donzère) à moins de 10 minutes en voiture. La nationale N7 est accessible à 4 km. Il y a des commerces, quatre boulangeries, un supermarché, quatre boucheries-charcuteries et deux épiceries à proximité. 2 marchés animent les environs.Son prix de vente est de 224 500 €.Contactez notre agence (florian DUBOIS : (Numéro supprimé)) pour toute information sur la maison, sur les démarches à suivre ou sur les modalités de vente.
Saint-Montan
TERRAIN ET MAISONVENTE d’une maison de 6 pièces (100 m²) à Saint-MontanEMPLACEMENT PRIVILÉGIÉ – MAISON 6 PIÈCES NEUVEÀ vendre : à deux pas de Montélimar, ayez le coup de coeur pour, bénéficiant d’un emplacement privilégié dans Saint-Montan (07220), cette maison de 6 pièces de plain-pied de 100 m² et de 647 m² de terrain. Conçue de plain-pied, elle se divise en trois chambres, une cuisine et deux salles de bains.La maison est neuve.Cette maison se situe dans un quartier attractif. On trouve l’École Primaire Privée à moins de 10 minutes à pied. Côté transports en commun, il y a les gares Donzère et Pierrelatte à moins de 10 minutes en voiture. La nationale N7 est accessible à 8 km. On trouve une boulangerie et un commerce à quelques minutes du logement.Elle est proposée à l’achat pour 284 965 €.Prenez contact avec florian DUBOIS ((Numéro supprimé)) pour obtenir de plus amples informations sur la maison, sur les démarches à suivre ou sur les modalités de vente.
L’actualité immobilière à Bourg-Saint-Andéol
27/11/2023
02/11/2023
30/10/2023
20/10/2023
16/10/2023
16/10/2023