Maison à construire à Cruas (07350)
Images
Description
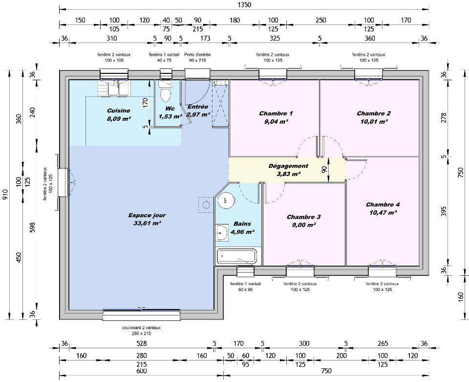
Le modèle présenté sur le terrain, d'architecture contemporaine avec un décroché de façade, des menuiseries grises anthracites et un toit à 2 pans allie confort et esthétique.
Dans une superficie de 93 m2 vous y trouverez une entrée avec rangement, un bel espace de vie, une cuisine, une salle de bain, 4 chambres et un WC. Le tout dans une maison fonctionnelle, agréable et répondant à la norme RE 2020.
Vous serez également séduit par ses nombreuses options (volets roulants électriques, centralisation, domotique...)
Votre conseiller en construction Olivier PUAUX (Numéro supprimé) MAISONS FRANCE CONFORT se tient à votre disposition pour en savoir plus à propos de cette habitation, en découvrir d'autres ou bien même créer votre projet personnalisé.
Logement susceptibles de vous intéresser
Nous vous proposons de découvrir aussi cette sélection de logements situés à moins de 10km de Cruas et qui seraient susceptibles de vous intéresser.
Cruas
TERRAIN ET MAISONDécouvrez le modèle Étage GA 4 Ch Design, une maison moderne de 98 m² conçue pour répondre aux besoins actuels des familles : espaces optimisés, luminosité et confort au quotidien.Au rez-de-chaussée, profitez d’une grande pièce de vie traversante de 33 m², baignée de lumière, où la cuisine ouverte s’intègre harmonieusement au séjour.Une chambre de plain-pied apporte une véritable polyvalence d’usage : idéale pour recevoir ou aménager un espace de travail.Un cellier de 4,83 m², donnant accès direct au garage, vient compléter l’ensemble, offrant un espace de rangement pratique et fonctionnel.À l’étage, l’espace nuit se compose de trois chambres spacieuses et d’une salle de bains équipée d’une baignoire et d’une douche, pour un confort adapté à toute la famille.Grâce à la nouvelle gamme Open, vous bénéficiez de finitions personnalisables et de packs évolutifs, afin d’adapter votre maison à vos envies et à vos besoins.Côté confort, rien n’a été laissé au hasard : volets roulants électriques, centralisation des fermetures, domotique intégrée… autant d’équipements modernes pensés pour simplifier votre quotidien et renforcer votre confort.Fonctionnelle, lumineuse et résolument moderne, cette maison offre un cadre de vie idéal pour accueillir votre famille et concrétiser votre projet de vie.Contactez dès maintenant Olivier PUAUX, votre conseiller MAISONS FRANCE CONFORT, au (Numéro supprimé), pour en savoir plus ou imaginer ensemble votre future maison.
Cruas
TERRAINMAISONS FRANCE CONFORT vous propose, en collaboration avec son partenaire foncier, un terrain situé sur la commune de CRUAS.Cette jolie parcelle d’une superficie de 342 m², pour 69 900€, entièrement viabilisée , vous séduira par son cadre agréable.Implantée dans un environnement calme et résidentiel, cette opportunité est idéale pour concrétiser votre projet de vie et bâtir la maison de vos rêves.Pour plus d’informations ou pour être accompagné dans votre recherche de logement, contactez votre conseiller construction, Olivier PUAUX, au (Numéro supprimé).
Cruas
TERRAINMAISONS FRANCE CONFORT vous propose, en collaboration avec son partenaire foncier, un terrain situé sur la commune de CRUAS.Cette jolie parcelle d’une superficie de 400 m², pour 79 900€, entièrement viabilisée , vous séduira par son cadre agréable.Implantée dans un environnement calme et résidentiel, cette opportunité est idéale pour concrétiser votre projet de vie et bâtir la maison de vos rêves.Pour plus d’informations ou pour être accompagné dans votre recherche de logement, contactez votre conseiller construction, Olivier PUAUX, au (Numéro supprimé).
Cruas
TERRAIN ET MAISONUne maison contemporaine qui allie élégance, confort et performance !Avec ses 80 m² parfaitement agencés, cette maison offre un style moderne et lumineux, pensé pour répondre aux exigences de confort d’aujourd’hui. Conforme à la réglementation environnementale RE2020, elle conjugue esthétique, efficacité énergétique et bien-être au quotidien.La pièce de vie de 37,80 m², véritable coeur de la maison, profite d’une luminosité traversante et d’un agencement fluide. La cuisine ouverte s’intègre harmonieusement pour créer un espace convivial et accueillant. Une verrière (en option) peut venir sublimer la séparation entre l’entrée et le séjour pour renforcer le caractère contemporain de l’ensemble.L’espace nuit se compose de trois chambres confortables avec rangements intégrés, d’une salle de bains fonctionnelle et d’un WC indépendant. Le cellier attenant à la cuisine facilite le rangement et communique directement avec le garage de 15,68 m², idéal pour le stationnement ou un espace de stockage complémentaire.Les prestations sont à la hauteur de vos attentes avec des volets roulants électriques et leur centralisation, une domotique intégrée pour plus de confort et un chauffage par pompe à chaleur à la fois économique et respectueux de l’environnementAdaptable à votre terrain et à votre mode de vie, ce modèle saura devenir la maison qui vous ressemble, alliant modernité, confort et praticité.Contactez-moi au (Numéro supprimé) pour en discuter et imaginer ensemble votre future maison.Olivier PUAUX – Conseiller Maisons France Confort
Cruas
TERRAINMAISONS FRANCE CONFORT vous propose, en collaboration avec son partenaire foncier, un terrain situé sur la commune de CRUAS.Cette jolie parcelle d’une superficie de 618 m², pour 105 000€, entièrement viabilisée , vous séduira par son cadre agréable.Implantée dans un environnement calme et résidentiel, cette opportunité est idéale pour concrétiser votre projet de vie et bâtir la maison de vos rêves.Pour plus d’informations ou pour être accompagné dans votre recherche de logement, contactez votre conseiller construction, Olivier PUAUX, au (Numéro supprimé).
Cruas
TERRAIN ET MAISONUne maison contemporaine alliant espace, confort et élégance.Conçue dans un esprit moderne et épuré, cette maison de plain-pied de 120m² offre un cadre de vie idéal pour toute la famille. Son vaste espace de vie de 50,61 m², baigné de lumière naturelle, regroupe une cuisine ouverte, un grand salon et une salle à manger conviviale, parfaits pour partager des moments agréables au quotidien.La partie nuit comprend quatre chambres bien agencées, dont une suite parentale de 18,41 m² avec dressing et salle d’eau privative, offrant un espace intime et fonctionnel. Une salle de bains familiale complète l’ensemble, pour un aménagement à la fois pratique et harmonieux.Cette maison se distingue par sa luminosité, sa fonctionnalité et son design contemporain, tout en respectant la réglementation environnementale RE2020, garantissant performance énergétique, confort thermique et économies d’énergie.Pour un confort de vie optimal, elle dispose également d’un garage, entièrement accessible depuis l’intérieur, ainsi que de nombreuses prestations de qualité : volets roulants électriques, centralisation, domotique intégrée et bien d’autres équipements pensés pour votre bien-être.Cette maison conjugue esthétique, efficacité et bien-être, et peut être personnalisée selon votre terrain et vos envies.Vous avez un coup de coeur pour ce modèle ou souhaitez l’adapter à votre style de vie ?Contactez-moi au (Numéro supprimé) pour en discuter et concrétiser votre projet.Olivier PUAUX – Conseiller Maisons France Confort.
Cruas
TERRAIN ET MAISONMaison contemporaine de plain-pied – 3 chambres dont 1 suite parentale – GaragePensée dans un esprit moderne et élégant, cette maison de plain-pied de 104,40 m² offre un cadre de vie lumineux, confortable et fonctionnel, idéal pour accueillir une vie de famille épanouie.Dès l’entrée, vous découvrez une vaste pièce de vie de plus de 45 m², ouverte sur le jardin et inondée de lumière naturelle grâce à ses grandes baies vitrées. Cet espace central, combinant salon, salle à manger et cuisine ouverte, crée une atmosphère conviviale, parfaite pour partager des moments agréables en famille ou entre amis.Un cellier attenant à la cuisine facilite le rangement et l’organisation du quotidien, tandis que le garage d’environ 20 m², accessible depuis l’intérieur, apporte un confort supplémentaire pour le stationnement ou le stockage.L’espace nuit se compose de trois chambres spacieuses, dont une suite parentale de 17 m² avec dressing et salle d’eau privative, véritable espace de détente et d’intimité. Une seconde salle de bains et un WC indépendant complètent cet aménagement harmonieux et bien pensé.Cette maison offre des prestations modernes et performantes avec volets roulants électriques, centralisation des ouvertures, domotique intégrée et chauffage par pompe à chaleur, autant d’équipements conçus pour simplifier votre quotidien et améliorer votre confort. Conforme à la réglementation environnementale RE2020, elle garantit excellente performance énergétique, confort thermique et économies d’énergie.Pour en savoir plus ou imaginer votre future maison, contactezOlivier PUAUX, votre conseiller Maisons France Confort, au (Numéro supprimé).
Rochemaure
TERRAINMAISONS FRANCE CONFORT vous propose, en collaboration avec son partenaire foncier, un terrain situé sur la commune de ROCHEMAURE.Cette jolie parcelle d’une superficie de 440 m², pour 69 500€, entièrement viabilisée , vous séduira par son cadre agréable.Implantée dans un environnement calme et résidentiel, cette opportunité est idéale pour concrétiser votre projet de vie et bâtir la maison de vos rêves.Pour plus d’informations ou pour être accompagné dans votre recherche de logement, contactez votre conseiller construction, Olivier PUAUX, au (Numéro supprimé).
Rochemaure
TERRAIN ET MAISONDécouvrez le modèle Étage GA 4 Ch Design, une maison moderne de 98 m² conçue pour répondre aux besoins actuels des familles : espaces optimisés, luminosité et confort au quotidien.Au rez-de-chaussée, profitez d’une grande pièce de vie traversante de 33 m², baignée de lumière, où la cuisine ouverte s’intègre harmonieusement au séjour.Une chambre de plain-pied apporte une véritable polyvalence d’usage : idéale pour recevoir ou aménager un espace de travail.Un cellier de 4,83 m², donnant accès direct au garage, vient compléter l’ensemble, offrant un espace de rangement pratique et fonctionnel.À l’étage, l’espace nuit se compose de trois chambres spacieuses et d’une salle de bains équipée d’une baignoire et d’une douche, pour un confort adapté à toute la famille.Grâce à la nouvelle gamme Open, vous bénéficiez de finitions personnalisables et de packs évolutifs, afin d’adapter votre maison à vos envies et à vos besoins.Côté confort, rien n’a été laissé au hasard : volets roulants électriques, centralisation des fermetures, domotique intégrée… autant d’équipements modernes pensés pour simplifier votre quotidien et renforcer votre confort.Fonctionnelle, lumineuse et résolument moderne, cette maison offre un cadre de vie idéal pour accueillir votre famille et concrétiser votre projet de vie.Contactez dès maintenant Olivier PUAUX, votre conseiller MAISONS FRANCE CONFORT, au (Numéro supprimé), pour en savoir plus ou imaginer ensemble votre future maison.
L’actualité immobilière à Cruas
27/11/2023
02/11/2023
30/10/2023
20/10/2023
16/10/2023
16/10/2023