Terrain à vendre

Maison à construire à Cruas (07350)

238000 €
93 m²
Cruas
Ardèche (07)
TERRAIN ET MAISON
Réf externe: 3518602
Annonce publiée le 5 novembre 2025

Images

Description

Vous avez envie de fonctionnalité, de lignes épurées et aussi d'un jardin !
Bienvenue dans votre maison ACCESS ETAGE 93.
Optimisée, elle s'adapte à son environnement avec de larges ouvertures sur le jardin et des espaces de vie chaleureux et lumineux.
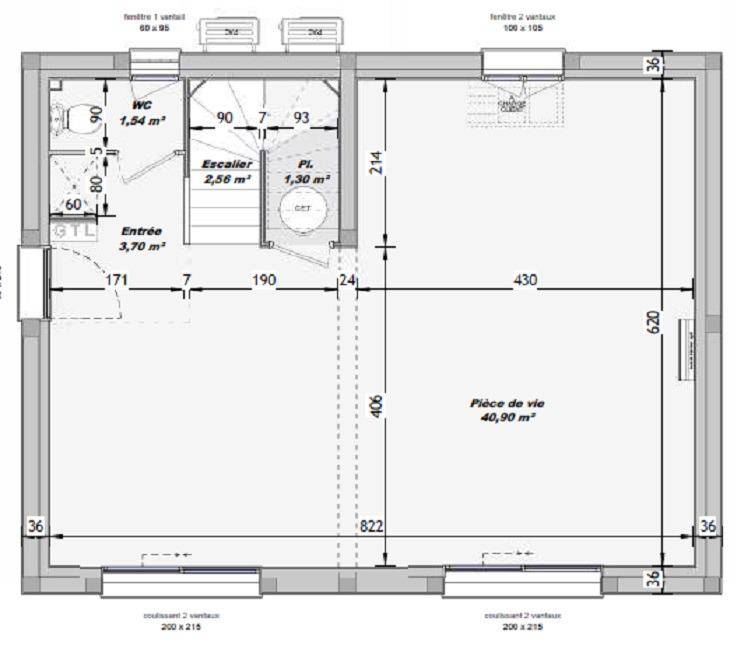
A la fois chic et élégante cette maison de 93 m² offre de beaux atouts : une entrée avec toutes les commodités, placards, WC, un séjour de près de 41 m² pour le salon et la salle à manger ouverte sur la cuisine. À l'étage, la composition du plan continue avec 3 belles chambres équipées de rangements, et une salle de bains. Le charme d'une maison moderne et l'élégance des matériaux d'aujourd'hui pour ravir toute la famille.

Vous serez également séduit par ses nombreuses options (volets roulants électriques, centralisation, domotique...).

Vous souhaitez en voir plus, contactez-nous !

Votre conseiller en construction Olivier PUAUX (Numéro supprimé) MAISONS FRANCE CONFORT se tient à votre disposition pour en savoir plus à propos de cette habitation, en découvrir d'autres ou bien même créer votre projet personnalisé.

CONTACTER

Logement susceptibles de vous intéresser

260 700 €
98 m²

Cruas

TERRAIN ET MAISON

Découvrez le modèle Étage GA 4 Ch Design, une maison moderne de 98 m² conçue pour répondre aux besoins actuels des familles : espaces optimisés, luminosité et confort au quotidien.Au rez-de-chaussée, profitez d’une grande pièce de vie traversante de 33 m², baignée de lumière, où la cuisine ouverte s’intègre harmonieusement au séjour.Une chambre de plain-pied apporte une véritable polyvalence d’usage : idéale pour recevoir ou aménager un espace de travail.Un cellier de 4,83 m², donnant accès direct au garage, vient compléter l’ensemble, offrant un espace de rangement pratique et fonctionnel.À l’étage, l’espace nuit se compose de trois chambres spacieuses et d’une salle de bains équipée d’une baignoire et d’une douche, pour un confort adapté à toute la famille.Grâce à la nouvelle gamme Open, vous bénéficiez de finitions personnalisables et de packs évolutifs, afin d’adapter votre maison à vos envies et à vos besoins.Côté confort, rien n’a été laissé au hasard : volets roulants électriques, centralisation des fermetures, domotique intégrée… autant d’équipements modernes pensés pour simplifier votre quotidien et renforcer votre confort.Fonctionnelle, lumineuse et résolument moderne, cette maison offre un cadre de vie idéal pour accueillir votre famille et concrétiser votre projet de vie.Contactez dès maintenant Olivier PUAUX, votre conseiller MAISONS FRANCE CONFORT, au (Numéro supprimé), pour en savoir plus ou imaginer ensemble votre future maison.

232 800 €
80 m²

Cruas

TERRAIN ET MAISON

Une maison contemporaine qui allie élégance, confort et performance !Avec ses 80 m² parfaitement agencés, cette maison offre un style moderne et lumineux, pensé pour répondre aux exigences de confort d’aujourd’hui. Conforme à la réglementation environnementale RE2020, elle conjugue esthétique, efficacité énergétique et bien-être au quotidien.La pièce de vie de 37,80 m², véritable coeur de la maison, profite d’une luminosité traversante et d’un agencement fluide. La cuisine ouverte s’intègre harmonieusement pour créer un espace convivial et accueillant. Une verrière (en option) peut venir sublimer la séparation entre l’entrée et le séjour pour renforcer le caractère contemporain de l’ensemble.L’espace nuit se compose de trois chambres confortables avec rangements intégrés, d’une salle de bains fonctionnelle et d’un WC indépendant. Le cellier attenant à la cuisine facilite le rangement et communique directement avec le garage de 15,68 m², idéal pour le stationnement ou un espace de stockage complémentaire.Les prestations sont à la hauteur de vos attentes avec des volets roulants électriques et leur centralisation, une domotique intégrée pour plus de confort et un chauffage par pompe à chaleur à la fois économique et respectueux de l’environnementAdaptable à votre terrain et à votre mode de vie, ce modèle saura devenir la maison qui vous ressemble, alliant modernité, confort et praticité.Contactez-moi au (Numéro supprimé) pour en discuter et imaginer ensemble votre future maison.Olivier PUAUX – Conseiller Maisons France Confort

315 000 €
120 m²

Cruas

TERRAIN ET MAISON

Une maison contemporaine alliant espace, confort et élégance.Conçue dans un esprit moderne et épuré, cette maison de plain-pied de 120m² offre un cadre de vie idéal pour toute la famille. Son vaste espace de vie de 50,61 m², baigné de lumière naturelle, regroupe une cuisine ouverte, un grand salon et une salle à manger conviviale, parfaits pour partager des moments agréables au quotidien.La partie nuit comprend quatre chambres bien agencées, dont une suite parentale de 18,41 m² avec dressing et salle d’eau privative, offrant un espace intime et fonctionnel. Une salle de bains familiale complète l’ensemble, pour un aménagement à la fois pratique et harmonieux.Cette maison se distingue par sa luminosité, sa fonctionnalité et son design contemporain, tout en respectant la réglementation environnementale RE2020, garantissant performance énergétique, confort thermique et économies d’énergie.Pour un confort de vie optimal, elle dispose également d’un garage, entièrement accessible depuis l’intérieur, ainsi que de nombreuses prestations de qualité : volets roulants électriques, centralisation, domotique intégrée et bien d’autres équipements pensés pour votre bien-être.Cette maison conjugue esthétique, efficacité et bien-être, et peut être personnalisée selon votre terrain et vos envies.Vous avez un coup de coeur pour ce modèle ou souhaitez l’adapter à votre style de vie ?Contactez-moi au (Numéro supprimé) pour en discuter et concrétiser votre projet.Olivier PUAUX – Conseiller Maisons France Confort.

302 000 €
104 m²

Cruas

TERRAIN ET MAISON

Maison contemporaine de plain-pied – 3 chambres dont 1 suite parentale – GaragePensée dans un esprit moderne et élégant, cette maison de plain-pied de 104,40 m² offre un cadre de vie lumineux, confortable et fonctionnel, idéal pour accueillir une vie de famille épanouie.Dès l’entrée, vous découvrez une vaste pièce de vie de plus de 45 m², ouverte sur le jardin et inondée de lumière naturelle grâce à ses grandes baies vitrées. Cet espace central, combinant salon, salle à manger et cuisine ouverte, crée une atmosphère conviviale, parfaite pour partager des moments agréables en famille ou entre amis.Un cellier attenant à la cuisine facilite le rangement et l’organisation du quotidien, tandis que le garage d’environ 20 m², accessible depuis l’intérieur, apporte un confort supplémentaire pour le stationnement ou le stockage.L’espace nuit se compose de trois chambres spacieuses, dont une suite parentale de 17 m² avec dressing et salle d’eau privative, véritable espace de détente et d’intimité. Une seconde salle de bains et un WC indépendant complètent cet aménagement harmonieux et bien pensé.Cette maison offre des prestations modernes et performantes avec volets roulants électriques, centralisation des ouvertures, domotique intégrée et chauffage par pompe à chaleur, autant d’équipements conçus pour simplifier votre quotidien et améliorer votre confort. Conforme à la réglementation environnementale RE2020, elle garantit excellente performance énergétique, confort thermique et économies d’énergie.Pour en savoir plus ou imaginer votre future maison, contactezOlivier PUAUX, votre conseiller Maisons France Confort, au (Numéro supprimé).

268 000 €
98 m²

Rochemaure

TERRAIN ET MAISON

Découvrez le modèle Étage GA 4 Ch Design, une maison moderne de 98 m² conçue pour répondre aux besoins actuels des familles : espaces optimisés, luminosité et confort au quotidien.Au rez-de-chaussée, profitez d’une grande pièce de vie traversante de 33 m², baignée de lumière, où la cuisine ouverte s’intègre harmonieusement au séjour.Une chambre de plain-pied apporte une véritable polyvalence d’usage : idéale pour recevoir ou aménager un espace de travail.Un cellier de 4,83 m², donnant accès direct au garage, vient compléter l’ensemble, offrant un espace de rangement pratique et fonctionnel.À l’étage, l’espace nuit se compose de trois chambres spacieuses et d’une salle de bains équipée d’une baignoire et d’une douche, pour un confort adapté à toute la famille.Grâce à la nouvelle gamme Open, vous bénéficiez de finitions personnalisables et de packs évolutifs, afin d’adapter votre maison à vos envies et à vos besoins.Côté confort, rien n’a été laissé au hasard : volets roulants électriques, centralisation des fermetures, domotique intégrée… autant d’équipements modernes pensés pour simplifier votre quotidien et renforcer votre confort.Fonctionnelle, lumineuse et résolument moderne, cette maison offre un cadre de vie idéal pour accueillir votre famille et concrétiser votre projet de vie.Contactez dès maintenant Olivier PUAUX, votre conseiller MAISONS FRANCE CONFORT, au (Numéro supprimé), pour en savoir plus ou imaginer ensemble votre future maison.

L’actualité immobilière à Cruas

Image du post Pourquoi acheter un terrain en lotissement ? 27/11/2023
Lire l’article
Pourquoi acheter un terrain en lotissement ?
Image du post Vendre son terrain à un promoteur : comment procéder ? 02/11/2023
Lire l’article
Vendre son terrain à un promoteur : comment procéder ?
Image du post Diviser le terrain de sa maison pour le vendre : pourquoi et comment ? 30/10/2023
Lire l’article
Diviser le terrain de sa maison pour le vendre : pourquoi et comment ?
Image du post Acheter un terrain viabilisé : quels avantages ? 20/10/2023
Lire l’article
Acheter un terrain viabilisé : quels avantages ?
Image du post Les 7 étapes incontournables pour bien vendre votre terrain constructible 16/10/2023
Lire l’article
Les 7 étapes incontournables pour bien vendre votre terrain constructible
Image du post 5 points clés à vérifier pour l’achat d’un terrain constructible  16/10/2023
Lire l’article
5 points clés à vérifier pour l’achat d’un terrain constructible