Maison à construire à Lagorce (07150)
Images
Description
Bastide contemporaine - 130 m² habitables avec garage accolé
Cette bastide contemporaine d'environ 110 m², à laquelle s'ajoutent 20 m² attenants aménagés en suite parentale, offre de beaux volumes et des prestations modernes.
👉 Au rez-de-chaussée
Une vaste pièce de vie lumineuse de plus de 50 m²,
Une cuisine,
Un cellier,
Une suite parentale avec salle d'eau, dressing et accès direct à la terrasse.
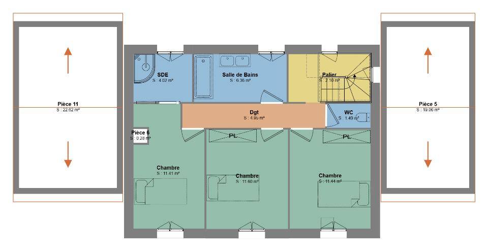
👉 À l'étage
Trois chambres avec vue côté jardin,
Une salle de bains,
Un WC indépendant.
👉 Annexes
Un garage accolé de plus de 20 m².
👉 Prestations
Pompe à chaleur gainable,
Carrelage sur toute la surface,
Menuiseries anthracite,
Volets roulants motorisés et centralisés.
Logement susceptibles de vous intéresser
Nous vous proposons de découvrir aussi cette sélection de logements situés à moins de 10km de Lagorce et qui seraient susceptibles de vous intéresser.
Vallon-Pont-d'Arc
TERRAIN ET MAISON🏡 MAISON DE PLAIN-PIED MODERNE EN L – 129 m²Style et conceptionMaison à l’architecture moderne et épurée, en forme de L pour profiter pleinement de l’ensoleillement plein sud et créer un espace extérieur intime abrité du vent.La construction est traditionnelle, avec des matériaux durables et performants.Les menuiseries anthracite, les volets roulants motorisés et centralisés, et les grandes baies vitrées soulignent le caractère contemporain de l’ensemble.🧱 Organisation intérieure🔸 Aile Jour (au centre du L) – environ 50 m²Entrée avec placard donnant sur une grande pièce de vie traversante, baignée de lumière naturelle grâce à de larges baies vitrées plein sud.Séjour / Salon / Salle à manger ouvrant sur une terrasse couverte orientée plein sud, idéale pour recevoir et profiter des beaux jours.Cuisine ouverte moderne avec îlot central.Cellier / buanderie attenant à la cuisine, communiquant directement avec le garage pour plus de confort au quotidien.🔸 Aile Nuit – Côté EstSuite parentale indépendante avec :une chambre spacieuse ouvrant sur la terrasse,un dressing fonctionnel,une salle d’eau privative (douche à l’italienne, double vasque, WC possible).🔸 Aile Nuit – Côté OuestTrois chambres lumineuses (10 à 11 m² chacune).Salle d’eau commune avec douche et double vasque.WC séparé à proximité.🎨 Prestations et finitionsCarrelage 60×60 cm dans la pièce de vie.Revêtements de sol au choix dans les chambres (parquet ou carrelage assorti).Menuiseries aluminium anthracite à double vitrage.Volets roulants électriques centralisés.Chauffage par pompe à chaleur gainable, offrant confort et performance énergétique.Terrasse couverte orientée plein sud, dans l’angle du L, parfaite pour les repas en extérieur.🌿 Points fortsPlan en L offrant luminosité et intimité dans le jardin.Suite parentale isolée des autres chambres.Circulation fluide et fonctionnelle.Cellier vers garage
Salavas
TERRAIN ET MAISON🏡 MAISON DE PLAIN-PIED MODERNE EN L – 129 m²Style et conceptionMaison à l’architecture moderne et épurée, en forme de L pour profiter pleinement de l’ensoleillement plein sud et créer un espace extérieur intime abrité du vent.La construction est traditionnelle, avec des matériaux durables et performants.Les menuiseries anthracite, les volets roulants motorisés et centralisés, et les grandes baies vitrées soulignent le caractère contemporain de l’ensemble.🧱 Organisation intérieure🔸 Aile Jour (au centre du L) – environ 50 m²Entrée avec placard donnant sur une grande pièce de vie traversante, baignée de lumière naturelle grâce à de larges baies vitrées plein sud.Séjour / Salon / Salle à manger ouvrant sur une terrasse couverte orientée plein sud, idéale pour recevoir et profiter des beaux jours.Cuisine ouverte moderne avec îlot central.Cellier / buanderie attenant à la cuisine, communiquant directement avec le garage pour plus de confort au quotidien.🔸 Aile Nuit – Côté EstSuite parentale indépendante avec :une chambre spacieuse ouvrant sur la terrasse,un dressing fonctionnel,une salle d’eau privative (douche à l’italienne, double vasque, WC possible).🔸 Aile Nuit – Côté OuestTrois chambres lumineuses (10 à 11 m² chacune).Salle d’eau commune avec douche et double vasque.WC séparé à proximité.🎨 Prestations et finitionsCarrelage 60×60 cm dans la pièce de vie.Revêtements de sol au choix dans les chambres (parquet ou carrelage assorti).Menuiseries aluminium anthracite à double vitrage.Volets roulants électriques centralisés.Chauffage par pompe à chaleur gainable, offrant confort et performance énergétique.Terrasse couverte orientée plein sud, dans l’angle du L, parfaite pour les repas en extérieur.🌿 Points fortsPlan en L offrant luminosité et intimité dans le jardin.Suite parentale isolée des autres chambres.Circulation fluide et fonctionnelle.Cellier vers garage
Vallon-Pont-d'Arc
TERRAIN ET MAISON🏡 MAISON DE PLAIN-PIED MODERNE EN L – 129 m²Style et conceptionMaison à l’architecture moderne et épurée, en forme de L pour profiter pleinement de l’ensoleillement plein sud et créer un espace extérieur intime abrité du vent.La construction est traditionnelle, avec des matériaux durables et performants.Les menuiseries anthracite, les volets roulants motorisés et centralisés, et les grandes baies vitrées soulignent le caractère contemporain de l’ensemble.🧱 Organisation intérieure🔸 Aile Jour (au centre du L) – environ 50 m²Entrée avec placard donnant sur une grande pièce de vie traversante, baignée de lumière naturelle grâce à de larges baies vitrées plein sud.Séjour / Salon / Salle à manger ouvrant sur une terrasse couverte orientée plein sud, idéale pour recevoir et profiter des beaux jours.Cuisine ouverte moderne avec îlot central.Cellier / buanderie attenant à la cuisine, communiquant directement avec le garage pour plus de confort au quotidien.🔸 Aile Nuit – Côté EstSuite parentale indépendante avec :une chambre spacieuse ouvrant sur la terrasse,un dressing fonctionnel,une salle d’eau privative (douche à l’italienne, double vasque, WC possible).🔸 Aile Nuit – Côté OuestTrois chambres lumineuses (10 à 11 m² chacune).Salle d’eau commune avec douche et double vasque.WC séparé à proximité.🎨 Prestations et finitionsCarrelage 60×60 cm dans la pièce de vie.Revêtements de sol au choix dans les chambres (parquet ou carrelage assorti).Menuiseries aluminium anthracite à double vitrage.Volets roulants électriques centralisés.Chauffage par pompe à chaleur gainable, offrant confort et performance énergétique.Terrasse couverte orientée plein sud, dans l’angle du L, parfaite pour les repas en extérieur.🌿 Points fortsPlan en L offrant luminosité et intimité dans le jardin.Suite parentale isolée des autres chambres.Circulation fluide et fonctionnelle.Cellier vers garage
Gras
TERRAINNiché sur les hauteurs, ce superbe terrain de 2 500 m², orienté plein sud, offre une vue imprenable sur le village de Gras et sa chapelle.Caractéristiques principales :Superficie : 2 500 m²Exposition : SudVue : Panoramique sur le village et la chapelleViabilisation : À la charge du vendeur avant la venteRègles architecturales à respecter :Pour préserver le charme et l’identité de cette belle région, votre future construction devra respecter certaines prescriptions :Conservation des pentes naturelles du terrainVolumétrie simple et harmonieuseToiture en tuiles de terre cuiteEnduit de teinte brun clair ou grègeOuvertures plus hautes que largesMenuiseries en bois peint ou aluminiumVolets battants ou coulissants (hors volets roulants)Un terrain idéal pour celles et ceux qui rêvent d’espace, de lumière et d’un cadre de vie paisible au cœur de l’Ardèche.Cette annonce référence 309027 vous est présentée par votre agent commercial BSK Immobilier EMILIE BOUDRANDI (EI) immatriculé au RSAC de LACHAPELLE-SOUS-AUBENAS (07200) sous le numéro 95225881200017.Prix du bien : 65 000,00 €Les honoraires d’agence sont à la charge du vendeur.Les informations sur les risques auxquels ce bien est exposé sont disponibles sur le site Géorisques : www.georisques.gouv.fr
Gras
TERRAINNe manquez pas cette opportunité unique de devenir propriétaire d’un des derniers terrains disponibles dans le charmant village de Gras, au cœur de l’Ardèche.Située sur les hauteurs, cette belle parcelle de 3 300 m², hors lotissement et exposée plein sud, offre une vue spectaculaire sur le village et sa chapelle — un cadre de vie paisible et lumineux.Caractéristiques principales :Superficie : 3 300 m²Orientation : SudVue : Panoramique sur le village et la chapelleViabilisation : Prévue lors de la ventePrescriptions architecturales à respecter :Afin de préserver le charme et l’harmonie du site, la future construction devra respecter certaines règles :Conservation des pentes naturelles du terrainVolumétrie simple et intégrée au paysageToiture en tuiles de terre cuiteEnduit de façade dans des tons brun clair ou grègeOuvertures plus hautes que largesMenuiseries en bois peint ou aluminiumVolets battants ou coulissants (hors volets roulants)Cette annonce référence 309029 vous est présentée par votre agent commercial BSK Immobilier EMILIE BOUDRANDI (EI) immatriculé au RSAC de LACHAPELLE-SOUS-AUBENAS (07200) sous le numéro 95225881200017.Prix du bien : 80 000,00 €Les honoraires d’agence sont à la charge du vendeur.Les informations sur les risques auxquels ce bien est exposé sont disponibles sur le site Géorisques : www.georisques.gouv.fr
Vallon-Pont-d'Arc
TERRAIN🌟 Exceptionnel à Vallon-Pont-d’Arc !Découvrez cette belle parcelle de 965 m², proposée en exclusivité avec notre partenaire foncier.👉 À moins d’1 km du centre du village, bénéficiant d’une superbe exposition.Prévoir viabilisation.Un cadre idéal pour votre projet :Avec MAISONS FRANCE CONFORT, leader de la construction de maisons individuelles depuis plusieurs décennies, concrétisez votre projet en toute sérénité.✅ Contrat CMI avec garanties de prix, de délai et de livraison✅ Assurance dommage-ouvrage et décennale✅ Accompagnement complet : recherche foncière, financement, conception des plans personnalisés, construction et remise des clés✨ Une opportunité rare pour bâtir votre villa au coeur de l’Ardèche méridionale !📞 Contactez Caroline au (Numéro supprimé)📍 MAISONS FRANCE CONFORT – Agence de Vallon-Pont-d’Arc
Vallon-Pont-d'Arc
TERRAIN ET MAISONUne maison carrée, idéale pour tous les terrains 🏡Avec son style contemporain, cette villa séduit par sa conception pratique et lumineuse :Une grande pièce de vie ouverte au sud et à l’ouest, parfaite pour profiter du soleilUn espace nuit distinct comprenant 3 chambres, 1 salle de bain et 1 WCUne cuisine fonctionnelle et un cellier offrant de nombreux rangementsPrestations proposées :Menuiseries gris anthraciteVolets roulants motorisés et centralisésChauffage par pompe à chaleur air/airCarrelage sur toute la surfaceFaçade grattée fin pour une finition élégante
Vallon-Pont-d'Arc
TERRAIN ET MAISON🏡 Villa contemporaine de 87 m² avec garage et terrasse panoramiqueDécouvrez cette villa contemporaine de 87 m², pensée pour allier confort, luminosité et modernité.Son architecture épurée s’accompagne d’un garage intégré et d’une terrasse accessible, offrant une vue dégagée sur l’environnement.Au rez-de-chaussée :Une spacieuse pièce de vie d’environ 45 m², baignée de lumière grâce à de grandes baies vitrées coulissantes, ouvrant sur la terrasse principale.Un espace idéal pour profiter pleinement d’un intérieur convivial et ouvert sur l’extérieur.À l’étage :Trois chambres, dont deux avec accès direct à la terrasse sur le toit, parfaite pour se détendre et admirer la vue.Une salle de bains moderne et un WC indépendant.Un projet personnalisable, entièrement adaptable à vos envies et à vos besoins, pour concevoir la maison qui vous ressemble.
Vallon-Pont-d'Arc
TERRAIN ET MAISONEn option : une suite parentale de 20 m², composée d’une chambre, d’un dressing et d’une salle d’eau avec WC séparé👉 À l’étageUne salle de bains familiale de plus de 6 m²3 chambres spacieuses de plus de 11 m² chacuneDont une suite parentale avec dressing et salle d’eau privativeConfort et bien-êtrePensée pour allier espace, luminosité et charme méditerranéen, La Bastide séduit par son style intemporel et son confort de vie.
L’actualité immobilière à Lagorce
27/11/2023
02/11/2023
30/10/2023
20/10/2023
16/10/2023
16/10/2023