Maison à construire à Les Vans (07140)
Images
Description
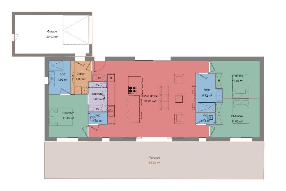
Une belle maison contemporaine aux volumes simples et optimisés
Découvrez cette maison moderne et fonctionnelle, conçue pour offrir confort et convivialité.
En son coeur, une grande pièce de vie d'environ 50 m², lumineuse et ouverte, constitue le véritable espace de partage du foyer.
De part et d'autre, les espaces nuit sont parfaitement répartis :
Espace enfants : deux chambres et une salle de bain.
Espace parental : une suite avec salle d'eau, dressing et WC indépendant.
Côté prestations, rien n'a été laissé au hasard :
Chauffage par pompe à chaleur gainable,
Menuiseries gris anthracite avec volets roulants motorisés,
Finitions modernes et matériaux de qualité.
Avec Maisons France Confort, vous bénéficiez de toutes les garanties :
Prix, délais et livraison garantis,
Assurance dommages-ouvrage incluse dans le devis,
Un accompagnement personnalisé du projet à la remise des clés.
Nos modèles sont entièrement personnalisables selon vos envies et vos besoins.
📞 Renseignements et devis auprès de Caroline au (Numéro supprimé).
Logement susceptibles de vous intéresser
Nous vous proposons de découvrir aussi cette sélection de logements situés à moins de 10km de Les Vans et qui seraient susceptibles de vous intéresser.
Saint-Paul-le-Jeune
TERRAINA vendre – Saint-Paul le Jeune.Terrain constructible de 2 045 m², dans un bel environnement très calme et proche toutes commodités, terrain plat arboré , sans vis à vis avec belle vue.Eau, Edf et tout à l’égout en bordure de terrain.Plus de renseignements sur notre site Le TUC Immobilier Saint-Ambroix – Réf : 92471-Bis
Berrias-et-Casteljau
TERRAIN**** ALERTE PEPITE ****Maisons France Confort réalise votre projet de maison sur ce terrain de Berrias et CasteljauEn accord avec notre partenaire foncier, nous vous proposons cette pépite! Un terrain de 5540m² dont une partie non constructible. Pour amoureux de calme, de tranquilité et de verdure. Une partie du terrain est boisé, une autre non constructible mais il vous reste suffisament pour votre maison et une piscine! Point important, vous pouvez vous rendre à la rivière à pieds. Les vans , Joyeuse sont accessible en voiture à moins de 15min. Idéalement situé et avec une vue dégagée ce terrain saura vous satisfaire, autant pour une résidence principale qu’une maison secondaire pour recevoir toute la famillePrenons rendez vous pour étudier ensemble votre projet de constructionCaroline au (Numéro supprimé)
Berrias-et-Casteljau
TERRAIN ET MAISONUne maison en L tout en originalitéLe modele présenté est composé de décroché pour récréer des ambiances au sein de la piece de vie, une terrasse couverte permet de profiter de l’extérieur meme en temps pluvieux. Côté nuit, elle vous offre trois chambres et deux salle de bains pour chacun est son propre espace. De larges ouvertures sur l’extérieur et un aspect contemporain avec un parement pierre sur la façade de l’entrée et la terrasse couverteLe modele proposé est en systement de chauffage gainable , pompe à chaleurLe garage accolé apporte lui aussi une touche de modernité avec un toit plat. Renseignements et devis auprès de Caroline au (Numéro supprimé)
Berrias-et-Casteljau
TERRAIN ET MAISONUne villa lumineuse et contemporaine pour accueillir toute la familleDécouvrez cette superbe villa au design résolument contemporain, pensée pour conjuguer confort, espace et convivialité.Au rez-de-chaussée, profitez d’un vaste espace de vie de plus de 100 m², baigné de lumière, comprenant une cuisine ouverte de 35 m², idéale pour partager de bons moments en famille ou entre amis.Sur la première aile de la villa, vous trouverez quatre chambres, deux salles d’eau ainsi qu’un espace détente.La seconde aile abrite une grande chambre de 21 m² avec salle d’eau privative et WC indépendant.À l’étage, une suite parentale et un bureau offrent un espace intime et fonctionnel, avec accès direct à une terrasse sur le toit, parfaite pour profiter des belles journées.Les prestations sont au rendez-vous :Menuiseries gris anthraciteVolets roulants motorisés et centralisésChauffage par pompe à chaleur pour un confort optimal et des économies d’énergieMAISON FRANCE CONFORT conçoit avec vous un projet sur mesure, en respectant vos envies, vos besoins et les contraintes techniques et urbanistiques.Votre villa est construite dans le cadre d’un contrat CMI avec :Assurance dommages-ouvrageGaranties de délais, de prix et de livraisonGarantie décennaleSuivi personnalisé de votre chantier par un conducteur de travaux dédié📞 Renseignements et devis : Caroline – (Numéro supprimé)
Berrias-et-Casteljau
TERRAIN ET MAISONCe modele de plain pied à l’allure contemporaine saura vous séduire par ses différents espacesLa suite parentale d’un côté avec une belle salle d’eau, un dressingen partie centrale de la maison un espace de vie de plus de 50m² pour recevoir, passer des moments en famille, et extremement lumineux grâce à sa baie en galandage ,et enfin la partie enfants composée de deux chambres avec placard, une seconde salle de bain et un second wc independantChauffage par pompe à chaleur gainable, menuiseries grises anthracites, volets roulants motorisés et centralisés, carrelage toute surface Garage inclus d’une surface de 20m² avec toiture terrasse pour accentuer le côté contemporaindevis et étude de votre projet aupres de Caroline au (Numéro supprimé)
Les Vans
TERRAIN ET MAISON🏡 MAISON DE PLAIN-PIED MODERNE EN L – 129 m²Style et conceptionMaison à l’architecture moderne et épurée, en forme de L pour profiter pleinement de l’ensoleillement plein sud et créer un espace extérieur intime abrité du vent.La construction est traditionnelle, avec des matériaux durables et performants.Les menuiseries anthracite, les volets roulants motorisés et centralisés, et les grandes baies vitrées soulignent le caractère contemporain de l’ensemble.🧱 Organisation intérieure🔸 Aile Jour (au centre du L) – environ 50 m²Entrée avec placard donnant sur une grande pièce de vie traversante, baignée de lumière naturelle grâce à de larges baies vitrées plein sud.Séjour / Salon / Salle à manger ouvrant sur une terrasse couverte orientée plein sud, idéale pour recevoir et profiter des beaux jours.Cuisine ouverte moderne avec îlot central.Cellier / buanderie attenant à la cuisine, communiquant directement avec le garage pour plus de confort au quotidien.🔸 Aile Nuit – Côté EstSuite parentale indépendante avec :une chambre spacieuse ouvrant sur la terrasse,un dressing fonctionnel,une salle d’eau privative (douche à l’italienne, double vasque, WC possible).🔸 Aile Nuit – Côté OuestTrois chambres lumineuses (10 à 11 m² chacune).Salle d’eau commune avec douche et double vasque.WC séparé à proximité.🎨 Prestations et finitionsCarrelage 60×60 cm dans la pièce de vie.Revêtements de sol au choix dans les chambres (parquet ou carrelage assorti).Menuiseries aluminium anthracite à double vitrage.Volets roulants électriques centralisés.Chauffage par pompe à chaleur gainable, offrant confort et performance énergétique.Terrasse couverte orientée plein sud, dans l’angle du L, parfaite pour les repas en extérieur.🌿 Points fortsPlan en L offrant luminosité et intimité dans le jardin.Suite parentale isolée des autres chambres.Circulation fluide et fonctionnelle.Cellier vers garage
Les Vans
TERRAIN ET MAISONUne belle maison contemporaine aux volumes simples et optimisésDécouvrez cette maison moderne et fonctionnelle, conçue pour offrir confort et convivialité.En son coeur, une grande pièce de vie d’environ 50 m², lumineuse et ouverte, constitue le véritable espace de partage du foyer.De part et d’autre, les espaces nuit sont parfaitement répartis :Espace enfants : deux chambres et une salle de bain.Espace parental : une suite avec salle d’eau, dressing et WC indépendant.Côté prestations, rien n’a été laissé au hasard :Chauffage par pompe à chaleur gainable,Menuiseries gris anthracite avec volets roulants motorisés,Finitions modernes et matériaux de qualité.Avec Maisons France Confort, vous bénéficiez de toutes les garanties :Prix, délais et livraison garantis,Assurance dommages-ouvrage incluse dans le devis,Un accompagnement personnalisé du projet à la remise des clés.Nos modèles sont entièrement personnalisables selon vos envies et vos besoins.📞 Renseignements et devis auprès de Caroline au (Numéro supprimé).
Les Vans
TERRAIN ET MAISON🏡 Villa contemporaine adaptable à tous types de terrainsCette villa moderne a été pensée pour s’intégrer harmonieusement aux terrains en restanques ou en légère pente.Grâce à sa conception en demi-sous-sol, elle s’ajuste parfaitement au relief tout en offrant un accès de plain-pied.✨ Agencement optimisé3 chambres situées au-dessus d’un vaste garage d’environ 50 m²Quelques marches séparent l’espace jour de l’espace nuit pour plus d’intimitéCôté jour : une grande pièce de vie d’environ 55 m², lumineuse et ouverte grâce à de larges baies vitrées contemporainesUne suite parentale intégrée à l’espace jour pour encore plus de confort⚙️ Prestations de qualitéMenuiseries gris anthraciteVolets roulants motorisés et centralisésChauffage par pompe à chaleur gainable📞 Renseignements et devis personnalisé auprès de Caroline au (Numéro supprimé)
Les Assions
TERRAIN ET MAISON🏡 Villa contemporaine en V – Idéale pour grande famille ou télétravailDécouvrez cette magnifique villa en forme de V, conçue pour offrir à la fois espace, intimité et modernité. Parfaite pour une famille nombreuse ou pour intégrer un espace de télétravail.🔹 Le projet comprend :4 chambres, dont 2 avec accès direct à la terrasseUne suite parentale indépendante, pour plus de calme et de confortUne pièce de vie spacieuse de plus de 50 m², baignée de lumière, avec :Un châssis fixe pour créer un coin salon cosyUne baie vitrée coulissante en galandage donnant accès à la terrasse et à la piscine🏗️ Construction de qualité :Fondations adaptées au terrain, sur vide sanitaireRespect total des normes RE2020Menuiseries anthracite et débord de toit apportant une esthétique résolument moderneChauffage réversible par pompe à chaleur avec thermostat intégré📐 Plan 100 % personnalisable selon vos besoins, vos envies et la configuration de votre terrain.📞 Renseignements et étude gratuite de votre projet auprès de Caroline : (Numéro supprimé)
L’actualité immobilière à Les Vans
27/11/2023
02/11/2023
30/10/2023
20/10/2023
16/10/2023
16/10/2023