Maison à construire à Orgnac-l'Aven (07150)
Images
Description
Bastide contemporaine - 130 m² habitables avec garage accolé
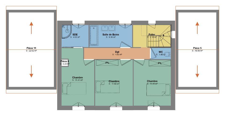
Cette bastide contemporaine d'environ 110 m², à laquelle s'ajoutent 20 m² attenants aménagés en suite parentale, offre de beaux volumes et des prestations modernes.
👉 Au rez-de-chaussée
Une vaste pièce de vie lumineuse de plus de 50 m²,
Une cuisine,
Un cellier,
Une suite parentale avec salle d'eau, dressing et accès direct à la terrasse.
👉 À l'étage
Trois chambres avec vue côté jardin,
Une salle de bains,
Un WC indépendant.
👉 Annexes
Un garage accolé de plus de 20 m².
👉 Prestations
Pompe à chaleur gainable,
Carrelage sur toute la surface,
Menuiseries anthracite,
Volets roulants motorisés et centralisés.
Logement susceptibles de vous intéresser
Nous vous proposons de découvrir aussi cette sélection de logements situés à moins de 10km de Orgnac-l'Aven et qui seraient susceptibles de vous intéresser.
Vagnas
TERRAIN ET MAISON🏡 MAISON DE PLAIN-PIED MODERNE EN L – 129 m²Style et conceptionMaison à l’architecture moderne et épurée, en forme de L pour profiter pleinement de l’ensoleillement plein sud et créer un espace extérieur intime abrité du vent.La construction est traditionnelle, avec des matériaux durables et performants.Les menuiseries anthracite, les volets roulants motorisés et centralisés, et les grandes baies vitrées soulignent le caractère contemporain de l’ensemble.🧱 Organisation intérieure🔸 Aile Jour (au centre du L) – environ 50 m²Entrée avec placard donnant sur une grande pièce de vie traversante, baignée de lumière naturelle grâce à de larges baies vitrées plein sud.Séjour / Salon / Salle à manger ouvrant sur une terrasse couverte orientée plein sud, idéale pour recevoir et profiter des beaux jours.Cuisine ouverte moderne avec îlot central.Cellier / buanderie attenant à la cuisine, communiquant directement avec le garage pour plus de confort au quotidien.🔸 Aile Nuit – Côté EstSuite parentale indépendante avec :une chambre spacieuse ouvrant sur la terrasse,un dressing fonctionnel,une salle d’eau privative (douche à l’italienne, double vasque, WC possible).🔸 Aile Nuit – Côté OuestTrois chambres lumineuses (10 à 11 m² chacune).Salle d’eau commune avec douche et double vasque.WC séparé à proximité.🎨 Prestations et finitionsCarrelage 60×60 cm dans la pièce de vie.Revêtements de sol au choix dans les chambres (parquet ou carrelage assorti).Menuiseries aluminium anthracite à double vitrage.Volets roulants électriques centralisés.Chauffage par pompe à chaleur gainable, offrant confort et performance énergétique.Terrasse couverte orientée plein sud, dans l’angle du L, parfaite pour les repas en extérieur.🌿 Points fortsPlan en L offrant luminosité et intimité dans le jardin.Suite parentale isolée des autres chambres.Circulation fluide et fonctionnelle.Cellier vers garage
Orgnac-l'Aven
TERRAIN ET MAISON🏡 MAISON DE PLAIN-PIED MODERNE EN L – 129 m²Style et conceptionMaison à l’architecture moderne et épurée, en forme de L pour profiter pleinement de l’ensoleillement plein sud et créer un espace extérieur intime abrité du vent.La construction est traditionnelle, avec des matériaux durables et performants.Les menuiseries anthracite, les volets roulants motorisés et centralisés, et les grandes baies vitrées soulignent le caractère contemporain de l’ensemble.🧱 Organisation intérieure🔸 Aile Jour (au centre du L) – environ 50 m²Entrée avec placard donnant sur une grande pièce de vie traversante, baignée de lumière naturelle grâce à de larges baies vitrées plein sud.Séjour / Salon / Salle à manger ouvrant sur une terrasse couverte orientée plein sud, idéale pour recevoir et profiter des beaux jours.Cuisine ouverte moderne avec îlot central.Cellier / buanderie attenant à la cuisine, communiquant directement avec le garage pour plus de confort au quotidien.🔸 Aile Nuit – Côté EstSuite parentale indépendante avec :une chambre spacieuse ouvrant sur la terrasse,un dressing fonctionnel,une salle d’eau privative (douche à l’italienne, double vasque, WC possible).🔸 Aile Nuit – Côté OuestTrois chambres lumineuses (10 à 11 m² chacune).Salle d’eau commune avec douche et double vasque.WC séparé à proximité.🎨 Prestations et finitionsCarrelage 60×60 cm dans la pièce de vie.Revêtements de sol au choix dans les chambres (parquet ou carrelage assorti).Menuiseries aluminium anthracite à double vitrage.Volets roulants électriques centralisés.Chauffage par pompe à chaleur gainable, offrant confort et performance énergétique.Terrasse couverte orientée plein sud, dans l’angle du L, parfaite pour les repas en extérieur.🌿 Points fortsPlan en L offrant luminosité et intimité dans le jardin.Suite parentale isolée des autres chambres.Circulation fluide et fonctionnelle.Cellier vers garage
Salavas
TERRAIN ET MAISON🏡 MAISON DE PLAIN-PIED MODERNE EN L – 129 m²Style et conceptionMaison à l’architecture moderne et épurée, en forme de L pour profiter pleinement de l’ensoleillement plein sud et créer un espace extérieur intime abrité du vent.La construction est traditionnelle, avec des matériaux durables et performants.Les menuiseries anthracite, les volets roulants motorisés et centralisés, et les grandes baies vitrées soulignent le caractère contemporain de l’ensemble.🧱 Organisation intérieure🔸 Aile Jour (au centre du L) – environ 50 m²Entrée avec placard donnant sur une grande pièce de vie traversante, baignée de lumière naturelle grâce à de larges baies vitrées plein sud.Séjour / Salon / Salle à manger ouvrant sur une terrasse couverte orientée plein sud, idéale pour recevoir et profiter des beaux jours.Cuisine ouverte moderne avec îlot central.Cellier / buanderie attenant à la cuisine, communiquant directement avec le garage pour plus de confort au quotidien.🔸 Aile Nuit – Côté EstSuite parentale indépendante avec :une chambre spacieuse ouvrant sur la terrasse,un dressing fonctionnel,une salle d’eau privative (douche à l’italienne, double vasque, WC possible).🔸 Aile Nuit – Côté OuestTrois chambres lumineuses (10 à 11 m² chacune).Salle d’eau commune avec douche et double vasque.WC séparé à proximité.🎨 Prestations et finitionsCarrelage 60×60 cm dans la pièce de vie.Revêtements de sol au choix dans les chambres (parquet ou carrelage assorti).Menuiseries aluminium anthracite à double vitrage.Volets roulants électriques centralisés.Chauffage par pompe à chaleur gainable, offrant confort et performance énergétique.Terrasse couverte orientée plein sud, dans l’angle du L, parfaite pour les repas en extérieur.🌿 Points fortsPlan en L offrant luminosité et intimité dans le jardin.Suite parentale isolée des autres chambres.Circulation fluide et fonctionnelle.Cellier vers garage
Labastide-de-Virac
TERRAIN ET MAISON🏡 MAISON DE PLAIN-PIED MODERNE EN L – 129 m²Style et conceptionMaison à l’architecture moderne et épurée, en forme de L pour profiter pleinement de l’ensoleillement plein sud et créer un espace extérieur intime abrité du vent.La construction est traditionnelle, avec des matériaux durables et performants.Les menuiseries anthracite, les volets roulants motorisés et centralisés, et les grandes baies vitrées soulignent le caractère contemporain de l’ensemble.🧱 Organisation intérieure🔸 Aile Jour (au centre du L) – environ 50 m²Entrée avec placard donnant sur une grande pièce de vie traversante, baignée de lumière naturelle grâce à de larges baies vitrées plein sud.Séjour / Salon / Salle à manger ouvrant sur une terrasse couverte orientée plein sud, idéale pour recevoir et profiter des beaux jours.Cuisine ouverte moderne avec îlot central.Cellier / buanderie attenant à la cuisine, communiquant directement avec le garage pour plus de confort au quotidien.🔸 Aile Nuit – Côté EstSuite parentale indépendante avec :une chambre spacieuse ouvrant sur la terrasse,un dressing fonctionnel,une salle d’eau privative (douche à l’italienne, double vasque, WC possible).🔸 Aile Nuit – Côté OuestTrois chambres lumineuses (10 à 11 m² chacune).Salle d’eau commune avec douche et double vasque.WC séparé à proximité.🎨 Prestations et finitionsCarrelage 60×60 cm dans la pièce de vie.Revêtements de sol au choix dans les chambres (parquet ou carrelage assorti).Menuiseries aluminium anthracite à double vitrage.Volets roulants électriques centralisés.Chauffage par pompe à chaleur gainable, offrant confort et performance énergétique.Terrasse couverte orientée plein sud, dans l’angle du L, parfaite pour les repas en extérieur.🌿 Points fortsPlan en L offrant luminosité et intimité dans le jardin.Suite parentale isolée des autres chambres.Circulation fluide et fonctionnelle.Cellier vers garage
Barjac
TERRAINMaison France Confort réalise votre projet de construction à Barjac ! En accord avec notre partenaire foncier, nous vous proposons ce terrain constructible d’une superficie de 1242 m2 pour réaliser votre projet de construction. Aux portes des Cévennes et à quelques minutes des gorges de l’Ardèche, Barjac bénéficie d’un cadre naturel exceptionnel, parfait pour les amoureux de la nature, de randonnée, de baignade et de tranquillité.Prix : 81 000 € (hors droit d’enregistrement et frais de notaire)Viabilisations à prévoir Assainissement individuelTerrain issu d’une découpe parcellaire de 6 Lots Nous vous proposons un accompagnement complet et personnalisé dans toutes vos démarches liées à votre projet de construction. Nous réalisons vos plans sur mesure selon vos envies. Contactez Mélanie DEFFOBIS – Maison France Confort -Vallon Pont d’arc au (Numéro supprimé).
Barjac
TERRAIN ET MAISONMaison France confort vous propose ce projet de construction à Barjac ! Prestations proposées : Superficie : Maison de 120 m2 à étage partiel Chambre : 3 dont une suite parentale Garage : Oui Terrasse : Oui Chauffage : Plancher chauffant / rafraichissant Ce projet de construction est présenté à titre d’inspiration et peut être entièrement personnalisé. Chaque maison est conçue sur mesure en fonction de votre projet et de votre budget.Budget estimatif du projet, terrain inclus : 420 000 € (hors frais annexes)En CCMI, RE 2020, Assurances et garanties du constructeur incluses (RC professionnelle, décennale, dommage ouvrage).Terrain proposé pour ce projet Superficie : 1241 m2 Prix : 81 000 € (hors droit d’enregistrement et frais de notaire) Viabilisé : NonAssainissement : Individuel Pour plus d’informations, contactez Mélanie DEFFOBIS – Maison France Confort – Agence de Vallon Pont d’Arc – (Numéro supprimé)
Barjac
TERRAIN ET MAISONMaison France confort vous propose ce projet de construction à Barjac ! Prestations proposées : Superficie : Bastide de 115 m2 Chambres : 4 dont 2 suite parentale Garage : Oui Terrasse : Oui Chauffage : PAC / Gainable Ce projet de construction est présenté à titre d’inspiration et peut être entièrement personnalisé. Chaque maison est conçue sur mesure en fonction de votre projet et de votre budget.Budget estimatif du projet, terrain inclus : 360 000 € (hors frais annexes)En CCMI, RE 2020, Assurances et garanties du constructeur incluses (RC professionnelle, décennale, dommage ouvrage).Terrain proposé pour ce projet Superficie : 1242 m2 Prix : 81 000 € (hors droit d’enregistrement et frais de notaire) Viabilisé : NonAssainissement : Individuel Pour plus d’informations, contactez Mélanie DEFFOBIS – Maison France Confort – Agence de Vallon Pont d’Arc – (Numéro supprimé)
Labastide-de-Virac
TERRAINÀ vendre : Belle parcelle boisée de plus de 1 300 m² en Sud ArdècheIdéalement située à seulement :10 min de Vallon-Pont-d’Arc,10 min du centre de Barjac,10 min de l’Aven d’Orgnac,Dans une charmante commune d’environ 300 habitants, réputée pour son château de Roure et son environnement naturel préservé.Les commodités (crèches, écoles, commerces) se trouvent à Vallon-Pont-d’Arc et Barjac.Le terrain est viabilisé, avec raccordement au tout à l’egout 🌳 Le terrainSuperficie : plus de 1 338 m²Actuellement boisé, offrant fraîcheur et ombreBelle exposition✨ Un secteur prisé et touristiqueAu coeur du Sud Ardèche, vous profiterez d’une multitude d’activités :Grotte Chauvet, Aven d’OrgnacDescente en canoë de l’ArdècheVia ferrata, accrobrancheFestivals (Aluna, Barjac m’en chante)Découverte de villages classés : Vogüé, Balazuc, Vallon-Pont-d’Arc, Ruoms, Barjac…📞 Renseignements et visites auprès de Caroline : (Numéro supprimé)
Labastide-de-Virac
TERRAIN ET MAISONMaison de plain-pied de 90 m² – style traditionnelCharmante maison de plain-pied en L d’environ 90 m², au style traditionnel et fonctionnel, idéale pour une famille ou pour un projet de résidence secondaire.Elle se compose de :Une belle pièce de vie traversante, lumineuse et conviviale,Trois chambres confortables,Une salle d’eau moderne équipée d’une grande douche, d’une vasque et d’un WC suspendu indépendant,Un garage accolé pouvant être ajouté selon vos besoins.Maison pensée pour allier confort, praticité et charme de l’habitat de plain-pied.
L’actualité immobilière à Orgnac-l'Aven
27/11/2023
02/11/2023
30/10/2023
20/10/2023
16/10/2023
16/10/2023